アプリで簡単 物件探し 通知 共有 アプリならではの機能を使ってみる
賃貸マンション

プレサンス グラン 栄 THE TOWER 矢場町駅 3LDK 賃貸(賃貸マンション・アパート)

情報提供元
SUUMO
プレサンス グラン 栄 THE TOWER
賃料 18.26万円  (管理費等:17450円)
礼金・敷金 20万円 / なし 保証金/敷引・償却 なし / -
交通
所在地 愛知県名古屋市中区栄4周辺地図
間取り 3LDK 専有面積 66.75m2
築年月 2021年10月 築年数 築4年3ヶ月
おすすめポイント
★☆★プレサンスの分譲賃貸です★☆★ ★大須商店街・矢場町エリア・栄中心地すべて徒歩圏内★当社が掲載していないお部屋でも対応可能な場合もございます★お気軽にお問い合わせください★
お問い合わせ先
アパマンショップ金山店(株)RESIA ESTATE
お問い合わせ先
アパマンショップ金山店(株)RESIA ESTATE

詳細情報

賃料 18.26万円 管理費等 17450円
敷金 なし 礼金 20万円
保証金 なし 敷引・償却 -
更新料 - 契約期間
カード決済 -
所在地 愛知県名古屋市中区栄4周辺地図
交通
建物名 プレサンス グラン 栄 THE TOWER 
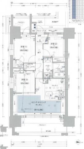
間取り 3LDK(洋6 洋4.5 洋4.5 LDK15.3) 築年月(築年数) 2021年10月(築4年3ヶ月)
専有面積 66.75㎡ 所在階/階数 5階/19階建
建物構造 RC  方位 東 
現況   駐車場 無    近くの駐車場を探す
入居可能時期 即時 住宅保険 あり
情報提供元 SUUMO[050H100464081364] 情報公開日
情報更新日 次回更新予定日 随時

設備など

2階以上 最上階 - 角部屋 -
駐車場(近隣含) - エアコン付き - バス・トイレ別 -
室内洗濯機置き場 - 追焚機能 オートロック付き
モニタ付インターホン フローリング - バルコニー
ガスコンロ可 - 浴室乾燥機 24時間セキュリティ -
宅配ボックス ペット相談可 - 二人入居可 -
設備 オートロック・トイレ・収納スペース・エレベーター・BS端子・追焚機能・浴室乾燥機・照明器具・温水洗浄便座・モニタ付インターホン・宅配BOX・風呂・床暖房・衣類乾燥機・ディスポーザー・防犯カメラ・シューズボックス・バルコニー 
リフォーム履歴 -
リノベーション履歴 -
備考 損保要/カギ交換代/プレサポ24 990円(月額)/保証会社利用必:ギャランティ 初回50% 月1.5%・セーフティー 初回50% 年10,000円/[退去時費用 退去費用実費精算※故意・過失等別途実費] 保証会社:株式会社プレサンスギャランティ/TVインターホン/浴室乾燥機/オートロック/シューズボックス/追焚機能浴室/温水洗浄便座/エレベーター/宅配ボックス/即入居可/敷金不要/防犯カメラ/照明付/全居室洋室/保証人不要/2沿線利用可/LDK15畳以上/床暖房/ディスポーザー/24時間換気システム/防犯ガラス/2駅利用可/駅徒歩5分以内/駅徒歩10分以内/LDK12畳以上/BS/保証会社利用可/松阪屋(ショッピングセンター)まで318m/ファミリーマート名古屋栄五丁目店(コンビニ)まで345m/ラシック(ショッピングセンター)まで446m/パルコ西館1Fmimi33(ショッピングセンター)まで599m/ロフト名古屋(ショッピングセンター)まで590m/オアシス21(その他)まで717m/賃貸戸数:84戸 
特記事項 保証人不要/代行

省エネ性能

エネルギー消費性能 -
断熱性能 -
目安光熱費 -

愛知県名古屋市中区栄4 周辺地図情報

地図
※地図上に表示される物件の位置は付近住所に所在することを表すものであり、実際の物件所在地とは異なる場合がございます。
   正確な物件所在地は、取扱い不動産会社にお問い合わせください。
お問い合わせ先
アパマンショップ金山店(株)RESIA ESTATE

不動産会社情報

お問い合わせ先 商号:アパマンショップ金山店(株)RESIA ESTATE
免許番号:愛知県知事(5)第19172号
所在地:愛知県名古屋市熱田区金山町1-7-8 電波学園第二ビル1階
TEL:052-678-7720
取引態様:仲介
管理コード:97308332
所属協会など: 東海不動産公正取引協議会加盟、(公社)愛知県宅地建物取引業協会会員
共有する
QRコード
お問い合わせ先
アパマンショップ金山店(株)RESIA ESTATE

    名古屋市中区の暮らしデータ

    人口などの統計情報

    世帯数 1119847世帯
    人口総数 2297745人
    転入者数 168667人
    転入率(人口1000人当たり)
    73.41人
    転出者数 154544人
    転出率(人口1000人当たり)
    67.26人
    土地平均価格
    住宅地
    223115円/m2
    商業地
    1106619円/m2

    結婚・育児の助成金

    子育て関連の独自の取り組み (1)なごや子育てアプリ「NAGOMii(なごみー)」による子育て支援情報の提供。(2)子育て家庭優待カード「ぴよか」の交付。(3)子どもを出産、育児する家庭に5万ポイント(5万円相当)分のカタログギフトを進呈する、ナゴヤわくわくプレゼント事業の実施。
    出産祝い あり
    公立保育所数 84所(うち0歳児保育を実施している保育所:84所)
    私立保育所数 367所(うち0歳児保育を実施している保育所:365所)
    保育所入所待機児童数 0人
    認定こども園数 107園 預かり保育実施園数 公立:20園 私立:-
    学校給食 【小学校】完全給食【中学校】家庭弁当等との選択制/デリバリー形式[運搬:食缶等、内容:完全給食(献立選択制)]
    公立中学校の学校選択制 未実施
    子ども・学生等医療費助成<通院>対象年齢 18歳3月末まで 子ども・学生等医療費助成<入院>対象年齢 18歳3月末まで

    名古屋市中区の治安・ごみ収集情報

    公共料金・インフラ

    ガス料金(22m3使用した場合の月額) 東邦瓦斯株式会社5307円
    水道料金(口径20mmで20m3の月額) 名古屋市2915円
    下水道料金(20m3を使用した場合の月額) 名古屋市1804円
    下水道普及率 99.4%

    安心・安全

    建物火災出火件数 355件
    人口10000人当たり
    1.52件
    刑法犯認知件数 19857件
    人口1000人当たり
    8.51件
    ハザード・防災マップ あり

    医療

    一般病院総数 110ヶ所
    一般診療所総数 2272ヶ所
    小児科医師数 770人
    小児人口10000人当たり
    28.40人
    産婦人科医師数 319人
    15~49歳女性人口1万人当たり
    6.72人
    介護保険料基準額(月額) 6951円

    ごみ

    家庭ごみ収集(可燃ごみ) 無料
    備考
    指定ごみ袋制だが、袋代にごみ収集・処理料金等を含まず。
    家庭ごみの分別方式 5分別9種〔可燃ごみ 不燃ごみ 発火性危険物 電池類 資源(プラスチック資源、紙製容器包装・雑がみ、ペットボトル、空きびん、空き缶)〕 拠点回収:資源(ペットボトル 紙パック 食用油 小型家電 充電式家電 蛍光管・水銀体温計・水銀温度計)
    家庭ごみの戸別収集 実施(可燃ごみ、不燃ごみ、発火性危険物、電池類、プラスチック資源のみ。紙製容器包装・雑がみ、ペットボトル、空きびん、空き缶はステーション収集)
    粗大ごみ収集 あり
    備考
    有料。各戸収集。事前申込制。月1回収集で手数料(品目ごとに250円、500円、1,000円、1,500円)が必要。粗大ごみ受付センターにインターネットもしくは電話にて申し込み。
    生ごみ処理機助成金制度 なし
    上限金額
    -
    上限比率
    -
    暮らしデータ提供元:生活ガイド.com
    ※行政機関により公表していない地域及びデータがございます。東京23区以外の政令指定都市は、市全体のデータとして表示しています。
    ※提供データには細心の注意を払っておりますが、調査後に変更がある場合があります。 最新の情報につきましては各市区役所までお問い合わせいただくか、自治体HPなどをご確認ください。
    OCN×ドコモ光新規お申込みで合計最大137,280円相当おトク!特典の内訳・適用条件など詳細はこちら

    名古屋市中区内の各駅の住みやすさ

    他のエリアから探す

    名古屋市中区の詳細地域から賃貸物件を探す

    伊勢山大井町大須金山上前津三の丸新栄新栄町千代田東桜富士見町古渡町平和正木松原丸の内門前町

    近辺の市区から探す

    名古屋市千種区名古屋市東区名古屋市北区名古屋市西区名古屋市中村区名古屋市昭和区名古屋市瑞穂区名古屋市熱田区名古屋市中川区名古屋市港区名古屋市南区名古屋市守山区名古屋市緑区名古屋市名東区名古屋市天白区春日井市尾張旭市岩倉市日進市清須市北名古屋市あま市長久手市西春日井郡豊山町海部郡大治町海部郡蟹江町

    周辺の駅から探す

    名古屋市名城線
    名城公園名古屋城久屋大通矢場町上前津東別院金山西高蔵
    名古屋市東山線
    本陣亀島名古屋伏見新栄町千種今池池下

    愛知県名古屋市中区で他のジャンルから探す


    掲載情報の著作権は提供元企業等に帰属します。
    Copyright:(C) 2025 Recruit Co., Ltd.
    アプリで簡単 物件探し 大手不動産サイトの情報から一括検!プッシュ通知で物件を見逃さない
    App Storeからダウンロード Google Playで手に入れよう QRコード