アプリで簡単 物件探し 通知 共有 アプリならではの機能を使ってみる
賃貸マンション

プレサンス名古屋菊井セルカ 浅間町駅 1K 賃貸(賃貸マンション・アパート)

情報提供元
SUUMO
プレサンス名古屋菊井セルカ 建物 外観(横)
賃料 6.5万円  (管理費等:8050円)
礼金・敷金 7.3万円 / なし 保証金/敷引・償却 なし / -
交通
所在地 愛知県名古屋市西区菊井1周辺地図
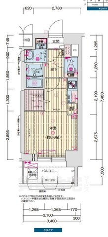
間取り 1K 専有面積 25.16m2
築年月 2024年9月 築年数 築1年4ヶ月
お問い合わせ先
賃貸住宅サービス FC名古屋セントラルパーク店(株)PITTARI賃貸
お問い合わせ先
賃貸住宅サービス FC名古屋セントラルパーク店(株)PITTARI賃貸

詳細情報

賃料 6.5万円 管理費等 8050円
敷金 なし 礼金 7.3万円
保証金 なし 敷引・償却 -
更新料 - 契約期間
カード決済 -
所在地 愛知県名古屋市西区菊井1周辺地図
交通
建物名 プレサンス名古屋菊井セルカ 
間取り 1K 築年月(築年数) 2024年9月(築1年4ヶ月)
専有面積 25.16㎡ 所在階/階数 9階/13階建
建物構造 RC  方位  
現況   駐車場 無    近くの駐車場を探す
入居可能時期 即時 住宅保険 なし
情報提供元 SUUMO[050H100475079992] 情報公開日
情報更新日 次回更新予定日 随時

設備など

2階以上 最上階 - 角部屋 -
駐車場(近隣含) - エアコン付き バス・トイレ別 -
室内洗濯機置き場 追焚機能 - オートロック付き -
モニタ付インターホン - フローリング バルコニー
ガスコンロ可 浴室乾燥機 24時間セキュリティ -
宅配ボックス - ペット相談可 - 二人入居可 -
設備 冷房・暖房・エアコン・バルコニー・洗濯機置場・洗面所・BS端子・フローリング・浴室乾燥機・ガスコンロ可・シャンプードレッサ・CS・衣類乾燥機・室内洗濯機置き場 
リフォーム履歴 -
リノベーション履歴 -
備考 バルコニー/エアコン/ガスコンロ対応/フローリング/シャワー付洗面台/浴室乾燥機/室内洗濯置/即入居可/BS・CS/敷金不要/保証金不要/築2年以内/築3年以内/3駅以上利用可/3沿線以上利用可/駅徒歩10分以内/築5年以内/名鉄名古屋本線 栄生駅徒歩16分/賃貸戸数:84戸 
特記事項

省エネ性能

エネルギー消費性能 -
断熱性能 -
目安光熱費 -

愛知県名古屋市西区菊井1 周辺地図情報

地図
※地図上に表示される物件の位置は付近住所に所在することを表すものであり、実際の物件所在地とは異なる場合がございます。
   正確な物件所在地は、取扱い不動産会社にお問い合わせください。
お問い合わせ先
賃貸住宅サービス FC名古屋セントラルパーク店(株)PITTARI賃貸

不動産会社情報

お問い合わせ先 商号:賃貸住宅サービス FC名古屋セントラルパーク店(株)PITTARI賃貸
免許番号:愛知県知事(3)第22529号
所在地:愛知県名古屋市中区錦3-5-13
TEL:0078-60068066
取引態様:仲介
管理コード:13903108
共有する
QRコード
お問い合わせ先
賃貸住宅サービス FC名古屋セントラルパーク店(株)PITTARI賃貸

    名古屋市西区の暮らしデータ

    人口などの統計情報

    世帯数 1119847世帯
    人口総数 2297745人
    転入者数 168667人
    転入率(人口1000人当たり)
    73.41人
    転出者数 154544人
    転出率(人口1000人当たり)
    67.26人
    土地平均価格
    住宅地
    223115円/m2
    商業地
    1106619円/m2

    結婚・育児の助成金

    子育て関連の独自の取り組み (1)なごや子育てアプリ「NAGOMii(なごみー)」による子育て支援情報の提供。(2)子育て家庭優待カード「ぴよか」の交付。(3)子どもを出産、育児する家庭に5万ポイント(5万円相当)分のカタログギフトを進呈する、ナゴヤわくわくプレゼント事業の実施。
    出産祝い あり
    公立保育所数 84所(うち0歳児保育を実施している保育所:84所)
    私立保育所数 367所(うち0歳児保育を実施している保育所:365所)
    保育所入所待機児童数 0人
    認定こども園数 107園 預かり保育実施園数 公立:20園 私立:-
    学校給食 【小学校】完全給食【中学校】家庭弁当等との選択制/デリバリー形式[運搬:食缶等、内容:完全給食(献立選択制)]
    公立中学校の学校選択制 未実施
    子ども・学生等医療費助成<通院>対象年齢 18歳3月末まで 子ども・学生等医療費助成<入院>対象年齢 18歳3月末まで

    名古屋市西区の治安・ごみ収集情報

    公共料金・インフラ

    ガス料金(22m3使用した場合の月額) 東邦瓦斯株式会社5307円
    水道料金(口径20mmで20m3の月額) 名古屋市2915円
    下水道料金(20m3を使用した場合の月額) 名古屋市1804円
    下水道普及率 99.4%

    安心・安全

    建物火災出火件数 355件
    人口10000人当たり
    1.52件
    刑法犯認知件数 19857件
    人口1000人当たり
    8.51件
    ハザード・防災マップ あり

    医療

    一般病院総数 110ヶ所
    一般診療所総数 2272ヶ所
    小児科医師数 770人
    小児人口10000人当たり
    28.40人
    産婦人科医師数 319人
    15~49歳女性人口1万人当たり
    6.72人
    介護保険料基準額(月額) 6951円

    ごみ

    家庭ごみ収集(可燃ごみ) 無料
    備考
    指定ごみ袋制だが、袋代にごみ収集・処理料金等を含まず。
    家庭ごみの分別方式 5分別9種〔可燃ごみ 不燃ごみ 発火性危険物 電池類 資源(プラスチック資源、紙製容器包装・雑がみ、ペットボトル、空きびん、空き缶)〕 拠点回収:資源(ペットボトル 紙パック 食用油 小型家電 充電式家電 蛍光管・水銀体温計・水銀温度計)
    家庭ごみの戸別収集 実施(可燃ごみ、不燃ごみ、発火性危険物、電池類、プラスチック資源のみ。紙製容器包装・雑がみ、ペットボトル、空きびん、空き缶はステーション収集)
    粗大ごみ収集 あり
    備考
    有料。各戸収集。事前申込制。月1回収集で手数料(品目ごとに250円、500円、1,000円、1,500円)が必要。粗大ごみ受付センターにインターネットもしくは電話にて申し込み。
    生ごみ処理機助成金制度 なし
    上限金額
    -
    上限比率
    -
    暮らしデータ提供元:生活ガイド.com
    ※行政機関により公表していない地域及びデータがございます。東京23区以外の政令指定都市は、市全体のデータとして表示しています。
    ※提供データには細心の注意を払っておりますが、調査後に変更がある場合があります。 最新の情報につきましては各市区役所までお問い合わせいただくか、自治体HPなどをご確認ください。
    OCN×ドコモ光新規お申込みで合計最大137,280円相当おトク!特典の内訳・適用条件など詳細はこちら

    名古屋市西区内の各駅の住みやすさ

    他のエリアから探す

    名古屋市西区の詳細地域から賃貸物件を探す

    赤城町あし原町天塚町新木町市場木町稲生町浮野町牛島町歌里町江向町円明町大金町大野木押切貝田町笠取町上小田井上名古屋上名古屋町上橋町上堀越町菊井貴生町木前町清里町康生通香呑町児玉こも原町五才美町坂井戸町栄生笹塚町庄内通城西町城町新福寺町新道城西浄心浄心本通城北町数寄屋町砂原町浅間玉池町秩父通天神山町東岸町十方町鳥見町中小田井中沼町長先町那古野名塚町西原町野南町則武新町則武町花の木花原町幅下樋の口町比良平出町平中町枇杷島町枇杷島二方町宝地町堀越堀越町又穂町丸野万代町南川町南堀越名駅名西八筋町山木

    近辺の市区から探す

    名古屋市千種区名古屋市東区名古屋市北区名古屋市中村区名古屋市中区名古屋市昭和区名古屋市瑞穂区名古屋市熱田区名古屋市中川区名古屋市港区名古屋市南区名古屋市守山区名古屋市名東区名古屋市天白区春日井市小牧市稲沢市岩倉市清須市北名古屋市あま市西春日井郡豊山町海部郡大治町海部郡蟹江町

    周辺の駅から探す

    関西本線
    名古屋八田春田蟹江永和
    名古屋市鶴舞線
    上小田井庄内緑地公園庄内通浄心浅間町丸の内伏見大須観音上前津
    名古屋市東山線
    岩塚中村公園中村日赤本陣亀島名古屋伏見新栄町

    愛知県名古屋市西区で他のジャンルから探す


    掲載情報の著作権は提供元企業等に帰属します。
    Copyright:(C) 2025 Recruit Co., Ltd.
    アプリで簡単 物件探し 大手不動産サイトの情報から一括検!プッシュ通知で物件を見逃さない
    App Storeからダウンロード Google Playで手に入れよう QRコード