
賃貸マンション
プレサンス ロジェ 名古屋浅間町ザ・レジデンス 浅間町駅 2LDK 賃貸(賃貸マンション・アパート)
| 賃料 |
13.19万円 (管理費等:11190円) |
| 礼金・敷金 |
1ヶ月 / なし |
保証金/敷引・償却 |
なし / - |
| 交通 |
|
| 所在地 |
愛知県名古屋市西区新道1周辺地図
|
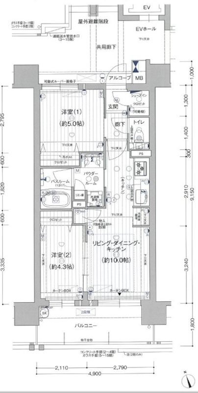
| 間取り |
2LDK |
専有面積 |
45.48m2 |
| 築年月 |
2024年9月 |
築年数 |
築1年4ヶ月 |
- おすすめポイント
- 【見学予約受付中】名古屋駅が徒歩圏内のハイグレード分譲賃貸! 2024年9月完成のシリーズ型分譲賃貸!床暖房やオートバスなど充実の設備となっております♪これからの新生活はハイグレード新築マンションでいかがでしょうか?(≧▽≦)
- お問い合わせ先
- フォーディールーム 名古屋店(株)Four D
- お問い合わせ先
- フォーディールーム 名古屋店(株)Four D
| 賃料 |
13.19万円 |
管理費等 |
11190円 |
| 敷金 |
なし |
礼金 |
1ヶ月 |
| 保証金 |
なし |
敷引・償却 |
- |
| 更新料 |
- |
契約期間 |
|
| カード決済 |
初期費用カード決済可 |
| 所在地 |
愛知県名古屋市西区新道1周辺地図
|
| 交通 |
- 地下鉄鶴舞線 浅間町駅 徒歩3分乗換案内
- 地下鉄東山線 名古屋駅 徒歩20分乗換案内
- 地下鉄桜通線 国際センター駅 徒歩18分乗換案内
|
| 建物名 |
プレサンス ロジェ 名古屋浅間町ザ・レジデンス |
| 間取り |
2LDK(洋5 洋4.3 LDK10) |
築年月(築年数) |
2024年9月(築1年4ヶ月)
|
| 専有面積 |
45.48㎡ |
所在階/階数 |
15階/15階建
|
| 建物構造 |
RC |
方位 |
南 |
| 現況 |
|
駐車場 |
有 14,000円 |
| 入居可能時期 |
即時 |
住宅保険 |
あり |
| 情報提供元 |
SUUMO[050H100463932917] |
情報公開日 |
|
| 情報更新日 |
|
次回更新予定日 |
随時 |
設備など
| 2階以上 |
○ |
最上階 |
○ |
角部屋 |
○ |
| 駐車場(近隣含) |
○ |
エアコン付き |
- |
バス・トイレ別 |
○ |
| 室内洗濯機置き場 |
○ |
追焚機能 |
○ |
オートロック付き |
○ |
| モニタ付インターホン |
○ |
フローリング |
○ |
バルコニー |
○ |
| ガスコンロ可 |
○ |
浴室乾燥機 |
- |
24時間セキュリティ |
- |
| 宅配ボックス |
○ |
ペット相談可 |
- |
二人入居可 |
○ |
| 設備 |
オートロック・バルコニー・バス・トイレ別・トイレ・収納スペース・洗濯機置場・洗面所・エレベーター・BS端子・追焚機能・フローリング・ウォークインクローゼット・ガスコンロ可・シャンプードレッサ・温水洗浄便座・システムキッチン・モニタ付インターホン・宅配BOX・駐輪場・風呂・クローゼット・トランクルーム・床暖房・都市ガス・浴トイレ別・防犯カメラ・オートバス・洗面所独立・コンロ2口以上・シューズボックス・インターネット無料・インターネット対応・室内洗濯機置き場 |
| リフォーム履歴 |
- |
| リノベーション履歴 |
- |
| 備考 |
損保要/鍵交換代 35200円/保証会社利用必:初回保証料:50% 月額:1.5%/普通借家01年/単身者可/二人入居可/楽器相談/バストイレ別/バルコニー/ガスコンロ対応/フローリング/シャワー付洗面台/TVインターホン/オートロック/室内洗濯置/シューズボックス/システムキッチン/南向き/追焚機能浴室/温水洗浄便座/エレベーター/洗面所独立/洗面化粧台/駐輪場/宅配ボックス/光ファイバー/外壁タイル張り/即入居可/3口以上コンロ/防犯カメラ/分譲賃貸/オートバス/全居室洋室/ウォークインクロゼット/保証人不要/南西角住戸/全居室フローリング/デザイナーズ/ネット専用回線/駅まで平坦/ネット使用料不要/床暖房/トランクルーム/ダブルロックキー/築2年以内/楽器相談/平坦地/南面リビング/エレベーター2基/耐火構造/耐震構造/3駅以上利用可/3沿線以上利用可/駅前/駅徒歩5分以内/24時間ゴミ出し可/敷地内ごみ置き場/都市ガス/洗面所にドア/三面鏡付洗面化粧台/縦型照明付洗面化粧台/南面バルコニー/BS/高速ネット対応/LAN/IT重説 対応物件/初期費用カード決済可/ファミリーマート 名古屋浅間町店(コンビニ)まで375m/ユタカ薬局 押切(ドラッグストア)まで414m/セブンイレブン 名古屋浅間町店(コンビニ)まで383m/ローソンストア100 LS浅間町店(スーパー)まで333m/名古屋押切郵便局(郵便局)まで424m/FEEL(フィール) 花の木店(スーパー)まで615m |
| 特記事項 |
楽器相談・二人入居可・分譲タイプ・角部屋・外観タイル張り・最上階・デザイナーズ物件・保証人不要/代行 ・初期費用カード決済可 |
愛知県名古屋市西区新道1 周辺地図情報
※地図上に表示される物件の位置は付近住所に所在することを表すものであり、実際の物件所在地とは異なる場合がございます。
正確な物件所在地は、取扱い不動産会社にお問い合わせください。
- お問い合わせ先
- フォーディールーム 名古屋店(株)Four D
不動産会社情報
| お問い合わせ先 |
商号:フォーディールーム 名古屋店(株)Four D 免許番号:国土交通大臣(1)第10082号 所在地:愛知県名古屋市中村区名駅4-5-26ユニモール桜ビル5階 TEL:052-583-5610 取引態様:仲介 管理コード:0000054252 所属協会など: 東海不動産公正取引協議会加盟、(公社)全日本不動産協会愛知県本部会員
|
共有する |
|
- お問い合わせ先
- フォーディールーム 名古屋店(株)Four D
人口などの統計情報
| 世帯数 |
1119847世帯 |
| 人口総数 |
2297745人 |
| 転入者数 |
168667人
- 転入率(人口1000人当たり)
- 73.41人
|
| 転出者数 |
154544人
- 転出率(人口1000人当たり)
- 67.26人
|
| 土地平均価格 |
- 住宅地
- 223115円/m2
- 商業地
- 1106619円/m2
|
結婚・育児の助成金
| 子育て関連の独自の取り組み |
(1)なごや子育てアプリ「NAGOMii(なごみー)」による子育て支援情報の提供。(2)子育て家庭優待カード「ぴよか」の交付。(3)子どもを出産、育児する家庭に5万ポイント(5万円相当)分のカタログギフトを進呈する、ナゴヤわくわくプレゼント事業の実施。 |
| 出産祝い |
あり |
| 公立保育所数 |
84所(うち0歳児保育を実施している保育所:84所) |
| 私立保育所数 |
367所(うち0歳児保育を実施している保育所:365所) |
| 保育所入所待機児童数 |
0人 |
| 認定こども園数 |
107園 |
預かり保育実施園数 |
公立:20園 私立:- |
| 学校給食 |
【小学校】完全給食【中学校】家庭弁当等との選択制/デリバリー形式[運搬:食缶等、内容:完全給食(献立選択制)] |
| 公立中学校の学校選択制 |
未実施 |
| 子ども・学生等医療費助成<通院>対象年齢 |
18歳3月末まで |
子ども・学生等医療費助成<入院>対象年齢 |
18歳3月末まで |
名古屋市西区の治安・ごみ収集情報
公共料金・インフラ
| ガス料金(22m3使用した場合の月額) |
東邦瓦斯株式会社5307円 |
| 水道料金(口径20mmで20m3の月額) |
名古屋市2915円 |
| 下水道料金(20m3を使用した場合の月額) |
名古屋市1804円 |
| 下水道普及率 |
99.4% |
安心・安全
| 建物火災出火件数 |
355件
- 人口10000人当たり
- 1.52件
|
| 刑法犯認知件数 |
19857件
- 人口1000人当たり
- 8.51件
|
| ハザード・防災マップ |
あり |
医療
| 一般病院総数 |
110ヶ所 |
| 一般診療所総数 |
2272ヶ所 |
| 小児科医師数 |
770人
- 小児人口10000人当たり
- 28.40人
|
| 産婦人科医師数 |
319人
- 15~49歳女性人口1万人当たり
- 6.72人
|
| 介護保険料基準額(月額) |
6951円 |
ごみ
| 家庭ごみ収集(可燃ごみ) |
無料
|
| 家庭ごみの分別方式 |
5分別9種〔可燃ごみ 不燃ごみ 発火性危険物 電池類 資源(プラスチック資源、紙製容器包装・雑がみ、ペットボトル、空きびん、空き缶)〕 拠点回収:資源(ペットボトル 紙パック 食用油 小型家電 充電式家電 蛍光管・水銀体温計・水銀温度計) |
| 家庭ごみの戸別収集 |
実施(可燃ごみ、不燃ごみ、発火性危険物、電池類、プラスチック資源のみ。紙製容器包装・雑がみ、ペットボトル、空きびん、空き缶はステーション収集) |
| 粗大ごみ収集 |
あり
|
| 生ごみ処理機助成金制度 |
なし
- 上限金額
- -
- 上限比率
- -
|
※行政機関により公表していない地域及びデータがございます。東京23区以外の政令指定都市は、市全体のデータとして表示しています。
※提供データには細心の注意を払っておりますが、調査後に変更がある場合があります。 最新の情報につきましては各市区役所までお問い合わせいただくか、自治体HPなどをご確認ください。
名古屋市西区の暮らしデータをもっと見る