アプリで簡単 物件探し 通知 共有 アプリならではの機能を使ってみる
賃貸マンション

グランドメゾン池下ザ・タワー 池下駅 3LDK 賃貸(賃貸マンション・アパート)

情報提供元
SUUMO
グランドメゾン池下ザ・タワー
賃料 26万円  (管理費等:25000円)
礼金・敷金 2ヶ月 / 1ヶ月 保証金/敷引・償却 なし / -
交通
所在地 愛知県名古屋市千種区池下町2周辺地図
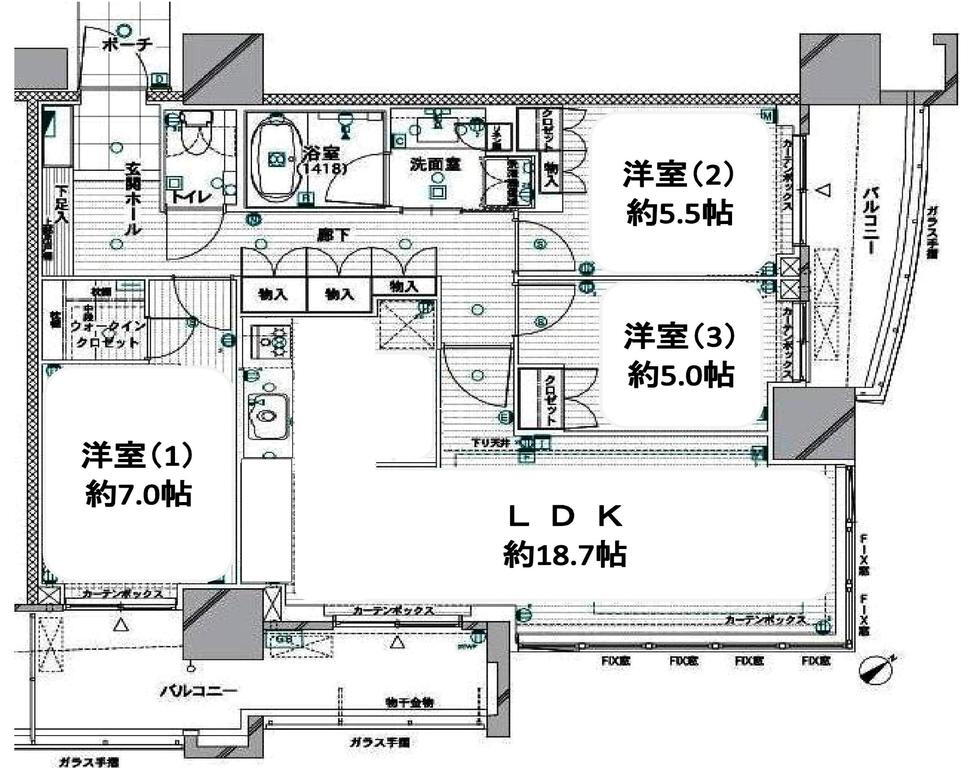
間取り 3LDK 専有面積 81.55m2
築年月 2014年1月 築年数 築11年10ヶ月
おすすめポイント
地上42階建のタワーマンションの賃貸物件になります。 地下鉄東山線「池下駅」直結。区役所、警察署、スーパー、ドラッグストア等生活施設が徒歩5分以内にあります。ぜひ、利便性を体感して下さい。
お問い合わせ先
積和レント(株)シャーメゾンショップ名駅店
お問い合わせ先
積和レント(株)シャーメゾンショップ名駅店

詳細情報

賃料 26万円 管理費等 25000円
敷金 1ヶ月 礼金 2ヶ月
保証金 なし 敷引・償却 -
更新料 - 契約期間
カード決済 -
所在地 愛知県名古屋市千種区池下町2周辺地図
交通
建物名 グランドメゾン池下ザ・タワー 
間取り 3LDK(洋7 洋5.5 洋5 LDK18.7) 築年月(築年数) 2014年1月(築11年10ヶ月)
専有面積 81.55㎡ 所在階/階数 3階/地上42階地下1階建
建物構造 RC  方位 南東 
現況   駐車場 無    近くの駐車場を探す
入居可能時期 2025年11月下旬 住宅保険 あり 2年 30800円
情報提供元 SUUMO[050H100227523952] 情報公開日
情報更新日 次回更新予定日 随時

設備など

2階以上 最上階 - 角部屋
駐車場(近隣含) - エアコン付き - バス・トイレ別
室内洗濯機置き場 追焚機能 オートロック付き
モニタ付インターホン フローリング バルコニー
ガスコンロ可 浴室乾燥機 24時間セキュリティ -
宅配ボックス ペット相談可 二人入居可 -
設備 オートロック・バルコニー・バス・トイレ別・トイレ・収納スペース・洗濯機置場・管理人常駐・洗面所・エレベーター・CATV・BS端子・追焚機能・管理人日勤・フローリング・浴室乾燥機・ウォークインクローゼット・照明器具・ガスコンロ可・温水洗浄便座・システムキッチン・モニタ付インターホン・宅配BOX・駐輪場・風呂・クローゼット・CS・床暖房・衣類乾燥機・食器洗浄乾燥機・ディスポーザー・都市ガス・食器乾燥機・複層ガラス・ディンプルキー・浴トイレ別・防犯カメラ・オートバス・洗面所独立・コンロ2口以上・シューズボックス・インターネット無料・インターネット対応・室内洗濯機置き場 
リフォーム履歴 -
リノベーション履歴 -
備考 ペット飼育の場合敷金2ヶ月(総額)/シャーメゾンサポート24:1320円 更新料:0,5ヵ月/保証会社利用可:<個人契約>  積水ハウス不動産パートナーズ・契約時事務手数料33,000円が必要です。  また、保証料が毎月、月額総支払額の2%相当額、必要です。  <法人契約>は別条件。/仲介手数料1.1ヶ月/ペット相談/事務所利用不可/積水ハウス施工/バストイレ別/バルコニー/クロゼット/フローリング/TVインターホン/浴室乾燥機/オートロック/室内洗濯置/陽当り良好/シューズボックス/システムキッチン/追焚機能浴室/角住戸/温水洗浄便座/エレベーター/洗面所独立/駐輪場/宅配ボックス/CATV/外壁タイル張り/2面採光/BS・CS/3口以上コンロ/防犯カメラ/ペット相談/照明付/24時間有人管理/分譲賃貸/オートバス/グリル付/全居室洋室/ウォークインクロゼット/全居室フローリング/2沿線利用可/ディンプルキー/ネット使用料不要/床暖房/食器洗乾燥機/眺望良好/ダブルロックキー/ディスポーザー/24時間換気システム/複層ガラス/フロントサービス/人感照明センサー/エレベーター2基/3駅以上利用可/駅徒歩5分以内/タワー型マンション/24時間ゴミ出し可/敷地内ごみ置き場/ガラストップコンロ/都市ガス/三面鏡付洗面化粧台/高速ネット対応/通風良好/通勤管理/パレマルシェ池下店まで505m/ローソン名古屋地下鉄池下駅店まで194m/パレマルシェ池下店(スーパー)まで505m/成城石井名古屋セントラルガーデン店(スーパー)まで628m/ドラッグユタカ池下店(ドラッグストア)まで253m/覚王山フランテ(スーパー)まで816m/名古屋市千種区役所(役所)まで497m/千種警察署(警察署・交番)まで352m 
特記事項 ペット相談可・分譲タイプ・角部屋・外観タイル張り・管理人常駐・管理人日勤・日当り良好

省エネ性能

エネルギー消費性能 -
断熱性能 -
目安光熱費 -

愛知県名古屋市千種区池下町2 周辺地図情報

地図
※地図上に表示される物件の位置は付近住所に所在することを表すものであり、実際の物件所在地とは異なる場合がございます。
   正確な物件所在地は、取扱い不動産会社にお問い合わせください。
お問い合わせ先
積和レント(株)シャーメゾンショップ名駅店

不動産会社情報

お問い合わせ先 商号:積和レント(株)シャーメゾンショップ名駅店
免許番号:国土交通大臣(1)第10668号
所在地:愛知県名古屋市中村区名駅4-24-16 広小路ガーデンアベニュー1階
TEL:0120-721037
取引態様:仲介
管理コード:
所属協会など: 東海不動産公正取引協議会加盟、(公社)愛知県宅地建物取引業協会会員
共有する
QRコード
お問い合わせ先
積和レント(株)シャーメゾンショップ名駅店

名古屋市千種区の暮らしデータ

人口などの統計情報

世帯数 1119847世帯
人口総数 2297745人
転入者数 168667人
転入率(人口1000人当たり)
73.41人
転出者数 154544人
転出率(人口1000人当たり)
67.26人
土地平均価格
住宅地
223115円/m2
商業地
1106619円/m2

結婚・育児の助成金

子育て関連の独自の取り組み (1)なごや子育てアプリ「NAGOMii(なごみー)」による子育て支援情報の提供。(2)子育て家庭優待カード「ぴよか」の交付。(3)子どもを出産、育児する家庭に5万ポイント(5万円相当)分のカタログギフトを進呈する、ナゴヤわくわくプレゼント事業の実施。
出産祝い あり
公立保育所数 84所(うち0歳児保育を実施している保育所:84所)
私立保育所数 367所(うち0歳児保育を実施している保育所:365所)
保育所入所待機児童数 0人
認定こども園数 107園 預かり保育実施園数 公立:20園 私立:-
学校給食 【小学校】完全給食【中学校】家庭弁当等との選択制/デリバリー形式[運搬:食缶等、内容:完全給食(献立選択制)]
公立中学校の学校選択制 未実施
子ども・学生等医療費助成<通院>対象年齢 18歳3月末まで 子ども・学生等医療費助成<入院>対象年齢 18歳3月末まで

名古屋市千種区の治安・ごみ収集情報

公共料金・インフラ

ガス料金(22m3使用した場合の月額) 東邦瓦斯株式会社5307円
水道料金(口径20mmで20m3の月額) 名古屋市2915円
下水道料金(20m3を使用した場合の月額) 名古屋市1804円
下水道普及率 99.4%

安心・安全

建物火災出火件数 355件
人口10000人当たり
1.52件
刑法犯認知件数 19857件
人口1000人当たり
8.51件
ハザード・防災マップ あり

医療

一般病院総数 110ヶ所
一般診療所総数 2272ヶ所
小児科医師数 770人
小児人口10000人当たり
28.40人
産婦人科医師数 319人
15~49歳女性人口1万人当たり
6.72人
介護保険料基準額(月額) 6951円

ごみ

家庭ごみ収集(可燃ごみ) 無料
備考
指定ごみ袋制だが、袋代にごみ収集・処理料金等を含まず。
家庭ごみの分別方式 5分別9種〔可燃ごみ 不燃ごみ 発火性危険物 電池類 資源(プラスチック資源、紙製容器包装・雑がみ、ペットボトル、空きびん、空き缶)〕 拠点回収:資源(ペットボトル 紙パック 食用油 小型家電 充電式家電 蛍光管・水銀体温計・水銀温度計)
家庭ごみの戸別収集 実施(可燃ごみ、不燃ごみ、発火性危険物、電池類、プラスチック資源のみ。紙製容器包装・雑がみ、ペットボトル、空きびん、空き缶はステーション収集)
粗大ごみ収集 あり
備考
有料。各戸収集。事前申込制。月1回収集で手数料(品目ごとに250円、500円、1,000円、1,500円)が必要。粗大ごみ受付センターにインターネットもしくは電話にて申し込み。
生ごみ処理機助成金制度 なし
上限金額
-
上限比率
-
暮らしデータ提供元:生活ガイド.com
※行政機関により公表していない地域及びデータがございます。東京23区以外の政令指定都市は、市全体のデータとして表示しています。
※提供データには細心の注意を払っておりますが、調査後に変更がある場合があります。 最新の情報につきましては各市区役所までお問い合わせいただくか、自治体HPなどをご確認ください。
OCN×ドコモ光新規お申込みで合計最大137,280円相当おトク!特典の内訳・適用条件など詳細はこちら

名古屋市千種区内の各駅の住みやすさ

他のエリアから探す

名古屋市千種区の詳細地域から賃貸物件を探す

青柳町赤坂町揚羽町朝岡町池上町池下池下町池園町猪高町大字猪子石稲舟通井上町今池今池南上野内山大久手町大島町丘上町御棚町鏡池通覚王山通霞ケ丘香流橋鹿子町鹿子殿萱場唐山町川崎町観月町神田町菊坂町北千種希望ケ丘京命清住町桐林町楠元町幸川町向陽向陽町古出来小松町桜が丘山門町下方町松軒松竹町汁谷町城木町城山新町城山町新池町新栄新西振甫町自由ケ丘末盛通清明山園山町高見竹越田代町田代本通谷口町千種千種通茶屋が坂茶屋坂通千代が丘千代田橋月ケ丘月見坂町天満通東明町徳川山町仲田鍋屋上野町南明町西崎町西山元町日進通猫洞通萩岡町橋本町春岡春岡通春里町光が丘東千種台東山通東山元町日岡町姫池通日和町吹上富士見台法王町豊年町星ケ丘星が丘元町星が丘山手穂波町堀割町本山町丸山町御影町見附町南ケ丘宮根台宮の腰町山添町四谷通若水

近辺の市区から探す

名古屋市東区名古屋市北区名古屋市西区名古屋市中村区名古屋市中区名古屋市昭和区名古屋市瑞穂区名古屋市熱田区名古屋市中川区名古屋市港区名古屋市南区名古屋市守山区名古屋市緑区名古屋市名東区名古屋市天白区春日井市尾張旭市日進市清須市北名古屋市長久手市愛知郡東郷町西春日井郡豊山町海部郡大治町

周辺の駅から探す

名古屋市東山線
新栄町千種今池池下覚王山本山東山公園星ヶ丘

掲載情報の著作権は提供元企業等に帰属します。
Copyright:(C) 2025 Recruit Co., Ltd.
アプリで簡単 物件探し 大手不動産サイトの情報から一括検!プッシュ通知で物件を見逃さない
App Storeからダウンロード Google Playで手に入れよう QRコード