
賃貸マンション
クラシアム神奈川台場 東神奈川駅 3LDK 賃貸(賃貸マンション・アパート)
| 賃料 |
25.1万円 (管理費等:18000円) |
| 礼金・敷金 |
25.1万円 / 25.1万円 |
保証金/敷引・償却 |
なし / - |
| 交通 |
|
| 所在地 |
神奈川県横浜市神奈川区神奈川1周辺地図
|
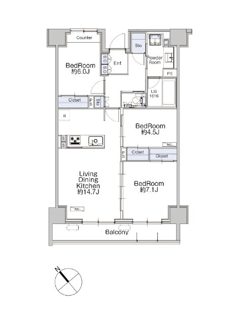
| 間取り |
3LDK |
専有面積 |
74.03m2 |
| 築年月 |
2026年3月 |
築年数 |
新築 |
- おすすめポイント
- 【新築】フリーレント1ヶ月、横浜ベイサイドエリアを生活圏に! ピタットハウス専任物件!内覧可能は2025年12月頃を予定。3駅4路線利用可能!出張・帰省など新幹線や羽田空港へのアクセスも便利な立地。みなとみらいエリアへは自転車で約15分!
- お問い合わせ先
- スターツピタットハウス(株)本店営業部リーシング営業課
- お問い合わせ先
- スターツピタットハウス(株)本店営業部リーシング営業課
| 賃料 |
25.1万円 |
管理費等 |
18000円 |
| 敷金 |
25.1万円 |
礼金 |
25.1万円 |
| 保証金 |
なし |
敷引・償却 |
- |
| 更新料 |
- |
契約期間 |
|
| カード決済 |
- |
| 所在地 |
神奈川県横浜市神奈川区神奈川1周辺地図
|
| 交通 |
- JR京浜東北線 東神奈川駅 徒歩10分乗換案内
- 京急本線 京急東神奈川駅 徒歩9分乗換案内
- JR東海道本線 横浜駅 徒歩16分乗換案内
|
| 建物名 |
クラシアム神奈川台場 |
| 間取り |
3LDK |
築年月(築年数) |
2026年3月
新築 |
| 専有面積 |
74.03㎡ |
所在階/階数 |
6階/7階建
|
| 建物構造 |
RC |
方位 |
南西 |
| 現況 |
|
駐車場 |
有 25,300円 |
| 入居可能時期 |
2026年3月中旬 |
住宅保険 |
あり 2年 20000円 |
| 情報提供元 |
SUUMO[030H100472783232] |
情報公開日 |
|
| 情報更新日 |
|
次回更新予定日 |
随時 |
設備など
| 2階以上 |
○ |
最上階 |
- |
角部屋 |
- |
| 駐車場(近隣含) |
○ |
エアコン付き |
○ |
バス・トイレ別 |
○ |
| 室内洗濯機置き場 |
○ |
追焚機能 |
○ |
オートロック付き |
○ |
| モニタ付インターホン |
○ |
フローリング |
- |
バルコニー |
○ |
| ガスコンロ可 |
- |
浴室乾燥機 |
○ |
24時間セキュリティ |
- |
| 宅配ボックス |
○ |
ペット相談可 |
- |
二人入居可 |
- |
| 設備 |
冷房・暖房・エアコン・オートロック・バルコニー・バス・トイレ別・トイレ・収納スペース・洗濯機置場・洗面所・エレベーター・CATV・BS端子・追焚機能・浴室乾燥機・シャンプードレッサ・温水洗浄便座・システムキッチン・モニタ付インターホン・宅配BOX・駐輪場・風呂・クローゼット・CS・衣類乾燥機・カードキー・都市ガス・浴トイレ別・防犯カメラ・洗面所独立・バイク置き場・コンロ2口以上・シューズボックス・インターネット無料・インターネット対応・室内洗濯機置き場 |
| リフォーム履歴 |
- |
| リノベーション履歴 |
- |
| 備考 |
鍵交換費用1.76万円/バイク置場代5500円/駐輪場代550円/保証会社利用必:VIEW家賃保証プラス 【カード払い】初回保証料:月額総支払額の10%、月額保証料:月額総支払額の1.25%、年間保証料:10,000円【口座振替】初回保証料:月額総支払額の50%、年間保証料:10,000円/事務所利用不可/短期解約違約金ありフリーレント1ヶ月/機械式駐/インターネット無料(Wi-Fi対応)NTTフレッツ光。駐車場:25,300円~(消費税込)2年契約、その他初期費用有/バイク置き場:5,500円(消費税込)1年契約、その他初期費用有/駐輪場:550円・先着順(台数制限有)、その他初期費用有※駐車場・バイク置場・駐輪場の金額、サイズ等についてはピタットハウスへご連絡下さい。個人契約時:VIEW家賃保証プラス利用必須/バストイレ別/バルコニー/エアコン/クロゼット/シャワー付洗面台/TVインターホン/浴室乾燥機/オートロック/室内洗濯置/シューズボックス/システムキッチン/追焚機能浴室/温水洗浄便座/エレベーター/洗面所独立/駐輪場/宅配ボックス/CATV/閑静な住宅地/3口以上コンロ/防犯カメラ/全居室収納/全居室洋室/保証人不要/バイク置場/カードキー/エアコン2台/CS/ネット使用料不要/フリーレント/築2年以内/24時間換気システム/エレベーター2基/3沿線以上利用可/駅徒歩10分以内/省エネルギー対策/敷地内ごみ置き場/南西向き/都市ガス/室内物干機/BS/IT重説 対応物件/まいばすけっと神奈川2丁目店(スーパー)まで121m/ファミリーマート横浜青木町店(コンビニ)まで317m/神奈川公園(公園)まで496m/横浜ベイクォーター(その他)まで1130m/そごう横浜店(ショッピングセンター)まで1350m/横浜市神奈川区役所(役所)まで746m/賃貸戸数:121戸 |
| 特記事項 |
フリーレント・閑静な住宅街・保証人不要/代行 |
神奈川県横浜市神奈川区神奈川1 周辺地図情報
※地図上に表示される物件の位置は付近住所に所在することを表すものであり、実際の物件所在地とは異なる場合がございます。
正確な物件所在地は、取扱い不動産会社にお問い合わせください。
- お問い合わせ先
- スターツピタットハウス(株)本店営業部リーシング営業課
不動産会社情報
| お問い合わせ先 |
商号:スターツピタットハウス(株)本店営業部リーシング営業課 免許番号:国土交通大臣(4)第7129号 所在地:東京都中央区日本橋3-1-8 TEL:03-6202-0140 取引態様:仲介 管理コード:11639187-2000 所属協会など:(公社)首都圏不動産公正取引協議会加盟、(一社)全国住宅産業協会会員
|
共有する |
|
- お問い合わせ先
- スターツピタットハウス(株)本店営業部リーシング営業課
人口などの統計情報
| 世帯数 |
1744208世帯 |
| 人口総数 |
3752969人 |
| 転入者数 |
217258人
- 転入率(人口1000人当たり)
- 57.89人
|
| 転出者数 |
201570人
- 転出率(人口1000人当たり)
- 53.71人
|
| 土地平均価格 |
- 住宅地
- 254434円/m2
- 商業地
- 1043863円/m2
|
結婚・育児の助成金
| 子育て関連の独自の取り組み |
横浜市私立幼稚園等預かり保育事業(横浜市が定めた基準(実施日、時間、職員配置等)を満たし、横浜市の認定を受けた幼稚園・認定こども園が実施する事業。市内在住の園児の保護者が就労や病気等で、園の正規教育時間の前後に家庭で保育ができない場合に、利用可能。3歳児~5歳児は無料、満3歳児は(a)私学助成を受ける幼稚園の場合、月額9,000円、(b)新制度に移行した園の場合、0円~9,000円)。 |
| 出産祝い |
あり |
| 公立保育所数 |
56所(うち0歳児保育を実施している保育所:41所) |
| 私立保育所数 |
813所(うち0歳児保育を実施している保育所:716所) |
| 保育所入所待機児童数 |
5人 |
| 認定こども園数 |
70園 |
預かり保育実施園数 |
公立:- 私立:213園 |
| 学校給食 |
【小学校】完全給食【中学校】家庭弁当等・業者弁当との選択制/デリバリー形式[運搬:ランチボックス、内容:完全給食] |
| 公立中学校の学校選択制 |
一部実施(特定地域選択制[特別調整通学区域]) |
| 子ども・学生等医療費助成<通院>対象年齢 |
中学校卒業まで |
子ども・学生等医療費助成<入院>対象年齢 |
中学校卒業まで |
横浜市神奈川区の治安・ごみ収集情報
公共料金・インフラ
| ガス料金(22m3使用した場合の月額) |
東京瓦斯株式会社(東京地区等)3926円 |
| 水道料金(口径20mmで20m3の月額) |
横浜市3017円 |
| 下水道料金(20m3を使用した場合の月額) |
横浜市2035円 |
| 下水道普及率 |
100.0% |
安心・安全
| 建物火災出火件数 |
438件
- 人口10000人当たり
- 1.16件
|
| 刑法犯認知件数 |
16059件
- 人口1000人当たり
- 4.25件
|
| ハザード・防災マップ |
あり |
医療
| 一般病院総数 |
113ヶ所 |
| 一般診療所総数 |
3201ヶ所 |
| 小児科医師数 |
682人
- 小児人口10000人当たり
- 15.98人
|
| 産婦人科医師数 |
346人
- 15~49歳女性人口1万人当たり
- 4.58人
|
| 介護保険料基準額(月額) |
6620円 |
ごみ
| 家庭ごみ収集(可燃ごみ) |
無料
|
| 家庭ごみの分別方式 |
7分別9種〔燃やすごみ 燃えないごみ スプレー缶 乾電池 プラスチック製容器包装 缶・びん・ペットボトル(缶、びん、ペットボトル) 小さな金属類〕 |
| 家庭ごみの戸別収集 |
一部実施(【ふれあい収集】家庭ごみ・粗大ごみを集積場所まで持ち出すことができない高齢者や障害のある方などを対象にごみ出しの支援を実施。【狭あい道路収集】道路が狭く収集車が通行することができないため、集積場所が自宅近くに設けられない地域において、軽四輪車でごみを収集) |
| 粗大ごみ収集 |
あり
|
| 生ごみ処理機助成金制度 |
なし
- 上限金額
- -
- 上限比率
- -
|
※行政機関により公表していない地域及びデータがございます。東京23区以外の政令指定都市は、市全体のデータとして表示しています。
※提供データには細心の注意を払っておりますが、調査後に変更がある場合があります。 最新の情報につきましては各市区役所までお問い合わせいただくか、自治体HPなどをご確認ください。
横浜市神奈川区の暮らしデータをもっと見る