アプリで簡単 物件探し 通知 共有 アプリならではの機能を使ってみる
賃貸マンション

アウルタワー 東池袋駅 1LDK 賃貸(賃貸マンション・アパート)

情報提供元
SUUMO
アウルタワー ☆綺麗な外観☆
賃料 26.5万円  (管理費等:15000円)
礼金・敷金 1ヶ月 / 2ヶ月 保証金/敷引・償却 なし / -
交通
所在地 東京都豊島区東池袋4周辺地図
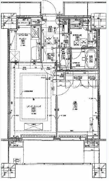
間取り 1LDK 専有面積 48.6m2
築年月 2011年1月 築年数 築14年12ヶ月
おすすめポイント
期間限定★Xmasフェア実施中!仲介手数料は賃料の半額です♪ 【条件交渉強化月間★見学予約受付中♪】担当スタッフがご希望条件をひとつずつ確認しながら街の雰囲気や交通の便などを安心感ある形でご説明いたします!見積もり無料・クレカ決済可☆お気軽にお問い合わせ下さい♪
お問い合わせ先
(株)アブレイズ・コーポレーション池袋駅前支店
お問い合わせ先
(株)アブレイズ・コーポレーション池袋駅前支店

詳細情報

賃料 26.5万円 管理費等 15000円
敷金 2ヶ月 礼金 1ヶ月
保証金 なし 敷引・償却 -
更新料 - 契約期間
カード決済 初期費用カード決済可
所在地 東京都豊島区東池袋4周辺地図
交通
  • 東京メトロ有楽町線 東池袋駅 徒歩2分乗換案内
  • JR山手線 池袋駅 徒歩9分乗換案内
  • 都電荒川線 都電雑司ヶ谷駅 徒歩7分乗換案内
建物名 アウルタワー 
間取り 1LDK(洋6.4 LD9.7K3.4) 築年月(築年数) 2011年1月(築14年12ヶ月)
専有面積 48.6㎡ 所在階/階数 23階/地上52階地下2階建
建物構造 RC  方位 南西 
現況   駐車場 無    近くの駐車場を探す
入居可能時期 即時 住宅保険 あり 2年 20000円
情報提供元 SUUMO[030H100475776746] 情報公開日
情報更新日 次回更新予定日 随時

設備など

2階以上 最上階 - 角部屋 -
駐車場(近隣含) - エアコン付き バス・トイレ別
室内洗濯機置き場 追焚機能 オートロック付き
モニタ付インターホン フローリング バルコニー
ガスコンロ可 浴室乾燥機 24時間セキュリティ -
宅配ボックス ペット相談可 - 二人入居可
設備 冷房・暖房・エアコン・オートロック・バルコニー・バス・トイレ別・トイレ・収納スペース・洗濯機置場・洗面所・エレベーター・追焚機能・フローリング・浴室乾燥機・ガスコンロ可・温水洗浄便座・システムキッチン・モニタ付インターホン・宅配BOX・駐輪場・風呂・クローゼット・床暖房・衣類乾燥機・ディスポーザー・都市ガス・浴トイレ別・オートバス・洗面所独立・バイク置き場・コンロ2口以上・シューズボックス・インターネット対応・室内洗濯機置き場 
リフォーム履歴 -
リノベーション履歴 -
備考 更新料 新賃料1.00ヶ月分 月額手数料 月額330円/保証会社利用必:初回:賃料等の50パーセント 更新:1万円/年/仲介手数料0.550ヶ月/普通借家02年0ヶ月/二人入居可/◆初期費用に関してはクレジット決済も可能です。初期費用全額からご指定の一部まで選択してご利用できます。詳細についてはお気軽にご質問ください♪ ◆お見積りは無料で承っております。お問い合わせ時にお気軽にご依頼下さい♪ ◆オンラインでご相談・ご見学・ご契約まで可能です♪ ◆ご質問・ご要望等に関しては、その他の問合せからお気軽にご相談下さい! ※退去時清掃代あり ※短期違約金あり/バストイレ別/バルコニー/エアコン/ガスコンロ対応/クロゼット/フローリング/TVインターホン/浴室乾燥機/オートロック/室内洗濯置/陽当り良好/シューズボックス/システムキッチン/追焚機能浴室/温水洗浄便座/脱衣所/エレベーター/洗面所独立/洗面化粧台/駐輪場/宅配ボックス/光ファイバー/外壁タイル張り/即入居可/3口以上コンロ/独立型キッチン/全居室収納/分譲賃貸/オートバス/グリル付/全居室洋室/保証人不要/単身者相談/二人入居相談/バイク置場/全居室フローリング/仲手0.55ヶ月/ネット専用回線/敷金2ヶ月/床暖房/眺望良好/全室南向き/ディスポーザー/南面リビング/耐火構造/耐震構造/3駅以上利用可/3沿線以上利用可/駅徒歩5分以内/タワー型マンション/高層階/敷地内ごみ置き場/南西向き/都市ガス/洗面所にドア/南面バルコニー/礼金1ヶ月/保証会社利用可/IT重説 対応物件/初期費用カード決済可/巡回管理/サンシャイン 西友店(スーパー)まで161m/豊島区立中央図書館(図書館)まで136m/フレッシュネスバーガー 東池袋店(飲食店)まで191m/サンシャイン水族館(その他)まで453m/セブンイレブン豊島東池袋5丁目店(コンビニ)まで448m/トモズ 東池袋店(ドラッグストア)まで603m/賃貸戸数:638戸 
特記事項 二人入居可・分譲タイプ・外観タイル張り・管理人巡回・日当り良好・保証人不要/代行 ・初期費用カード決済可

省エネ性能

エネルギー消費性能 -
断熱性能 -
目安光熱費 -

東京都豊島区東池袋4 周辺地図情報

地図
※地図上に表示される物件の位置は付近住所に所在することを表すものであり、実際の物件所在地とは異なる場合がございます。
   正確な物件所在地は、取扱い不動産会社にお問い合わせください。
お問い合わせ先
(株)アブレイズ・コーポレーション池袋駅前支店

不動産会社情報

お問い合わせ先 商号:(株)アブレイズ・コーポレーション池袋駅前支店
免許番号:東京都知事(4)第90182号
所在地:東京都豊島区南池袋1-22-5 鈴木ビル7階
TEL:03-5928-0388
取引態様:仲介
管理コード:099-0992-C-099
所属協会など:(公社)首都圏不動産公正取引協議会加盟、(公社)全日本不動産協会東京都本部会員
共有する
QRコード
お問い合わせ先
(株)アブレイズ・コーポレーション池袋駅前支店

    豊島区の暮らしデータ

    人口などの統計情報

    世帯数 183687世帯
    人口総数 291650人
    転入者数 35939人
    転入率(人口1000人当たり)
    123.23人
    転出者数 30649人
    転出率(人口1000人当たり)
    105.09人
    土地平均価格
    住宅地
    783000円/m2
    商業地
    2992846円/m2

    結婚・育児の助成金

    子育て関連の独自の取り組み (1)としまもっと見る知る(アプリ)による出産子育て情報の提供。(2)ゆりかご・としま事業等実施。(3)生涯学習保育者登録制度(区民グループの学習活動中の保育者派遣)。(4)地域がつながるプロジェクト。(5)妊産婦歯科健診、1歳児歯科健診・総合相談の実施。(6)月齢4ヶ月から11ヶ月のお子さんを養育する世帯に訪問し状況を伺い育児支援品に引き換えできる電子クーポンを訪問1回につき3,000円相当を配付。(7)妊娠期からの男性育児支援。(8)一時保育事業において2回目以降の予約申し込みの際はWEB申し込み可。(9)東部・西部子ども家庭支援センターの幼児が使用したおむつを圧縮ラミネートにより無菌状態で回収。
    出産祝い あり
    公立保育所数 18所(うち0歳児保育を実施している保育所:18所)
    私立保育所数 75所(うち0歳児保育を実施している保育所:65所)
    保育所入所待機児童数 0人
    認定こども園数 1園 預かり保育実施園数 公立:3園 私立:14園
    学校給食 【小学校】完全給食【中学校】完全給食
    公立中学校の学校選択制 実施(新入学時のみ[隣接区域選択制])
    子ども・学生等医療費助成<通院>対象年齢 18歳3月末まで 子ども・学生等医療費助成<入院>対象年齢 18歳3月末まで

    豊島区の治安・ごみ収集情報

    公共料金・インフラ

    ガス料金(22m3使用した場合の月額) 東京瓦斯株式会社(東京地区等)3926円
    水道料金(口径20mmで20m3の月額) 東京都水道局2816円
    下水道料金(20m3を使用した場合の月額) 東京都下水道局2068円
    下水道普及率 100.0%

    安心・安全

    建物火災出火件数 78件
    人口10000人当たり
    2.59件
    刑法犯認知件数 3405件
    人口1000人当たり
    11.29件
    ハザード・防災マップ あり

    医療

    一般病院総数 14ヶ所
    一般診療所総数 509ヶ所
    小児科医師数 86人
    小児人口10000人当たり
    32.96人
    産婦人科医師数 35人
    15~49歳女性人口1万人当たり
    4.75人
    介護保険料基準額(月額) 6200円

    ごみ

    家庭ごみ収集(可燃ごみ) 無料
    備考
    一度に大量のごみを出す場合(45リットルの袋で4袋以上)は有料。
    家庭ごみの分別方式 3分別13種〔燃やすごみ 金属・陶器・ガラスごみ 資源1(紙布類[新聞、雑誌、段ボール、厚紙製の箱、包装紙、牛乳パック、古布]、びん・かん・ペットボトル、プラスチック)〕 拠点回収:小型家電 蛍光灯 乾電池 廃食油
    家庭ごみの戸別収集 一部実施(高齢者、障害者等の世帯で、自力でごみを集積所まで出すことが困難であり、身近な人の協力を得ることができない世帯に訪問収集を実施)
    粗大ごみ収集 あり
    備考
    有料。事前申込制。
    生ごみ処理機助成金制度 あり
    上限金額
    20000円
    上限比率
    50.0%
    暮らしデータ提供元:生活ガイド.com
    ※行政機関により公表していない地域及びデータがございます。東京23区以外の政令指定都市は、市全体のデータとして表示しています。
    ※提供データには細心の注意を払っておりますが、調査後に変更がある場合があります。 最新の情報につきましては各市区役所までお問い合わせいただくか、自治体HPなどをご確認ください。
    OCN×ドコモ光新規お申込みで合計最大137,280円相当おトク!特典の内訳・適用条件など詳細はこちら

    豊島区内の各駅の住みやすさ

    他のエリアから探す

    豊島区の詳細地域から賃貸物件を探す

    池袋池袋本町要町上池袋北大塚駒込巣鴨千川雑司が谷高田高松千早長崎西池袋西巣鴨東池袋南池袋南大塚南長崎目白

    近辺の市区から探す

    川口市蕨市戸田市和光市千代田区中央区港区新宿区文京区台東区墨田区江東区目黒区世田谷区渋谷区中野区杉並区北区荒川区板橋区練馬区足立区葛飾区

    周辺の駅から探す

    山手線
    新宿新大久保高田馬場目白池袋大塚巣鴨駒込田端
    東京メトロ有楽町線
    小竹向原千川要町池袋東池袋護国寺江戸川橋飯田橋市ケ谷
    都電荒川線
    巣鴨新田大塚駅前向原東池袋四丁目都電雑司ヶ谷鬼子母神前学習院下面影橋早稲田

    マンションライブラリーを見る

    アウルタワー

    東京都豊島区で他のジャンルから探す


    掲載情報の著作権は提供元企業等に帰属します。
    Copyright:(C) 2025 Recruit Co., Ltd.
    アプリで簡単 物件探し 大手不動産サイトの情報から一括検!プッシュ通知で物件を見逃さない
    App Storeからダウンロード Google Playで手に入れよう QRコード