賃貸マンション
東京都中央区八丁堀3 八丁堀駅 2DK 賃貸(賃貸マンション・アパート)
| 賃料 |
33万円 (管理費等:8000円) |
| 礼金・敷金 |
なし / 1ヶ月 |
保証金/敷引・償却 |
なし / - |
| 交通 |
|
| 所在地 |
東京都中央区八丁堀3周辺地図
|
| 間取り |
2DK |
専有面積 |
64.62m2 |
| 築年月 |
2006年2月 |
築年数 |
築19年10ヶ月 |
- おすすめポイント
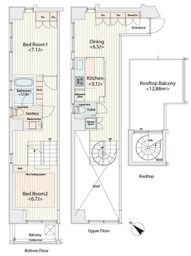
- ◇◆ デザイナーズ賃貸 メゾネット2DK ◇◆ インターネット無料 螺旋階段 ルーフバルコニー
- お問い合わせ先
- (株)CLCコーポレーション人形町店
- お問い合わせ先
- (株)CLCコーポレーション人形町店
| 賃料 |
33万円 |
管理費等 |
8000円 |
| 敷金 |
1ヶ月 |
礼金 |
なし |
| 保証金 |
なし |
敷引・償却 |
- |
| 更新料 |
- |
契約期間 |
|
| カード決済 |
初期費用カード決済可 |
| 所在地 |
東京都中央区八丁堀3周辺地図
|
| 交通 |
- JR京葉線 八丁堀駅 徒歩1分乗換案内
- 都営浅草線 宝町駅 徒歩5分乗換案内
- JR京浜東北線 東京駅 徒歩10分乗換案内
|
| 建物名 |
|
| 間取り |
2DK |
築年月(築年数) |
2006年2月(築19年10ヶ月)
|
| 専有面積 |
64.62㎡ |
所在階/階数 |
9階/10階建
|
| 建物構造 |
RC |
方位 |
北東 |
| 現況 |
|
駐車場 |
無 近くの駐車場を探す
|
| 入居可能時期 |
2026年1月上旬 |
住宅保険 |
あり |
| 情報提供元 |
SUUMO[030H100472157172] |
情報公開日 |
|
| 情報更新日 |
|
次回更新予定日 |
随時 |
設備など
| 2階以上 |
○ |
最上階 |
○ |
角部屋 |
○ |
| 駐車場(近隣含) |
- |
エアコン付き |
○ |
バス・トイレ別 |
○ |
| 室内洗濯機置き場 |
○ |
追焚機能 |
○ |
オートロック付き |
○ |
| モニタ付インターホン |
○ |
フローリング |
○ |
バルコニー |
○ |
| ガスコンロ可 |
○ |
浴室乾燥機 |
○ |
24時間セキュリティ |
- |
| 宅配ボックス |
○ |
ペット相談可 |
- |
二人入居可 |
- |
| 設備 |
冷房・暖房・エアコン・オートロック・バルコニー・バス・トイレ別・トイレ・収納スペース・洗濯機置場・洗面所・エレベーター・BS端子・追焚機能・フローリング・浴室乾燥機・ガスコンロ可・温水洗浄便座・システムキッチン・モニタ付インターホン・宅配BOX・駐輪場・風呂・クローゼット・トイレ2ヶ所・CS・衣類乾燥機・都市ガス・浴トイレ別・防犯カメラ・オートバス・洗面所独立・コンロ2口以上・シューズボックス・インターネット無料・インターネット対応・室内洗濯機置き場 |
| リフォーム履歴 |
- |
| リノベーション履歴 |
- |
| 備考 |
損保要/鍵交換費用 27500円/保証会社利用必:初回保証料として月額総賃料の40% 月額保証料1%/仲介手数料1.1ヶ月/普通借家02年/お気軽にお問い合わせ下さい/バストイレ別/バルコニー/エアコン/ガスコンロ対応/クロゼット/フローリング/TVインターホン/浴室乾燥機/オートロック/室内洗濯置/シューズボックス/システムキッチン/追焚機能浴室/角住戸/温水洗浄便座/脱衣所/エレベーター/洗面所独立/洗面化粧台/駐輪場/宅配ボックス/光ファイバー/外壁タイル張り/礼金不要/2面採光/最上階/BS・CS/3口以上コンロ/防犯カメラ/オートバス/敷金1ヶ月/全居室フローリング/デザイナーズ/玄関ホール/メゾネット/ネット専用回線/駅まで平坦/ネット使用料不要/トイレ2ヶ所/3駅以上利用可/3沿線以上利用可/駅徒歩5分以内/上階無し/敷地内ごみ置き場/都市ガス/洗面所にドア/初期費用カード決済可/通風良好/マルエツプチ 八丁堀店(スーパー)まで269m/miniピアゴ八丁堀1丁目店(スーパー)まで412m/ファミリーマート 八丁堀三丁目店(コンビニ)まで158m/セブンイレブン 八丁堀2丁目店(コンビニ)まで130m/どらっぐ ぱぱす 八丁堀店(ドラッグストア)まで216m/中央八丁堀郵便局(郵便局)まで133m |
| 特記事項 |
メゾネット・角部屋・外観タイル張り・最上階・デザイナーズ物件・初期費用カード決済可 |
東京都中央区八丁堀3 周辺地図情報
※地図上に表示される物件の位置は付近住所に所在することを表すものであり、実際の物件所在地とは異なる場合がございます。
正確な物件所在地は、取扱い不動産会社にお問い合わせください。
- お問い合わせ先
- (株)CLCコーポレーション人形町店
不動産会社情報
| お問い合わせ先 |
商号:(株)CLCコーポレーション人形町店 免許番号:東京都知事(5)第83270号 所在地:東京都中央区日本橋人形町1-16-6 須賀ビル2階 TEL:03-5651-9575 取引態様:仲介 管理コード:ng0000053078 所属協会など:(公社)首都圏不動産公正取引協議会加盟、(公社)全日本不動産協会東京都本部会員
|
共有する |
|
- お問い合わせ先
- (株)CLCコーポレーション人形町店
人口などの統計情報
| 世帯数 |
92487世帯 |
| 人口総数 |
176835人 |
| 転入者数 |
18608人
- 転入率(人口1000人当たり)
- 105.23人
|
| 転出者数 |
16381人
- 転出率(人口1000人当たり)
- 92.63人
|
| 土地平均価格 |
- 住宅地
- 1480000円/m2
- 商業地
- 6484815円/m2
|
結婚・育児の助成金
| 子育て関連の独自の取り組み |
(1)学校給食費の無償化。(2)中央区子どもの学習・生活支援事業(小学校4年生から高校生世代までのお子さんを対象に、無料の学習・生活支援事業の実施)。(3)親子で親しむ浜離宮(子どもと同伴する保護者等の浜離宮の入場料を区が負担)。 |
| 出産祝い |
あり |
| 公立保育所数 |
14所(うち0歳児保育を実施している保育所:14所) |
| 私立保育所数 |
63所(うち0歳児保育を実施している保育所:35所) |
| 保育所入所待機児童数 |
0人 |
| 認定こども園数 |
6園 |
預かり保育実施園数 |
公立:3園 私立:- |
| 学校給食 |
【小学校】完全給食【中学校】完全給食 |
| 公立中学校の学校選択制 |
実施(中学校自由選択制) |
| 子ども・学生等医療費助成<通院>対象年齢 |
18歳3月末まで |
子ども・学生等医療費助成<入院>対象年齢 |
18歳3月末まで |
中央区の治安・ごみ収集情報
公共料金・インフラ
| ガス料金(22m3使用した場合の月額) |
東京瓦斯株式会社(東京地区等)3926円 |
| 水道料金(口径20mmで20m3の月額) |
東京都水道局2816円 |
| 下水道料金(20m3を使用した場合の月額) |
東京都下水道局2068円 |
| 下水道普及率 |
100.0% |
安心・安全
| 建物火災出火件数 |
106件
- 人口10000人当たり
- 6.27件
|
| 刑法犯認知件数 |
1828件
- 人口1000人当たり
- 10.81件
|
| ハザード・防災マップ |
あり |
医療
| 一般病院総数 |
4ヶ所 |
| 一般診療所総数 |
778ヶ所 |
| 小児科医師数 |
59人
- 小児人口10000人当たり
- 24.65人
|
| 産婦人科医師数 |
68人
- 15~49歳女性人口1万人当たり
- 14.62人
|
| 介護保険料基準額(月額) |
6300円 |
ごみ
| 家庭ごみ収集(可燃ごみ) |
無料
|
| 家庭ごみの分別方式 |
4分別10種〔燃やすごみ 燃やさないごみ プラマーク 資源(紙類[新聞、雑誌、ダンボール、雑紙]、びん、ペットボトル、缶類)〕 |
| 家庭ごみの戸別収集 |
一部実施(ふれあい収集) |
| 粗大ごみ収集 |
あり
|
| 生ごみ処理機助成金制度 |
なし
- 上限金額
- -
- 上限比率
- -
|
※行政機関により公表していない地域及びデータがございます。東京23区以外の政令指定都市は、市全体のデータとして表示しています。
※提供データには細心の注意を払っておりますが、調査後に変更がある場合があります。 最新の情報につきましては各市区役所までお問い合わせいただくか、自治体HPなどをご確認ください。
中央区の暮らしデータをもっと見る