アプリで簡単 物件探し 通知 共有 アプリならではの機能を使ってみる
賃貸マンション

THE TOKYO TOWERS MIDTOWER 勝どき駅 1LDK 賃貸(賃貸マンション・アパート)

情報提供元
SUUMO
THE TOKYO TOWERS MIDTOWER
賃料 24万円  (管理費等:15000円)
礼金・敷金 1ヶ月 / 2ヶ月 保証金/敷引・償却 なし / -
交通
所在地 東京都中央区勝どき6周辺地図
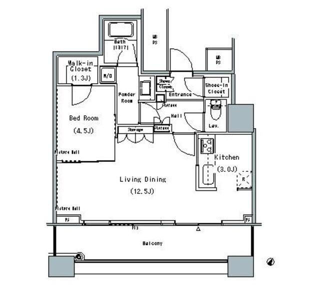
間取り 1LDK 専有面積 50.95m2
築年月 2008年1月 築年数 築17年11ヶ月

詳細情報

賃料 24万円 管理費等 15000円
敷金 2ヶ月 礼金 1ヶ月
保証金 なし 敷引・償却 -
更新料 - 契約期間
カード決済 -
所在地 東京都中央区勝どき6周辺地図
交通
建物名 THE TOKYO TOWERS MIDTOWER 
間取り 1LDK 築年月(築年数) 2008年1月(築17年11ヶ月)
専有面積 50.95㎡ 所在階/階数 25階/地上58階地下2階建
建物構造 RC  方位 南東 
現況   駐車場 無    近くの駐車場を探す
入居可能時期 2025年12月中旬 住宅保険 あり
情報提供元 SUUMO[030H100469908490] 情報公開日
情報更新日 次回更新予定日 随時

設備など

2階以上 最上階 - 角部屋 -
駐車場(近隣含) - エアコン付き バス・トイレ別
室内洗濯機置き場 - 追焚機能 オートロック付き
モニタ付インターホン - フローリング - バルコニー
ガスコンロ可 - 浴室乾燥機 24時間セキュリティ -
宅配ボックス ペット相談可 二人入居可 -
設備 冷房・暖房・エアコン・オートロック・バルコニー・バス・トイレ別・トイレ・収納スペース・管理人常駐・エレベーター・CATV・追焚機能・浴室乾燥機・ウォークインクローゼット・システムキッチン・宅配BOX・風呂・クローゼット・衣類乾燥機・浴トイレ別・キッズルーム・バイク置き場・ペット用施設 
リフォーム履歴 -
リノベーション履歴 -
備考 損保要/保証会社利用必:初回保証委託料(最低20,000円):月額賃料等の50%、2年目以降:10,000円/年/普通借家24ヶ月/ペット相談/楽器相談/事務所利用不可/バストイレ別/バルコニー/エアコン/浴室乾燥機/オートロック/システムキッチン/追焚機能浴室/エレベーター/宅配ボックス/CATV/ペット相談/グリル付/ウォークインクロゼット/バイク置場/敷金2ヶ月/保証金不要/楽器相談/フロントサービス/ペット専用設備/駅徒歩10分以内/タワー型マンション/高層階/ゲストルーム/キッズルーム/シアタールーム/24時間ゴミ出し可/敷地内ごみ置き場/東南向き/礼金1ヶ月/常駐管理 
特記事項 ペット相談可・楽器相談・管理人常駐

省エネ性能

エネルギー消費性能 -
断熱性能 -
目安光熱費 -

東京都中央区勝どき6 周辺地図情報

地図
※地図上に表示される物件の位置は付近住所に所在することを表すものであり、実際の物件所在地とは異なる場合がございます。
   正確な物件所在地は、取扱い不動産会社にお問い合わせください。

不動産会社情報

お問い合わせ先 商号:(株)リライフ恵比寿店
免許番号:国土交通大臣(1)第10792号
所在地:東京都渋谷区東3-26-4 タチムラビル4階
TEL:03-4519-5051
取引態様:仲介
管理コード:
所属協会など:(公社)首都圏不動産公正取引協議会加盟、(公社)東京都宅地建物取引業協会会員
共有する
QRコード

中央区の暮らしデータ

人口などの統計情報

世帯数 92487世帯
人口総数 176835人
転入者数 18608人
転入率(人口1000人当たり)
105.23人
転出者数 16381人
転出率(人口1000人当たり)
92.63人
土地平均価格
住宅地
1480000円/m2
商業地
6484815円/m2

結婚・育児の助成金

子育て関連の独自の取り組み (1)学校給食費の無償化。(2)中央区子どもの学習・生活支援事業(小学校4年生から高校生世代までのお子さんを対象に、無料の学習・生活支援事業の実施)。(3)親子で親しむ浜離宮(子どもと同伴する保護者等の浜離宮の入場料を区が負担)。
出産祝い あり
公立保育所数 14所(うち0歳児保育を実施している保育所:14所)
私立保育所数 63所(うち0歳児保育を実施している保育所:35所)
保育所入所待機児童数 0人
認定こども園数 6園 預かり保育実施園数 公立:3園 私立:-
学校給食 【小学校】完全給食【中学校】完全給食
公立中学校の学校選択制 実施(中学校自由選択制)
子ども・学生等医療費助成<通院>対象年齢 18歳3月末まで 子ども・学生等医療費助成<入院>対象年齢 18歳3月末まで

中央区の治安・ごみ収集情報

公共料金・インフラ

ガス料金(22m3使用した場合の月額) 東京瓦斯株式会社(東京地区等)3926円
水道料金(口径20mmで20m3の月額) 東京都水道局2816円
下水道料金(20m3を使用した場合の月額) 東京都下水道局2068円
下水道普及率 100.0%

安心・安全

建物火災出火件数 106件
人口10000人当たり
6.27件
刑法犯認知件数 1828件
人口1000人当たり
10.81件
ハザード・防災マップ あり

医療

一般病院総数 4ヶ所
一般診療所総数 778ヶ所
小児科医師数 59人
小児人口10000人当たり
24.65人
産婦人科医師数 68人
15~49歳女性人口1万人当たり
14.62人
介護保険料基準額(月額) 6300円

ごみ

家庭ごみ収集(可燃ごみ) 無料
備考
引越し等で、臨時に大量のごみを排出する場合は有料。
家庭ごみの分別方式 4分別10種〔燃やすごみ 燃やさないごみ プラマーク 資源(紙類[新聞、雑誌、ダンボール、雑紙]、びん、ペットボトル、缶類)〕
家庭ごみの戸別収集 一部実施(ふれあい収集)
粗大ごみ収集 あり
備考
有料。戸別収集。事前申込制。
生ごみ処理機助成金制度 なし
上限金額
-
上限比率
-
暮らしデータ提供元:生活ガイド.com
※行政機関により公表していない地域及びデータがございます。東京23区以外の政令指定都市は、市全体のデータとして表示しています。
※提供データには細心の注意を払っておりますが、調査後に変更がある場合があります。 最新の情報につきましては各市区役所までお問い合わせいただくか、自治体HPなどをご確認ください。
OCN×ドコモ光新規お申込みで合計最大137,280円相当おトク!特典の内訳・適用条件など詳細はこちら

中央区内の各駅の住みやすさ


掲載情報の著作権は提供元企業等に帰属します。
Copyright:(C) 2025 Recruit Co., Ltd.
アプリで簡単 物件探し 大手不動産サイトの情報から一括検!プッシュ通知で物件を見逃さない
App Storeからダウンロード Google Playで手に入れよう QRコード