アプリで簡単 物件探し 通知 共有 アプリならではの機能を使ってみる
賃貸マンション

リンクス日本橋本町 新日本橋駅 1K 賃貸(賃貸マンション・アパート)

情報提供元
SUUMO
リンクス日本橋本町
賃料 16.4万円  (管理費等:7000円)
礼金・敷金 1ヶ月 / 1ヶ月 保証金/敷引・償却 なし / -
交通
所在地 東京都中央区日本橋本町4周辺地図
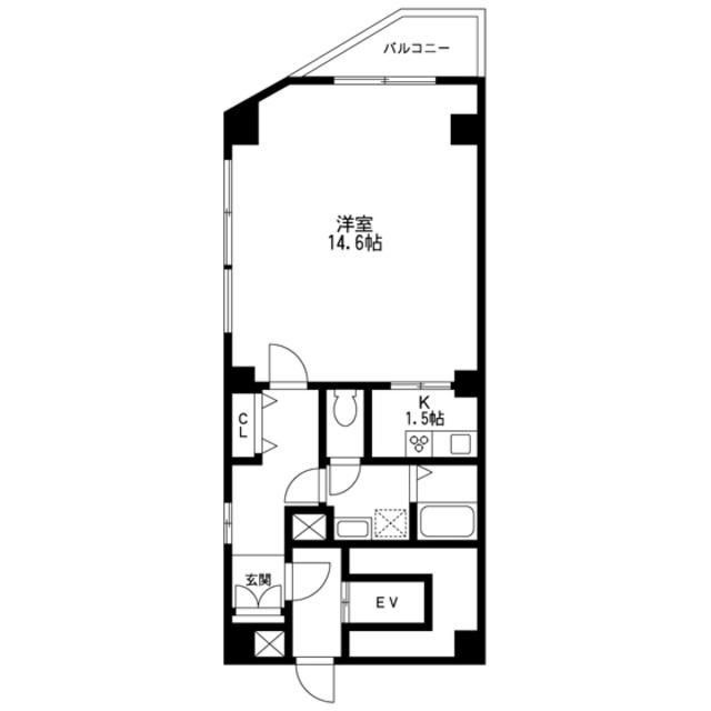
間取り 1K 専有面積 40.29m2
築年月 2006年2月 築年数 築19年11ヶ月
おすすめポイント
女性やお子様にも安心のオートロック付き物件です。 駅徒歩5分以内なので、通勤通学やお買い物に大変便利です。主要採光面が南西向きで、昼から夕方の日当たりが良好です。3駅利用可の好アクセス環境です。
お問い合わせ先
恵比寿不動産 都心チーム(株)ライフアドバンス
お問い合わせ先
恵比寿不動産 都心チーム(株)ライフアドバンス

詳細情報

賃料 16.4万円 管理費等 7000円
敷金 1ヶ月 礼金 1ヶ月
保証金 なし 敷引・償却 -
更新料 - 契約期間
カード決済 -
所在地 東京都中央区日本橋本町4周辺地図
交通
  • JR総武線快速 新日本橋駅 徒歩2分乗換案内
  • JR京浜東北線 神田駅 徒歩6分乗換案内
  • 東京メトロ銀座線 三越前駅 徒歩6分乗換案内
建物名 リンクス日本橋本町 
間取り 1K(洋14.6) 築年月(築年数) 2006年2月(築19年11ヶ月)
専有面積 40.29㎡ 所在階/階数 10階/10階建
建物構造 鉄骨  方位 南西 
現況   駐車場 無    近くの駐車場を探す
入居可能時期 相談 住宅保険 あり 2年 24000円
情報提供元 SUUMO[030H100454071567] 情報公開日
情報更新日 次回更新予定日 随時

設備など

2階以上 最上階 角部屋 -
駐車場(近隣含) - エアコン付き バス・トイレ別
室内洗濯機置き場 追焚機能 - オートロック付き
モニタ付インターホン フローリング バルコニー
ガスコンロ可 浴室乾燥機 - 24時間セキュリティ -
宅配ボックス - ペット相談可 - 二人入居可 -
設備 冷房・暖房・エアコン・オートロック・バルコニー・バス・トイレ別・トイレ・洗濯機置場・フローリング・ガスコンロ可・システムキッチン・モニタ付インターホン・都市ガス・浴トイレ別・コンロ2口以上・室内洗濯機置き場 
リフォーム履歴 -
リノベーション履歴 -
備考 鍵交換代:27500円/室内清掃費用:39600円/鍵発行手数料:27500円/更新料新賃料(ヶ月):1.00ヶ月/保証会社利用必:初回保証料40%(保証人付30%)最低保証料15,000円 1年毎保証料有/普通借家02年00ヶ月/バストイレ別/バルコニー/エアコン/ガスコンロ対応/フローリング/TVインターホン/オートロック/室内洗濯置/システムキッチン/2口コンロ/最上階/敷金1ヶ月/全居室フローリング/エアコン全室/保証金不要/3駅以上利用可/3沿線以上利用可/駅徒歩5分以内/高層階/南西向き/都市ガス/礼金1ヶ月/COREDO室町2(ショッピングセンター)まで400m/本間ゴルフ神田店(ショッピングセンター)まで210m/肉のハナマサ新日本橋店(スーパー)まで200m/ミニストップ神田鍛冶町店(コンビニ)まで140m/クリエイトエス・ディー日本橋本町店(ドラッグストア)まで220m/BoConcept日本橋(ホームセンター)まで430m 
特記事項 最上階

省エネ性能

エネルギー消費性能 -
断熱性能 -
目安光熱費 -

東京都中央区日本橋本町4 周辺地図情報

地図
※地図上に表示される物件の位置は付近住所に所在することを表すものであり、実際の物件所在地とは異なる場合がございます。
   正確な物件所在地は、取扱い不動産会社にお問い合わせください。
お問い合わせ先
恵比寿不動産 都心チーム(株)ライフアドバンス

不動産会社情報

お問い合わせ先 商号:恵比寿不動産 都心チーム(株)ライフアドバンス
免許番号:東京都知事(3)第97301号
所在地:東京都渋谷区東3-25-11 TOKYUREIT恵比寿ビル4階
TEL:03-6421-0542
取引態様:仲介
管理コード:R02618-000064
所属協会など:(公社)首都圏不動産公正取引協議会加盟、(公社)全日本不動産協会東京都本部会員
共有する
QRコード
お問い合わせ先
恵比寿不動産 都心チーム(株)ライフアドバンス

    中央区の暮らしデータ

    人口などの統計情報

    世帯数 92487世帯
    人口総数 176835人
    転入者数 18608人
    転入率(人口1000人当たり)
    105.23人
    転出者数 16381人
    転出率(人口1000人当たり)
    92.63人
    土地平均価格
    住宅地
    1480000円/m2
    商業地
    6484815円/m2

    結婚・育児の助成金

    子育て関連の独自の取り組み (1)学校給食費の無償化。(2)中央区子どもの学習・生活支援事業(小学校4年生から高校生世代までのお子さんを対象に、無料の学習・生活支援事業の実施)。(3)親子で親しむ浜離宮(子どもと同伴する保護者等の浜離宮の入場料を区が負担)。
    出産祝い あり
    公立保育所数 14所(うち0歳児保育を実施している保育所:14所)
    私立保育所数 63所(うち0歳児保育を実施している保育所:35所)
    保育所入所待機児童数 0人
    認定こども園数 6園 預かり保育実施園数 公立:3園 私立:-
    学校給食 【小学校】完全給食【中学校】完全給食
    公立中学校の学校選択制 実施(中学校自由選択制)
    子ども・学生等医療費助成<通院>対象年齢 18歳3月末まで 子ども・学生等医療費助成<入院>対象年齢 18歳3月末まで

    中央区の治安・ごみ収集情報

    公共料金・インフラ

    ガス料金(22m3使用した場合の月額) 東京瓦斯株式会社(東京地区等)3926円
    水道料金(口径20mmで20m3の月額) 東京都水道局2816円
    下水道料金(20m3を使用した場合の月額) 東京都下水道局2068円
    下水道普及率 100.0%

    安心・安全

    建物火災出火件数 106件
    人口10000人当たり
    6.27件
    刑法犯認知件数 1828件
    人口1000人当たり
    10.81件
    ハザード・防災マップ あり

    医療

    一般病院総数 4ヶ所
    一般診療所総数 778ヶ所
    小児科医師数 59人
    小児人口10000人当たり
    24.65人
    産婦人科医師数 68人
    15~49歳女性人口1万人当たり
    14.62人
    介護保険料基準額(月額) 6300円

    ごみ

    家庭ごみ収集(可燃ごみ) 無料
    備考
    引越し等で、臨時に大量のごみを排出する場合は有料。
    家庭ごみの分別方式 4分別10種〔燃やすごみ 燃やさないごみ プラマーク 資源(紙類[新聞、雑誌、ダンボール、雑紙]、びん、ペットボトル、缶類)〕
    家庭ごみの戸別収集 一部実施(ふれあい収集)
    粗大ごみ収集 あり
    備考
    有料。戸別収集。事前申込制。
    生ごみ処理機助成金制度 なし
    上限金額
    -
    上限比率
    -
    暮らしデータ提供元:生活ガイド.com
    ※行政機関により公表していない地域及びデータがございます。東京23区以外の政令指定都市は、市全体のデータとして表示しています。
    ※提供データには細心の注意を払っておりますが、調査後に変更がある場合があります。 最新の情報につきましては各市区役所までお問い合わせいただくか、自治体HPなどをご確認ください。
    OCN×ドコモ光新規お申込みで合計最大137,280円相当おトク!特典の内訳・適用条件など詳細はこちら

    中央区内の各駅の住みやすさ

    他のエリアから探す

    中央区の詳細地域から賃貸物件を探す

    明石町入船勝どき京橋銀座新川新富月島築地日本橋日本橋大伝馬町日本橋蛎殻町日本橋兜町日本橋茅場町日本橋小網町日本橋小伝馬町日本橋小舟町日本橋富沢町日本橋中洲日本橋人形町日本橋箱崎町日本橋浜町日本橋馬喰町日本橋久松町日本橋堀留町日本橋本石町日本橋本町日本橋室町日本橋横山町八丁堀晴海東日本橋

    近辺の市区から探す

    浦安市千代田区港区新宿区文京区台東区墨田区江東区品川区目黒区世田谷区渋谷区中野区杉並区豊島区北区荒川区板橋区足立区葛飾区江戸川区

    周辺の駅から探す

    総武本線
    東京新日本橋馬喰町錦糸町新小岩市川
    京浜東北・根岸線
    鶯谷上野御徒町秋葉原神田東京有楽町新橋浜松町
    東京メトロ銀座線
    上野上野広小路末広町神田三越前日本橋京橋銀座新橋

    東京都中央区で他のジャンルから探す


    掲載情報の著作権は提供元企業等に帰属します。
    Copyright:(C) 2025 Recruit Co., Ltd.
    アプリで簡単 物件探し 大手不動産サイトの情報から一括検!プッシュ通知で物件を見逃さない
    App Storeからダウンロード Google Playで手に入れよう QRコード