アプリで簡単 物件探し 通知 共有 アプリならではの機能を使ってみる
賃貸マンション

レオパレスボヌールドゥマン 北柏駅 1K 賃貸(賃貸マンション・アパート)

情報提供元
SUUMO
レオパレスボヌールドゥマン 画像1
賃料 5.3万円  (管理費等:7000円)
礼金・敷金 1ヶ月 / なし 保証金/敷引・償却 なし / -
交通
所在地 千葉県柏市花野井周辺地図
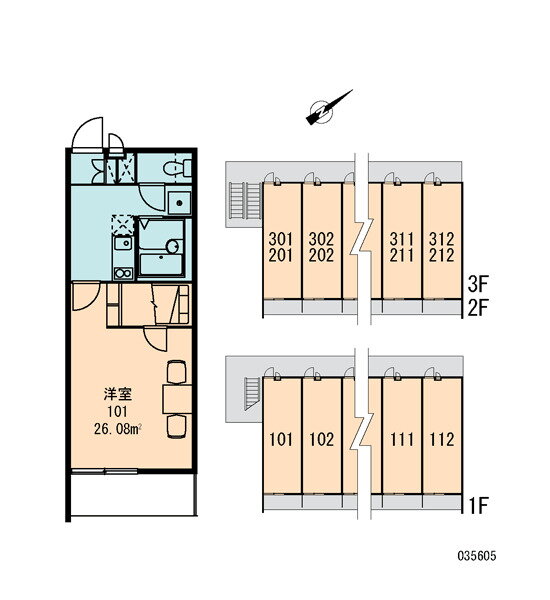
間取り 1K 専有面積 26.08m2
築年月 2008年7月 築年数 築17年6ヶ月
おすすめポイント
◎対象物件成約で最大賃料の10%ポイントプレゼント2/28迄 オンライン内見やLINEでのご相談等、お客様のご希望に合わせたご提案をいたします。お部屋探しは、黄色い看板が目印のアパートマンション館へ☆
お問い合わせ先
アパートマンション館(株)柏支店
お問い合わせ先
アパートマンション館(株)柏支店

詳細情報

賃料 5.3万円 管理費等 7000円
敷金 なし 礼金 1ヶ月
保証金 なし 敷引・償却 -
更新料 - 契約期間
カード決済 -
所在地 千葉県柏市花野井周辺地図
交通
  • JR常磐線 北柏駅 徒歩32分乗換案内
  • つくばエクスプレス 柏の葉キャンパス駅 徒歩36分乗換案内
  • つくばエクスプレス 柏たなか駅 徒歩3.2km乗換案内
建物名 レオパレスボヌールドゥマン 
間取り 1K 築年月(築年数) 2008年7月(築17年6ヶ月)
専有面積 26.08㎡ 所在階/階数 1階/3階建
建物構造 鉄骨  方位  
現況   駐車場 有 8,800円
入居可能時期 2025年12月中旬 住宅保険 あり 2年 26680円
情報提供元 SUUMO[030H100435813828] 情報公開日
情報更新日 次回更新予定日 随時

設備など

2階以上 - 最上階 - 角部屋 -
駐車場(近隣含) エアコン付き バス・トイレ別
室内洗濯機置き場 - 追焚機能 - オートロック付き -
モニタ付インターホン フローリング - バルコニー -
ガスコンロ可 - 浴室乾燥機 24時間セキュリティ -
宅配ボックス - ペット相談可 - 二人入居可 -
設備 冷房・暖房・エアコン・バス・トイレ別・トイレ・浴室乾燥機・温水洗浄便座・モニタ付インターホン・衣類乾燥機・プロパンガス・浴トイレ別・家具付き 
リフォーム履歴 -
リノベーション履歴 -
備考 抗菌施工(任意)2.376万円 入居者サポートシステムプラス(任意)1.8975万円 鍵交換代1.65万円/更新料 16500円 室内清掃費用 41800円 環境維持費 月額550円 インターネット利用料 月額3630円/仲介手数料1.100ヶ月/バストイレ別/エアコン/TVインターホン/浴室乾燥機/温水洗浄便座/家電付/家具付/防犯ガラス/プロパンガス/サンドラッグ柏松葉町店(その他)まで565m/セブンイレブン北柏2丁目店(コンビニ)まで595m/スーパーカワグチ北柏店(スーパー)まで677m/柏市立柏病院(病院)まで553m/柏市立 松葉第二小学校(小学校)まで517m/松ヶ崎幼稚園(幼稚園・保育園)まで843m/賃貸戸数:36戸 
特記事項

省エネ性能

エネルギー消費性能 -
断熱性能 -
目安光熱費 -

千葉県柏市花野井 周辺地図情報

地図
※地図上に表示される物件の位置は付近住所に所在することを表すものであり、実際の物件所在地とは異なる場合がございます。
   正確な物件所在地は、取扱い不動産会社にお問い合わせください。
お問い合わせ先
アパートマンション館(株)柏支店

不動産会社情報

お問い合わせ先 商号:アパートマンション館(株)柏支店
免許番号:国土交通大臣(5)第5966号
所在地:千葉県柏市柏1-1-10
TEL:04-7167-1222
取引態様:仲介
管理コード:4122384
所属協会など:(公社)首都圏不動産公正取引協議会加盟、(公社)全日本不動産協会千葉県本部会員
共有する
QRコード
お問い合わせ先
アパートマンション館(株)柏支店

    柏市の暮らしデータ

    人口などの統計情報

    世帯数 187782世帯
    人口総数 435529人
    転入者数 23008人
    転入率(人口1000人当たり)
    52.83人
    転出者数 19422人
    転出率(人口1000人当たり)
    44.59人
    土地平均価格
    住宅地
    126272円/m2
    商業地
    540429円/m2

    結婚・育児の助成金

    子育て関連の独自の取り組み (1)初めて子育てをするお母さん同士が話し合い知識や学びを深めるBPプログラムや子育てに悩む保護者と一緒にお子さんのほめるポイントを見つけるペアレント・プログラムの実施。(2)子育てネットワーク事業(子育てフォーラム等)の実施。(3)LINE公式アカウントやInstagramアカウントの活用による子育て情報の提供。(4)乳幼児と保護者を主な対象としたこども図書館。
    出産祝い なし
    公立保育所数 22所(うち0歳児保育を実施している保育所:19所)
    私立保育所数 55所(うち0歳児保育を実施している保育所:54所)
    保育所入所待機児童数 0人
    認定こども園数 20園 預かり保育実施園数 公立:- 私立:20園
    学校給食 【小学校】完全給食【中学校】完全給食
    公立中学校の学校選択制 未実施
    子ども・学生等医療費助成<通院>対象年齢 18歳3月末まで 子ども・学生等医療費助成<入院>対象年齢 18歳3月末まで

    柏市の治安・ごみ収集情報

    公共料金・インフラ

    ガス料金(22m3使用した場合の月額) 京葉瓦斯株式会社4515円
    東日本ガス株式会社(我孫子・取手地区)5271円
    京和ガス株式会社4162円
    水道料金(口径20mmで20m3の月額) 柏市3124円
    下水道料金(20m3を使用した場合の月額) 柏市2357円
    下水道普及率 90.9%

    安心・安全

    建物火災出火件数 51件
    人口10000人当たり
    1.20件
    刑法犯認知件数 2492件
    人口1000人当たり
    5.84件
    ハザード・防災マップ あり

    医療

    一般病院総数 16ヶ所
    一般診療所総数 270ヶ所
    小児科医師数 69人
    小児人口10000人当たり
    12.67人
    産婦人科医師数 36人
    15~49歳女性人口1万人当たり
    4.06人
    介護保険料基準額(月額) 5800円

    ごみ

    家庭ごみ収集(可燃ごみ) 無料
    備考
    指定ごみ袋は有料だが、袋代にごみ収集・処理料金等を含まず。
    家庭ごみの分別方式 5分別17種〔資源品(古紙類[新聞紙、ダンボール、雑誌・ざつ紙、紙パック]、PETボトル、古着・古布類など、空カン類、空ビン類、金属類) 容器包装プラスチック類 可燃ごみ 不燃ごみ 有害ごみ(乾電池、バッテリー、蛍光灯、使い切ったライター、水銀含有物など)〕 拠点回収:小型家電
    家庭ごみの戸別収集 一部実施(【ごみ出し困難者支援収集】一部地域のみ実施)
    粗大ごみ収集 あり
    備考
    有料(柏地域1,100円/点、沼南地域880円/点)。事前申込制。戸別収集。
    生ごみ処理機助成金制度 あり
    上限金額
    10000円
    上限比率
    33.3%
    暮らしデータ提供元:生活ガイド.com
    ※行政機関により公表していない地域及びデータがございます。東京23区以外の政令指定都市は、市全体のデータとして表示しています。
    ※提供データには細心の注意を払っておりますが、調査後に変更がある場合があります。 最新の情報につきましては各市区役所までお問い合わせいただくか、自治体HPなどをご確認ください。
    OCN×ドコモ光新規お申込みで合計最大137,280円相当おトク!特典の内訳・適用条件など詳細はこちら

    柏市内の各駅の住みやすさ

    他のエリアから探す

    柏市の詳細地域から賃貸物件を探す

    青葉台あかね町明原あけぼの旭町東上町東台本町泉町伊勢原今谷上町今谷南町岩井永楽台大井大島田大塚町大津ケ丘大室大山台加賀柏の葉柏堀之内新田かやの町北柏北柏台亀甲台町小青田高南台五條谷酒井根逆井逆井藤ノ台桜台しいの木台篠籠田宿連寺正連寺新柏新逆井新富町末広町関場町高田高柳高柳新田中央中央町千代田塚崎つくしが丘手賀の杜常盤台戸張富里豊上町豊四季豊四季台豊住豊平町十余二中新宿中十余二中原名戸ケ谷西柏台西町西原根戸八幡町花野井光ケ丘光ケ丘団地東柏東逆井東中新宿東山ひばりが丘藤ケ谷藤心布施布施新町船戸増尾増尾台松ケ崎松葉町みどり台緑台南柏南柏中央南逆井南高柳南増尾向原町弥生町豊町若柴若葉町

    近辺の市区から探す

    取手市守谷市つくばみらい市三郷市吉川市松戸市流山市我孫子市鎌ケ谷市白井市

    周辺の駅から探す

    千代田・常磐緩行線
    新松戸北小金南柏北柏我孫子天王台取手
    つくばエクスプレス
    三郷中央南流山流山セントラルパーク流山おおたかの森柏の葉キャンパス柏たなか守谷みらい平みどりの

    千葉県柏市で他のジャンルから探す


    掲載情報の著作権は提供元企業等に帰属します。
    Copyright:(C) 2025 Recruit Co., Ltd.
    アプリで簡単 物件探し 大手不動産サイトの情報から一括検!プッシュ通知で物件を見逃さない
    App Storeからダウンロード Google Playで手に入れよう QRコード