アプリで簡単 物件探し 通知 共有 アプリならではの機能を使ってみる
賃貸マンション

エヌステージジェイアール新白岡駅前 新白岡駅 1K 賃貸(賃貸マンション・アパート)

情報提供元
SUUMO
エヌステージジェイアール新白岡駅前
賃料 5.43万円  (管理費等:18000円)
礼金・敷金 なし / なし 保証金/敷引・償却 なし / -
交通
所在地 埼玉県白岡市新白岡8周辺地図
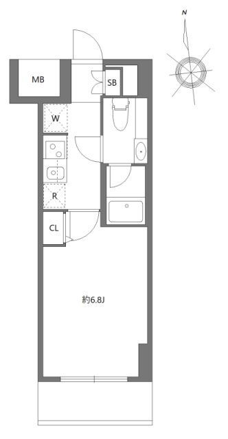
間取り 1K 専有面積 22.48m2
築年月 2025年3月 築年数 新築
おすすめポイント
お部屋さがしはいい部屋ネットの大東建託で! スタッフ一同、お客様のご来店をこころよりお待ちしております!
お問い合わせ先
いい部屋ネット大東建託リーシング(株)川口駅前店
お問い合わせ先
いい部屋ネット大東建託リーシング(株)川口駅前店

詳細情報

賃料 5.43万円 管理費等 18000円
敷金 なし 礼金 なし
保証金 なし 敷引・償却 -
更新料 - 契約期間
カード決済 -
所在地 埼玉県白岡市新白岡8周辺地図
交通
  • JR宇都宮線 新白岡駅 徒歩1分乗換案内
  • 湘南新宿ライン宇須 新白岡駅 徒歩1分乗換案内
建物名 エヌステージジェイアール新白岡駅前 
間取り 1K(洋6.80 K2.00) 築年月(築年数) 2025年3月 新築
専有面積 22.48㎡ 所在階/階数 3階/9階建
建物構造 RC  方位 南 
現況   駐車場 無    近くの駐車場を探す
入居可能時期 即時 住宅保険 あり 2年 20000円
情報提供元 SUUMO[030H100433963532] 情報公開日
情報更新日 次回更新予定日 随時

設備など

2階以上 最上階 - 角部屋 -
駐車場(近隣含) - エアコン付き バス・トイレ別
室内洗濯機置き場 - 追焚機能 - オートロック付き
モニタ付インターホン - フローリング バルコニー -
ガスコンロ可 浴室乾燥機 24時間セキュリティ -
宅配ボックス ペット相談可 - 二人入居可 -
設備 冷房・暖房・エアコン・オートロック・バス・トイレ別・トイレ・収納スペース・洗面所・エレベーター・BS端子・フローリング・浴室乾燥機・ガスコンロ可・温水洗浄便座・システムキッチン・宅配BOX・駐輪場・クローゼット・CS・衣類乾燥機・都市ガス・浴トイレ別・防犯カメラ・洗面所独立・バイク置き場・コンロ2口以上・シューズボックス・インターネット対応 
リフォーム履歴 -
リノベーション履歴 -
備考 プレミアデスク(2年/税込)1.65万円 契約時ルームクリーニング費用(税込)5.5万円 鍵交換代0万円/更新料 新賃料1.00ヶ月分/保証会社利用必:会社2:オリコフォレントインシュア/事務所利用不可/■短期解約違約金:1年未満2カ月 ■解約予告:2カ月前 ■プレミアデスク代の中に登録料4 400円(税込)を含みます。/バストイレ別/エアコン/ガスコンロ対応/クロゼット/フローリング/浴室乾燥機/オートロック/シューズボックス/システムキッチン/温水洗浄便座/エレベーター/洗面所独立/2口コンロ/駐輪場/宅配ボックス/即入居可/防犯カメラ/バイク置場/CS/2駅利用可/敷地内ごみ置き場/セキュリティ会社加入済/都市ガス/BS/LAN/IT重説 対応物件/ヤオコー 新白岡店(スーパー)まで1158m/ローソン 白岡野牛店(コンビニ)まで502m/クスリのアオキ新白岡店(ドラッグストア)まで884m/ドラッグスギ 新白岡店(ドラッグストア)まで1153m/新白岡駅前郵便局(郵便局)まで398m/新白岡駅(その他)まで178m 
特記事項

省エネ性能

エネルギー消費性能 -
断熱性能 -
目安光熱費 -

埼玉県白岡市新白岡8 周辺地図情報

地図
※地図上に表示される物件の位置は付近住所に所在することを表すものであり、実際の物件所在地とは異なる場合がございます。
   正確な物件所在地は、取扱い不動産会社にお問い合わせください。
お問い合わせ先
いい部屋ネット大東建託リーシング(株)川口駅前店

不動産会社情報

お問い合わせ先 商号:いい部屋ネット大東建託リーシング(株)川口駅前店
免許番号:国土交通大臣(2)第9120号
所在地:埼玉県川口市川口1-1-1 キュポ・ラ本館棟A208
TEL:048-226-4600
取引態様:仲介
管理コード:264-5187817
所属協会など:(公社)首都圏不動産公正取引協議会加盟、(公財)日本賃貸住宅管理協会会員
共有する
QRコード
お問い合わせ先
いい部屋ネット大東建託リーシング(株)川口駅前店

    白岡市の暮らしデータ

    人口などの統計情報

    世帯数 20484世帯
    人口総数 52649人
    転入者数 2363人
    転入率(人口1000人当たり)
    44.88人
    転出者数 2131人
    転出率(人口1000人当たり)
    40.48人
    土地平均価格
    住宅地
    87633円/m2
    商業地
    143000円/m2

    結婚・育児の助成金

    子育て関連の独自の取り組み (1)ベビーベッドの無料貸与(乳児の健やかな成長の支援と保護者の経済的負担の軽減を目的とし、乳児[0歳児]の保護者に対し、ベビーベッドを無料で貸出ししている。利用期間は6ヶ月で、1歳の誕生日の前日まで延長できる。2023年4月から里帰り出産で市内に住所を有する祖父母にも貸出対象を拡大。里帰り利用の貸出期間は6ヶ月のみ)。(2)1ヶ月児健康診査費用助成。(3)おたふくかぜ予防接種費用の一部助成。(4)多胎妊婦に対する妊婦健康診査の追加助成。(5)骨髄移植後予防接種の再接種費用の助成。
    出産祝い あり
    公立保育所数 3所(うち0歳児保育を実施している保育所:1所)
    私立保育所数 6所(うち0歳児保育を実施している保育所:5所)
    保育所入所待機児童数 36人
    認定こども園数 0園 預かり保育実施園数 公立:- 私立:4園
    学校給食 【小学校】完全給食【中学校】完全給食
    公立中学校の学校選択制 未実施
    子ども・学生等医療費助成<通院>対象年齢 18歳3月末まで 子ども・学生等医療費助成<入院>対象年齢 18歳3月末まで

    白岡市の治安・ごみ収集情報

    公共料金・インフラ

    ガス料金(22m3使用した場合の月額) 東京瓦斯株式会社(東京地区等)3926円
    東彩ガス株式会社(北本・桶川地区)4609円
    日本瓦斯株式会社(蓮田・白岡地区)4536円
    堀川産業株式会社(沖山地区)6063円
    水道料金(口径20mmで20m3の月額) 白岡市3696円
    下水道料金(20m3を使用した場合の月額) 白岡市2806円
    下水道普及率 70.6%

    安心・安全

    建物火災出火件数 10件
    人口10000人当たり
    1.92件
    刑法犯認知件数 241件
    人口1000人当たり
    4.62件
    ハザード・防災マップ あり

    医療

    一般病院総数 3ヶ所
    一般診療所総数 29ヶ所
    小児科医師数 10人
    小児人口10000人当たり
    15.92人
    産婦人科医師数 5人
    15~49歳女性人口1万人当たり
    4.99人
    介護保険料基準額(月額) 5491円

    ごみ

    家庭ごみ収集(可燃ごみ) 有料
    備考
    指定ごみ袋有料(燃えるごみ・燃えないごみ)。
    家庭ごみの分別方式 7分別14種〔燃えるごみ 燃やせないごみ ガラス類 ペットボトル 飲食料用缶 古紙・布類(新聞紙、紙パック、段ボール、雑誌及び古紙、布類) 有害・危険ごみ(蛍光管・水銀体温計、スプレー缶、ガスライター、乾電池)〕
    家庭ごみの戸別収集 一部実施([1]介護保険制度の要介護認定を受けている65歳以上の方[2]介護保険制度の要支援認定を受けている方[3]身体障害者手帳、療育手帳又は精神障害者保健福祉手帳の交付を受けている方※1~3のいずれかに該当する方又は該当する者のみで構成される世帯が対象となる。「ふれあい収集」収集の際の指定ごみ袋は有料)
    粗大ごみ収集 あり
    備考
    有料。品目別に477円~1,905円(税抜)の料金を設定。条例に個別の設定が無い品目は寸法に準じ料金477円・953円・1,905円(税抜)を設定。
    生ごみ処理機助成金制度 なし
    上限金額
    -
    上限比率
    -
    暮らしデータ提供元:生活ガイド.com
    ※行政機関により公表していない地域及びデータがございます。東京23区以外の政令指定都市は、市全体のデータとして表示しています。
    ※提供データには細心の注意を払っておりますが、調査後に変更がある場合があります。 最新の情報につきましては各市区役所までお問い合わせいただくか、自治体HPなどをご確認ください。

    白岡市内の各駅の住みやすさ

    他のエリアから探す

    白岡市の詳細地域から賃貸物件を探す

    太田新井小久喜篠津白岡白岡東新白岡千駄野西彦兵衛

    近辺の市区から探す

    猿島郡五霞町さいたま市北区さいたま市見沼区さいたま市岩槻区春日部市上尾市桶川市久喜市蓮田市幸手市北足立郡伊奈町南埼玉郡宮代町北葛飾郡杉戸町

    周辺の駅から探す

    東北本線
    土呂東大宮蓮田白岡新白岡久喜東鷲宮栗橋古河
    湘南新宿ライン宇須
    古河栗橋東鷲宮久喜新白岡白岡蓮田東大宮土呂

    埼玉県白岡市で他のジャンルから探す


    掲載情報の著作権は提供元企業等に帰属します。
    Copyright:(C) 2025 Recruit Co., Ltd.
    アプリで簡単 物件探し 大手不動産サイトの情報から一括検!プッシュ通知で物件を見逃さない
    App Storeからダウンロード Google Playで手に入れよう QRコード