アプリで簡単 物件探し 通知 共有 アプリならではの機能を使ってみる
賃貸マンション

リヴェール 菊水駅 2LDK 賃貸(賃貸マンション・アパート)

情報提供元
SUUMO
リヴェール
賃料 9.3万円  (管理費等:4000円)
礼金・敷金 なし / なし 保証金/敷引・償却 なし / -
交通
所在地 北海道札幌市白石区菊水六条1周辺地図
間取り 2LDK 専有面積 55.8m2
築年月 2023年3月 築年数 築2年10ヶ月
おすすめポイント
☆リスタートおすすめインターネット無料・エアコン付き☆ 地下鉄菊水駅徒歩10分♪2023年完成、インターネット無料・エアコン付きの人気2LDKに空きが出ました(^o^)対面システムキッチン・1坪バス・敷金礼金無し・ガス料金割引プラン御座います♪
お問い合わせ先
Re-start(株)不動産のリスタート
お問い合わせ先
Re-start(株)不動産のリスタート

詳細情報

賃料 9.3万円 管理費等 4000円
敷金 なし 礼金 なし
保証金 なし 敷引・償却 -
更新料 - 契約期間
カード決済 初期費用カード決済可
所在地 北海道札幌市白石区菊水六条1周辺地図
交通
  • 地下鉄東西線 菊水駅 徒歩10分乗換案内
  • JR函館本線 苗穂駅 徒歩13分乗換案内
  • 地下鉄東西線 バスセンター前駅 徒歩17分乗換案内
建物名 リヴェール 
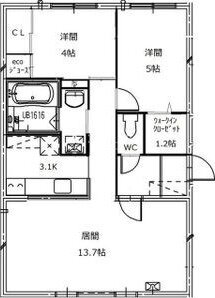
間取り 2LDK(洋5 洋4 LDK16.8) 築年月(築年数) 2023年3月(築2年10ヶ月)
専有面積 55.8㎡ 所在階/階数 4階/4階建
建物構造 RC  方位 南東 
現況   駐車場 近有 11,000円
入居可能時期 相談 住宅保険 なし
情報提供元 SUUMO[010H100471787969] 情報公開日
情報更新日 次回更新予定日 随時

設備など

2階以上 最上階 角部屋 -
駐車場(近隣含) エアコン付き バス・トイレ別
室内洗濯機置き場 追焚機能 - オートロック付き -
モニタ付インターホン フローリング - バルコニー -
ガスコンロ可 浴室乾燥機 - 24時間セキュリティ -
宅配ボックス ペット相談可 - 二人入居可
設備 冷房・暖房・エアコン・バス・トイレ別・トイレ・収納スペース・洗濯機置場・洗面所・BS端子・ウォークインクローゼット・ガスコンロ可・シャンプードレッサ・温水洗浄便座・システムキッチン・カウンターキッチン・モニタ付インターホン・宅配BOX・駐輪場・風呂・対面K・クローゼット・浴トイレ別・ロードH・防犯カメラ・洗面所独立・シューズボックス・インターネット無料・インターネット対応・室内洗濯機置き場 
リフォーム履歴 -
リノベーション履歴 -
備考 保証会社利用可:◯ほくせん ・初回保証料 月額賃料等合計の50%(最低保証料15,000円) ・月次保証料(非課税) 安心コース(家財保険100万円)M・T構造→1,700円 H構造(木造)→2,100円 もっと安心コース(家財保険300万円)M・T構造→1,900円 H構造(木造)→2,300円 ※ほくせん火災保険付帯プラン 他/普通借家2年/単身者可/二人入居可/子供可/フリーレント3月から家賃発生/バストイレ別/エアコン/クロゼット/シャワー付洗面台/TVインターホン/室内洗濯置/陽当り良好/シューズボックス/システムキッチン/南向き/温水洗浄便座/脱衣所/洗面所独立/洗面化粧台/駐輪場/宅配ボックス/光ファイバー/礼金不要/最上階/対面式キッチン/防犯カメラ/独立型キッチン/全居室洋室/ウォークインクロゼット/保証人不要/ガスレンジ付/2沿線利用可/LDK15畳以上/ネット専用回線/ネット使用料不要/眺望良好/ロードヒーティング/24時間換気システム/築3年以内/浴室1坪以上/2駅利用可/3駅以上利用可/駅徒歩10分以内/バス停徒歩3分以内/築5年以内/LDK12畳以上/BS/高速ネット対応/敷金・礼金不要/保証会社利用可/IT重説 対応物件/初期費用カード決済可/通風良好/巡回管理/マックスバリュ菊水店(スーパー)まで893m/セイコーマート菊水5条店(コンビニ)まで360m/札幌市立東橋小学校(小学校)まで578m/札幌市菊水乳児保育園(幼稚園・保育園)まで424m/勤医協札幌病院(病院)まで592m/札幌菊水北郵便局(郵便局)まで394m/賃貸戸数:12戸 
特記事項 二人入居可・フリーレント・管理人巡回・最上階・ロードヒーター・浴室1坪以上・日当り良好・保証人不要/代行 ・初期費用カード決済可

省エネ性能

エネルギー消費性能 -
断熱性能 -
目安光熱費 -

北海道札幌市白石区菊水六条1 周辺地図情報

地図
※地図上に表示される物件の位置は付近住所に所在することを表すものであり、実際の物件所在地とは異なる場合がございます。
   正確な物件所在地は、取扱い不動産会社にお問い合わせください。
お問い合わせ先
Re-start(株)不動産のリスタート

不動産会社情報

お問い合わせ先 商号:Re-start(株)不動産のリスタート
免許番号:北海道知事石狩(1)第9674号
所在地:北海道札幌市豊平区豊平三条5-1-1
TEL:011-827-7288
取引態様:仲介
管理コード:
所属協会など:(一社)北海道不動産公正取引協議会加盟、(公社)全日本不動産協会北海道本部会員
共有する
QRコード
お問い合わせ先
Re-start(株)不動産のリスタート

    札幌市白石区の暮らしデータ

    人口などの統計情報

    世帯数 967372世帯
    人口総数 1956928人
    転入者数 121035人
    転入率(人口1000人当たり)
    61.85人
    転出者数 109861人
    転出率(人口1000人当たり)
    56.14人
    土地平均価格
    住宅地
    107466円/m2
    商業地
    594868円/m2

    結婚・育児の助成金

    子育て関連の独自の取り組み (1)交通事故・労働災害およびその他不慮の災害により、父、または母等を失った(重度障がいとなった場合を含む)義務教育終了前の遺児を扶養する方に遺児1人につき月額4,000円を支給するとともに、手当の対象となる遺児が小・中学校および高等学校等に入学する際または中学校卒業後、就職する際に遺児1人につき2万円を支給。(2)認可保育所等における第2子以降の保育料について、世帯年収や兄弟姉妹の年齢差に関わらず無償化。
    出産祝い なし
    公立保育所数 20所(うち0歳児保育を実施している保育所:14所)
    私立保育所数 182所(うち0歳児保育を実施している保育所:182所)
    保育所入所待機児童数 0人
    認定こども園数 238園 預かり保育実施園数 公立:9園 私立:49園
    学校給食 【小学校】完全給食【中学校】完全給食
    公立中学校の学校選択制 一部実施(小規模特認校)
    子ども・学生等医療費助成<通院>対象年齢 中学校卒業まで 子ども・学生等医療費助成<入院>対象年齢 中学校卒業まで

    札幌市白石区の治安・ごみ収集情報

    公共料金・インフラ

    ガス料金(22m3使用した場合の月額) 北海道瓦斯株式会社5118円
    水道料金(口径20mmで20m3の月額) 札幌市3652円
    下水道料金(20m3を使用した場合の月額) 札幌市1397円
    下水道普及率 99.9%

    安心・安全

    建物火災出火件数 286件
    人口10000人当たり
    1.45件
    刑法犯認知件数 11263件
    人口1000人当たり
    5.71件
    ハザード・防災マップ あり

    医療

    一般病院総数 172ヶ所
    一般診療所総数 1433ヶ所
    小児科医師数 371人
    小児人口10000人当たり
    17.99人
    産婦人科医師数 203人
    15~49歳女性人口1万人当たり
    5.12人
    介護保険料基準額(月額) 5773円

    ごみ

    家庭ごみ収集(可燃ごみ) 有料
    備考
    燃やせるごみ・燃やせないごみは有料収集。
    家庭ごみの分別方式 9分別〔燃やせるごみ 燃やせないごみ スプレー缶・カセットボンベ 筒型乾電池 加熱式たばこ・電子たばこ・ライター 容器包装プラスチック びん・缶・ペットボトル 枝・葉・草 雑がみ〕 拠点回収:新聞 雑誌 ダンボール 紙パック 雑がみ びん・缶・ペットボトル 一升びん・ビールびん 容器包装プラスチック 古着 古布 毛布 小物金属類 小型家電 蛍光管 水銀体温計・水銀血圧計・水銀温度計 筒型乾電池 小型充電式電池 廃食油 生ごみ堆肥 枝・葉・草 使用済みインクカートリッジ スプレー缶・カセットボンベ ライター
    家庭ごみの戸別収集 一部実施(【さわやか収集】一定の要件に該当する要介護者や障がい者に対し、玄関先からのごみの収集や大型ごみの家屋内からの運び出しの支援を実施)
    粗大ごみ収集 あり
    備考
    有料。戸別収集。事前申込制(大型ごみ収集センター)。
    生ごみ処理機助成金制度 あり
    上限金額
    10000円
    上限比率
    50.0%
    暮らしデータ提供元:生活ガイド.com
    ※行政機関により公表していない地域及びデータがございます。東京23区以外の政令指定都市は、市全体のデータとして表示しています。
    ※提供データには細心の注意を払っておりますが、調査後に変更がある場合があります。 最新の情報につきましては各市区役所までお問い合わせいただくか、自治体HPなどをご確認ください。
    OCN×ドコモ光新規お申込みで合計最大137,280円相当おトク!特典の内訳・適用条件など詳細はこちら

    札幌市白石区内の各駅の住みやすさ

    他のエリアから探す

    札幌市白石区の詳細地域から賃貸物件を探す

    川北一条川北二条川北三条川北五条川下川下一条川下二条川下四条菊水一条菊水二条菊水三条菊水四条菊水五条菊水六条菊水七条菊水八条菊水九条菊水上町一条菊水上町二条菊水上町三条菊水上町四条菊水元町十条菊水元町一条菊水元町二条菊水元町三条菊水元町四条菊水元町五条菊水元町六条菊水元町七条菊水元町八条菊水元町九条北郷北郷一条北郷二条北郷三条北郷四条北郷五条北郷六条北郷七条北郷八条北郷九条栄通中央一条中央二条中央三条南郷通南郷通東札幌一条東札幌二条東札幌三条東札幌四条東札幌五条東札幌六条平和通平和通本郷通本郷通本通本通米里一条米里三条米里四条米里五条

    近辺の市区から探す

    札幌市中央区札幌市北区札幌市東区札幌市豊平区札幌市南区札幌市西区札幌市厚別区札幌市清田区

    周辺の駅から探す

    函館本線
    発寒中央琴似桑園札幌苗穂白石厚別森林公園大麻
    札幌市東西線
    西18丁目西11丁目大通バスセンター前菊水東札幌白石南郷7丁目南郷13丁目

    マンションライブラリーを見る

    リヴェール

    北海道札幌市白石区で他のジャンルから探す


    掲載情報の著作権は提供元企業等に帰属します。
    Copyright:(C) 2025 Recruit Co., Ltd.
    アプリで簡単 物件探し 大手不動産サイトの情報から一括検!プッシュ通知で物件を見逃さない
    App Storeからダウンロード Google Playで手に入れよう QRコード