アプリで簡単 物件探し 通知 共有 アプリならではの機能を使ってみる
賃貸アパート

神奈川県小田原市荻窪 小田原駅 1K 賃貸(賃貸マンション・アパート)

情報提供元
アットホーム
賃料 5.7万円  (管理費等:1000円)
礼金・敷金 1ヶ月 / 2ヶ月 保証金/敷引・償却 なし / -
交通
所在地 神奈川県小田原市荻窪周辺地図
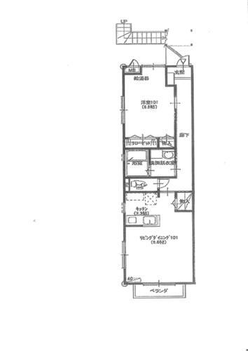
間取り 1K 専有面積 30.91m2
築年月 2008年7月 築年数 築17年6ヶ月

詳細情報

賃料 5.7万円 管理費等 1000円
敷金 2ヶ月 礼金 1ヶ月
保証金 なし 敷引・償却 -
更新料 新賃料の0.5ヶ月分 契約期間 2年
カード決済 -
所在地 神奈川県小田原市荻窪周辺地図
交通
  • JR東海道本線 小田原駅 徒歩11分乗換案内
建物名  
間取り 1K(洋 8.4) 築年月(築年数) 2008年7月(築17年6ヶ月)
専有面積 30.91㎡ 所在階/階数 2階/3階建
建物構造 木造  方位  
現況 空  駐車場 有 7,000円
入居可能時期 即時 住宅保険 あり火災 2年 15000円
情報提供元 アットホーム[6988632987] 情報公開日
情報更新日 - 次回更新予定日 随時

設備など

2階以上 最上階 - 角部屋 -
駐車場(近隣含) エアコン付き バス・トイレ別
室内洗濯機置き場 追焚機能 - オートロック付き -
モニタ付インターホン - フローリング - バルコニー
ガスコンロ可 - 浴室乾燥機 - 24時間セキュリティ -
宅配ボックス - ペット相談可 - 二人入居可 -
設備 エアコン・バルコニー・バス・トイレ別・収納スペース・洗濯機置場・室内洗濯機置き場・シャワー・CATV・プロパンガス・照明器具・駐輪場・クローゼット・洗面所独立・バイク置き場・コンロ2口以上 
リフォーム履歴 -
リノベーション履歴 -
備考 賃貸保証等:加入要(詳細はお問い合わせください。)・市役所やスーパー近く生活便利!JR東海道線小田原駅徒歩11分!南向き・住環境良好!・バイク置場:有(300円/月)・駐輪場:有(200円/月)/車庫証明 2200円 
特記事項

省エネ性能

エネルギー消費性能 -
断熱性能 -
目安光熱費 -

神奈川県小田原市荻窪 周辺地図情報

地図
※地図上に表示される物件の位置は付近住所に所在することを表すものであり、実際の物件所在地とは異なる場合がございます。
   正確な物件所在地は、取扱い不動産会社にお問い合わせください。

不動産会社情報

お問い合わせ先 商号:(株)不動産発見館
免許番号:神奈川県知事免許(4)第27610号
所在地:小田原市栄町2丁目10-1
TEL:0465-24-2446
取引態様:仲介
管理コード:
所属協会など:(公社)神奈川県宅地建物取引業協会会員、(公社)首都圏不動産公正取引協議会加盟
共有する
QRコード

    小田原市の暮らしデータ

    人口などの統計情報

    世帯数 81622世帯
    人口総数 187040人
    転入者数 7388人
    転入率(人口1000人当たり)
    39.50人
    転出者数 6595人
    転出率(人口1000人当たり)
    35.26人
    土地平均価格
    住宅地
    106278円/m2
    商業地
    195000円/m2

    結婚・育児の助成金

    子育て関連の独自の取り組み -
    出産祝い あり
    公立保育所数 5所(うち0歳児保育を実施している保育所:4所)
    私立保育所数 26所(うち0歳児保育を実施している保育所:25所)
    保育所入所待機児童数 3人
    認定こども園数 5園 預かり保育実施園数 公立:2園 私立:10園
    学校給食 【小学校】完全給食【中学校】完全給食
    公立中学校の学校選択制 未実施
    子ども・学生等医療費助成<通院>対象年齢 中学校卒業まで 子ども・学生等医療費助成<入院>対象年齢 中学校卒業まで

    小田原市の治安・ごみ収集情報

    公共料金・インフラ

    ガス料金(22m3使用した場合の月額) 小田原瓦斯株式会社4489円
    水道料金(口径20mmで20m3の月額) 小田原市2255円
    神奈川県営水道2509円
    下水道料金(20m3を使用した場合の月額) 小田原市2636円
    下水道普及率 83.6%

    安心・安全

    建物火災出火件数 33件
    人口10000人当たり
    1.75件
    刑法犯認知件数 928件
    人口1000人当たり
    4.91件
    ハザード・防災マップ あり

    医療

    一般病院総数 11ヶ所
    一般診療所総数 152ヶ所
    小児科医師数 32人
    小児人口10000人当たり
    16.39人
    産婦人科医師数 15人
    15~49歳女性人口1万人当たり
    4.44人
    介護保険料基準額(月額) 5990円

    ごみ

    家庭ごみ収集(可燃ごみ) 無料
    備考
    清掃工場に持ち込みの場合は、有料(25円/kg)。
    家庭ごみの分別方式 8分別17種〔燃せるごみ 紙・布類(新聞紙、雑誌、段ボール、紙パック、その他紙、布類) ペットボトル トレー類・プラマーク表示のあるもの かん類 びん類 燃せないごみ スプレー缶など(スプレー缶・カセットボンベ、蛍光灯、乾電池、ビデオテープ・カセットテープ、廃食用油)〕
    家庭ごみの戸別収集 一部実施(紙・布類について高齢者世帯、障がい者世帯を対象に、紙・布類の登録制戸別収集を実施)
    粗大ごみ収集 あり
    備考
    有料(1,000円/枚の証紙購入)。事前申込制による戸別収集。
    生ごみ処理機助成金制度 なし
    上限金額
    -
    上限比率
    -
    暮らしデータ提供元:生活ガイド.com
    ※行政機関により公表していない地域及びデータがございます。東京23区以外の政令指定都市は、市全体のデータとして表示しています。
    ※提供データには細心の注意を払っておりますが、調査後に変更がある場合があります。 最新の情報につきましては各市区役所までお問い合わせいただくか、自治体HPなどをご確認ください。
    OCN×ドコモ光新規お申込みで合計最大137,280円相当おトク!特典の内訳・適用条件など詳細はこちら

    小田原市内の各駅の住みやすさ

    他のエリアから探す

    小田原市の詳細地域から賃貸物件を探す

    穴部穴部新田新屋飯泉飯田岡池上井細田板橋入生田扇町荻窪小竹小船風祭上新田上曽我鴨宮栢山北ノ窪久野国府津小台寿町小八幡栄町酒匂清水新田下新田下堀城山曽我光海曽我原曽我別所曽比高田多古田島千代中里中新田中曽根中町中村原永塚成田西酒匂羽根尾浜町早川東町府川別堀堀之内本町前川南板橋南鴨宮南町柳新田矢作蓮正寺

    近辺の市区から探す

    南足柄市中郡二宮町足柄上郡中井町足柄上郡大井町足柄上郡松田町足柄上郡山北町足柄上郡開成町足柄下郡箱根町足柄下郡真鶴町

    周辺の駅から探す

    東海道本線
    大磯二宮国府津鴨宮小田原早川根府川真鶴湯河原

    神奈川県小田原市で他のジャンルから探す


    掲載情報の著作権は提供元企業等に帰属します。
    Copyright:(C) 2025 At Home Co.,Ltd
    アプリで簡単 物件探し 大手不動産サイトの情報から一括検!プッシュ通知で物件を見逃さない
    App Storeからダウンロード Google Playで手に入れよう QRコード