アプリで簡単 物件探し 通知 共有 アプリならではの機能を使ってみる
賃貸アパート

モンシェル 北鎌倉駅 2SLDK 賃貸(賃貸マンション・アパート)

情報提供元
アットホーム
モンシェル
賃料 11.6万円  (管理費等:-)
礼金・敷金 1ヶ月 / 1ヶ月 保証金/敷引・償却 なし / -
交通
所在地 神奈川県鎌倉市大船周辺地図
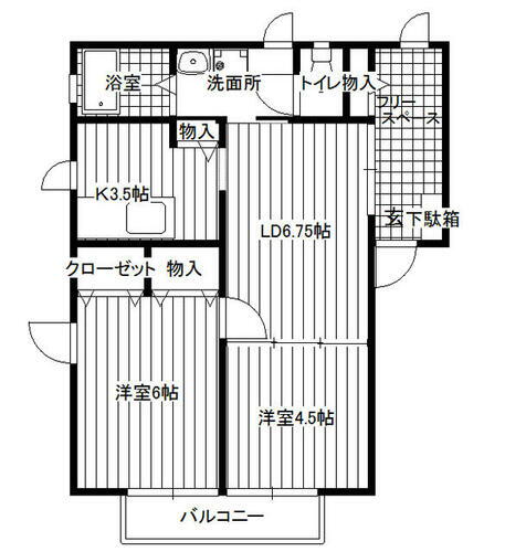
間取り 2SLDK 専有面積 49.68m2
築年月 2007年7月 築年数 築18年6ヶ月
おすすめポイント
ペット相談可・閑静な住宅街・角部屋

詳細情報

賃料 11.6万円 管理費等 -
敷金 1ヶ月 礼金 1ヶ月
保証金 なし 敷引・償却 -
更新料 新賃料の1ヶ月分 契約期間 2年
カード決済 -
所在地 神奈川県鎌倉市大船周辺地図
交通
建物名 モンシェル 
間取り 2SLDK(洋 6・4.5 LDK 10.2 S 3) 築年月(築年数) 2007年7月(築18年6ヶ月)
専有面積 49.68㎡ 所在階/階数 1階/2階建
建物構造 軽量鉄骨  方位  
現況 空  駐車場 有 10,000円
入居可能時期 即時 住宅保険 あり東京海上ミレア 2年 19000円
情報提供元 アットホーム[2187642701] 情報公開日
情報更新日 - 次回更新予定日 随時

設備など

2階以上 - 最上階 - 角部屋
駐車場(近隣含) エアコン付き - バス・トイレ別
室内洗濯機置き場 追焚機能 オートロック付き -
モニタ付インターホン フローリング バルコニー -
ガスコンロ可 浴室乾燥機 24時間セキュリティ -
宅配ボックス - ペット相談可 二人入居可 -
設備 給湯・バス・トイレ別・トイレ・収納スペース・洗濯機置場・室内洗濯機置き場・洗面所・シャワー・CATV・追焚機能・プロパンガス・洗面台・フローリング・浴室乾燥機・ガスコンロ可・シャンプードレッサ・モニタ付インターホン・庭・床下収納・洗面所独立 
リフォーム履歴 -
リノベーション履歴 -
備考 ペット可。種類相談2匹まで管理規約有・賃貸保証等:加入要(日本賃貸保証株式会社利用 保証料契約時50%更新時30%)・ペット条件:小型犬可/2匹迄可・小さなお庭付き・小型犬2匹迄飼育可 1匹につき敷金1ヶ月追加(飼育・使用管理規約あり)・南向き・緑多き閑静な住宅地・サービスルームの利用方法は貴方次第 
特記事項 ペット相談可・閑静な住宅街・角部屋

省エネ性能

エネルギー消費性能 -
断熱性能 -
目安光熱費 -

神奈川県鎌倉市大船 周辺地図情報

地図
※地図上に表示される物件の位置は付近住所に所在することを表すものであり、実際の物件所在地とは異なる場合がございます。
   正確な物件所在地は、取扱い不動産会社にお問い合わせください。
アピールポイント
お探しの方には嬉しいペット(小型犬)相談可。閑静な住宅街の住戸、更に憩える庭有の住戸なので、アウトドアのある暮らしが叶います。また洗面ボウルが大きなシャンプードレッサー付で、その上犯罪抑止にもつながる防犯ガラス採用なので、不審者の侵入をブロック。ちなみに台風にも強くプライバシーも守れるシャッター雨戸付です。家族が帰宅を焦がれる2SLDK。実際の空間をご自身で体感ください。

不動産会社情報

お問い合わせ先 商号:(有)森ハウジング
免許番号:神奈川県知事免許(10)第14514号
所在地:鎌倉市大船1260
TEL:0467-46-3694
取引態様:仲介
管理コード:
所属協会など:(公社)神奈川県宅地建物取引業協会会員、(公社)首都圏不動産公正取引協議会加盟
共有する
QRコード

    鎌倉市の暮らしデータ

    人口などの統計情報

    世帯数 75607世帯
    人口総数 175625人
    転入者数 7562人
    転入率(人口1000人当たり)
    43.06人
    転出者数 6984人
    転出率(人口1000人当たり)
    39.77人
    土地平均価格
    住宅地
    214476円/m2
    商業地
    975500円/m2

    結婚・育児の助成金

    子育て関連の独自の取り組み (1)かまくらこども相談窓口きらきらの運営。(2)「かまくら子育てナビきらきら」の発行・配布。
    出産祝い なし
    公立保育所数 4所(うち0歳児保育を実施している保育所:4所)
    私立保育所数 24所(うち0歳児保育を実施している保育所:24所)
    保育所入所待機児童数 34人
    認定こども園数 6園 預かり保育実施園数 公立:- 私立:15園
    学校給食 【小学校】完全給食【中学校】家庭弁当等との選択制/デリバリー形式[運搬:ランチボックス、内容:完全給食]
    公立中学校の学校選択制 未実施
    子ども・学生等医療費助成<通院>対象年齢 18歳3月末まで 子ども・学生等医療費助成<入院>対象年齢 18歳3月末まで

    鎌倉市の治安・ごみ収集情報

    公共料金・インフラ

    ガス料金(22m3使用した場合の月額) 東京瓦斯株式会社(東京地区等)3926円
    水道料金(口径20mmで20m3の月額) 神奈川県営水道2988円
    下水道料金(20m3を使用した場合の月額) 鎌倉市2754円
    下水道普及率 97.8%

    安心・安全

    建物火災出火件数 28件
    人口10000人当たり
    1.62件
    刑法犯認知件数 645件
    人口1000人当たり
    3.73件
    ハザード・防災マップ あり

    医療

    一般病院総数 11ヶ所
    一般診療所総数 184ヶ所
    小児科医師数 29人
    小児人口10000人当たり
    15.35人
    産婦人科医師数 21人
    15~49歳女性人口1万人当たり
    6.66人
    介護保険料基準額(月額) 5500円

    ごみ

    家庭ごみ収集(可燃ごみ) 有料
    備考
    指定ごみ袋有料。
    家庭ごみの分別方式 4分別21種〔資源物(飲食用カン、飲食用ビン、植木剪定材、ミックスペーパー、新聞紙、雑誌・古本、ボール紙・クラフト紙、紙パック、ダンボール、布類、ペットボトル、容器包装プラスチック、使用済み食用油、製品プラスチック) 燃やすごみ 燃えないごみ 危険・有害ごみ(蛍光管、乾電池、体温計・温度計、スプレーカン・カセットボンベ、割れたガラス・陶磁器・鏡・刃物類・電球)〕
    家庭ごみの戸別収集 一部実施(【声かけふれあい収集】[1]介護保険の居宅サービスを日常的に利用している高齢者のみで構成されている世帯。[2]身体障害者手帳1級又は2級の交付を受けている障害者のみで構成されている世帯。[3]精神障害者保健福祉手帳1級又は2級の交付を受けており、居宅介護を日常的に利用している障害者のみで構成されている世帯。[4]前3号に規定する高齢者及び障害者で構成されている世帯。[5]前各号に規定する世帯と同等の状態にあると市長が認めた世帯)
    粗大ごみ収集 あり
    備考
    有料。事前申込制。
    生ごみ処理機助成金制度 あり
    上限金額
    30000円
    上限比率
    75.0%
    暮らしデータ提供元:生活ガイド.com
    ※行政機関により公表していない地域及びデータがございます。東京23区以外の政令指定都市は、市全体のデータとして表示しています。
    ※提供データには細心の注意を払っておりますが、調査後に変更がある場合があります。 最新の情報につきましては各市区役所までお問い合わせいただくか、自治体HPなどをご確認ください。
    OCN×ドコモ光新規お申込みで合計最大137,280円相当おトク!特典の内訳・適用条件など詳細はこちら

    鎌倉市内の各駅の住みやすさ

    他のエリアから探す

    鎌倉市の詳細地域から賃貸物件を探す

    稲村ガ崎今泉今泉台岩瀬植木扇ガ谷大船大町岡本御成町梶原鎌倉山上町屋腰越小袋谷小町極楽寺坂ノ下笹目町佐助材木座七里ガ浜七里ガ浜東城廻十二所浄明寺関谷高野玉縄津西手広寺分常盤二階堂西鎌倉西御門長谷笛田山崎山ノ内由比ガ浜雪ノ下

    近辺の市区から探す

    横浜市磯子区横浜市金沢区横浜市戸塚区横浜市港南区横浜市栄区横浜市泉区横須賀市藤沢市逗子市三浦郡葉山町

    周辺の駅から探す

    横須賀線
    保土ケ谷東戸塚戸塚大船北鎌倉鎌倉逗子東逗子田浦

    神奈川県鎌倉市で他のジャンルから探す


    掲載情報の著作権は提供元企業等に帰属します。
    Copyright:(C) 2025 At Home Co.,Ltd
    アプリで簡単 物件探し 大手不動産サイトの情報から一括検!プッシュ通知で物件を見逃さない
    App Storeからダウンロード Google Playで手に入れよう QRコード