アプリで簡単 物件探し 通知 共有 アプリならではの機能を使ってみる
賃貸マンション

a・cube 青葉台駅 1LDK 賃貸(賃貸マンション・アパート)

情報提供元
アットホーム
a・cube
賃料 11.3万円  (管理費等:6000円)
礼金・敷金 1ヶ月 / 1ヶ月 保証金/敷引・償却 なし / -
交通
所在地 神奈川県横浜市青葉区青葉台1丁目周辺地図
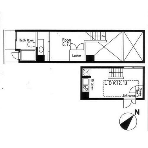
間取り 1LDK 専有面積 44.49m2
築年月 2002年7月 築年数 築23年6ヶ月
お問い合わせ先
東急リバブル(株) 青葉台センター
お問い合わせ先
東急リバブル(株) 青葉台センター

詳細情報

賃料 11.3万円 管理費等 6000円
敷金 1ヶ月 礼金 1ヶ月
保証金 なし 敷引・償却 -
更新料 新賃料の1ヶ月分 契約期間 定期借家 4年
カード決済 -
所在地 神奈川県横浜市青葉区青葉台1丁目周辺地図
交通
  • 東急田園都市線 青葉台駅 徒歩3分乗換案内
建物名 a・cube 
間取り 1LDK(洋6.7 LDK12.1) 築年月(築年数) 2002年7月(築23年6ヶ月)
専有面積 44.49㎡ 所在階/階数 5階/9階建
建物構造 SRC  方位 南西 
現況 空  駐車場 無 
入居可能時期 即時 住宅保険 あり 2年 16550円
情報提供元 アットホーム[1002245969] 情報公開日
情報更新日 - 次回更新予定日 随時

設備など

2階以上 最上階 - 角部屋 -
駐車場(近隣含) - エアコン付き バス・トイレ別 -
室内洗濯機置き場 追焚機能 - オートロック付き
モニタ付インターホン - フローリング - バルコニー -
ガスコンロ可 - 浴室乾燥機 - 24時間セキュリティ -
宅配ボックス - ペット相談可 - 二人入居可 -
設備 エアコン・オートロック・洗濯機置場・室内洗濯機置き場・エレベーター・CATV・温水洗浄便座 
リフォーム履歴 -
リノベーション履歴 -
備考 賃貸保証等:加入要(あんしんQ-Rent 初回保証料:賃料等の50%(最低2万)、月次保証料:賃料等の1%)・仲介手数料:124,300円/カギ交換代 33000円/クリーニング費用 47960円/エアコン清掃費 38500円 
特記事項

省エネ性能

エネルギー消費性能 -
断熱性能 -
目安光熱費 -

神奈川県横浜市青葉区青葉台1丁目 周辺地図情報

地図
※地図上に表示される物件の位置は付近住所に所在することを表すものであり、実際の物件所在地とは異なる場合がございます。
   正確な物件所在地は、取扱い不動産会社にお問い合わせください。
お問い合わせ先
東急リバブル(株) 青葉台センター

不動産会社情報

お問い合わせ先 商号:東急リバブル(株) 青葉台センター
免許番号:国土交通大臣免許(12)第2611号
所在地:横浜市青葉区青葉台2丁目5番地14SMBC青葉台ビル 5階
TEL:0800-170-7055
取引態様:仲介
管理コード:10000118500103200015
所属協会など:(一社)不動産流通経営協会会員、(一社)不動産協会会員、(公社)首都圏不動産公正取引協議会加盟
共有する
QRコード
お問い合わせ先
東急リバブル(株) 青葉台センター

    横浜市青葉区の暮らしデータ

    人口などの統計情報

    世帯数 1744208世帯
    人口総数 3752969人
    転入者数 217258人
    転入率(人口1000人当たり)
    57.89人
    転出者数 201570人
    転出率(人口1000人当たり)
    53.71人
    土地平均価格
    住宅地
    254434円/m2
    商業地
    1043863円/m2

    結婚・育児の助成金

    子育て関連の独自の取り組み 横浜市私立幼稚園等預かり保育事業(横浜市が定めた基準(実施日、時間、職員配置等)を満たし、横浜市の認定を受けた幼稚園・認定こども園が実施する事業。市内在住の園児の保護者が就労や病気等で、園の正規教育時間の前後に家庭で保育ができない場合に、利用可能。3歳児~5歳児は無料、満3歳児は(a)私学助成を受ける幼稚園の場合、月額9,000円、(b)新制度に移行した園の場合、0円~9,000円)。
    出産祝い あり
    公立保育所数 56所(うち0歳児保育を実施している保育所:41所)
    私立保育所数 813所(うち0歳児保育を実施している保育所:716所)
    保育所入所待機児童数 5人
    認定こども園数 70園 預かり保育実施園数 公立:- 私立:213園
    学校給食 【小学校】完全給食【中学校】家庭弁当等・業者弁当との選択制/デリバリー形式[運搬:ランチボックス、内容:完全給食]
    公立中学校の学校選択制 一部実施(特定地域選択制[特別調整通学区域])
    子ども・学生等医療費助成<通院>対象年齢 中学校卒業まで 子ども・学生等医療費助成<入院>対象年齢 中学校卒業まで

    横浜市青葉区の治安・ごみ収集情報

    公共料金・インフラ

    ガス料金(22m3使用した場合の月額) 東京瓦斯株式会社(東京地区等)3926円
    水道料金(口径20mmで20m3の月額) 横浜市3017円
    下水道料金(20m3を使用した場合の月額) 横浜市2035円
    下水道普及率 100.0%

    安心・安全

    建物火災出火件数 438件
    人口10000人当たり
    1.16件
    刑法犯認知件数 16059件
    人口1000人当たり
    4.25件
    ハザード・防災マップ あり

    医療

    一般病院総数 113ヶ所
    一般診療所総数 3201ヶ所
    小児科医師数 682人
    小児人口10000人当たり
    15.98人
    産婦人科医師数 346人
    15~49歳女性人口1万人当たり
    4.58人
    介護保険料基準額(月額) 6620円

    ごみ

    家庭ごみ収集(可燃ごみ) 無料
    備考
    -
    家庭ごみの分別方式 7分別9種〔燃やすごみ 燃えないごみ スプレー缶 乾電池 プラスチック製容器包装 缶・びん・ペットボトル(缶、びん、ペットボトル) 小さな金属類〕
    家庭ごみの戸別収集 一部実施(【ふれあい収集】家庭ごみ・粗大ごみを集積場所まで持ち出すことができない高齢者や障害のある方などを対象にごみ出しの支援を実施。【狭あい道路収集】道路が狭く収集車が通行することができないため、集積場所が自宅近くに設けられない地域において、軽四輪車でごみを収集)
    粗大ごみ収集 あり
    備考
    有料。事前申込制。自宅近くまでもしくは市内4ヶ所に設置されている自己搬入ヤードへ持ち込み。申し込みは電話、またはインターネット。
    生ごみ処理機助成金制度 なし
    上限金額
    -
    上限比率
    -
    暮らしデータ提供元:生活ガイド.com
    ※行政機関により公表していない地域及びデータがございます。東京23区以外の政令指定都市は、市全体のデータとして表示しています。
    ※提供データには細心の注意を払っておりますが、調査後に変更がある場合があります。 最新の情報につきましては各市区役所までお問い合わせいただくか、自治体HPなどをご確認ください。
    OCN×ドコモ光新規お申込みで合計最大137,280円相当おトク!特典の内訳・適用条件など詳細はこちら

    横浜市青葉区内の各駅の住みやすさ

    他のエリアから探す

    横浜市青葉区の詳細地域から賃貸物件を探す

    青葉台あかね台あざみ野あざみ野南市ケ尾町美しが丘美しが丘西梅が丘荏子田荏田北荏田町荏田西榎が丘大場町恩田町柿の木台桂台鴨志田町鉄町黒須田桜台さつきが丘下谷本町しらとり台新石川すすき野すみよし台たちばな台田奈町千草台つつじが丘奈良奈良町藤が丘松風台みすずが丘みたけ台もえぎ野元石川町もみの木台若草台

    近辺の市区から探す

    調布市町田市狛江市多摩市稲城市横浜市神奈川区横浜市保土ケ谷区横浜市港北区横浜市旭区横浜市緑区横浜市瀬谷区横浜市都筑区川崎市中原区川崎市高津区川崎市多摩区川崎市宮前区川崎市麻生区相模原市南区大和市

    周辺の駅から探す

    東急田園都市線
    あざみ野江田市が尾藤が丘青葉台田奈長津田つくし野すずかけ台

    神奈川県横浜市青葉区で他のジャンルから探す


    掲載情報の著作権は提供元企業等に帰属します。
    Copyright:(C) 2025 At Home Co.,Ltd
    アプリで簡単 物件探し 大手不動産サイトの情報から一括検!プッシュ通知で物件を見逃さない
    App Storeからダウンロード Google Playで手に入れよう QRコード