アプリで簡単 物件探し 通知 共有 アプリならではの機能を使ってみる
賃貸アパート

小林ハイツ 鶴ヶ島駅 2K 賃貸(賃貸マンション・アパート)

情報提供元
アットホーム
小林ハイツ
賃料 4.5万円  (管理費等:-)
礼金・敷金 なし / 1ヶ月 保証金/敷引・償却 なし / -
交通
所在地 埼玉県鶴ヶ島市大字鶴ヶ丘周辺地図
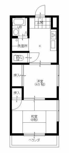
間取り 2K 専有面積 32.4m2
築年月 1987年12月 築年数 築38年1ヶ月
おすすめポイント
角部屋

詳細情報

賃料 4.5万円 管理費等 -
敷金 1ヶ月 礼金 なし
保証金 なし 敷引・償却 -
更新料 - 契約期間 2年
カード決済 -
所在地 埼玉県鶴ヶ島市大字鶴ヶ丘周辺地図
交通
建物名 小林ハイツ 
間取り 2K(和 6 洋 4.5 K 3) 築年月(築年数) 1987年12月(築38年1ヶ月)
専有面積 32.4㎡ 所在階/階数 3階/3階建
建物構造 鉄骨  方位  
現況 空  駐車場 無 
入居可能時期 即時 住宅保険 あり家財 2年 20000円
情報提供元 アットホーム[5587755701] 情報公開日
情報更新日 - 次回更新予定日 随時

設備など

2階以上 最上階 - 角部屋
駐車場(近隣含) - エアコン付き バス・トイレ別
室内洗濯機置き場 - 追焚機能 - オートロック付き -
モニタ付インターホン - フローリング - バルコニー -
ガスコンロ可 - 浴室乾燥機 - 24時間セキュリティ -
宅配ボックス - ペット相談可 - 二人入居可 -
設備 エアコン・バス・トイレ別 
リフォーム履歴 -
リノベーション履歴 -
備考 ペット不可・賃貸保証等:加入要(ジェイリース株式会社) 
特記事項 角部屋

省エネ性能

エネルギー消費性能 -
断熱性能 -
目安光熱費 -

埼玉県鶴ヶ島市大字鶴ヶ丘 周辺地図情報

地図
※地図上に表示される物件の位置は付近住所に所在することを表すものであり、実際の物件所在地とは異なる場合がございます。
   正確な物件所在地は、取扱い不動産会社にお問い合わせください。

不動産会社情報

お問い合わせ先 商号:(有)斉藤木材工業
免許番号:埼玉県知事免許(14)第4812号
所在地:鶴ヶ島市大字鶴ヶ丘81-24
TEL:049-285-3266
取引態様:仲介
管理コード:
所属協会など:(公社)埼玉県宅地建物取引業協会会員、(公社)首都圏不動産公正取引協議会加盟
共有する
QRコード

    鶴ヶ島市の暮らしデータ

    人口などの統計情報

    世帯数 30502世帯
    人口総数 70063人
    転入者数 3799人
    転入率(人口1000人当たり)
    54.22人
    転出者数 3463人
    転出率(人口1000人当たり)
    49.43人
    土地平均価格
    住宅地
    88980円/m2
    商業地
    184000円/m2

    結婚・育児の助成金

    子育て関連の独自の取り組み ふるさと鶴ヶ島誕生お祝い事業として、第1子・第2子出生の際に5,000円相当のプレゼントを贈呈。第3子以降の出生の場合、プレゼントに加えて2万円のお祝い金を支給。
    出産祝い あり
    公立保育所数 2所(うち0歳児保育を実施している保育所:2所)
    私立保育所数 10所(うち0歳児保育を実施している保育所:9所)
    保育所入所待機児童数 0人
    認定こども園数 1園 預かり保育実施園数 公立:- 私立:5園
    学校給食 【小学校】完全給食【中学校】完全給食
    公立中学校の学校選択制 未実施
    子ども・学生等医療費助成<通院>対象年齢 中学校卒業まで 子ども・学生等医療費助成<入院>対象年齢 中学校卒業まで

    鶴ヶ島市の治安・ごみ収集情報

    公共料金・インフラ

    ガス料金(22m3使用した場合の月額) 武州瓦斯株式会社4281円
    坂戸ガス株式会社4522円
    水道料金(口径20mmで20m3の月額) 坂戸、鶴ヶ島水道企業団2761円
    下水道料金(20m3を使用した場合の月額) 坂戸、鶴ヶ島下水道組合2343円
    下水道普及率 89.0%

    安心・安全

    建物火災出火件数 6件
    人口10000人当たり
    0.86件
    刑法犯認知件数 361件
    人口1000人当たり
    5.15件
    ハザード・防災マップ あり

    医療

    一般病院総数 2ヶ所
    一般診療所総数 43ヶ所
    小児科医師数 8人
    小児人口10000人当たり
    10.98人
    産婦人科医師数 0人
    15~49歳女性人口1万人当たり
    0.00人
    介護保険料基準額(月額) 4850円

    ごみ

    家庭ごみ収集(可燃ごみ) 無料
    備考
    処理施設への直接搬入は有料。
    家庭ごみの分別方式 7分別16種〔可燃ごみ 不燃ごみ(不燃ごみ、小型家電、便座・ウォシュレット、危険物) 有害ごみ(有害ごみ、蛍光灯) びん・かん類 紙・布類(雑紙、新聞紙、紙パック、ダンボール、布類) ペットボトル その他容器包装プラスチック〕 拠点回収:携帯電話 使用済インクカートリッジ
    家庭ごみの戸別収集 一部実施(【高齢者等ごみ戸別収集サービス】ごみ集積所まで、ごみの持ち出しが困難な世帯に対し戸別にごみ等を収集)
    粗大ごみ収集 あり
    備考
    有料。事前申込制。
    生ごみ処理機助成金制度 なし
    上限金額
    -
    上限比率
    -
    暮らしデータ提供元:生活ガイド.com
    ※行政機関により公表していない地域及びデータがございます。東京23区以外の政令指定都市は、市全体のデータとして表示しています。
    ※提供データには細心の注意を払っておりますが、調査後に変更がある場合があります。 最新の情報につきましては各市区役所までお問い合わせいただくか、自治体HPなどをご確認ください。
    OCN×ドコモ光新規お申込みで合計最大137,280円相当おトク!特典の内訳・適用条件など詳細はこちら

    鶴ヶ島市内の各駅の住みやすさ

    他のエリアから探す

    鶴ヶ島市の詳細地域から賃貸物件を探す

    大字太田ヶ谷大字上広谷大字五味ヶ谷大字下新田大字脚折大字鶴ヶ丘大字中新田大字藤金大字富士見共栄町新町脚折町羽折町富士見松ヶ丘南町柳戸町若葉

    近辺の市区から探す

    川越市飯能市東松山市狭山市入間市坂戸市日高市ふじみ野市入間郡毛呂山町入間郡越生町比企郡川島町比企郡吉見町比企郡鳩山町比企郡ときがわ町

    周辺の駅から探す

    東武鉄道東上線
    新河岸川越川越市霞ヶ関鶴ヶ島若葉坂戸北坂戸高坂

    埼玉県鶴ヶ島市で他のジャンルから探す


    掲載情報の著作権は提供元企業等に帰属します。
    Copyright:(C) 2025 At Home Co.,Ltd
    アプリで簡単 物件探し 大手不動産サイトの情報から一括検!プッシュ通知で物件を見逃さない
    App Storeからダウンロード Google Playで手に入れよう QRコード