アプリで簡単 物件探し 通知 共有 アプリならではの機能を使ってみる
中古マンション

レジオン大洲公園 12階 3LDK

情報提供元
SUUMO
レジオン大洲公園
価格 1730万円  (管理費等:8000円/月(委託(巡回)))
修繕積立金 8,000円
交通
  • JR日豊本線「牧」2.9Km
所在地 大分県大分市西新地2周辺地図
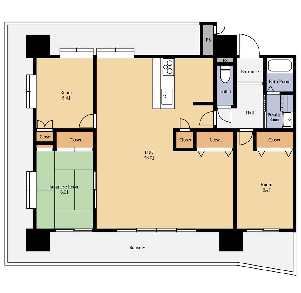
間取り 3LDK 専有面積 85.95m2(壁芯)
所在階/階数 12階/13階建 方位
築年月 1998年1月 築年数 築27年12ヶ月
おすすめポイント
対面式キッチンで料理をしながらご家族と会話を楽しめます!
日当り良好・角部屋・管理人巡回
物件を見たい、物件や住環境の詳しい情報やローン相談など、
お問い合わせ先
(株)ベツダイ

詳細情報

価格 1730万円 管理費等 8000円/月(委託(巡回))
駐車場 専用使用権付駐車場(5000円/月) 修繕積立金 8,000円
所在地 大分県大分市西新地2周辺地図
交通
  • JR日豊本線「牧」2.9Km
物件名 レジオン大洲公園
築年月(築年数) 1998年1月(築27年12ヶ月) 間取り 3LDK
総戸数 専有面積 85.95m2(壁芯)
所在階/階数 12階/13階建 バルコニー面積 39.53m2
方位 建物構造 SRC
管理形態 委託管理
維持費等 土地権利 所有権
用途地域 準工業 借地期間・地代
現況 引渡可能年月 相談
情報提供元 SUUMO [090Z78034905] 情報公開日
情報更新日 次回更新予定日 随時

設備など

ペット相談可 - 即入居可 - 南向き
角部屋 駐車場空き有り トランクルーム -
オートロック - 宅配ボックス - 浴室乾燥機 -
床暖房 - ウォークインクローゼット - 管理人常駐 -
最上階 - 2階以上 タワーマンション -
設備 バルコニー・トイレ・収納スペース・洗面所・エレベーター・シャンプードレッサ・温水洗浄便座・システムキッチン・モニタ付インターホン・風呂・対面K・2面バルコニー
リフォーム履歴 -
リノベーション履歴 -
備考 <物件名>レジオン大洲公園/<駐車場>専用使用権付駐車場/委託(巡回)/<土地権利>所有権/<間取り>3LDK/<特徴>◆南向き、3面バルコニーで明るい室内!◆中心部に近く、利便性良好です!、LDK20畳以上・スーパー 徒歩10分以内・市街地が近い・南向き・システムキッチン
販売戸数:1戸/管理費等帯:8000円/修繕積立金帯:8000円
特記事項 日当り良好・角部屋・管理人巡回

省エネ性能

エネルギー消費性能 -
断熱性能 -
目安光熱費 -

大分県大分市西新地2 周辺地図情報

地図
※地図上に表示される物件の位置は付近住所に所在することを表すものであり、実際の物件所在地とは異なる場合がございます。
   正確な物件所在地は、取扱い不動産会社にお問い合わせください。
物件を見たい、物件や住環境の詳しい情報やローン相談など、
お問い合わせ先
(株)ベツダイ

不動産会社情報

お問い合わせ先 商号:(株)ベツダイ
免許番号:国土交通大臣(3)第008565号
所在地:大分県大分市長浜町3-16-3
TEL:097-533-6000
取引態様:専任媒介
共有する
QRコード
物件を見たい、物件や住環境の詳しい情報やローン相談など、
お問い合わせ先
(株)ベツダイ

大分市の暮らしデータ

人口などの統計情報

世帯数 209066世帯
人口総数 474665人
転入者数 14805人
転入率(人口1000人当たり)
31.19人
転出者数 14487人
転出率(人口1000人当たり)
30.52人
土地平均価格
住宅地
57346円/m2
商業地
134074円/m2

結婚・育児の助成金

子育て関連の独自の取り組み (1)子育て支援サイト「naana(なあな)」の運営。(2)地域コミュニティ子育て応援事業(補助金の支給)。(3)子育て情報を集約した「子育て応援ガイド」の作成、配付。(4)市立幼稚園の施設を地域に開放する等の子育て支援を行う市立幼稚園子育て支援事業。(5)孫育てガイドブックの作成、配布。(6)生活に心配ごとや困りごとを抱えている子育て世帯の方向けの制度、相談先を集約したパンフレットの配布。(7)ひとり親に対し、各種講座や、生活や子育ての悩み等を気軽に話せる交流会等を実施。
出産祝い なし
公立保育所数 10所(うち0歳児保育を実施している保育所:7所)
私立保育所数 51所(うち0歳児保育を実施している保育所:51所)
保育所入所待機児童数 0人
認定こども園数 68園 預かり保育実施園数 公立:7園 私立:11園
学校給食 【小学校】完全給食【中学校】完全給食 牛乳のみ
公立中学校の学校選択制 実施(隣接校選択制、小規模特認校制)
子ども・学生等医療費助成<通院>対象年齢 18歳3月末まで 子ども・学生等医療費助成<入院>対象年齢 18歳3月末まで

大分市の治安・ごみ収集情報

公共料金・インフラ

ガス料金(22m3使用した場合の月額) 大分瓦斯株式会社6114円
水道料金(口径20mmで20m3の月額) 大分市3355円
下水道料金(20m3を使用した場合の月額) 大分市2791円
下水道普及率 70.2%

安心・安全

建物火災出火件数 56件
人口10000人当たり
1.18件
刑法犯認知件数 1385件
人口1000人当たり
2.91件
ハザード・防災マップ あり

医療

一般病院総数 41ヶ所
一般診療所総数 392ヶ所
小児科医師数 90人
小児人口10000人当たり
14.62人
産婦人科医師数 33人
15~49歳女性人口1万人当たり
3.61人
介護保険料基準額(月額) 6852円

ごみ

家庭ごみ収集(可燃ごみ) 有料
備考
指定ごみ袋有料。
家庭ごみの分別方式 7分別12種〔燃やせるごみ 燃やせないごみ プラスチック製容器包装 スプレー缶・蛍光管等(スプレー缶類 ライター類 蛍光管・電球・水銀体温計 乾電池) 缶・びん ペットボトル 古紙・布類(新聞類 その他紙類 布類)〕 拠点回収:使用済小型家電 充電式電池 牛乳パック
家庭ごみの戸別収集 一部実施(高齢者等世帯に対するごみ出し支援事業)
粗大ごみ収集 あり
備考
有料。戸別収集。事前申込制。
生ごみ処理機助成金制度 あり
上限金額
30000円
上限比率
66.7%

大分市の住まいの給付金

中古購入

利子補給制度 なし
補助/助成金制度 あり
上限金額
(1)30万円(2)130万円(3)45万円
備考
(1)【大分市移住者応援給付事業】大分県外から大分市内へ、転入する理由が転勤、出向等職務上のもの等でない自己の意思による移住をした方が住宅を取得した場合に給付金を支給(その他条件あり)。(2)【大分市移住支援事業】(1)の条件を満たし、かつ特定の企業に就職した場合等支援金を支給。単身世帯の場合60万円、複数人世帯の場合100万円。18歳未満の世帯員を帯同して移住した場合加算あり(条件あり)。(3)【大分市中古住宅で始める子育て新生活応援事業】大分市住み替え情報バンクに登録されている中古住宅の購入費用基本額30万円、加算額15万円(三世代近居となる場合)。

増築・改築・改修

利子補給制度 なし
補助/助成金制度 あり
上限金額
(1)120万円(2)75万円(3)55.2万円
備考
(1)【住宅耐震化総合支援事業補助金】1981年5月以前着工で、耐震診断の結果、耐震性がないと判断された木造住宅に耐震改修工事を施工する場合に補助。上限100万円(条件によっては上限120万円)。(2)【子育て高齢者世帯リフォーム支援事業補助金】65歳以上の高齢者や18歳未満の子がいる世帯で、対象者の寝室・子供部屋等増築、改修工事の場合に補助。上限40万円。三世代世帯で、玄関、キッチン等の増設工事の場合に補助。上限75万円。(3)【大分市瓦屋根強風対策促進事業】2021年12月以前着工で、瓦屋根を有しており、耐風診断の結果、基準に適合していないと判断された住宅に瓦屋根の改修工事を施工する場合に補助。上限55万2,000円。
暮らしデータ提供元:生活ガイド.com
※行政機関により公表していない地域及びデータがございます。東京23区以外の政令指定都市は、市全体のデータとして表示しています。
※提供データには細心の注意を払っておりますが、調査後に変更がある場合があります。 最新の情報につきましては各市区役所までお問い合わせいただくか、自治体HPなどをご確認ください。
OCN×ドコモ光新規お申込みで合計最大137,280円相当おトク!特典の内訳・適用条件など詳細はこちら

大分市内の各駅の住みやすさ

住宅ローンの返済額一覧

物件価格 1730万円に対して、年率 で、頭金 の場合
↓ボーナス 35年間 30年間 25年間 20年間 15年間 10年間
0万円 31,929円/月 36,800円/月 43,624円/月 53,865円/月 70,942円/月 105,105円/月
5万円 22,843円/月 27,824円/月 34,757円/月 45,107円/月 62,290円/月 96,560円/月
10万円 ローン不可 18,848円/月 25,890円/月 36,348円/月 53,639円/月 88,014円/月
15万円 ローン不可 ローン不可 ローン不可 27,589円/月 44,987円/月 79,469円/月
20万円 ローン不可 ローン不可 ローン不可 ローン不可 36,336円/月 70,924円/月
25万円 ローン不可 ローン不可 ローン不可 ローン不可 ローン不可 62,379円/月
30万円 ローン不可 ローン不可 ローン不可 ローン不可 ローン不可 53,834円/月
支払い利息合計 1,113,540円~ 954,000円~ 792,200円~ 633,840円~ 475,770円~ 318,820円~
※元利均等返済方式で試算しています。 「円」の単位以下の端数金額は「切り捨て」として計算しております。
※金利は、固定金利として計算しております。
※上記の住宅ローン返済額一覧は、あくまで試算であり、将来の金利動向により、実際のご返済額とは異なります。
※ボーナス支払総額が総支払額の50%を超えている場合、上記の表では「ローン不可」となります。
※住宅ローン返済額一覧の数値は、住宅ローンのお申し込みやご融資をお約束するものではございません。
物件を見たい、物件や住環境の詳しい情報やローン相談など、
お問い合わせ先
(株)ベツダイ

掲載情報の著作権は提供元企業等に帰属します。
Copyright:(C) 2025 Recruit Co., Ltd.
アプリで簡単 物件探し 大手不動産サイトの情報から一括検!プッシュ通知で物件を見逃さない
App Storeからダウンロード Google Playで手に入れよう QRコード