アプリで簡単 物件探し 通知 共有 アプリならではの機能を使ってみる
中古マンション

サンリヤン大野城駅前II番館 中古マンション 14階 4LDK

情報提供元
SUUMO
サンリヤン大野城駅前II番館 中古マンション 外観<BR>『心地いい風』が通り抜ける空間。『これからの時間を“ここ”で過ごせる喜び』を感じられるお家です。
価格 4699万円  (管理費等:1万4000円/月(委託(巡回)))
修繕積立金 19,530円
交通
所在地 福岡県大野城市白木原1周辺地図
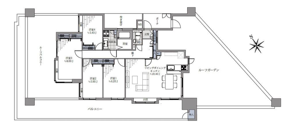
間取り 4LDK 専有面積 106.51m2(壁芯)
所在階/階数 14階/14階建 方位 南西
築年月 1999年3月 築年数 築26年10ヶ月
おすすめポイント
◆周辺環境□だいすき保育園 徒歩2分(127m)□大野城市立大野小学校 徒歩17分(1329m)□大野城市立大野中学校 徒歩10分(771m)□サニー白木原店 徒歩7分(528m)お客様のご都合に合わせて、『知りたい情報だけ』という短時間のご案内も可能です。◆弊社独自サービス・FPに人生設計&資金計画を無料相談♪・オプション工事を住宅ローンに組み込んで賢く買い物!※詳しくは「イベント情報」をご覧下さい。☆弊社スタッフが福岡市内含め全物件をご案内します☆
ペット相談可・管理人巡回
お問い合わせ先
(株)ハウスフリーダム城南店
物件を見たい、物件や住環境の詳しい情報やローン相談など、
お問い合わせ先
(株)ハウスフリーダム城南店

詳細情報

価格 4699万円 管理費等 1万4000円/月(委託(巡回))
駐車場   修繕積立金 19,530円
所在地 福岡県大野城市白木原1周辺地図
交通
  • JR鹿児島本線 大野城駅 徒歩1分乗換案内
  • 西鉄天神大牟田線 白木原駅 徒歩7分乗換案内
  • 西鉄天神大牟田線 下大利駅 徒歩17分乗換案内
物件名 サンリヤン大野城駅前II番館 中古マンション
築年月(築年数) 1999年3月(築26年10ヶ月) 間取り 4LDK
総戸数 62戸 専有面積 106.51m2(壁芯)
所在階/階数 14階/14階建 バルコニー面積 51.24m2
方位 南西 建物構造 SRC
管理形態 委託管理
維持費等 土地権利 所有権
用途地域 借地期間・地代
現況 引渡可能年月 相談
情報提供元 SUUMO [090Z78651492] 情報公開日
情報更新日 次回更新予定日 随時

設備など

ペット相談可 即入居可 - 南向き -
角部屋 - 駐車場空き有り - トランクルーム -
オートロック - 宅配ボックス 浴室乾燥機
床暖房 - ウォークインクローゼット - 管理人常駐 -
最上階 - 2階以上 タワーマンション -
設備 バルコニー・トイレ・洗面所・エレベーター・浴室乾燥機・シャンプードレッサ・温水洗浄便座・システムキッチン・モニタ付インターホン・風呂・対面K・ルーフバルコニー・浄水器・2面バルコニー・衣類乾燥機・食器洗浄乾燥機・リフォーム・宅配BOX
リフォーム履歴 2025年11月完了
 水回り設備交換:キッチン・浴室・トイレ
 内装リフォーム:壁・床・全室
※年月は一番古いリフォーム箇所を表します
リノベーション履歴 -
備考 <物件名>サンリヤン大野城駅前II番館 中古マンション/委託(巡回)/<土地権利>所有権/<間取り>4LDK/<リフォーム>●リフォーム:2025年11月完了(水回り設備交換:キッチン・浴室・トイレ、内装リフォーム:壁・床・全室)※年月は一番古いリフォーム箇所を表します/<特徴>◆12/13~14来店プレゼント◆お菓子詰め放題&3000円分商品券、LDK20畳以上・スーパー 徒歩10分以内・システムキッチン・浴室乾燥機・シャワー付洗面化粧台
販売戸数:1戸/管理費等帯:14000円/修繕積立金帯:19530円
特記事項 ペット相談可・管理人巡回

省エネ性能

エネルギー消費性能 -
断熱性能 -
目安光熱費 -

福岡県大野城市白木原1 周辺地図情報

地図
※地図上に表示される物件の位置は付近住所に所在することを表すものであり、実際の物件所在地とは異なる場合がございます。
   正確な物件所在地は、取扱い不動産会社にお問い合わせください。
物件を見たい、物件や住環境の詳しい情報やローン相談など、
お問い合わせ先
(株)ハウスフリーダム城南店

不動産会社情報

お問い合わせ先 商号:(株)ハウスフリーダム城南店
免許番号:国土交通大臣(5)第007017号
所在地:福岡県福岡市城南区七隈4-11-13
TEL:0120-956631
取引態様:媒介
管理コード:コメント入力済
共有する
QRコード
物件を見たい、物件や住環境の詳しい情報やローン相談など、
お問い合わせ先
(株)ハウスフリーダム城南店

大野城市の暮らしデータ

人口などの統計情報

世帯数 42738世帯
人口総数 103116人
転入者数 6220人
転入率(人口1000人当たり)
60.32人
転出者数 5990人
転出率(人口1000人当たり)
58.09人
土地平均価格
住宅地
151544円/m2
商業地
320000円/m2

結婚・育児の助成金

子育て関連の独自の取り組み -
出産祝い なし
公立保育所数 3所(うち0歳児保育を実施している保育所:3所)
私立保育所数 13所(うち0歳児保育を実施している保育所:13所)
保育所入所待機児童数 0人
認定こども園数 3園 預かり保育実施園数 公立:- 私立:6園
学校給食 【小学校】完全給食【中学校】家庭弁当等との選択制/デリバリー形式[運搬:ランチボックス、内容:完全給食]
公立中学校の学校選択制 一部実施
子ども・学生等医療費助成<通院>対象年齢 中学校卒業まで 子ども・学生等医療費助成<入院>対象年齢 中学校卒業まで

大野城市の治安・ごみ収集情報

公共料金・インフラ

ガス料金(22m3使用した場合の月額) 西部瓦斯株式会社(福岡・北九州)6239円
水道料金(口径20mmで20m3の月額) 大野城市4180円
下水道料金(20m3を使用した場合の月額) 大野城市2953円
下水道普及率 100.0%

安心・安全

建物火災出火件数 6件
人口10000人当たり
0.59件
刑法犯認知件数 602件
人口1000人当たり
5.90件
ハザード・防災マップ あり

医療

一般病院総数 7ヶ所
一般診療所総数 70ヶ所
小児科医師数 7人
小児人口10000人当たり
4.46人
産婦人科医師数 5人
15~49歳女性人口1万人当たり
2.28人
介護保険料基準額(月額) 5728円

ごみ

家庭ごみ収集(可燃ごみ) 有料
備考
指定ごみ袋有料。指定ごみ袋にごみ処理手数料を含む。
家庭ごみの分別方式 4分別〔可燃ごみ ビン・缶 その他の不燃ごみ ペットボトル・白色トレー〕 拠点回収:蛍光管 乾電池(有害ごみ)
家庭ごみの戸別収集 一部実施(不燃ごみはステーション収集。蛍光管、乾電池は拠点回収。小型家電は販売店持ち込み)
粗大ごみ収集 あり
備考
有料。事前申込制。高齢者等搬出サービスあり(有料)。
生ごみ処理機助成金制度 あり
上限金額
20000円
上限比率
50.0%

大野城市の住まいの給付金

中古購入

利子補給制度 なし
補助/助成金制度 なし

増築・改築・改修

利子補給制度 なし
補助/助成金制度 あり
上限金額
60万円
備考
【耐震改修補助金】市内木造戸建住宅、かつ1981年5月31日以前に工事着工、かつ耐震診断の結果上部構造評点1.0未満、かつ居住者または居住予定者がいること。原則として耐震改修経費の50%を補助。
暮らしデータ提供元:生活ガイド.com
※行政機関により公表していない地域及びデータがございます。東京23区以外の政令指定都市は、市全体のデータとして表示しています。
※提供データには細心の注意を払っておりますが、調査後に変更がある場合があります。 最新の情報につきましては各市区役所までお問い合わせいただくか、自治体HPなどをご確認ください。
OCN×ドコモ光新規お申込みで合計最大137,280円相当おトク!特典の内訳・適用条件など詳細はこちら

大野城市内の各駅の住みやすさ

住宅ローンの返済額一覧

物件価格 4699万円に対して、年率 で、頭金 の場合
↓ボーナス 35年間 30年間 25年間 20年間 15年間 10年間
0万円 108,999円/月 125,629円/月 148,925円/月 183,888円/月 242,183円/月 358,810円/月
5万円 99,914円/月 116,653円/月 140,059円/月 175,129円/月 233,532円/月 350,265円/月
10万円 90,828円/月 107,678円/月 131,192円/月 166,371円/月 224,880円/月 341,720円/月
15万円 81,743円/月 98,702円/月 122,325円/月 157,612円/月 216,229円/月 333,174円/月
20万円 72,657円/月 89,726円/月 113,458円/月 148,853円/月 207,577円/月 324,629円/月
25万円 63,572円/月 80,751円/月 104,592円/月 140,095円/月 198,926円/月 316,084円/月
30万円 ローン不可 71,775円/月 95,725円/月 131,336円/月 190,274円/月 307,539円/月
支払い利息合計 3,807,920円~ 3,255,160円~ 2,703,200円~ 2,155,600円~ 1,612,270円~ 1,073,420円~
※元利均等返済方式で試算しています。 「円」の単位以下の端数金額は「切り捨て」として計算しております。
※金利は、固定金利として計算しております。
※上記の住宅ローン返済額一覧は、あくまで試算であり、将来の金利動向により、実際のご返済額とは異なります。
※ボーナス支払総額が総支払額の50%を超えている場合、上記の表では「ローン不可」となります。
※住宅ローン返済額一覧の数値は、住宅ローンのお申し込みやご融資をお約束するものではございません。
物件を見たい、物件や住環境の詳しい情報やローン相談など、
お問い合わせ先
(株)ハウスフリーダム城南店

掲載情報の著作権は提供元企業等に帰属します。
Copyright:(C) 2025 Recruit Co., Ltd.
アプリで簡単 物件探し 大手不動産サイトの情報から一括検!プッシュ通知で物件を見逃さない
App Storeからダウンロード Google Playで手に入れよう QRコード