アプリで簡単 物件探し 通知 共有 アプリならではの機能を使ってみる
中古マンション

サンシティ明石海浜公園 7階 2LDK

情報提供元
SUUMO
サンシティ明石海浜公園 ・スーパーなども徒歩圏内にある利便性の高い住環境♪<BR>・ご不明な点がございましたら、お気軽にお問い合わせください!
価格 2080万円  (管理費等:7830円/月(委託(通勤)))
修繕積立金 13,040円
交通
所在地 兵庫県明石市船上町周辺地図
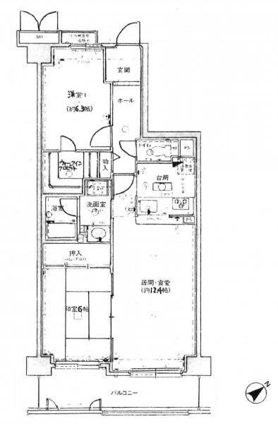
間取り 2LDK 専有面積 65.22m2(壁芯)
所在階/階数 7階/8階建 方位 南東
築年月 1996年7月 築年数 築29年6ヶ月
おすすめポイント
■眺望良好!明石海峡大橋・海を一望♪■南東向き 陽当り通風良好■65.22平米の2LDK 7階部分■バルコニーに面した明るい約15帖LDK■全居室6帖以上あるゆとりある間取■収納充実!全居室・廊下収納、ウォークインCL有■水回りが集約された家事動線良好な間取■全室洋室でお掃除かんたん♪■小・中学校、スーパーが徒歩10分圏内〈令和5年11月リフォーム内容〉・洗面化粧台新調・ユニットバス新調・温水洗浄便座付トイレ新調・クロス貼替・フローリング貼替・給湯器新調などお家探しは、『物件掲載数No.1』のトラストホームにお任せください! 0120-39-7710
日当り良好・閑静な住宅街・バリアフリー・管理人日勤
物件を見たい、物件や住環境の詳しい情報やローン相談など、
お問い合わせ先
(株)トラストホーム

詳細情報

価格 2080万円 管理費等 7830円/月(委託(通勤))
駐車場 空無 修繕積立金 13,040円
所在地 兵庫県明石市船上町周辺地図
交通
  • 山陽電鉄本線 西新町駅 徒歩10分乗換案内
  • JR山陽本線 明石駅 徒歩25分乗換案内
  • 山陽電鉄本線 林崎松江海岸駅 徒歩19分乗換案内
物件名 サンシティ明石海浜公園
築年月(築年数) 1996年7月(築29年6ヶ月) 間取り 2LDK
総戸数 85戸 専有面積 65.22m2(壁芯)
所在階/階数 7階/8階建 バルコニー面積 9.18m2
方位 南東 建物構造 RC
管理形態 委託管理
維持費等 土地権利 所有権
用途地域 1種住居 借地期間・地代
現況 引渡可能年月 即時
情報提供元 SUUMO [060Z78885301] 情報公開日
情報更新日 次回更新予定日 随時

設備など

ペット相談可 - 即入居可 南向き -
角部屋 - 駐車場空き有り - トランクルーム -
オートロック - 宅配ボックス - 浴室乾燥機 -
床暖房 - ウォークインクローゼット - 管理人常駐 -
最上階 - 2階以上 タワーマンション -
設備 バルコニー・トイレ・洗面所・エレベーター・管理人日勤・シャンプードレッサ・温水洗浄便座・システムキッチン・モニタ付インターホン・対面K・浄水器・リフォーム・駐輪場
リフォーム履歴 2023年11月完了
 水回り設備交換:浴室・トイレ
 内装リフォーム:壁・床・全室
※年月は一番古いリフォーム箇所を表します
リノベーション履歴 -
備考 <物件名>サンシティ明石海浜公園/<駐車場>空無/委託(日勤)/<土地権利>所有権/<間取り>2LDK/<リフォーム>●リフォーム:2023年11月完了(水回り設備交換:浴室・トイレ、内装リフォーム:壁・床・全室)※年月は一番古いリフォーム箇所を表します/<特徴>■リフォーム済■月々4万円台~購入可能、即引渡可・2沿線以上利用可・オーシャンビュー・スーパー 徒歩10分以内・市街地が近い
販売戸数:1戸/管理費等帯:7830円/修繕積立金帯:13040円
法令等制限:・防犯費:月300円
特記事項 日当り良好・閑静な住宅街・バリアフリー・管理人日勤

省エネ性能

エネルギー消費性能 -
断熱性能 -
目安光熱費 -

兵庫県明石市船上町 周辺地図情報

地図
※地図上に表示される物件の位置は付近住所に所在することを表すものであり、実際の物件所在地とは異なる場合がございます。
   正確な物件所在地は、取扱い不動産会社にお問い合わせください。
物件を見たい、物件や住環境の詳しい情報やローン相談など、
お問い合わせ先
(株)トラストホーム

不動産会社情報

お問い合わせ先 商号:(株)トラストホーム
免許番号:国土交通大臣(1)第010163号
所在地:兵庫県神戸市灘区深田町4-1-39 メイン六甲Aビル1階
TEL:078-856-0890
取引態様:媒介
共有する
QRコード
物件を見たい、物件や住環境の詳しい情報やローン相談など、
お問い合わせ先
(株)トラストホーム

明石市の暮らしデータ

人口などの統計情報

世帯数 133488世帯
人口総数 306760人
転入者数 11992人
転入率(人口1000人当たり)
39.09人
転出者数 10079人
転出率(人口1000人当たり)
32.86人
土地平均価格
住宅地
110816円/m2
商業地
185429円/m2

結婚・育児の助成金

子育て関連の独自の取り組み (1)認可保育施設に通う第2子以降の保育料の無料化。(2)小学校1年生の30人学級、中学校1年生の35人学級の導入。(3)高校生世代までの医療費完全無料化。(4)2022年度は保育所等の待機児童解消に向け、300人規模の受け入れ枠拡大をめざす。(5)高校進学に係る給付型奨学金事業(入学準備金[上限30万円]・在学時支援金[毎月1万円]の支給、高校進学に向けた学習支援及び進学後の学校生活支援)の実施。(6)『0歳児見守り訪問「おむつ定期便」』(子育て経験のある配達員が0歳児のいる家庭に紙おむつ等を毎月無料でお届け)。(7)3歳児クラス以上の副食費の無料化。(8)使用済み紙おむつの持ち帰り廃止。
出産祝い なし
公立保育所数 10所(うち0歳児保育を実施している保育所:10所)
私立保育所数 32所(うち0歳児保育を実施している保育所:31所)
保育所入所待機児童数 50人
認定こども園数 63園 預かり保育実施園数 公立:- 私立:1園
学校給食 【小学校】完全給食【中学校】完全給食
公立中学校の学校選択制 一部実施(特例地区[一部の学校区において、指定校以外の学校を希望により選択可能な区域あり])
子ども・学生等医療費助成<通院>対象年齢 18歳3月末まで 子ども・学生等医療費助成<入院>対象年齢 18歳3月末まで

明石市の治安・ごみ収集情報

公共料金・インフラ

ガス料金(22m3使用した場合の月額) 大阪瓦斯株式会社4544円
水道料金(口径20mmで20m3の月額) 明石市2541円
下水道料金(20m3を使用した場合の月額) 明石市2197円
下水道普及率 99.7%

安心・安全

建物火災出火件数 28件
人口10000人当たり
0.92件
刑法犯認知件数 2114件
人口1000人当たり
6.96件
ハザード・防災マップ あり

医療

一般病院総数 19ヶ所
一般診療所総数 248ヶ所
小児科医師数 41人
小児人口10000人当たり
9.50人
産婦人科医師数 38人
15~49歳女性人口1万人当たり
6.25人
介護保険料基準額(月額) 6200円

ごみ

家庭ごみ収集(可燃ごみ) 無料
備考
-
家庭ごみの分別方式 4分別10種〔燃やせるごみ 燃やせないごみ 資源ごみ(缶、びん、ペットボトル) 紙類・布類(新聞紙、雑誌・雑がみ、段ボール、紙パック、布類)〕 拠点回収:使用済み食用油 使用済み小型家電 水銀使用廃製品(水銀体温計 水銀血圧計 水銀温度計)
家庭ごみの戸別収集 一部実施(【ふれあい収集】要援護者ごみ戸別収集[一部地域のみ実施])
粗大ごみ収集 あり
備考
有料。戸別収集。事前申込制。粗大ごみ処理券300円/枚。
生ごみ処理機助成金制度 あり
上限金額
30000円
上限比率
50.0%

明石市の住まいの給付金

中古購入

利子補給制度 なし
補助/助成金制度 なし

増築・改築・改修

利子補給制度 なし
補助/助成金制度 あり
上限金額
(1)150万円(2)10万円(3)80万円
備考
(1)【住宅耐震化促進事業】1981年5月以前築の住宅の耐震化費用を補助。住宅耐震改修計画策定費補助として上限20万円を助成。住宅耐震改修工事費補助として上限130万円を助成。部分型改修工事費補助として50万円を助成。(2)【住宅リフォーム助成】住宅リフォーム工事に要する費用の一部を助成。費用の10%。(3)【高齢者等住宅改造費助成事業】日常生活を営む上で支障がある高齢者及び障害者に対して行うバリアフリー工事費用を助成。住宅改造改造助成対象の工事費合計額のうち80万円(介護保険住宅改修費等と合わせて100万円)までを助成対象基準額とする。生計中心者の所得に応じ費用負担・所得制限あり。他要件あり。
暮らしデータ提供元:生活ガイド.com
※行政機関により公表していない地域及びデータがございます。東京23区以外の政令指定都市は、市全体のデータとして表示しています。
※提供データには細心の注意を払っておりますが、調査後に変更がある場合があります。 最新の情報につきましては各市区役所までお問い合わせいただくか、自治体HPなどをご確認ください。
OCN×ドコモ光新規お申込みで合計最大137,280円相当おトク!特典の内訳・適用条件など詳細はこちら

明石市内の各駅の住みやすさ

住宅ローンの返済額一覧

物件価格 2080万円に対して、年率 で、頭金 の場合
↓ボーナス 35年間 30年間 25年間 20年間 15年間 10年間
0万円 41,014円/月 47,271円/月 56,037円/月 69,193円/月 91,128円/月 135,013円/月
5万円 31,929円/月 38,296円/月 47,171円/月 60,434円/月 82,477円/月 126,468円/月
10万円 22,843円/月 29,320円/月 38,304円/月 51,676円/月 73,825円/月 117,922円/月
15万円 ローン不可 ローン不可 29,437円/月 42,917円/月 65,174円/月 109,377円/月
20万円 ローン不可 ローン不可 ローン不可 ローン不可 56,522円/月 100,832円/月
25万円 ローン不可 ローン不可 ローン不可 ローン不可 47,871円/月 92,287円/月
30万円 ローン不可 ローン不可 ローン不可 ローン不可 ローン不可 83,742円/月
支払い利息合計 1,433,090円~ 1,223,920円~ 1,018,950円~ 812,560円~ 610,900円~ 407,780円~
※元利均等返済方式で試算しています。 「円」の単位以下の端数金額は「切り捨て」として計算しております。
※金利は、固定金利として計算しております。
※上記の住宅ローン返済額一覧は、あくまで試算であり、将来の金利動向により、実際のご返済額とは異なります。
※ボーナス支払総額が総支払額の50%を超えている場合、上記の表では「ローン不可」となります。
※住宅ローン返済額一覧の数値は、住宅ローンのお申し込みやご融資をお約束するものではございません。
物件を見たい、物件や住環境の詳しい情報やローン相談など、
お問い合わせ先
(株)トラストホーム

掲載情報の著作権は提供元企業等に帰属します。
Copyright:(C) 2025 Recruit Co., Ltd.
アプリで簡単 物件探し 大手不動産サイトの情報から一括検!プッシュ通知で物件を見逃さない
App Storeからダウンロード Google Playで手に入れよう QRコード