アプリで簡単 物件探し 通知 共有 アプリならではの機能を使ってみる
中古マンション

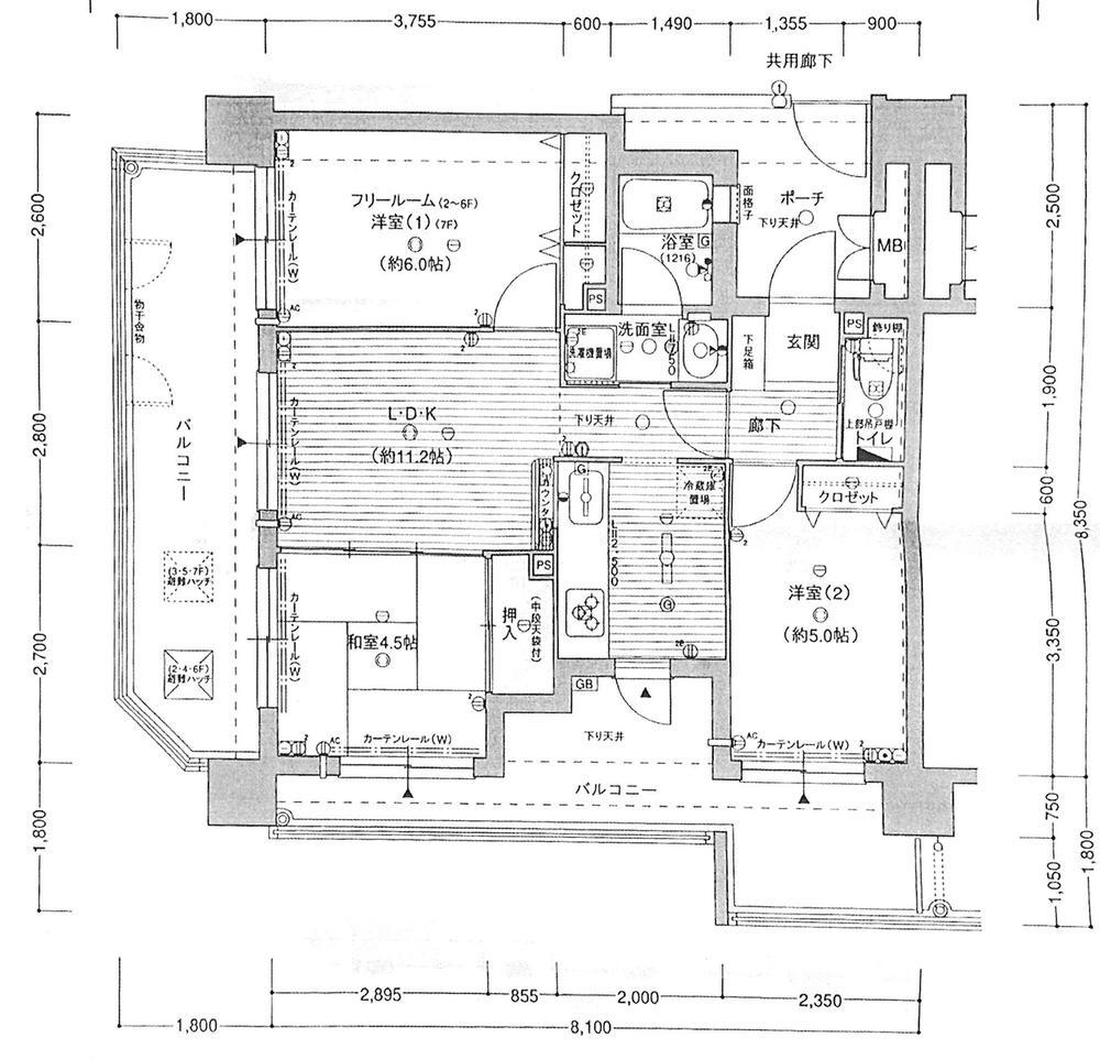
エルフィールド粉浜 7階 3LDK

情報提供元
SUUMO
エルフィールド粉浜
価格 1480万円  (管理費等:8200円/月(委託(通勤)))
修繕積立金 15,880円
交通
所在地 大阪府大阪市住之江区粉浜3周辺地図
間取り 3LDK 専有面積 53.85m2(登記)
所在階/階数 7階/8階建 方位
築年月 2000年8月 築年数 築25年4ヶ月
おすすめポイント
日当り良好・角部屋・管理人日勤・定期借地権
お問い合わせ先
松栄ジャパンエステート(株)
物件を見たい、物件や住環境の詳しい情報やローン相談など、
お問い合わせ先
松栄ジャパンエステート(株)

詳細情報

価格 1480万円 管理費等 8200円/月(委託(通勤))
駐車場   修繕積立金 15,880円
所在地 大阪府大阪市住之江区粉浜3周辺地図
交通
物件名 エルフィールド粉浜
築年月(築年数) 2000年8月(築25年4ヶ月) 間取り 3LDK
総戸数 専有面積 53.85m2(登記)
所在階/階数 7階/8階建 バルコニー面積 23.31m2
方位 建物構造 RC
管理形態 委託管理
維持費等 解体積立金(月額)850円 土地権利 賃借権
用途地域 借地期間・地代 9,127円/月
現況 引渡可能年月 2026年1月
情報提供元 SUUMO [060Z78400088] 情報公開日
情報更新日 次回更新予定日 随時

設備など

ペット相談可 - 即入居可 - 南向き -
角部屋 駐車場空き有り - トランクルーム -
オートロック - 宅配ボックス - 浴室乾燥機 -
床暖房 - ウォークインクローゼット - 管理人常駐 -
最上階 - 2階以上 タワーマンション -
設備 管理人日勤
リフォーム履歴 -
リノベーション履歴 -
備考 <物件名>エルフィールド粉浜/<借地権>借地期間残存25  年、借地権設定登記可、不可、改定額事前協議/委託(日勤)/<土地権利>一般定期借地権(地上権)/<間取り>3LDK/<特徴>☆定期借地権付きマンション☆角住戸☆引き回しバルコニー、角住戸・陽当り良好・通風良好
販売戸数:1戸/管理費等帯:8200円/修繕積立金帯:15880円
特記事項 日当り良好・角部屋・管理人日勤・定期借地権

省エネ性能

エネルギー消費性能 -
断熱性能 -
目安光熱費 -

大阪府大阪市住之江区粉浜3 周辺地図情報

地図
※地図上に表示される物件の位置は付近住所に所在することを表すものであり、実際の物件所在地とは異なる場合がございます。
   正確な物件所在地は、取扱い不動産会社にお問い合わせください。
物件を見たい、物件や住環境の詳しい情報やローン相談など、
お問い合わせ先
松栄ジャパンエステート(株)

不動産会社情報

お問い合わせ先 商号:松栄ジャパンエステート(株)
免許番号:大阪府知事(1)第065878号
所在地:大阪府大阪市浪速区元町1-11-10
TEL:06-6684-8494
取引態様:専属専任媒介
共有する
QRコード
物件を見たい、物件や住環境の詳しい情報やローン相談など、
お問い合わせ先
松栄ジャパンエステート(株)

大阪市住之江区の暮らしデータ

人口などの統計情報

世帯数 1464615世帯
人口総数 2757642人
転入者数 225000人
転入率(人口1000人当たり)
81.59人
転出者数 188180人
転出率(人口1000人当たり)
68.24人
土地平均価格
住宅地
270839円/m2
商業地
1966607円/m2

結婚・育児の助成金

子育て関連の独自の取り組み (1)子ども・子育てプラザ(在宅での子育て家庭や地域での子育て活動を支援し、また乳幼児期の親子や子育て支援者、就学期の子どもが集い交流する機会を提供する等、地域福祉活動の推進を図る)。(2)習い事・塾代助成事業(学習塾や家庭教師、文化・スポーツ教室等学校外教育にかかる費用を、1人当たり月額1万円まで助成。所得制限あり)。
出産祝い なし
公立保育所数 53所(うち0歳児保育を実施している保育所:52所)
私立保育所数 395所(うち0歳児保育を実施している保育所:385所)
保育所入所待機児童数 2人
認定こども園数 117園 預かり保育実施園数 公立:52園 私立:-
学校給食 【小学校】完全給食【中学校】完全給食
公立中学校の学校選択制 実施
子ども・学生等医療費助成<通院>対象年齢 18歳3月末まで 子ども・学生等医療費助成<入院>対象年齢 18歳3月末まで

大阪市住之江区の治安・ごみ収集情報

公共料金・インフラ

ガス料金(22m3使用した場合の月額) 大阪瓦斯株式会社4544円
水道料金(口径20mmで20m3の月額) 大阪市2112円
下水道料金(20m3を使用した場合の月額) 大阪市1276円
下水道普及率 100.0%

安心・安全

建物火災出火件数 553件
人口10000人当たり
2.01件
刑法犯認知件数 39408件
人口1000人当たり
14.32件
ハザード・防災マップ あり

医療

一般病院総数 170ヶ所
一般診療所総数 3734ヶ所
小児科医師数 659人
小児人口10000人当たり
22.80人
産婦人科医師数 380人
15~49歳女性人口1万人当たり
6.15人
介護保険料基準額(月額) 9249円

ごみ

家庭ごみ収集(可燃ごみ) 無料
備考
-
家庭ごみの分別方式 4分別11種〔普通ごみ(普通ごみ、危険ごみ[竹串、ガラス片、カミソリの刃]) 資源ごみ(空き缶・空きびん・金属製の生活用品・ペットボトル、スプレー缶・カセットボンベ) 容器包装プラスチック 古紙・衣類(新聞紙・折込チラシ、段ボール、紙パック、雑誌、衣類、その他の紙類)〕
家庭ごみの戸別収集 一部実施(【ふれあい収集】65歳以上の一人暮らしの高齢者または高齢者だけの世帯、障がいがある方が居住される家庭で、ごみ出しが困難な人が対象)
粗大ごみ収集 あり
備考
有料。戸別収集。事前申込制。申込時に収集日を決定。
生ごみ処理機助成金制度 なし
上限金額
-
上限比率
-

大阪市住之江区の住まいの給付金

中古購入

利子補給制度 あり
上限金額
50万円
備考
【大阪市新婚・子育て世帯向け分譲住宅購入融資利子補給制度】新婚世帯(夫婦ともに満40歳未満かつ婚姻届出後5年以内の世帯)または子育て世帯(小学校6年生以下の子どもがいる世帯)で、市内で住宅を民間金融機関などの融資を受けて初めて建築・取得したものが対象。住宅ローンに対して年0.5%以内(融資利率を上限とする)、最長5年間の利子補給を行う。
補助/助成金制度 なし

増築・改築・改修

利子補給制度 なし
補助/助成金制度 あり
上限金額
115万円
備考
【民間戸建住宅等の耐震診断・改修等補助制度】2000年5月31日以前に建築された住宅が対象。耐震診断は費用の10/11、1戸上限5万円。耐震改修設計は費用の2/3、1戸上限10万円。耐震改修工事は費用の1/2、1戸上限100万円。耐震除却工事は費用の1/3、1戸上限50万円。
暮らしデータ提供元:生活ガイド.com
※行政機関により公表していない地域及びデータがございます。東京23区以外の政令指定都市は、市全体のデータとして表示しています。
※提供データには細心の注意を払っておりますが、調査後に変更がある場合があります。 最新の情報につきましては各市区役所までお問い合わせいただくか、自治体HPなどをご確認ください。

この物件を見た人はこんな物件も見ています

OCN×ドコモ光新規お申込みで合計最大137,280円相当おトク!特典の内訳・適用条件など詳細はこちら

住宅ローンの返済額一覧

物件価格 1480万円に対して、年率 で、頭金 の場合
↓ボーナス 35年間 30年間 25年間 20年間 15年間 10年間
0万円 25,439円/月 29,320円/月 34,757円/月 42,917円/月 56,522円/月 83,742円/月
5万円 16,353円/月 20,344円/月 25,890円/月 34,158円/月 47,871円/月 75,197円/月
10万円 ローン不可 ローン不可 ローン不可 25,400円/月 39,220円/月 66,652円/月
15万円 ローン不可 ローン不可 ローン不可 ローン不可 30,568円/月 58,106円/月
20万円 ローン不可 ローン不可 ローン不可 ローン不可 ローン不可 49,561円/月
25万円 ローン不可 ローン不可 ローン不可 ローン不可 ローン不可 ローン不可
30万円 ローン不可 ローン不可 ローン不可 ローン不可 ローン不可 ローン不可
支払い利息合計 887,740円~ 758,200円~ 629,600円~ 504,320円~ 378,700円~ 253,140円~
※元利均等返済方式で試算しています。 「円」の単位以下の端数金額は「切り捨て」として計算しております。
※金利は、固定金利として計算しております。
※上記の住宅ローン返済額一覧は、あくまで試算であり、将来の金利動向により、実際のご返済額とは異なります。
※ボーナス支払総額が総支払額の50%を超えている場合、上記の表では「ローン不可」となります。
※住宅ローン返済額一覧の数値は、住宅ローンのお申し込みやご融資をお約束するものではございません。
物件を見たい、物件や住環境の詳しい情報やローン相談など、
お問い合わせ先
松栄ジャパンエステート(株)

掲載情報の著作権は提供元企業等に帰属します。
Copyright:(C) 2025 Recruit Co., Ltd.
アプリで簡単 物件探し 大手不動産サイトの情報から一括検!プッシュ通知で物件を見逃さない
App Storeからダウンロード Google Playで手に入れよう QRコード