アプリで簡単 物件探し 通知 共有 アプリならではの機能を使ってみる
中古マンション

ダイヤモンドスクエア東府中 12階 2LDK

情報提供元
SUUMO
ダイヤモンドスクエア東府中
価格 5180万円  (管理費等:1万4200円/月(一部委託(通勤)))
修繕積立金 29,750円
交通
所在地 東京都府中市緑町3周辺地図
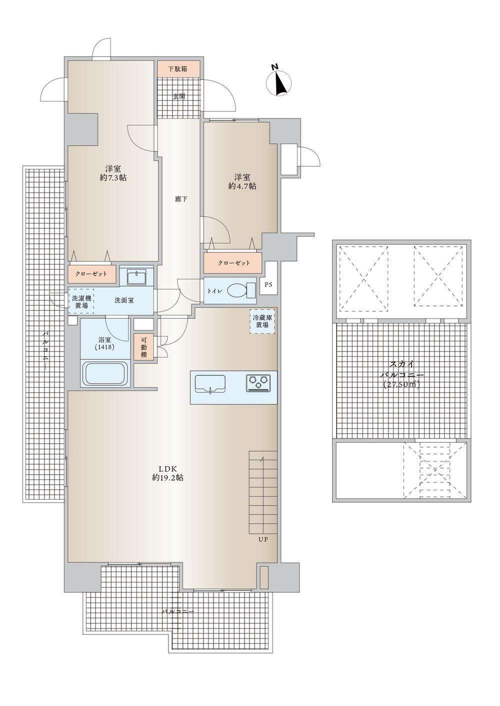
間取り 2LDK 専有面積 72.57m2(壁芯)
所在階/階数 12階/12階建 方位 南西
築年月 1994年2月 築年数 築31年9ヶ月
おすすめポイント
2025年7月にフルリフォーム済み!2LDK+スカイバルコニー最上階(12階)、南西角部屋、陽当り通風眺望良好!・現況空室、即日内覧可能です!・京王線「東府中」駅 徒歩3分・階段がありの高級感ある内装・2面バルコニーで陽当り眺望良好!・有人管理と防犯カメラでセキュリティ対策まずは現地をご見学ください。住宅ローン等の説明も併せておこなわせて頂きます。
日当り良好・角部屋・管理人日勤・24時間ゴミ出し可
物件を見たい、物件や住環境の詳しい情報やローン相談など、
お問い合わせ先
リヴウェル(株)新宿営業所

詳細情報

価格 5180万円 管理費等 1万4200円/月(一部委託(通勤))
駐車場 空無 修繕積立金 29,750円
所在地 東京都府中市緑町3周辺地図
交通
物件名 ダイヤモンドスクエア東府中
築年月(築年数) 1994年2月(築31年9ヶ月) 間取り 2LDK
総戸数 50戸 専有面積 72.57m2(壁芯)
所在階/階数 12階/12階建 バルコニー面積 17.55m2
方位 南西 建物構造 SRC
管理形態
維持費等 ルーフバルコニー面積 使用料400円 土地権利 所有権
用途地域 近隣商業 借地期間・地代
現況 引渡可能年月 相談
情報提供元 SUUMO [030Z78006500] 情報公開日
情報更新日 次回更新予定日 随時

設備など

ペット相談可 - 即入居可 - 南向き -
角部屋 駐車場空き有り - トランクルーム -
オートロック - 宅配ボックス - 浴室乾燥機
床暖房 - ウォークインクローゼット - 管理人常駐 -
最上階 - 2階以上 タワーマンション -
設備 バルコニー・収納スペース・エレベーター・浴室乾燥機・システムキッチン・モニタ付インターホン・風呂・対面K・ルーフバルコニー・浄水器・2面バルコニー・衣類乾燥機・食器洗浄乾燥機・管理人日勤・リフォーム
リフォーム履歴 2025年7月完了
 水回り設備交換:キッチン・浴室・トイレ
 内装リフォーム:壁・床・全室
※年月は一番古いリフォーム箇所を表します
リノベーション履歴 -
備考 <物件名>ダイヤモンドスクエア東府中/<駐車場>空無/<土地権利>所有権/<間取り>2LDK/<リフォーム>●リフォーム:2025年7月完了(水回り設備交換:キッチン・浴室・トイレ、内装リフォーム:壁・床・全室)※年月は一番古いリフォーム箇所を表します/<特徴>◇◆27.50㎡の専用スカイバルコニー付き◆◇LDKは広々な19.2帖、2沿線以上利用可・内装リフォーム・システムキッチン・浴室乾燥機・角住戸
販売戸数:1戸/管理費等帯:14200円/修繕積立金帯:29750円
特記事項 日当り良好・角部屋・管理人日勤・24時間ゴミ出し可

省エネ性能

エネルギー消費性能 -
断熱性能 -
目安光熱費 -

東京都府中市緑町3 周辺地図情報

地図
※地図上に表示される物件の位置は付近住所に所在することを表すものであり、実際の物件所在地とは異なる場合がございます。
   正確な物件所在地は、取扱い不動産会社にお問い合わせください。
物件を見たい、物件や住環境の詳しい情報やローン相談など、
お問い合わせ先
リヴウェル(株)新宿営業所

不動産会社情報

お問い合わせ先 商号:リヴウェル(株)新宿営業所
免許番号:国土交通大臣(1)第010885号
所在地:東京都新宿区西新宿6-11-3 Dタワー西新宿10階
TEL:03-6302-0930
取引態様:媒介
共有する
QRコード
物件を見たい、物件や住環境の詳しい情報やローン相談など、
お問い合わせ先
リヴウェル(株)新宿営業所

府中市の暮らしデータ

人口などの統計情報

世帯数 123766世帯
人口総数 260078人
転入者数 15231人
転入率(人口1000人当たり)
58.56人
転出者数 14174人
転出率(人口1000人当たり)
54.50人
土地平均価格
住宅地
329579円/m2
商業地
599125円/m2

結婚・育児の助成金

子育て関連の独自の取り組み (1)子育て情報誌(子育てのたまて箱)の発行。(2)子育て情報配信アプリの運営。(3)産前産後家庭サポート事業(出産前後の妊産婦のいる家庭等に援助員を派遣し、育児や家事等の支援を行う事業)の実施。
出産祝い なし
公立保育所数 11所(うち0歳児保育を実施している保育所:11所)
私立保育所数 45所(うち0歳児保育を実施している保育所:44所)
保育所入所待機児童数 0人
認定こども園数 0園 預かり保育実施園数 公立:- 私立:16園
学校給食 【小学校】完全給食【中学校】完全給食
公立中学校の学校選択制 未実施
子ども・学生等医療費助成<通院>対象年齢 18歳3月末まで 子ども・学生等医療費助成<入院>対象年齢 18歳3月末まで

府中市の治安・ごみ収集情報

公共料金・インフラ

ガス料金(22m3使用した場合の月額) 東京瓦斯株式会社(東京地区等)3926円
水道料金(口径20mmで20m3の月額) 東京都水道局2816円
下水道料金(20m3を使用した場合の月額) 府中市908円
下水道普及率 100.0%

安心・安全

建物火災出火件数 43件
人口10000人当たり
1.64件
刑法犯認知件数 1002件
人口1000人当たり
3.81件
ハザード・防災マップ あり

医療

一般病院総数 12ヶ所
一般診療所総数 188ヶ所
小児科医師数 170人
小児人口10000人当たり
53.58人
産婦人科医師数 46人
15~49歳女性人口1万人当たり
8.50人
介護保険料基準額(月額) 5995円

ごみ

家庭ごみ収集(可燃ごみ) 有料
備考
指定ごみ袋有料。指定ごみ袋にごみ処理手数料を含む。
家庭ごみの分別方式 12分別15種別〔可燃ごみ 不燃ごみ 容器包装プラスチック 有害ごみ びん かん ペットボトル 古布 紙類(段ボール、古紙、新聞、紙パック) 危険ごみ おむつ 落ち葉・下草〕 拠点回収:携帯電話・スマートフォン はがき 家庭廃食用油
家庭ごみの戸別収集 実施
粗大ごみ収集 あり
備考
有料。品目別料金(粗大ごみシール)設定。粗大ごみコールセンターで、電話・インターネットで事前申し込み制。直接持込みは通常料金の半額。
生ごみ処理機助成金制度 あり
上限金額
20000円
上限比率
50.0%

府中市の住まいの給付金

中古購入

利子補給制度 なし
補助/助成金制度 なし

増築・改築・改修

利子補給制度 なし
補助/助成金制度 あり
上限金額
(1)12万円(2)110万円
備考
(1)【耐震診断助成】費用の2/3、限度額12万円。(2)【耐震改修助成】費用の1/2、限度額110万円。(1)、(2)とも1981年5月31日以前に建築された一戸建ての住宅が対象。
暮らしデータ提供元:生活ガイド.com
※行政機関により公表していない地域及びデータがございます。東京23区以外の政令指定都市は、市全体のデータとして表示しています。
※提供データには細心の注意を払っておりますが、調査後に変更がある場合があります。 最新の情報につきましては各市区役所までお問い合わせいただくか、自治体HPなどをご確認ください。

この物件を見た人はこんな物件も見ています

OCN×ドコモ光新規お申込みで合計最大137,280円相当おトク!特典の内訳・適用条件など詳細はこちら

府中市内の各駅の住みやすさ

住宅ローンの返済額一覧

物件価格 5180万円に対して、年率 で、頭金 の場合
↓ボーナス 35年間 30年間 25年間 20年間 15年間 10年間
0万円 121,485円/月 140,020円/月 165,985円/月 204,953円/月 269,926円/月 399,912円/月
5万円 112,400円/月 131,045円/月 157,118円/月 196,194円/月 261,274円/月 391,367円/月
10万円 103,314円/月 122,069円/月 148,252円/月 187,435円/月 252,623円/月 382,822円/月
15万円 94,229円/月 113,093円/月 139,385円/月 178,677円/月 243,971円/月 374,277円/月
20万円 85,144円/月 104,117円/月 130,518円/月 169,918円/月 235,320円/月 365,731円/月
25万円 76,058円/月 95,142円/月 121,651円/月 161,159円/月 226,668円/月 357,186円/月
30万円 66,973円/月 86,166円/月 112,785円/月 152,400円/月 218,017円/月 348,641円/月
支払い利息合計 4,245,890円~ 3,625,920円~ 3,011,200円~ 2,400,960円~ 1,796,010円~ 1,195,660円~
※元利均等返済方式で試算しています。 「円」の単位以下の端数金額は「切り捨て」として計算しております。
※金利は、固定金利として計算しております。
※上記の住宅ローン返済額一覧は、あくまで試算であり、将来の金利動向により、実際のご返済額とは異なります。
※ボーナス支払総額が総支払額の50%を超えている場合、上記の表では「ローン不可」となります。
※住宅ローン返済額一覧の数値は、住宅ローンのお申し込みやご融資をお約束するものではございません。
物件を見たい、物件や住環境の詳しい情報やローン相談など、
お問い合わせ先
リヴウェル(株)新宿営業所

掲載情報の著作権は提供元企業等に帰属します。
Copyright:(C) 2025 Recruit Co., Ltd.
アプリで簡単 物件探し 大手不動産サイトの情報から一括検!プッシュ通知で物件を見逃さない
App Storeからダウンロード Google Playで手に入れよう QRコード