アプリで簡単 物件探し 通知 共有 アプリならではの機能を使ってみる
中古マンション

プリ―ムスクエア本八幡 16階 2LDK

情報提供元
SUUMO
プリ―ムスクエア本八幡 本八幡駅 徒歩約1分 24階建てタワーマンション
価格 9980万円  (管理費等:1万8500円/月(委託(常駐)))
修繕積立金 14,300円
交通
所在地 千葉県市川市八幡3周辺地図
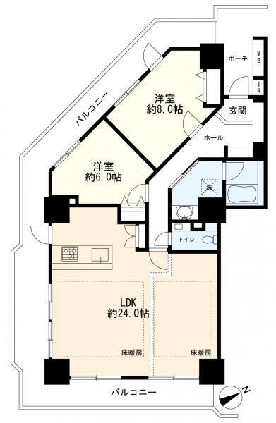
間取り 2LDK 専有面積 85.34m2
所在階/階数 16階/地上24階地下2階建 方位
築年月 2003年2月 築年数 築22年9ヶ月
おすすめポイント
◆2003年築、総戸数132戸のビッグコミュニティ♪◆2025年7月内装リノベーション済の綺麗な住まいで新生活をスタート♪◆ペットと一緒に快適新生活をスタート♪◆不在時でも荷物が受け取れる宅配ボックス付♪【株式会社リビングライフ】創業35年の信頼で未公開情報多数のリビングライフがご紹介します。宅建士×FP×住宅ローンアドバイザーの資格を併せ持つ『ライフ・エキスパート・プランナー』がお客様の老後も見据えたライフプランを無料作成。お気軽にご相談下さい!☆物件のお問合せは〈0120-502-278〉☆
ペット相談可・日当り良好・角部屋・管理人常駐
お問い合わせ先
(株)リビングライフ蒲田支店マーケティング部
物件を見たい、物件や住環境の詳しい情報やローン相談など、
お問い合わせ先
(株)リビングライフ蒲田支店マーケティング部

詳細情報

価格 9980万円 管理費等 1万8500円/月(委託(常駐))
駐車場 修繕積立金 14,300円
所在地 千葉県市川市八幡3周辺地図
交通
物件名 プリ―ムスクエア本八幡
築年月(築年数) 2003年2月(築22年9ヶ月) 間取り 2LDK
総戸数 132戸 専有面積 85.34m2
所在階/階数 16階/地上24階地下2階建 バルコニー面積 31.56m2
方位 建物構造 RC
管理形態 委託管理
維持費等 全体管理費(月額)3,400円 土地権利 所有権
用途地域 商業地域 借地期間・地代
現況 引渡可能年月 即時
情報提供元 SUUMO [030Z78576183] 情報公開日
情報更新日 次回更新予定日 随時

設備など

ペット相談可 即入居可 南向き -
角部屋 駐車場空き有り - トランクルーム -
オートロック - 宅配ボックス 浴室乾燥機
床暖房 ウォークインクローゼット - 管理人常駐
最上階 - 2階以上 タワーマンション
設備 バルコニー・収納スペース・管理人常駐・エレベーター・浴室乾燥機・システムキッチン・風呂・対面K・浄水器・床暖房・衣類乾燥機・食器洗浄乾燥機・リフォーム・駐輪場・宅配BOX・リノベーション
リフォーム履歴 2025年7月完了
 水回り設備交換:キッチン・浴室
 内装リフォーム:壁・床
※年月は一番古いリフォーム箇所を表します
リノベーション履歴 -
備考 <物件名>プリ―ムスクエア本八幡/<駐車場>無/委託(常駐)/<土地権利>所有権の共有/<間取り>2LDK/<リフォーム>●リフォーム:2025年7月完了(水回り設備交換:キッチン・浴室、内装リフォーム:壁・床)※年月は一番古いリフォーム箇所を表します/<特徴>「本八幡」駅徒歩1分■16階部分■三方角部屋■陽当たり眺望良好、即引渡可・2沿線以上利用可・LDK20畳以上・スーパー 徒歩10分以内・内装リフォーム
販売戸数:1戸/管理費等帯:18500円/修繕積立金帯:14300円
特記事項 ペット相談可・日当り良好・角部屋・管理人常駐

省エネ性能

エネルギー消費性能 -
断熱性能 -
目安光熱費 -

千葉県市川市八幡3 周辺地図情報

地図
※地図上に表示される物件の位置は付近住所に所在することを表すものであり、実際の物件所在地とは異なる場合がございます。
   正確な物件所在地は、取扱い不動産会社にお問い合わせください。
物件を見たい、物件や住環境の詳しい情報やローン相談など、
お問い合わせ先
(株)リビングライフ蒲田支店マーケティング部

不動産会社情報

お問い合わせ先 商号:(株)リビングライフ蒲田支店マーケティング部
免許番号:国土交通大臣(4)第007124号
所在地:東京都大田区西蒲田8-11-11
TEL:0120-502278
取引態様:媒介
管理コード:185037714
共有する
QRコード
物件を見たい、物件や住環境の詳しい情報やローン相談など、
お問い合わせ先
(株)リビングライフ蒲田支店マーケティング部

市川市の暮らしデータ

人口などの統計情報

世帯数 242637世帯
人口総数 492895人
転入者数 30850人
転入率(人口1000人当たり)
62.59人
転出者数 28100人
転出率(人口1000人当たり)
57.01人
土地平均価格
住宅地
296711円/m2
商業地
1488000円/m2

結婚・育児の助成金

子育て関連の独自の取り組み (1)保育料第2子以降無償化。(2)私立幼稚園の預かり保育利用料補助。(3)市立小中学校の学校給食費無償化。(4)子どもの成長応援臨時給付金(申請期間は2024年2月29日まで)。(5)市川市内在住の高校生以下の方の駐輪場使用料金の減免。
出産祝い なし
公立保育所数 20所(うち0歳児保育を実施している保育所:20所)
私立保育所数 132所(うち0歳児保育を実施している保育所:122所)
保育所入所待機児童数 0人
認定こども園数 10園 預かり保育実施園数 公立:0園 私立:25園
学校給食 【小学校】完全給食【中学校】完全給食
公立中学校の学校選択制 未実施
子ども・学生等医療費助成<通院>対象年齢 18歳3月末まで 子ども・学生等医療費助成<入院>対象年齢 18歳3月末まで

市川市の治安・ごみ収集情報

公共料金・インフラ

ガス料金(22m3使用した場合の月額) 京葉瓦斯株式会社4515円
水道料金(口径20mmで20m3の月額) 千葉県営水道3250円
下水道料金(20m3を使用した場合の月額) 市川市2634円
下水道普及率 79.0%

安心・安全

建物火災出火件数 44件
人口10000人当たり
0.89件
刑法犯認知件数 2719件
人口1000人当たり
5.47件
ハザード・防災マップ あり

医療

一般病院総数 10ヶ所
一般診療所総数 321ヶ所
小児科医師数 55人
小児人口10000人当たり
9.82人
産婦人科医師数 31人
15~49歳女性人口1万人当たり
2.88人
介護保険料基準額(月額) 6200円

ごみ

家庭ごみ収集(可燃ごみ) 無料
備考
指定ごみ袋は有料だが、袋代にごみ収集・処理料金等を含まず。
家庭ごみの分別方式 6分別12種〔燃やすごみ 燃やさないごみ 有害ごみ プラスチック製容器包装類 紙類・布類(新聞、雑誌、ダンボール、紙パック、布類) ビン カン 剪定枝〕
家庭ごみの戸別収集 未実施
粗大ごみ収集 あり
備考
有料。戸別収集。事前申込制。大型ごみ専用電話に申し込み。処理券を貼付。
生ごみ処理機助成金制度 なし
上限金額
-
上限比率
-

市川市の住まいの給付金

中古購入

利子補給制度 なし
補助/助成金制度 なし

増築・改築・改修

利子補給制度 なし
補助/助成金制度 あり
上限金額
(1)30万円(2)108万円
備考
(1)【あんしん住宅助成】住宅本体の良質化に係わる改修工事4種のいずれかの改修工事費の一部(対象工事費の1/3、限度額10万円)を助成。所有者自らが居住する住宅が対象。施工業者は市内業者。工事内容により条件を満たせば対象工事費の1/2、最大30万円を助成。(2)【耐震改修工事助成制度】市の助成を受けて行った耐震診断の結果、耐震改修を実施した場合に、耐震改修設計費、耐震改修工事・工事監理費及び耐震改修に伴うリフォーム工事費用の一部を市が助成。
暮らしデータ提供元:生活ガイド.com
※行政機関により公表していない地域及びデータがございます。東京23区以外の政令指定都市は、市全体のデータとして表示しています。
※提供データには細心の注意を払っておりますが、調査後に変更がある場合があります。 最新の情報につきましては各市区役所までお問い合わせいただくか、自治体HPなどをご確認ください。

この物件を見た人はこんな物件も見ています

OCN×ドコモ光新規お申込みで合計最大137,280円相当おトク!特典の内訳・適用条件など詳細はこちら

市川市内の各駅の住みやすさ

住宅ローンの返済額一覧

物件価格 9980万円に対して、年率 で、頭金 の場合
↓ボーナス 35年間 30年間 25年間 20年間 15年間 10年間
0万円 246,086円/月 283,631円/月 336,227円/月 415,161円/月 546,773円/月 810,079円/月
5万円 237,001円/月 274,655円/月 327,360円/月 406,402円/月 538,121円/月 801,533円/月
10万円 227,915円/月 265,680円/月 318,493円/月 397,643円/月 529,470円/月 792,988円/月
15万円 218,830円/月 256,704円/月 309,626円/月 388,885円/月 520,818円/月 784,443円/月
20万円 209,744円/月 247,728円/月 300,760円/月 380,126円/月 512,167円/月 775,898円/月
25万円 200,659円/月 238,753円/月 291,893円/月 371,367円/月 503,515円/月 767,353円/月
30万円 191,574円/月 229,777円/月 283,026円/月 362,609円/月 494,864円/月 758,808円/月
支払い利息合計 8,578,310円~ 7,325,880円~ 6,083,500円~ 4,851,120円~ 3,628,470円~ 2,415,700円~
※元利均等返済方式で試算しています。 「円」の単位以下の端数金額は「切り捨て」として計算しております。
※金利は、固定金利として計算しております。
※上記の住宅ローン返済額一覧は、あくまで試算であり、将来の金利動向により、実際のご返済額とは異なります。
※ボーナス支払総額が総支払額の50%を超えている場合、上記の表では「ローン不可」となります。
※住宅ローン返済額一覧の数値は、住宅ローンのお申し込みやご融資をお約束するものではございません。
物件を見たい、物件や住環境の詳しい情報やローン相談など、
お問い合わせ先
(株)リビングライフ蒲田支店マーケティング部

掲載情報の著作権は提供元企業等に帰属します。
Copyright:(C) 2025 Recruit Co., Ltd.
アプリで簡単 物件探し 大手不動産サイトの情報から一括検!プッシュ通知で物件を見逃さない
App Storeからダウンロード Google Playで手に入れよう QRコード