中古マンション
グリーンパーク早稲田Ⅳ 3階 2DK
| 価格 |
980万円 (管理費等:1万1100円/月(委託(巡回))) |
| 修繕積立金 |
12,303円 |
| 交通 |
|
| 所在地 |
埼玉県三郷市早稲田7周辺地図
|
| 間取り |
2DK |
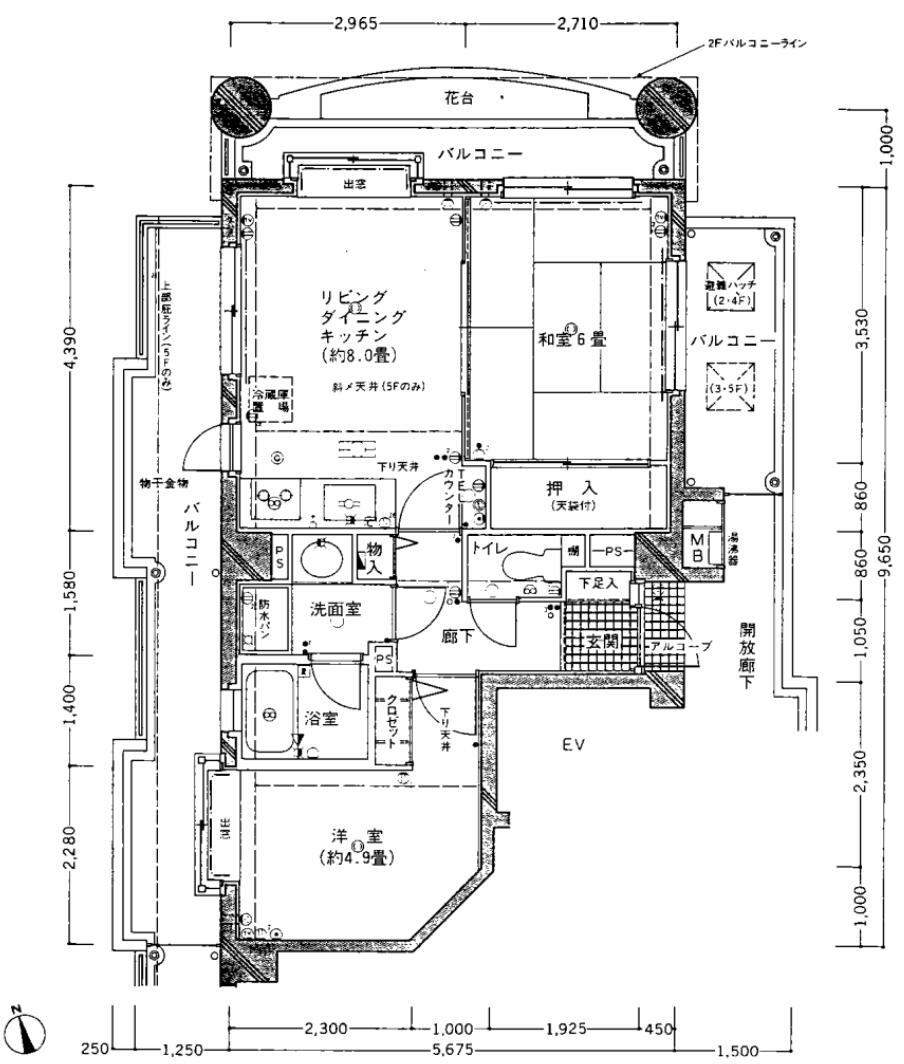
専有面積 |
46.18m2(13.96坪)(壁芯) |
| 所在階/階数 |
3階/6階建 |
方位 |
西 |
| 築年月 |
1989年4月 |
築年数 |
築36年7ヶ月 |
- おすすめポイント
- 平成29年(2017年)にフルリフォーム済のお部屋で、三方角部屋(東・西・北)の上、それぞれにバルコニーがあり、合計で22.23㎡と広さもあって、眺望・通風良好なお部屋!JR武蔵野線「三郷」駅から徒歩18分、バスを利用すれば「カトレア公園前」のバス停まで徒歩1分ですので、「三郷」駅まで乗車10分にて利用できる立地にある平成元年(1989年)4月築の分譲マンションです!目の前(徒歩1分)にはカトレア公園があり、スーパー・コンビニ・ドラックストア・小学校なども徒歩圏内で利用できるのが魅力!また、風通しの良いリビングと和室は続き間なので、広いLDKとしても利用できます!是非一度ご覧下さい!
日当り良好・角部屋・管理人巡回
- お問い合わせ先
- ピタットハウス三郷中央店(株)One
物件を見たい、物件や住環境の詳しい情報やローン相談など、
- お問い合わせ先
- ピタットハウス三郷中央店(株)One
| 価格 |
980万円 |
管理費等 |
1万1100円/月(委託(巡回)) |
| 駐車場 |
敷地内(7000円/月)
|
修繕積立金 |
12,303円 |
| 所在地 |
埼玉県三郷市早稲田7周辺地図
|
| 交通 |
|
| 物件名 |
グリーンパーク早稲田Ⅳ |
| 築年月(築年数) |
1989年4月(築36年7ヶ月) |
間取り |
2DK |
| 総戸数 |
27戸 |
専有面積 |
46.18m2(13.96坪)(壁芯) |
| 所在階/階数 |
3階/6階建
|
バルコニー面積 |
22.23m2 |
| 方位 |
西 |
建物構造 |
RC |
| 管理形態 |
委託管理 |
| 維持費等 |
町会費300円 |
土地権利 |
所有権 |
| 用途地域 |
1種中高 |
借地期間・地代 |
|
| 現況 |
|
引渡可能年月 |
相談 |
| 情報提供元 |
SUUMO [030Z78406674] |
情報公開日 |
|
| 情報更新日 |
|
次回更新予定日 |
随時 |
設備など
| ペット相談可 |
- |
即入居可 |
- |
南向き |
- |
| 角部屋 |
○ |
駐車場空き有り |
○ |
トランクルーム |
- |
| オートロック |
- |
宅配ボックス |
- |
浴室乾燥機 |
○ |
| 床暖房 |
- |
ウォークインクローゼット |
- |
管理人常駐 |
- |
| 最上階 |
- |
2階以上 |
○ |
タワーマンション |
- |
| 設備 |
バルコニー・トイレ・収納スペース・洗面所・エレベーター・浴室乾燥機・シャンプードレッサ・温水洗浄便座・システムキッチン・モニタ付インターホン・風呂・浄水器・2面バルコニー・衣類乾燥機・リフォーム・駐輪場 |
| リフォーム履歴 |
2017年1月完了 水回り設備交換:キッチン・浴室・トイレ 内装リフォーム:壁・床・全室 ※年月は一番古いリフォーム箇所を表します |
| リノベーション履歴 |
- |
| 備考 |
<物件名>グリーンパーク早稲田Ⅳ/<駐車場>敷地内/委託(巡回)/<土地権利>所有権/<間取り>2DK/<リフォーム>●リフォーム:2017年1月完了(水回り設備交換:キッチン・浴室・トイレ、内装リフォーム:壁・床・全室)※年月は一番古いリフォーム箇所を表します/<特徴>2017年フルリフォーム済!三方角部屋三面バルコニー!バス停・公園徒歩1分、スーパー 徒歩10分以内・市街地が近い・内装リフォーム・システムキッチン・浴室乾燥機 販売戸数:1戸/管理費等帯:11100円/修繕積立金帯:12303円 |
| 特記事項 |
日当り良好・角部屋・管理人巡回 |
埼玉県三郷市早稲田7 周辺地図情報
※地図上に表示される物件の位置は付近住所に所在することを表すものであり、実際の物件所在地とは異なる場合がございます。
正確な物件所在地は、取扱い不動産会社にお問い合わせください。
物件を見たい、物件や住環境の詳しい情報やローン相談など、
- お問い合わせ先
- ピタットハウス三郷中央店(株)One
不動産会社情報
| お問い合わせ先 |
商号:ピタットハウス三郷中央店(株)One
免許番号:国土交通大臣(1)第010247号 所在地:埼玉県三郷市中央1-5-7 TEL:048-954-8001 取引態様:専属専任媒介 |
共有する |
|
物件を見たい、物件や住環境の詳しい情報やローン相談など、
- お問い合わせ先
- ピタットハウス三郷中央店(株)One
人口などの統計情報
| 世帯数 |
60711世帯 |
| 人口総数 |
141942人 |
| 転入者数 |
6348人
- 転入率(人口1000人当たり)
- 44.72人
|
| 転出者数 |
5965人
- 転出率(人口1000人当たり)
- 42.02人
|
| 土地平均価格 |
- 住宅地
- 120143円/m2
- 商業地
- 169750円/m2
|
結婚・育児の助成金
| 子育て関連の独自の取り組み |
(1)予防接種自動スケジューラーのサービス提供(健康情報の配信を含む)。(2)大人の風しん・おたふくかぜ・造血細胞移植後のワクチン接種に関する予防接種費用の一部助成。(3)地域の栄養相談の実施。(4)市民団体の依頼を受け、地域で母子健康教育を実施。(5)妊娠届・母子健康手帳交付の来所、来所による妊娠・子育て相談、ハローベイビー教室、離乳食教室をインターネット上で予約できるサービス(かいちゃんとつぶちゃんの予約サポート)の提供。(6)こども家庭センター(妊娠・出産から子育て期にわたる総合相談窓口)を設置。(7)産後ケア事業の実施。(8)子育て移動支援事業の実施。(9)移動児童館の実施。 |
| 出産祝い |
あり |
| 公立保育所数 |
6所(うち0歳児保育を実施している保育所:6所) |
| 私立保育所数 |
17所(うち0歳児保育を実施している保育所:16所) |
| 保育所入所待機児童数 |
0人 |
| 認定こども園数 |
6園 |
預かり保育実施園数 |
公立:- 私立:7園 |
| 学校給食 |
【小学校】完全給食【中学校】完全給食 |
| 公立中学校の学校選択制 |
実施(新入学時に実施、転入時は一部実施) |
| 子ども・学生等医療費助成<通院>対象年齢 |
18歳3月末まで |
子ども・学生等医療費助成<入院>対象年齢 |
18歳3月末まで |
三郷市の治安・ごみ収集情報
公共料金・インフラ
| ガス料金(22m3使用した場合の月額) |
東京瓦斯株式会社(東京地区等)3926円 東彩ガス株式会社(越谷・春日部地区)4893円 |
| 水道料金(口径20mmで20m3の月額) |
三郷市2563円 |
| 下水道料金(20m3を使用した場合の月額) |
三郷市2214円 |
| 下水道普及率 |
88.2% |
安心・安全
| 建物火災出火件数 |
19件
- 人口10000人当たり
- 1.34件
|
| 刑法犯認知件数 |
1154件
- 人口1000人当たり
- 8.12件
|
| ハザード・防災マップ |
あり |
医療
| 一般病院総数 |
6ヶ所 |
| 一般診療所総数 |
67ヶ所 |
| 小児科医師数 |
14人
- 小児人口10000人当たり
- 7.98人
|
| 産婦人科医師数 |
10人
- 15~49歳女性人口1万人当たり
- 3.64人
|
| 介護保険料基準額(月額) |
6300円 |
ごみ
| 家庭ごみ収集(可燃ごみ) |
無料
|
| 家庭ごみの分別方式 |
7分別11種〔可燃ごみ 不燃ごみ びん・かん ペットボトル 有害ごみ 資源古紙(新聞紙、雑誌、ダンボール、紙パック、ざつがみ) 布類〕 |
| 家庭ごみの戸別収集 |
未実施 |
| 粗大ごみ収集 |
あり
|
| 生ごみ処理機助成金制度 |
あり
- 上限金額
- 50000円
- 上限比率
- 50.0%
|
三郷市の住まいの給付金
中古購入
増築・改築・改修
| 利子補給制度 |
なし |
| 補助/助成金制度 |
あり
- 上限金額
- (1)10万円(2)70万円
|
※行政機関により公表していない地域及びデータがございます。東京23区以外の政令指定都市は、市全体のデータとして表示しています。
※提供データには細心の注意を払っておりますが、調査後に変更がある場合があります。 最新の情報につきましては各市区役所までお問い合わせいただくか、自治体HPなどをご確認ください。
三郷市の暮らしデータをもっと見る
-
- グランスイート広尾
-
- 価格
- 29980万円
- 住所
- 東京都港区南麻布4
- 専有面積
- 72.97m2
-
- イーストヒル町屋
-
- 価格
- 4150万円
- 住所
- 東京都荒川区荒川7
- 専有面積
- 50.16m2
-
- シャンボール志村坂上
-
- 価格
- 3777万円
- 住所
- 東京都板橋区志村1
- 専有面積
- 64.97m2
-
- 第二川口ハイツ
-
- 価格
- 2280万円
- 住所
- 埼玉県川口市末広1
- 専有面積
- 62.75m2
物件を見たい、物件や住環境の詳しい情報やローン相談など、
- お問い合わせ先
- ピタットハウス三郷中央店(株)One