アプリで簡単 物件探し 通知 共有 アプリならではの機能を使ってみる
中古マンション

クリーンリバー白石本通 8階 3LDK

情報提供元
SUUMO
クリーンリバー白石本通
価格 2590万円  (管理費等:7310円/月(委託(巡回)))
修繕積立金 11,371円
交通
所在地 北海道札幌市白石区本通2丁目南周辺地図
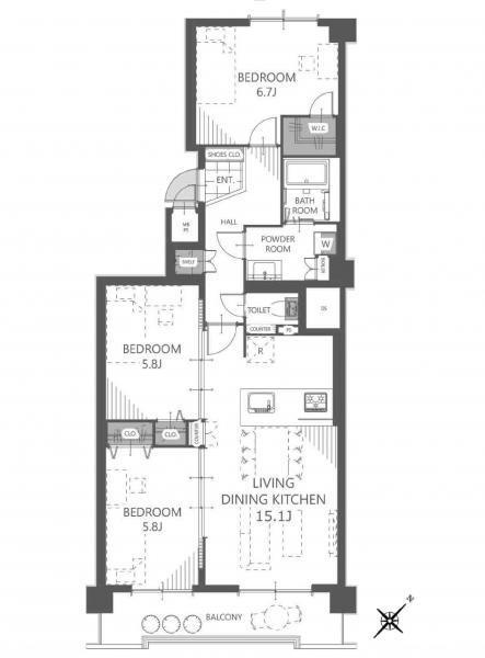
間取り 3LDK 専有面積 81.22m2(壁芯)
所在階/階数 8階/10階建 方位 南東
築年月 1988年10月 築年数 築37年3ヶ月
おすすめポイント
■地下鉄東西線「白石」駅徒歩13分、JR千歳線「白石」駅徒歩15分■2025年12月内装リフォーム(システムキッチン、ユニットバス、洗面化粧台、トイレ、建具、クロス全室、床材、ハウスクリーニング等)■10階建て8階部分南東向きで日当たり良好■アフターサービス保証付■トランクルーム無償■ザ・ビッグエクスプレス白石中央店徒歩3分、セブンイレブン本通2丁目北店徒歩5分、ファミリーマート白石本通3丁目店徒歩7分、ドラッグセイムス平和通店徒歩9分
日当り良好・管理人巡回
物件を見たい、物件や住環境の詳しい情報やローン相談など、
お問い合わせ先
ジン不動産販売(株)

詳細情報

価格 2590万円 管理費等 7310円/月(委託(巡回))
駐車場   修繕積立金 11,371円
所在地 北海道札幌市白石区本通2丁目南周辺地図
交通
物件名 クリーンリバー白石本通
築年月(築年数) 1988年10月(築37年3ヶ月) 間取り 3LDK
総戸数 54戸 専有面積 81.22m2(壁芯)
所在階/階数 8階/10階建 バルコニー面積 9.28m2
方位 南東 建物構造 SRC
管理形態 委託管理
維持費等 町内会費350円 土地権利 所有権
用途地域 商業地域 借地期間・地代
現況 引渡可能年月 相談
情報提供元 SUUMO [010Z78681978] 情報公開日
情報更新日 次回更新予定日 随時

設備など

ペット相談可 - 即入居可 - 南向き -
角部屋 - 駐車場空き有り - トランクルーム -
オートロック - 宅配ボックス - 浴室乾燥機 -
床暖房 - ウォークインクローゼット 管理人常駐 -
最上階 - 2階以上 タワーマンション -
設備 トイレ・収納スペース・エレベーター・ウォークインクローゼット・温水洗浄便座・システムキッチン・食器洗浄乾燥機・リフォーム
リフォーム履歴 2025年12月完了予定
 水回り設備交換:キッチン・浴室・トイレ
 内装リフォーム:壁・床
※年月は一番古いリフォーム箇所を表します
リノベーション履歴 -
備考 <物件名>クリーンリバー白石本通/委託(巡回)/<土地権利>所有権/<間取り>3LDK/<リフォーム>●リフォーム:2025年12月完了予定(水回り設備交換:キッチン・浴室・トイレ、内装リフォーム:壁・床)※年月は一番古いリフォーム箇所を表します/<特徴>JRと地下鉄のWアクセス。こだわりの内装で生まれ変わった3LDK+WIC。、2沿線以上利用可・システムキッチン・陽当り良好・全居室収納・LDK15畳以上
販売戸数:1戸/管理費等帯:7310円/修繕積立金帯:11371円
特記事項 日当り良好・管理人巡回

省エネ性能

エネルギー消費性能 -
断熱性能 -
目安光熱費 -

北海道札幌市白石区本通2丁目南 周辺地図情報

地図
※地図上に表示される物件の位置は付近住所に所在することを表すものであり、実際の物件所在地とは異なる場合がございます。
   正確な物件所在地は、取扱い不動産会社にお問い合わせください。
物件を見たい、物件や住環境の詳しい情報やローン相談など、
お問い合わせ先
ジン不動産販売(株)

不動産会社情報

お問い合わせ先 商号:ジン不動産販売(株)
免許番号:北海道知事石狩(10)第003900号
所在地:北海道札幌市南区澄川四条1-1-40
TEL:0120-329033
取引態様:媒介
管理コード:13738522
共有する
QRコード
物件を見たい、物件や住環境の詳しい情報やローン相談など、
お問い合わせ先
ジン不動産販売(株)

札幌市白石区の暮らしデータ

人口などの統計情報

世帯数 967372世帯
人口総数 1956928人
転入者数 121035人
転入率(人口1000人当たり)
61.85人
転出者数 109861人
転出率(人口1000人当たり)
56.14人
土地平均価格
住宅地
107466円/m2
商業地
594868円/m2

結婚・育児の助成金

子育て関連の独自の取り組み (1)交通事故・労働災害およびその他不慮の災害により、父、または母等を失った(重度障がいとなった場合を含む)義務教育終了前の遺児を扶養する方に遺児1人につき月額4,000円を支給するとともに、手当の対象となる遺児が小・中学校および高等学校等に入学する際または中学校卒業後、就職する際に遺児1人につき2万円を支給。(2)認可保育所等における第2子以降の保育料について、世帯年収や兄弟姉妹の年齢差に関わらず無償化。
出産祝い なし
公立保育所数 20所(うち0歳児保育を実施している保育所:14所)
私立保育所数 182所(うち0歳児保育を実施している保育所:182所)
保育所入所待機児童数 0人
認定こども園数 238園 預かり保育実施園数 公立:9園 私立:49園
学校給食 【小学校】完全給食【中学校】完全給食
公立中学校の学校選択制 一部実施(小規模特認校)
子ども・学生等医療費助成<通院>対象年齢 中学校卒業まで 子ども・学生等医療費助成<入院>対象年齢 中学校卒業まで

札幌市白石区の治安・ごみ収集情報

公共料金・インフラ

ガス料金(22m3使用した場合の月額) 北海道瓦斯株式会社5118円
水道料金(口径20mmで20m3の月額) 札幌市3652円
下水道料金(20m3を使用した場合の月額) 札幌市1397円
下水道普及率 99.9%

安心・安全

建物火災出火件数 286件
人口10000人当たり
1.45件
刑法犯認知件数 11263件
人口1000人当たり
5.71件
ハザード・防災マップ あり

医療

一般病院総数 172ヶ所
一般診療所総数 1433ヶ所
小児科医師数 371人
小児人口10000人当たり
17.99人
産婦人科医師数 203人
15~49歳女性人口1万人当たり
5.12人
介護保険料基準額(月額) 5773円

ごみ

家庭ごみ収集(可燃ごみ) 有料
備考
燃やせるごみ・燃やせないごみは有料収集。
家庭ごみの分別方式 9分別〔燃やせるごみ 燃やせないごみ スプレー缶・カセットボンベ 筒型乾電池 加熱式たばこ・電子たばこ・ライター 容器包装プラスチック びん・缶・ペットボトル 枝・葉・草 雑がみ〕 拠点回収:新聞 雑誌 ダンボール 紙パック 雑がみ びん・缶・ペットボトル 一升びん・ビールびん 容器包装プラスチック 古着 古布 毛布 小物金属類 小型家電 蛍光管 水銀体温計・水銀血圧計・水銀温度計 筒型乾電池 小型充電式電池 廃食油 生ごみ堆肥 枝・葉・草 使用済みインクカートリッジ スプレー缶・カセットボンベ ライター
家庭ごみの戸別収集 一部実施(【さわやか収集】一定の要件に該当する要介護者や障がい者に対し、玄関先からのごみの収集や大型ごみの家屋内からの運び出しの支援を実施)
粗大ごみ収集 あり
備考
有料。戸別収集。事前申込制(大型ごみ収集センター)。
生ごみ処理機助成金制度 あり
上限金額
10000円
上限比率
50.0%

札幌市白石区の住まいの給付金

中古購入

利子補給制度 なし
補助/助成金制度 なし

増築・改築・改修

利子補給制度 なし
補助/助成金制度 あり
上限金額
(1)50万円(2)120万円
備考
(1)【住宅エコリフォーム補助制度】市内事業者が施工する一定の省エネ改修やバリアフリー改修を対象。総工事費(税抜)の10%(1,000円未満切捨)又は一申請者あたり50万円のいずれか少ない額を限度とし、補助対象工事毎に市が定める補助金額の合計を補助。(2)【木造住宅耐震化補助制度】1981年5月31日以前に在来軸組工法で建てられ、耐震診断の結果、耐震性が低いと診断された木造住宅について、耐震改修工事(設計を含む)に要する費用の8/10又は1棟につき120万円のいずれか少ない額を限度として補助。
暮らしデータ提供元:生活ガイド.com
※行政機関により公表していない地域及びデータがございます。東京23区以外の政令指定都市は、市全体のデータとして表示しています。
※提供データには細心の注意を払っておりますが、調査後に変更がある場合があります。 最新の情報につきましては各市区役所までお問い合わせいただくか、自治体HPなどをご確認ください。
OCN×ドコモ光新規お申込みで合計最大137,280円相当おトク!特典の内訳・適用条件など詳細はこちら

札幌市白石区内の各駅の住みやすさ

住宅ローンの返済額一覧

物件価格 2590万円に対して、年率 で、頭金 の場合
↓ボーナス 35年間 30年間 25年間 20年間 15年間 10年間
0万円 54,253円/月 62,530円/月 74,126円/月 91,528円/月 120,543円/月 178,593円/月
5万円 45,167円/月 53,554円/月 65,259円/月 82,769円/月 111,892円/月 170,048円/月
10万円 36,082円/月 44,579円/月 56,392円/月 74,010円/月 103,240円/月 161,503円/月
15万円 ローン不可 35,603円/月 47,525円/月 65,252円/月 94,589円/月 152,957円/月
20万円 ローン不可 ローン不可 38,659円/月 56,493円/月 85,937円/月 144,412円/月
25万円 ローン不可 ローン不可 ローン不可 47,734円/月 77,286円/月 135,867円/月
30万円 ローン不可 ローン不可 ローン不可 ローン不可 68,635円/月 127,322円/月
支払い利息合計 1,893,470円~ 1,620,160円~ 1,348,150円~ 1,076,960円~ 807,250円~ 537,380円~
※元利均等返済方式で試算しています。 「円」の単位以下の端数金額は「切り捨て」として計算しております。
※金利は、固定金利として計算しております。
※上記の住宅ローン返済額一覧は、あくまで試算であり、将来の金利動向により、実際のご返済額とは異なります。
※ボーナス支払総額が総支払額の50%を超えている場合、上記の表では「ローン不可」となります。
※住宅ローン返済額一覧の数値は、住宅ローンのお申し込みやご融資をお約束するものではございません。
物件を見たい、物件や住環境の詳しい情報やローン相談など、
お問い合わせ先
ジン不動産販売(株)

掲載情報の著作権は提供元企業等に帰属します。
Copyright:(C) 2025 Recruit Co., Ltd.
アプリで簡単 物件探し 大手不動産サイトの情報から一括検!プッシュ通知で物件を見逃さない
App Storeからダウンロード Google Playで手に入れよう QRコード