アプリで簡単 物件探し 通知 共有 アプリならではの機能を使ってみる
中古住宅

兵庫県姫路市仁豊野 仁豊野駅 中古一戸建て・中古住宅

情報提供元
LIFULL HOME'S
兵庫県姫路市仁豊野 仁豊野駅 中古一戸建て・中古住宅
価格 780万円
交通
所在地 兵庫県姫路市仁豊野周辺地図
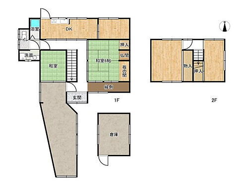
間取り 6SDK
建物面積 82.17m2(内法) 土地面積 251.23m2(公簿)
築年月 1965年9月 築年数 築60年3ヶ月
おすすめポイント
◆土地70坪以上と広々! ◆仁豊野駅まで徒歩約5分!
駐車場3台分以上
お問い合わせ先
株式会社Sun Climb れくすむ姫路店
物件を見たい、物件や住環境の詳しい情報やローン相談など、
お問い合わせ先
株式会社Sun Climb れくすむ姫路店

詳細情報

価格 780万円
所在地 兵庫県姫路市仁豊野周辺地図
交通
間取り 6SDK 築年月(築年数) 1965年9月(築60年3ヶ月)
建物面積 82.17m2(内法) 建物構造・規模 木造2階建
土地面積 251.23m2(公簿) 土地権利 所有権
私道面積 借地期間・地代
接道状況 西3.5m公道 一方道路
セットバック 9.82㎡ 駐車場 空有 (3台) 無料
用途地域 1種住居 都市計画 市街化区域
建ぺい率/容積率 60%/200% 現況 空室
地目 宅地 引渡可能時期 相談
情報提供元 LIFULL HOME'S [1470030005440] 情報公開日
情報更新日 次回更新予定日 2025年11月17日

設備など

1種低層地域 - 即入居可 - 売主・代理 -
駐車2台以上 平屋 - 本下水
都市ガス - カウンターキッチン - 床暖房 -
ウォークインクローゼット - バリアフリー -
設備 上水道・プロパンガス・本下水・バス・トイレ別
リフォーム履歴 -
リノベーション履歴 -
備考 【物件周辺の生活情報】
・学校
砥堀小学校(1,213m)、増位中学校(4,021m)
・買い物
スーパー(2,144m)、コンビニ(565m)、ドラッグストア(982m)、商店街(1,919m)
・その他施設
総合病院(902m)、幼保連携型認定こども園豊富台保育園(3,503m)
●砥堀小学校まで約1213m ●増位中学校まで約4021m ●建物未登記 ●増築家屋あり(未登記) ●縁側に雨漏り有 ●現状有姿
国土法届出:不要
法令等制限:法22条指定区域
特記事項 駐車場3台分以上

省エネ性能

エネルギー消費性能 -
断熱性能 -
目安光熱費 -

兵庫県姫路市仁豊野 周辺地図情報

地図
※地図上に表示される物件の位置は付近住所に所在することを表すものであり、実際の物件所在地とは異なる場合がございます。
   正確な物件所在地は、取扱い不動産会社にお問い合わせください。
物件を見たい、物件や住環境の詳しい情報やローン相談など、
お問い合わせ先
株式会社Sun Climb れくすむ姫路店

不動産会社情報

お問い合わせ先 商号:株式会社Sun Climb れくすむ姫路店
免許番号:兵庫県知事(01)第451659号
所在地:兵庫県姫路市飾磨区加茂354-1
取引態様:一般媒介
管理コード:5440
所属協会など:(公社)近畿地区不動産公正取引協議会、(公社)全日本不動産協会兵庫県本部
共有する
QRコード

お電話でのお問い合わせ

電話をかける(携帯・PHS可)
お問い合わせダイヤル
通話無料0037-634-93635
営業時間 09:00~20:00
音声案内に従って数字を入力
お問い合わせ番号
28987-2973
不動産会社につながります
不動産会社のスタッフと
直接電話で話せます。
※不動産会社がお電話に出られなかった場合、株式会社LIFULLは電話会社が提供するサービスを介してお客様の発信者番号を受領後、折り返し専用の電話番号を発番してお問合せの不動産会社に通知します(お客様の発信者番号がお問合せの不動産会社に通知されることはございません)
※光IP電話、及びIP電話からはご利用になれません
※0037で始まる電話番号に携帯電話からお問合せいただいた方には、ショートメッセージ(SMS)によるお問合せ完了通知をお届けする場合があります
物件を見たい、物件や住環境の詳しい情報やローン相談など、
お問い合わせ先
株式会社Sun Climb れくすむ姫路店

姫路市の暮らしデータ

人口などの統計情報

世帯数 223793世帯
人口総数 525884人
転入者数 15262人
転入率(人口1000人当たり)
29.02人
転出者数 15057人
転出率(人口1000人当たり)
28.63人
土地平均価格
住宅地
61020円/m2
商業地
204177円/m2

結婚・育児の助成金

子育て関連の独自の取り組み (1)子育て学習センター事業。(2)交通・災害遺児手当支給事業。(3)交通・災害遺児奨学金給付事業。(4)児童養護施設等入所児童就職祝金支給事業。(5)児童養護施設等間食給付事業。(6)姫路市子育てガイドブックの発行。
出産祝い あり
公立保育所数 17所(うち0歳児保育を実施している保育所:16所)
私立保育所数 12所(うち0歳児保育を実施している保育所:12所)
保育所入所待機児童数 18人
認定こども園数 87園 預かり保育実施園数 公立:0園 私立:1園
学校給食 【小学校】完全給食【中学校】完全給食
公立中学校の学校選択制 未実施
子ども・学生等医療費助成<通院>対象年齢 18歳3月末まで 子ども・学生等医療費助成<入院>対象年齢 18歳3月末まで

姫路市の治安・ごみ収集情報

公共料金・インフラ

ガス料金(22m3使用した場合の月額) 大阪瓦斯株式会社4544円
水道料金(口径20mmで20m3の月額) 姫路市2913円
下水道料金(20m3を使用した場合の月額) 姫路市2629円
下水道普及率 93.3%

安心・安全

建物火災出火件数 91件
人口10000人当たり
1.72件
刑法犯認知件数 3678件
人口1000人当たり
6.93件
ハザード・防災マップ あり

医療

一般病院総数 31ヶ所
一般診療所総数 418ヶ所
小児科医師数 84人
小児人口10000人当たり
12.77人
産婦人科医師数 44人
15~49歳女性人口1万人当たり
4.35人
介護保険料基準額(月額) 6200円

ごみ

家庭ごみ収集(可燃ごみ) 無料
備考
指定ごみ袋は有料だが、袋代にごみ収集・処理料金等を含まず。
家庭ごみの分別方式 【旧市域】15分別19種【香寺・夢前・安富町域】12分別16種【家島町域】10分別14種〔【全市域】可燃ごみ プラスチック製容器包装 ミックスペーパー 空きカン 空きビン(無色、茶色、その他) ペットボトル 紙パック 乾電池等 古紙(新聞紙、ダンボール、雑誌類) 蛍光管【旧市域】木製品 金属複合製品 プラスチック複合製品 ふとん・ジュータン ガラス陶磁器【香寺・夢前・安富町域】ふとん・ジュータン 不燃〕 拠点回収:使用済小型家電
家庭ごみの戸別収集 一部実施(【ふれあい収集】障がい者・高齢者・要介護者が対象)
粗大ごみ収集 あり
備考
無料。ステーション収集。地域により月1回収集と月2収集あり。
生ごみ処理機助成金制度 なし
上限金額
-
上限比率
-

姫路市の住まいの給付金

中古購入

利子補給制度 なし
補助/助成金制度 なし

増築・改築・改修

利子補給制度 なし
補助/助成金制度 あり
上限金額
100万円
備考
【ひめじ住まいの耐震化促進事業】1981年5月以前に建築され、かつ、耐震性のない住宅の耐震改修工事に対して、工事費50万円以上のものに限る。工事費4/5(上限100万円又は50万円)の助成。その他条件あり。
暮らしデータ提供元:生活ガイド.com
※行政機関により公表していない地域及びデータがございます。東京23区以外の政令指定都市は、市全体のデータとして表示しています。
※提供データには細心の注意を払っておりますが、調査後に変更がある場合があります。 最新の情報につきましては各市区役所までお問い合わせいただくか、自治体HPなどをご確認ください。

この物件を見た人はこんな物件も見ています

OCN×ドコモ光新規お申込みで合計最大137,280円相当おトク!特典の内訳・適用条件など詳細はこちら

姫路市内の各駅の住みやすさ

他のエリアから探す

姫路市の詳細地域から一戸建て物件を探す

相野青山青山北青山西網干区大江島網干区興浜網干区垣内北町網干区垣内中町網干区垣内西町網干区垣内本町網干区垣内南町網干区坂出網干区坂上網干区新在家網干区田井網干区高田網干区津市場網干区浜田網干区宮内網干区余子浜網干区和久飯田家島町坊勢家島町真浦生野町市川台市之郷伊伝居井ノ口梅ケ谷町大塩町大塩町汐咲大津区勘兵衛町大津区吉美大津区新町大津区天神町大津区天満大津区長松大津区西土井大津区平松大津区真砂町岡田奥山刀出勝原区朝日谷勝原区大谷勝原区勝原町勝原区勝山町勝原区熊見勝原区下太田勝原区宮田勝原区山戸勝原区丁上大野上手野川西台北今宿北新在家北原北平野北平野南の町北夢前台木場楠町香寺町相坂香寺町犬飼香寺町岩部香寺町香呂香寺町須加院香寺町田野香寺町恒屋香寺町中寺香寺町中仁野香寺町中村香寺町広瀬香寺町溝口五郎右衛門邸西庄三左衛門堀西の町飾磨区英賀飾磨区英賀清水町飾磨区阿成飾磨区阿成植木飾磨区阿成鹿古飾磨区阿成下垣内飾磨区阿成中垣内飾磨区阿成渡場飾磨区今在家飾磨区恵美酒飾磨区構飾磨区上野田飾磨区亀山飾磨区加茂飾磨区加茂東飾磨区清水飾磨区下野田飾磨区城南町飾磨区須加飾磨区高町飾磨区都倉飾磨区中島飾磨区西浜町飾磨区富士見ケ丘町飾磨区細江飾磨区宮飾磨区妻鹿飾磨区矢倉町飾西飾東町唐端新飾東町佐良和飾東町夕陽ケ丘四郷町東阿保四郷町見野四郷町山脇東雲町下手野下寺町書写白国白浜町白浜町宇佐崎北白浜町宇佐崎中白浜町寺家城見台新在家新在家本町城東町城北新町城北本町菅生台田井台龍野町田寺田寺東田寺山手町玉手大寿台町坪千代田町辻井土山砥堀苫編豊富町甲丘豊富町神谷豊富町豊富豊富町御蔭名古山町南条西今宿西新在家西大寿台西中島西八代町西夢前台仁豊野野里野里上野町野里堀留町白鳥台花田町小川花田町加納原田花田町上原田林田町下構林田町林田林田町林谷林田町六九谷東今宿東辻井東延末東山東夢前台広畑区吾妻町広畑区蒲田広畑区北河原町広畑区北野町広畑区小坂広畑区小松町広畑区才広畑区正門通広畑区高浜町広畑区西蒲田広畑区西夢前台広畑区則直広畑区東新町船津町別所町小林別所町佐土保城北条本町的形町福泊的形町的形御国野町国分寺御国野町御着御国野町深志野神子岡前御立北御立中御立西御立東緑台八家八代八代東光寺町八代本町八代緑ケ丘町八代宮前町安田安富町安志安富町瀬川安富町狭戸安富町長野安富町名坂安富町三森安富町皆河山田町南山田山野井町山吹夢前町莇野夢前町古知之庄夢前町護持夢前町新庄夢前町杉之内夢前町菅生澗夢前町塚本夢前町寺夢前町前之庄夢前町宮置夢前町山之内米田町余部区上川原余部区上余部余部区下余部

近辺の市区から探す

高砂市揖保郡太子町

周辺の駅から探す

播但線
姫路京口野里砥堀仁豊野香呂溝口福崎甘地

住宅ローンの返済額一覧

物件価格 780万円に対して、年率 で、頭金 の場合
↓ボーナス 35年間 30年間 25年間 20年間 15年間 10年間
0万円 7,268円/月 8,377円/月 9,930円/月 12,262円/月 16,149円/月 23,926円/月
5万円 ローン不可 ローン不可 ローン不可 ローン不可 ローン不可 15,381円/月
10万円 ローン不可 ローン不可 ローン不可 ローン不可 ローン不可 ローン不可
15万円 ローン不可 ローン不可 ローン不可 ローン不可 ローン不可 ローン不可
20万円 ローン不可 ローン不可 ローン不可 ローン不可 ローン不可 ローン不可
25万円 ローン不可 ローン不可 ローン不可 ローン不可 ローン不可 ローン不可
30万円 ローン不可 ローン不可 ローン不可 ローン不可 ローン不可 ローン不可
支払い利息合計 252,560円~ 215,720円~ 179,000円~ 142,880円~ 106,820円~ 72,160円~
※元利均等返済方式で試算しています。 「円」の単位以下の端数金額は「切り捨て」として計算しております。
※金利は、固定金利として計算しております。
※上記の住宅ローン返済額一覧は、あくまで試算であり、将来の金利動向により、実際のご返済額とは異なります。
※ボーナス支払総額が総支払額の50%を超えている場合、上記の表では「ローン不可」となります。
※住宅ローン返済額一覧の数値は、住宅ローンのお申し込みやご融資をお約束するものではございません。
物件を見たい、物件や住環境の詳しい情報やローン相談など、
お問い合わせ先
株式会社Sun Climb れくすむ姫路店

掲載情報の著作権は提供元企業等に帰属します。
Copyright:(C) 2025 LIFULL Co.,Ltd.
アプリで簡単 物件探し 大手不動産サイトの情報から一括検!プッシュ通知で物件を見逃さない
App Storeからダウンロード Google Playで手に入れよう QRコード