アプリで簡単 物件探し 通知 共有 アプリならではの機能を使ってみる
中古住宅

静岡県静岡市駿河区池田1769 東静岡駅 中古一戸建て・中古住宅

情報提供元
LIFULL HOME'S
静岡県静岡市駿河区池田1769 東静岡駅 中古一戸建て・中古住宅
価格 2590万円
交通
所在地 静岡県静岡市駿河区池田1769周辺地図
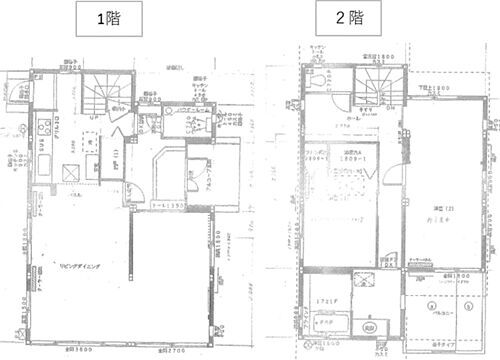
間取り 2LDK
建物面積 117.06m2 土地面積 198.67m2(公簿)
築年月 1994年4月 築年数 築31年8ヶ月
おすすめポイント
眺望、景色は一見の価値あり
物件を見たい、物件や住環境の詳しい情報やローン相談など、
お問い合わせ先
株式会社覚堂

詳細情報

価格 2590万円
所在地 静岡県静岡市駿河区池田1769周辺地図
交通
間取り 2LDK(LDK 29 洋 11・8) 築年月(築年数) 1994年4月(築31年8ヶ月)
建物面積 117.06m2 建物構造・規模 その他2階建
土地面積 198.67m2(公簿) 土地権利 所有権
私道面積 借地期間・地代
接道状況 北5m公道接面10m 南10m公道接面12m 東5m公道接面17m 三方道路 駐車場
用途地域 無指定 都市計画 調整区域
建ぺい率/容積率 60%/200% 現況 空室
地目 宅地 引渡可能時期 相談
情報提供元 LIFULL HOME'S [33311900000069] 情報公開日
情報更新日 次回更新予定日 2025年11月4日

設備など

1種低層地域 - 即入居可 - 売主・代理 -
駐車2台以上 - 平屋 - 本下水
都市ガス - カウンターキッチン - 床暖房 -
ウォークインクローゼット - バリアフリー -
設備 上水道・プロパンガス・本下水・ガスコンロ可・コンロ2口以上・給湯・エアコン・洗濯機置場・洗面所独立
リフォーム履歴 -
リノベーション履歴 -
備考 【物件周辺の生活情報】
・学校
東源台小学校(1,157m)、東豊田中学校(1,460m)
施工会社:セキスイハイム東海
第二種風致地区(有度山) 線引き前宅地(属人性のない建物有) 簡易ガス供給エリア 【設備・特記事項備考】専用バス・専用トイレ
国土法届出:不要
建築面積:62.18m2/南
特記事項

省エネ性能

エネルギー消費性能 -
断熱性能 -
目安光熱費 -

静岡県静岡市駿河区池田1769 周辺地図情報

地図
※地図上に表示される物件の位置は付近住所に所在することを表すものであり、実際の物件所在地とは異なる場合がございます。
   正確な物件所在地は、取扱い不動産会社にお問い合わせください。
物件を見たい、物件や住環境の詳しい情報やローン相談など、
お問い合わせ先
株式会社覚堂

不動産会社情報

お問い合わせ先 商号:株式会社覚堂
免許番号:静岡県知事(05)第012428号
所在地:静岡県浜松市中央区流通元町12-1
取引態様:一般媒介
管理コード:69
所属協会など:(各都道府県)宅地建物取引業協会
共有する
QRコード

お電話でのお問い合わせ

電話をかける(携帯・PHS可)
お問い合わせダイヤル
通話無料0037-634-33487
営業時間 09:00~18:00 (定休日:土曜日不定休・日曜日)
音声案内に従って数字を入力
お問い合わせ番号
99712-2978
不動産会社につながります
不動産会社のスタッフと
直接電話で話せます。
※不動産会社がお電話に出られなかった場合、株式会社LIFULLは電話会社が提供するサービスを介してお客様の発信者番号を受領後、折り返し専用の電話番号を発番してお問合せの不動産会社に通知します(お客様の発信者番号がお問合せの不動産会社に通知されることはございません)
※光IP電話、及びIP電話からはご利用になれません
※0037で始まる電話番号に携帯電話からお問合せいただいた方には、ショートメッセージ(SMS)によるお問合せ完了通知をお届けする場合があります
物件を見たい、物件や住環境の詳しい情報やローン相談など、
お問い合わせ先
株式会社覚堂

静岡市駿河区の暮らしデータ

人口などの統計情報

世帯数 296944世帯
人口総数 677736人
転入者数 26415人
転入率(人口1000人当たり)
38.98人
転出者数 26569人
転出率(人口1000人当たり)
39.20人
土地平均価格
住宅地
115625円/m2
商業地
305000円/m2

結婚・育児の助成金

子育て関連の独自の取り組み (1)認定こども園・保育所等に申し込んだものの待機となった場合に、一時預り事業又は小規模保育事業として乳幼児を預る「待機児童園」を各区に設置。(2)家事・育児を行うことが困難な家庭等に、家事・育児の支援を行う「子育て支援ヘルパー派遣事業」を実施。
出産祝い なし
公立保育所数 0所(うち0歳児保育を実施している保育所:-)
私立保育所数 49所(うち0歳児保育を実施している保育所:49所)
保育所入所待機児童数 8人
認定こども園数 112園 預かり保育実施園数 公立:- 私立:17園
学校給食 【小学校】完全給食【中学校】完全給食
公立中学校の学校選択制 一部実施(小規模特認校制)
子ども・学生等医療費助成<通院>対象年齢 18歳3月末まで 子ども・学生等医療費助成<入院>対象年齢 18歳3月末まで

静岡市駿河区の治安・ごみ収集情報

公共料金・インフラ

ガス料金(22m3使用した場合の月額) 静岡ガス株式会社5919円
水道料金(口径20mmで20m3の月額) 静岡市2607円
下水道料金(20m3を使用した場合の月額) 静岡市2777円
下水道普及率 88.3%

安心・安全

建物火災出火件数 79件
人口10000人当たり
1.14件
刑法犯認知件数 3100件
人口1000人当たり
4.47件
ハザード・防災マップ あり

医療

一般病院総数 22ヶ所
一般診療所総数 555ヶ所
小児科医師数 120人
小児人口10000人当たり
16.43人
産婦人科医師数 65人
15~49歳女性人口1万人当たり
5.34人
介護保険料基準額(月額) 6350円

ごみ

家庭ごみ収集(可燃ごみ) 無料
備考
指定ごみ袋は有料だが、袋代にごみ収集・処理料金等を含まず。
家庭ごみの分別方式 【葵区(一部を除く)・駿河区】2分別6種〔可燃ごみ 資源ごみ(缶、スプレー缶、小物金属類、びん)〕【葵区(安倍6地区)】3分別10種〔可燃ごみ 不燃ごみ(小物類、蛍光灯、乾電池、ライター、水銀体温計) 資源ごみ(びん、カン、スプレー缶、小物金属類)〕【清水区(蒲原・由比地区)を除く】2分別8種〔可燃ごみ 資源ごみ(缶[アルミ缶、スチール缶]、スプレー缶、びん[一升びん・ビール瓶、無色びん、茶色びん、その他の色びん])〕【清水区(蒲原・由比地区)】2分別7種〔可燃ごみ 資源ごみ(缶[アルミ缶、スチール缶]、スプレー缶、びん[一升びん・ビール瓶、その他のびん])〕
家庭ごみの戸別収集 未実施
粗大ごみ収集 あり
備考
無料。【駿河区・清水区・安倍6地区を除く葵区】戸別収集。事前申込制。聴覚障害者はFAX可。【葵区(安倍6地区)】ステーション収集。
生ごみ処理機助成金制度 なし
上限金額
-
上限比率
-

静岡市駿河区の住まいの給付金

中古購入

利子補給制度 なし
補助/助成金制度 なし

増築・改築・改修

利子補給制度 なし
補助/助成金制度 あり
上限金額
100万円
備考
【木造住宅耐震補強事業】補強計画策定と補強工事に係る費用の一部補助(補助率8/10、上限100万円)。1981年5月31日以前に建築された既存木造住宅が対象。耐震評点等について要件あり。
暮らしデータ提供元:生活ガイド.com
※行政機関により公表していない地域及びデータがございます。東京23区以外の政令指定都市は、市全体のデータとして表示しています。
※提供データには細心の注意を払っておりますが、調査後に変更がある場合があります。 最新の情報につきましては各市区役所までお問い合わせいただくか、自治体HPなどをご確認ください。

この物件を見た人はこんな物件も見ています

OCN×ドコモ光新規お申込みで合計最大137,280円相当おトク!特典の内訳・適用条件など詳細はこちら

静岡市駿河区内の各駅の住みやすさ

他のエリアから探す

静岡市駿河区の詳細地域から一戸建て物件を探す

青木池田石田大谷小坂小鹿北丸子国吉田光陽町敷地下川原下川原南下島高松津島町手越原東新田登呂中島中原中吉田西島西脇聖一色広野曲金丸子丸子新田丸子芹が谷町みずほ宮本町向敷地用宗桃園町谷田八幡

近辺の市区から探す

静岡市葵区静岡市清水区焼津市

周辺の駅から探す

東海道本線
由比興津清水草薙東静岡静岡安倍川用宗焼津

住宅ローンの返済額一覧

物件価格 2590万円に対して、年率 で、頭金 の場合
↓ボーナス 35年間 30年間 25年間 20年間 15年間 10年間
0万円 54,253円/月 62,530円/月 74,126円/月 91,528円/月 120,543円/月 178,593円/月
5万円 45,167円/月 53,554円/月 65,259円/月 82,769円/月 111,892円/月 170,048円/月
10万円 36,082円/月 44,579円/月 56,392円/月 74,010円/月 103,240円/月 161,503円/月
15万円 ローン不可 35,603円/月 47,525円/月 65,252円/月 94,589円/月 152,957円/月
20万円 ローン不可 ローン不可 38,659円/月 56,493円/月 85,937円/月 144,412円/月
25万円 ローン不可 ローン不可 ローン不可 47,734円/月 77,286円/月 135,867円/月
30万円 ローン不可 ローン不可 ローン不可 ローン不可 68,635円/月 127,322円/月
支払い利息合計 1,893,470円~ 1,620,160円~ 1,348,150円~ 1,076,960円~ 807,250円~ 537,380円~
※元利均等返済方式で試算しています。 「円」の単位以下の端数金額は「切り捨て」として計算しております。
※金利は、固定金利として計算しております。
※上記の住宅ローン返済額一覧は、あくまで試算であり、将来の金利動向により、実際のご返済額とは異なります。
※ボーナス支払総額が総支払額の50%を超えている場合、上記の表では「ローン不可」となります。
※住宅ローン返済額一覧の数値は、住宅ローンのお申し込みやご融資をお約束するものではございません。
物件を見たい、物件や住環境の詳しい情報やローン相談など、
お問い合わせ先
株式会社覚堂

掲載情報の著作権は提供元企業等に帰属します。
Copyright:(C) 2025 LIFULL Co.,Ltd.
アプリで簡単 物件探し 大手不動産サイトの情報から一括検!プッシュ通知で物件を見逃さない
App Storeからダウンロード Google Playで手に入れよう QRコード