アプリで簡単 物件探し 通知 共有 アプリならではの機能を使ってみる
中古住宅

東京都多摩市聖ヶ丘1丁目 小田急永山駅 中古一戸建て・中古住宅

情報提供元
LIFULL HOME'S
東京都多摩市聖ヶ丘1丁目 小田急永山駅 中古一戸建て・中古住宅
価格 4180万円
交通
所在地 東京都多摩市聖ヶ丘1丁目周辺地図
間取り -
建物面積 125m2 土地面積 198.04m2
築年月 1999年2月 築年数 築26年9ヶ月
おすすめポイント
☆高気密・高断熱住宅 健康で快適な住まいにこだわった中古住宅☆閑静な住宅地☆小中学校まで近く 子育て環境が整った立地です☆
お問い合わせ先
株式会社Mスタイルプランニング

詳細情報

価格 4180万円
所在地 東京都多摩市聖ヶ丘1丁目周辺地図
交通
  • 小田急電鉄多摩線 小田急永山駅 徒歩20分乗換案内
  • 京王電鉄京王線 聖蹟桜ヶ丘駅 徒歩24分乗換案内
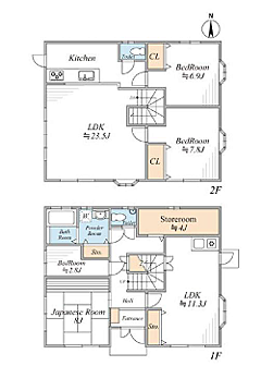
間取り (和 8・8) 築年月(築年数) 1999年2月(築26年9ヶ月)
建物面積 125m2 建物構造・規模 木造2階建
土地面積 198.04m2 土地権利 所有権
私道面積 借地期間・地代
接道状況 南9m 一方道路 駐車場
用途地域 都市計画 市街化区域
建ぺい率/容積率 40%/80% 現況 空室
地目 宅地 引渡可能時期 即時
情報提供元 LIFULL HOME'S [1493740009654] 情報公開日
情報更新日 次回更新予定日 2025年11月5日

設備など

1種低層地域 - 即入居可 売主・代理 -
駐車2台以上 - 平屋 - 本下水
都市ガス カウンターキッチン - 床暖房 -
ウォークインクローゼット - バリアフリー -
設備 上水道・都市ガス・本下水・バルコニー
リフォーム履歴 -
リノベーション履歴 -
備考 【物件周辺の生活情報】
・学校
多摩市立連光寺小学校(560m)、多摩市立聖ヶ丘中学校(910m)
・買い物
スーパー(1,500m)、コンビニ(1,210m)、ドラッグストア(1,460m)
・その他施設
総合病院(260m)、公園(270m)、銀行(1,270m)
◆無垢の板張り天井、天然目の建具、より幅の広い階段や廊下、高気密高断熱工法などを採用されています。
販売戸数:1戸/北西
特記事項

省エネ性能

エネルギー消費性能 -
断熱性能 -
目安光熱費 -

東京都多摩市聖ヶ丘1丁目 周辺地図情報

地図
※地図上に表示される物件の位置は付近住所に所在することを表すものであり、実際の物件所在地とは異なる場合がございます。
   正確な物件所在地は、取扱い不動産会社にお問い合わせください。
物件を見たい、物件や住環境の詳しい情報やローン相談など、
お問い合わせ先
株式会社Mスタイルプランニング

不動産会社情報

お問い合わせ先 商号:株式会社Mスタイルプランニング
免許番号:神奈川県知事(01)第031506号
所在地:神奈川県相模原市中央区鹿沼台2丁目11-6 淵野辺サトウビル1階
取引態様:媒介
管理コード:9654
所属協会など:(公財)東日本不動産流通機構
共有する
QRコード

お電話でのお問い合わせ

電話をかける(携帯・PHS可)
お問い合わせダイヤル
通話無料0037-634-43928
営業時間 09:30~18:30 (定休日:年末年始)
音声案内に従って数字を入力
お問い合わせ番号
61061-2977
不動産会社につながります
不動産会社のスタッフと
直接電話で話せます。
※不動産会社がお電話に出られなかった場合、株式会社LIFULLは電話会社が提供するサービスを介してお客様の発信者番号を受領後、折り返し専用の電話番号を発番してお問合せの不動産会社に通知します(お客様の発信者番号がお問合せの不動産会社に通知されることはございません)
※光IP電話、及びIP電話からはご利用になれません
※0037で始まる電話番号に携帯電話からお問合せいただいた方には、ショートメッセージ(SMS)によるお問合せ完了通知をお届けする場合があります
物件を見たい、物件や住環境の詳しい情報やローン相談など、
お問い合わせ先
株式会社Mスタイルプランニング

多摩市の暮らしデータ

人口などの統計情報

世帯数 68354世帯
人口総数 147776人
転入者数 7082人
転入率(人口1000人当たり)
47.92人
転出者数 6512人
転出率(人口1000人当たり)
44.07人
土地平均価格
住宅地
181714円/m2
商業地
428500円/m2

結婚・育児の助成金

子育て関連の独自の取り組み ブックスタート、多摩市絵本かたりかけ事業(市立健康センターで月2回実施する乳児[3~4ヶ月児]健康診査に、「絵本を通して親子のコミュニケーションが深まることの大切さ」を伝え、図書館から絵本、ブックリスト、図書館案内等を配付)。
出産祝い あり
公立保育所数 1所(うち0歳児保育を実施している保育所:1所)
私立保育所数 21所(うち0歳児保育を実施している保育所:21所)
保育所入所待機児童数 7人
認定こども園数 3園 預かり保育実施園数 公立:- 私立:6園
学校給食 【小学校】完全給食【中学校】完全給食
公立中学校の学校選択制 未実施
子ども・学生等医療費助成<通院>対象年齢 18歳3月末まで 子ども・学生等医療費助成<入院>対象年齢 18歳3月末まで

多摩市の治安・ごみ収集情報

公共料金・インフラ

ガス料金(22m3使用した場合の月額) 東京瓦斯株式会社(東京地区等)3926円
水道料金(口径20mmで20m3の月額) 東京都水道局2816円
下水道料金(20m3を使用した場合の月額) 多摩市2068円
下水道普及率 100.0%

安心・安全

建物火災出火件数 26件
人口10000人当たり
1.77件
刑法犯認知件数 674件
人口1000人当たり
4.59件
ハザード・防災マップ あり

医療

一般病院総数 5ヶ所
一般診療所総数 114ヶ所
小児科医師数 43人
小児人口10000人当たり
27.67人
産婦人科医師数 23人
15~49歳女性人口1万人当たり
8.24人
介護保険料基準額(月額) 5817円

ごみ

家庭ごみ収集(可燃ごみ) 有料
備考
指定ごみ袋有料。
家庭ごみの分別方式 4分別11種〔可燃ごみ 不燃ごみ 資源(びん、缶・ペットボトル、雑誌・雑紙、新聞、古布、ダンボール、プラスチック、小型家電・金属類) 有害性ごみ〕 拠点回収:白色トレイ 集団回収:新聞紙、雑誌・雑紙、ダンボール、紙パック、アルミ缶、スチール缶、びん、古繊維、ペットボトル
家庭ごみの戸別収集 実施(集合住宅は建物敷地内の専用集積所)
粗大ごみ収集 あり
備考
有料。事前申込制。シール制(オンライン決済の場合は不要)。
生ごみ処理機助成金制度 なし
上限金額
-
上限比率
-

多摩市の住まいの給付金

中古購入

利子補給制度 なし
補助/助成金制度 あり
上限金額
30万円
備考
【三世代近居・同居促進助成制度】三世代近居・同居のため、市外から転入する子世帯が、住宅を新築、購入及び改修等に30万円。要件あり。

増築・改築・改修

利子補給制度 なし
補助/助成金制度 あり
上限金額
(1)60万円(2)50万円(3)30万円
備考
(1)【木造住宅耐震改修補助】1981年5月31日以前に建築され耐震診断結果の上部構造評点が1未満で改修後評点0.7以上1未満の場合、補助対象工事費の30%、上限30万円。支援助成は工事費の50%、上限50万円。2000年5月31日以前に建築され耐震診断結果の上部構造評点が1未満で改修後評点1以上の場合、工事費の50%、上限60万円。(2)【非木造住宅耐震化促進補助金】1981年5月31日以前に建築確認を受けた住宅で、耐震診断結果、倒壊の危険があると判断された建築物が対象。戸建住宅の場合、耐震改修に要する費用の1/2、上限50万円助成。(3)【三世代近居・同居促進助成制度】三世代近居・同居のため、市外から転入する子世帯が、住宅を新築、購入及び改修等に30万円。要件あり。
暮らしデータ提供元:生活ガイド.com
※行政機関により公表していない地域及びデータがございます。東京23区以外の政令指定都市は、市全体のデータとして表示しています。
※提供データには細心の注意を払っておりますが、調査後に変更がある場合があります。 最新の情報につきましては各市区役所までお問い合わせいただくか、自治体HPなどをご確認ください。

この物件を見た人はこんな物件も見ています

OCN×ドコモ光新規お申込みで合計最大137,280円相当おトク!特典の内訳・適用条件など詳細はこちら

多摩市内の各駅の住みやすさ

住宅ローンの返済額一覧

物件価格 4180万円に対して、年率 で、頭金 の場合
↓ボーナス 35年間 30年間 25年間 20年間 15年間 10年間
0万円 95,527円/月 110,101円/月 130,518円/月 161,159円/月 212,249円/月 314,461円/月
5万円 86,441円/月 101,126円/月 121,651円/月 152,400円/月 203,598円/月 305,915円/月
10万円 77,356円/月 92,150円/月 112,785円/月 143,642円/月 194,946円/月 297,370円/月
15万円 68,270円/月 83,174円/月 103,918円/月 134,883円/月 186,295円/月 288,825円/月
20万円 59,185円/月 74,198円/月 95,051円/月 126,124円/月 177,643円/月 280,280円/月
25万円 50,099円/月 65,223円/月 86,184円/月 117,366円/月 168,992円/月 271,735円/月
30万円 ローン不可 56,247円/月 77,318円/月 108,607円/月 160,340円/月 263,190円/月
支払い利息合計 3,339,260円~ 2,855,080円~ 2,371,100円~ 1,890,640円~ 1,414,150円~ 941,540円~
※元利均等返済方式で試算しています。 「円」の単位以下の端数金額は「切り捨て」として計算しております。
※金利は、固定金利として計算しております。
※上記の住宅ローン返済額一覧は、あくまで試算であり、将来の金利動向により、実際のご返済額とは異なります。
※ボーナス支払総額が総支払額の50%を超えている場合、上記の表では「ローン不可」となります。
※住宅ローン返済額一覧の数値は、住宅ローンのお申し込みやご融資をお約束するものではございません。
物件を見たい、物件や住環境の詳しい情報やローン相談など、
お問い合わせ先
株式会社Mスタイルプランニング

掲載情報の著作権は提供元企業等に帰属します。
Copyright:(C) 2025 LIFULL Co.,Ltd.
アプリで簡単 物件探し 大手不動産サイトの情報から一括検!プッシュ通知で物件を見逃さない
App Storeからダウンロード Google Playで手に入れよう QRコード