アプリで簡単 物件探し 通知 共有 アプリならではの機能を使ってみる
中古住宅

千葉県流山市大字東深井921-144 江戸川台駅 中古一戸建て・中古住宅

情報提供元
LIFULL HOME'S
千葉県流山市大字東深井921-144 江戸川台駅 中古一戸建て・中古住宅
価格 3280万円
交通
所在地 千葉県流山市大字東深井921-144周辺地図
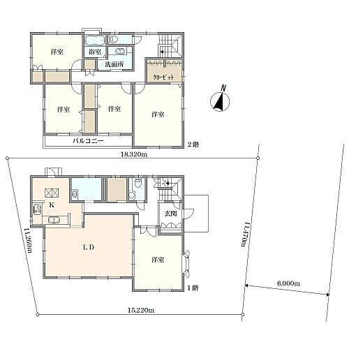
間取り 5SLDK
建物面積 163.68m2 土地面積 191.2m2
築年月 1993年6月 築年数 築32年6ヶ月
物件を見たい、物件や住環境の詳しい情報やローン相談など、
お問い合わせ先
エンゼル不動産

詳細情報

価格 3280万円
所在地 千葉県流山市大字東深井921-144周辺地図
交通
  • 東武鉄道野田線 江戸川台駅 徒歩18分乗換案内
  • 東武鉄道野田線 運河駅 徒歩24分乗換案内
間取り 5SLDK 築年月(築年数) 1993年6月(築32年6ヶ月)
建物面積 163.68m2 建物構造・規模 軽量鉄骨2階建
土地面積 191.2m2 土地権利 所有権
私道面積 借地期間・地代
接道状況 南東6m公道接面11.4m 駐車場 空有 (1台) 無料
用途地域 1種低層 都市計画 市街化区域
建ぺい率/容積率 50%/100% 現況 空室
地目 宅地 引渡可能時期 相談
情報提供元 LIFULL HOME'S [1555270000003] 情報公開日
情報更新日 次回更新予定日 2025年11月12日

設備など

1種低層地域 即入居可 - 売主・代理 -
駐車2台以上 - 平屋 - 本下水 -
都市ガス - カウンターキッチン - 床暖房 -
ウォークインクローゼット バリアフリー -
設備 ガスコンロ可・システムキッチン・追焚機能・シャンプードレッサ・床下収納・ウォークインクローゼット・バルコニー・モニタ付インターホン・温水洗浄便座
リフォーム履歴 -
リノベーション履歴 -
備考 【物件周辺の生活情報】
・学校
流山市立東深井小学校(920m)、流山市立東深井中学校(1,140m)
・買い物
スーパー(840m)、コンビニ(790m)、ドラッグストア(940m)
・その他施設
公園(810m)、銀行(1,320m)
施工会社:ナショナル住宅産業(株)
引渡し時期相談内容:諸条件による
契約不適合責任免責 司法書士指定 【設備・特記事項備考】全居室収納/南西
特記事項

省エネ性能

エネルギー消費性能 -
断熱性能 -
目安光熱費 -

千葉県流山市大字東深井921-144 周辺地図情報

地図
※地図上に表示される物件の位置は付近住所に所在することを表すものであり、実際の物件所在地とは異なる場合がございます。
   正確な物件所在地は、取扱い不動産会社にお問い合わせください。
物件を見たい、物件や住環境の詳しい情報やローン相談など、
お問い合わせ先
エンゼル不動産

不動産会社情報

お問い合わせ先 商号:エンゼル不動産
免許番号:千葉県知事(01)第018194号
所在地:千葉県柏市大津ケ丘1丁目29-6
取引態様:専任媒介
管理コード:3
所属協会など:(公社)首都圏不動産公正取引協議会、(一社)千葉県宅地建物取引業協会
共有する
QRコード

お電話でのお問い合わせ

電話をかける(携帯・PHS可)
お問い合わせダイヤル
通話無料0037-619-91138
営業時間 09:00~17:00
音声案内に従って数字を入力
お問い合わせ番号
21761-2976
不動産会社につながります
不動産会社のスタッフと
直接電話で話せます。
※不動産会社がお電話に出られなかった場合、株式会社LIFULLは電話会社が提供するサービスを介してお客様の発信者番号を受領後、折り返し専用の電話番号を発番してお問合せの不動産会社に通知します(お客様の発信者番号がお問合せの不動産会社に通知されることはございません)
※光IP電話、及びIP電話からはご利用になれません
※0037で始まる電話番号に携帯電話からお問合せいただいた方には、ショートメッセージ(SMS)によるお問合せ完了通知をお届けする場合があります
物件を見たい、物件や住環境の詳しい情報やローン相談など、
お問い合わせ先
エンゼル不動産

流山市の暮らしデータ

人口などの統計情報

世帯数 83001世帯
人口総数 210733人
転入者数 11770人
転入率(人口1000人当たり)
55.85人
転出者数 9529人
転出率(人口1000人当たり)
45.22人
土地平均価格
住宅地
181053円/m2
商業地
602000円/m2

結婚・育児の助成金

子育て関連の独自の取り組み (1)保育所待機児童の解消および入所率の平準化を図るため、市内2ヶ所に送迎保育ステーションを開設。(2)児童扶養手当受給者で、監護する児童が2人以上いる場合に2人目以降より1人当たり月額4,000円支給(児童育成手当)。(3)ひとり親家庭等の父、母若しくは養育者又は児童に対する医療費助成について、保険適用分の自己負担額を全額助成(現物給付かつ児童扶養手当と同等の所得制限あり)。
出産祝い なし
公立保育所数 5所(うち0歳児保育を実施している保育所:5所)
私立保育所数 72所(うち0歳児保育を実施している保育所:71所)
保育所入所待機児童数 0人
認定こども園数 6園 預かり保育実施園数 公立:0園 私立:8園
学校給食 【小学校】完全給食【中学校】完全給食
公立中学校の学校選択制 未実施
子ども・学生等医療費助成<通院>対象年齢 18歳3月末まで 子ども・学生等医療費助成<入院>対象年齢 18歳3月末まで

流山市の治安・ごみ収集情報

公共料金・インフラ

ガス料金(22m3使用した場合の月額) 京葉瓦斯株式会社4515円
野田ガス株式会社5402円
京和ガス株式会社4162円
水道料金(口径20mmで20m3の月額) 流山市3080円
下水道料金(20m3を使用した場合の月額) 流山市2200円
下水道普及率 93.7%

安心・安全

建物火災出火件数 18件
人口10000人当たり
0.90件
刑法犯認知件数 930件
人口1000人当たり
4.65件
ハザード・防災マップ あり

医療

一般病院総数 6ヶ所
一般診療所総数 128ヶ所
小児科医師数 23人
小児人口10000人当たり
6.66人
産婦人科医師数 14人
15~49歳女性人口1万人当たり
3.04人
介護保険料基準額(月額) 5980円

ごみ

家庭ごみ収集(可燃ごみ) 無料
備考
指定ごみ袋は有料だが、袋代にごみ収集・処理料金等を含まず。
家庭ごみの分別方式 5分別10種〔燃やすごみ 燃やさないごみ 容器包装プラスチック ペットボトル 有害危険ごみ(乾電池、蛍光管、水銀体温計、刃物、ライター、スプレー缶)〕 集団回収及び拠点回収:紙類(雑誌・雑紙 新聞紙 段ボール 紙パック) 空き缶類 金属類 空きビン類 布類
家庭ごみの戸別収集 一部実施(【高齢者等ごみ出し支援事業】ごみ集積所まで排出することが困難な高齢者および高齢者世帯、障がい者および障がい者世帯が対象)
粗大ごみ収集 あり
備考
有料。事前申込制。1,100円/点の粗大ごみ処理券を販売先で購入し、戸建の場合は道路に面した敷地内、集合住宅の場合は敷地内の専用ごみ集積所等指定の場所まで排出してもらい収集。
生ごみ処理機助成金制度 あり
上限金額
30000円
上限比率
50.0%

流山市の住まいの給付金

中古購入

利子補給制度 なし
補助/助成金制度 なし

増築・改築・改修

利子補給制度 なし
補助/助成金制度 あり
上限金額
(1)100万円(2)5万円
備考
(1)【耐震改修補助】市民が自ら所有し居住する住宅が対象。1981年5月31日以前に建築された地上階数2以下の一戸建て住宅。他要件あり。耐震設計費、工事監理費および工事費の合計の8割以内(上限100万円)。(2)【耐震診断補助】市民が自ら所有し居住する住宅が対象。2000年5月31日以前に建築された地上階数2以下の一戸建て住宅。他要件あり。診断費の2/3以内(上限5万円)。
暮らしデータ提供元:生活ガイド.com
※行政機関により公表していない地域及びデータがございます。東京23区以外の政令指定都市は、市全体のデータとして表示しています。
※提供データには細心の注意を払っておりますが、調査後に変更がある場合があります。 最新の情報につきましては各市区役所までお問い合わせいただくか、自治体HPなどをご確認ください。
OCN×ドコモ光新規お申込みで合計最大137,280円相当おトク!特典の内訳・適用条件など詳細はこちら

流山市内の各駅の住みやすさ

住宅ローンの返済額一覧

物件価格 3280万円に対して、年率 で、頭金 の場合
↓ボーナス 35年間 30年間 25年間 20年間 15年間 10年間
0万円 72,164円/月 83,174円/月 98,598円/月 121,745円/月 160,340円/月 237,554円/月
5万円 63,079円/月 74,198円/月 89,731円/月 112,986円/月 151,689円/月 229,009円/月
10万円 53,993円/月 65,223円/月 80,864円/月 104,228円/月 143,037円/月 220,464円/月
15万円 44,908円/月 56,247円/月 71,997円/月 95,469円/月 134,386円/月 211,919円/月
20万円 ローン不可 47,271円/月 63,131円/月 86,710円/月 125,734円/月 203,374円/月
25万円 ローン不可 ローン不可 54,264円/月 77,952円/月 117,083円/月 194,829円/月
30万円 ローン不可 ローン不可 ローン不可 69,193円/月 108,431円/月 186,284円/月
支払い利息合計 2,519,940円~ 2,155,000円~ 1,792,300円~ 1,431,280円~ 1,070,530円~ 712,820円~
※元利均等返済方式で試算しています。 「円」の単位以下の端数金額は「切り捨て」として計算しております。
※金利は、固定金利として計算しております。
※上記の住宅ローン返済額一覧は、あくまで試算であり、将来の金利動向により、実際のご返済額とは異なります。
※ボーナス支払総額が総支払額の50%を超えている場合、上記の表では「ローン不可」となります。
※住宅ローン返済額一覧の数値は、住宅ローンのお申し込みやご融資をお約束するものではございません。
物件を見たい、物件や住環境の詳しい情報やローン相談など、
お問い合わせ先
エンゼル不動産

掲載情報の著作権は提供元企業等に帰属します。
Copyright:(C) 2025 LIFULL Co.,Ltd.
アプリで簡単 物件探し 大手不動産サイトの情報から一括検!プッシュ通知で物件を見逃さない
App Storeからダウンロード Google Playで手に入れよう QRコード