アプリで簡単 物件探し 通知 共有 アプリならではの機能を使ってみる
中古住宅

和歌山県和歌山市六十谷 六十谷駅 中古一戸建て・中古住宅

情報提供元
SUUMO
和歌山県和歌山市六十谷 六十谷駅 中古一戸建て・中古住宅
価格 420万円
交通
所在地 和歌山県和歌山市六十谷周辺地図
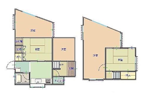
間取り 5DK
建物面積 94.74m2(28.65坪) 土地面積 147.86m2(44.72坪)(登記)
築年月 1981年5月 築年数 築44年6ヶ月
おすすめポイント
◆通学徒歩圏内
閑静な住宅街・オール電化
物件を見たい、物件や住環境の詳しい情報やローン相談など、
お問い合わせ先
(株)りんくうホーム

詳細情報

価格 420万円
所在地 和歌山県和歌山市六十谷周辺地図
交通
間取り 5DK 築年月(築年数) 1981年5月(築44年6ヶ月)
建物面積 94.74m2(28.65坪) 建物構造・規模 軽量鉄骨2階建
土地面積 147.86m2(44.72坪)(登記) 土地権利 所有権
私道面積 借地期間・地代
接道状況 北東4.3m接面9.8m 駐車場
用途地域 1種低層 都市計画
建ぺい率/容積率 50%/100% 現況
地目 引渡可能時期 相談
情報提供元 SUUMO [060Z76161569] 情報公開日
情報更新日 次回更新予定日 随時

設備など

1種低層地域 即入居可 - 売主・代理 -
駐車2台以上 - 平屋 - 本下水 -
都市ガス - カウンターキッチン - 床暖房 -
ウォークインクローゼット - バリアフリー -
設備 上水道・浄化槽
リフォーム履歴 -
リノベーション履歴 -
備考 <物件名>六十谷(六十谷駅) 420万円/<駐車場>カースペース/<土地権利>所有権/<間取り>5DK/<特徴>◆ゆったりした時間が流れる、適度な利便性を兼ね備えたおすすめの1軒です◆、閑静な住宅地・和室・2階建・オール電化
販売戸数:1戸
特記事項 閑静な住宅街・オール電化

省エネ性能

エネルギー消費性能 -
断熱性能 -
目安光熱費 -

和歌山県和歌山市六十谷 周辺地図情報

地図
※地図上に表示される物件の位置は付近住所に所在することを表すものであり、実際の物件所在地とは異なる場合がございます。
   正確な物件所在地は、取扱い不動産会社にお問い合わせください。
物件を見たい、物件や住環境の詳しい情報やローン相談など、
お問い合わせ先
(株)りんくうホーム

不動産会社情報

お問い合わせ先 商号:(株)りんくうホーム
免許番号:和歌山県知事(5)第003391号
所在地:和歌山県和歌山市黒田2-2-4 オオタビル1-D
TEL:0120-756933
取引態様:専任媒介
管理コード:31703
共有する
QRコード
物件を見たい、物件や住環境の詳しい情報やローン相談など、
お問い合わせ先
(株)りんくうホーム

和歌山市の暮らしデータ

人口などの統計情報

世帯数 157310世帯
人口総数 356472人
転入者数 8665人
転入率(人口1000人当たり)
24.31人
転出者数 8867人
転出率(人口1000人当たり)
24.87人
土地平均価格
住宅地
73587円/m2
商業地
140471円/m2

結婚・育児の助成金

子育て関連の独自の取り組み (1)小・中学生で交通事故による遺児等に対して、中学校卒業まで積立金を積立て。(2)三世代で新たに同居又は近居する住宅の取得や同居のための住宅をリフォームする場合、費用の一部を助成。(3)子育てを支えるサービスの情報提供や紹介、子育ての悩み(保育園選びなど)の相談を実施。
出産祝い あり
公立保育所数 14所(うち0歳児保育を実施している保育所:10所)
私立保育所数 17所(うち0歳児保育を実施している保育所:17所)
保育所入所待機児童数 22人
認定こども園数 30園 預かり保育実施園数 公立:0園 私立:9園
学校給食 【小学校】完全給食【中学校】完全給食 家庭弁当等との選択制/デリバリー形式[運搬:ランチボックス、内容:完全給食]
公立中学校の学校選択制 一部実施(小規模特認校[加太中学校])
子ども・学生等医療費助成<通院>対象年齢 18歳3月末まで 子ども・学生等医療費助成<入院>対象年齢 18歳3月末まで

和歌山市の治安・ごみ収集情報

公共料金・インフラ

ガス料金(22m3使用した場合の月額) 大阪瓦斯株式会社4544円
水道料金(口径20mmで20m3の月額) 和歌山市2860円
下水道料金(20m3を使用した場合の月額) 和歌山市3139円
下水道普及率 38.7%

安心・安全

建物火災出火件数 66件
人口10000人当たり
1.85件
刑法犯認知件数 2050件
人口1000人当たり
5.75件
ハザード・防災マップ あり

医療

一般病院総数 34ヶ所
一般診療所総数 416ヶ所
小児科医師数 84人
小児人口10000人当たり
20.48人
産婦人科医師数 58人
15~49歳女性人口1万人当たり
8.98人
介護保険料基準額(月額) 6800円

ごみ

家庭ごみ収集(可燃ごみ) 無料
備考
指定ごみ袋あり。
家庭ごみの分別方式 2分別11種〔一般ごみ 資源(かん、びん、ペットボトル、紙[新聞、雑誌、ダンボール、紙パック]、布、小型家電等、割れていない蛍光管等)〕 拠点回収:白色トレイ
家庭ごみの戸別収集 一部実施(ふれあい収集)
粗大ごみ収集 あり
備考
無料。事前申込制。
生ごみ処理機助成金制度 なし
上限金額
-
上限比率
-

和歌山市の住まいの給付金

中古購入

利子補給制度 なし
補助/助成金制度 なし

増築・改築・改修

利子補給制度 なし
補助/助成金制度 あり
上限金額
(1)8.9万円(2)116.6万円(3)10万円
備考
(1)【耐震診断助成】木造は無料(4.8万円~6.3万円相当分)、非木造は上限8.9万円の助成。(2)【耐震改修助成】耐震性が低いと判定された住宅の耐震改修費(設計費及び工事費)の一部を助成。(3)【リフォーム工事助成】1981年5月31日以前に建築された住宅の改修工事と同時に行うリフォーム工事が対象。費用の20%。他要件あり。
暮らしデータ提供元:生活ガイド.com
※行政機関により公表していない地域及びデータがございます。東京23区以外の政令指定都市は、市全体のデータとして表示しています。
※提供データには細心の注意を払っておりますが、調査後に変更がある場合があります。 最新の情報につきましては各市区役所までお問い合わせいただくか、自治体HPなどをご確認ください。

この物件を見た人はこんな物件も見ています

OCN×ドコモ光新規お申込みで合計最大137,280円相当おトク!特典の内訳・適用条件など詳細はこちら

他のエリアから探す

和歌山市の詳細地域から一戸建て物件を探す

秋月秋葉町朝日小豆島有家有本磯の浦伊太祈曽市小路今福岩橋井辺上野宇治袋町宇須宇田森打越町内原梅原榎原大谷太田小倉小野町加太金谷加納川辺梶取北休賀町北新中ノ丁北田辺丁北出島狐島木ノ本木広町紀三井寺吉礼杭ノ瀬楠見中楠本口須佐黒田毛見神前神波小雑賀小松原古屋雑賀崎雑賀町栄谷坂田作事丁材木丁塩屋島橋北ノ丁島橋西ノ丁島橋東ノ丁下三毛新在家新庄新生町新堀東新和歌浦砂山南関戸善明寺相坂園部鷹匠町滝畑田尻田屋つつじが丘津秦手平寺内出島土佐町土入中島中筋日延中之島鳴神新高町西小二里西田井西高松西長町西庄西浜禰宜直川納定野崎延時吐前東小二里町東高松日野平井平尾平岡弘西吹上吹屋町福島府中舟津町船所冬野布施屋堀止西本町松江北松江中松江東松ケ丘松島三葛満屋湊北町湊御殿南出島六十谷本脇森小手穂山口西吉里吉田吉原和歌浦中和歌浦西和歌浦東和歌浦南和歌川町和佐関戸

近辺の市区から探す

泉南郡岬町海南市

周辺の駅から探す

阪和線
和泉砂川和泉鳥取山中渓紀伊六十谷紀伊中ノ島和歌山

住宅ローンの返済額一覧

物件価格 420万円に対して、年率 で、頭金 の場合
↓ボーナス 35年間 30年間 25年間 20年間 15年間 10年間
0万円 ローン不可 ローン不可 ローン不可 ローン不可 ローン不可 ローン不可
5万円 ローン不可 ローン不可 ローン不可 ローン不可 ローン不可 ローン不可
10万円 ローン不可 ローン不可 ローン不可 ローン不可 ローン不可 ローン不可
15万円 ローン不可 ローン不可 ローン不可 ローン不可 ローン不可 ローン不可
20万円 ローン不可 ローン不可 ローン不可 ローン不可 ローン不可 ローン不可
25万円 ローン不可 ローン不可 ローン不可 ローン不可 ローン不可 ローン不可
30万円 ローン不可 ローン不可 ローン不可 ローン不可 ローン不可 ローン不可
支払い利息合計
※元利均等返済方式で試算しています。 「円」の単位以下の端数金額は「切り捨て」として計算しております。
※金利は、固定金利として計算しております。
※上記の住宅ローン返済額一覧は、あくまで試算であり、将来の金利動向により、実際のご返済額とは異なります。
※ボーナス支払総額が総支払額の50%を超えている場合、上記の表では「ローン不可」となります。
※住宅ローン返済額一覧の数値は、住宅ローンのお申し込みやご融資をお約束するものではございません。
物件を見たい、物件や住環境の詳しい情報やローン相談など、
お問い合わせ先
(株)りんくうホーム

掲載情報の著作権は提供元企業等に帰属します。
Copyright:(C) 2025 Recruit Co., Ltd.
アプリで簡単 物件探し 大手不動産サイトの情報から一括検!プッシュ通知で物件を見逃さない
App Storeからダウンロード Google Playで手に入れよう QRコード