アプリで簡単 物件探し 通知 共有 アプリならではの機能を使ってみる
中古住宅

大阪府富田林市金剛錦織台 滝谷駅 中古一戸建て・中古住宅

情報提供元
SUUMO
大阪府富田林市金剛錦織台 滝谷駅 中古一戸建て・中古住宅
価格 3180万円
交通
所在地 大阪府富田林市金剛錦織台周辺地図
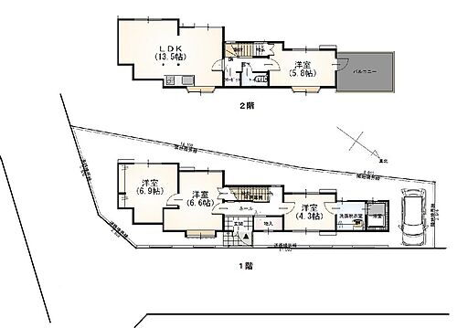
間取り 4LDK
建物面積 95.22m2(28.80坪)(登記) 土地面積 150.24m2(45.44坪)(登記)
築年月 2014年3月 築年数 築11年8ヶ月
おすすめポイント
■ネットで簡単見学予約■電話が苦手な方もネット予約ならワンタップで完了します。【見学予約する】より、見学予約をご指定ください。■南大阪でお探しの場合はマキヌシ狭山本店へ■■【現地ご案内受付中】072-368-3913 へお気軽にお電話ください。 【平日・土日問わず10:00~19:00ご内覧は無料でいつでもOK】■住宅ローンの無料相談もお任せ下さい■当店の明るいスタッフが分かり易くご説明させていただきます。■買替のご相談も承ります■今のお家の残債がある場合でもお住み替えが出来ます。直接の買取りも行ってます。不動産のご相談はマキヌシ狭山本店にお任せ下さい。
日当り良好・閑静な住宅街・駐車場2台分・整形地・浴室1坪以上
物件を見たい、物件や住環境の詳しい情報やローン相談など、
お問い合わせ先
牧主住宅開発(株)狭山店

詳細情報

価格 3180万円
所在地 大阪府富田林市金剛錦織台周辺地図
交通
間取り 4LDK 築年月(築年数) 2014年3月(築11年8ヶ月)
建物面積 95.22m2(28.80坪)(登記) 建物構造・規模 木造2階建
土地面積 150.24m2(45.44坪)(登記) 土地権利 所有権
私道面積 借地期間・地代
接道状況 南東6m 駐車場
用途地域 1種低層 都市計画
建ぺい率/容積率 50%/100% 現況
地目 引渡可能時期 即時
情報提供元 SUUMO [060Z78481626] 情報公開日
情報更新日 次回更新予定日 随時

設備など

1種低層地域 即入居可 売主・代理 -
駐車2台以上 平屋 - 本下水
都市ガス カウンターキッチン - 床暖房
ウォークインクローゼット バリアフリー -
設備 トイレ・収納スペース・洗面所・都市ガス・浴室乾燥機・ウォークインクローゼット・シャンプードレッサ・温水洗浄便座・システムキッチン・モニタ付インターホン・風呂・庭・対面K・トイレ2ヶ所・床下収納・グルニエ・床暖房・衣類乾燥機・食器洗浄乾燥機・複層ガラス・上水道・本下水・駐車場2台分・リフォーム・シューズインクローク
リフォーム履歴 2025年6月完了
 その他:ハウスクリーニング
リノベーション履歴 -
備考 <物件名>金剛錦織台(滝谷駅) 3180万円/<駐車場>カースペース/<土地権利>所有権/<間取り>4LDK/<リフォーム>●リフォーム:2025年6月完了(その他:ハウスクリーニング)/<特徴>■ハウスクリーニング完了■平成26年建築■駐車2台可能■吹抜けのあるお家■、駐車2台可・内装リフォーム・システムキッチン・浴室乾燥機・陽当り良好
販売戸数:1戸
特記事項 日当り良好・閑静な住宅街・駐車場2台分・整形地・浴室1坪以上

省エネ性能

エネルギー消費性能 -
断熱性能 -
目安光熱費 -

大阪府富田林市金剛錦織台 周辺地図情報

地図
※地図上に表示される物件の位置は付近住所に所在することを表すものであり、実際の物件所在地とは異なる場合がございます。
   正確な物件所在地は、取扱い不動産会社にお問い合わせください。
物件を見たい、物件や住環境の詳しい情報やローン相談など、
お問い合わせ先
牧主住宅開発(株)狭山店

不動産会社情報

お問い合わせ先 商号:牧主住宅開発(株)狭山店
免許番号:大阪府知事(8)第040529号
所在地:大阪府大阪狭山市東茱萸木2-779-5
TEL:0120-683913
取引態様:媒介
管理コード:B02144-000340
共有する
QRコード
物件を見たい、物件や住環境の詳しい情報やローン相談など、
お問い合わせ先
牧主住宅開発(株)狭山店

富田林市の暮らしデータ

人口などの統計情報

世帯数 45593世帯
人口総数 107342人
転入者数 3920人
転入率(人口1000人当たり)
36.52人
転出者数 3878人
転出率(人口1000人当たり)
36.13人
土地平均価格
住宅地
72567円/m2
商業地
137000円/m2

結婚・育児の助成金

子育て関連の独自の取り組み (1)小学校6年生と中学校3年生に少人数(35人)学級を取り入れ、きめ細かな教育を実施。(2)全公立小学校の学童クラブにて小学校の長期休業期間は午前8時から午後7時までの利用が可能。(3)保育士による訪問事業。(4)産後ケア事業。(5)病児保育事業。(6)育児ヘルパー事業。(7)生後6ヶ月~満3歳未満のお子さんについて、保護者の就労要件を問わず保育施設を利用できる「こども誰でも通園制度」を令和6年7月1日~令和7年3月31日の期間で試行的に実施。(8)見守りおむつ定期便事業。
出産祝い なし
公立保育所数 6所(うち0歳児保育を実施している保育所:6所)
私立保育所数 7所(うち0歳児保育を実施している保育所:7所)
保育所入所待機児童数 1人
認定こども園数 8園 預かり保育実施園数 公立:10園 私立:4園
学校給食 【小学校】完全給食【中学校】完全給食 家庭弁当等との選択制[内容:完全給食]
公立中学校の学校選択制 未実施
子ども・学生等医療費助成<通院>対象年齢 18歳3月末まで 子ども・学生等医療費助成<入院>対象年齢 18歳3月末まで

富田林市の治安・ごみ収集情報

公共料金・インフラ

ガス料金(22m3使用した場合の月額) 大阪瓦斯株式会社4544円
水道料金(口径20mmで20m3の月額) 富田林市2816円
下水道料金(20m3を使用した場合の月額) 富田林市2382円
下水道普及率 94.4%

安心・安全

建物火災出火件数 21件
人口10000人当たり
1.93件
刑法犯認知件数 538件
人口1000人当たり
4.95件
ハザード・防災マップ あり

医療

一般病院総数 7ヶ所
一般診療所総数 87ヶ所
小児科医師数 19人
小児人口10000人当たり
16.37人
産婦人科医師数 10人
15~49歳女性人口1万人当たり
5.18人
介護保険料基準額(月額) 6927円

ごみ

家庭ごみ収集(可燃ごみ) 一部有料
備考
超過有料制。世帯人数に応じた無料ごみシールを配布。追加が必要な場合は自己負担で有料シールを購入(30リットル袋用シール=50円/枚、45リットル袋用シール=100円/枚。いずれも1袋につき1枚貼付)。
家庭ごみの分別方式 2分別5種〔可燃ごみ 資源ごみ(空きカン・空きビン ペットボトル プラスチック製容器包装 飲料用紙容器[牛乳パック等])〕
家庭ごみの戸別収集 一部実施(【ふれあい収集】ステーションまで排出できない高齢者・障害者等に対し、戸別収集を実施)
粗大ごみ収集 あり
備考
-
生ごみ処理機助成金制度 なし
上限金額
-
上限比率
-

富田林市の住まいの給付金

中古購入

利子補給制度 なし
補助/助成金制度 あり
上限金額
(1)50万円(2)20万円
備考
(1)【富田林市若者・子育て世代転入促進給付金】親子等での近居・同居を目的として、新築又は売買により住宅を取得し、転入してきた40歳以下の方を対象に、近居の場合30万円、同居の場合50万円の給付金を支給。(2)【富田林市空き家バンク制度活用促進補助金】富田林市空き家バンク掲載物件の売買契約が成立した際に居住希望者(物件購入者)に20万円を補助、富田林市空き家バンク掲載物件の賃貸借契約が成立した際に居住希望者(物件購入者)に2万円を補助。また、リフォーム工事費用の1/3(上限20万円)を補助。(1)(2)共に、その他要件あり。

増築・改築・改修

利子補給制度 なし
補助/助成金制度 あり
上限金額
(1)5万円(2)100万円(3)20万円
備考
1981年5月31日以前に建築された建築物が対象。(1)【富田林市耐震化促進補助制度(耐震診断)】木造住宅は耐震診断費用の10/11(上限5万円)。非木造住宅は耐震診断費用の1/2(上限2.5万円)。(2)【富田林市耐震化促進補助制度(耐震改修)】耐震改修費用(耐震改修設計含む、耐震シェルターも対象)の1/3(上限100万円)、他要件あり。(3)【富田林市耐震化促進補助制度(除却工事)】除却工事に要する費用(上限20万円)、他要件あり。
暮らしデータ提供元:生活ガイド.com
※行政機関により公表していない地域及びデータがございます。東京23区以外の政令指定都市は、市全体のデータとして表示しています。
※提供データには細心の注意を払っておりますが、調査後に変更がある場合があります。 最新の情報につきましては各市区役所までお問い合わせいただくか、自治体HPなどをご確認ください。

この物件を見た人はこんな物件も見ています

OCN×ドコモ光新規お申込みで合計最大137,280円相当おトク!特典の内訳・適用条件など詳細はこちら

富田林市内の各駅の住みやすさ

住宅ローンの返済額一覧

物件価格 3180万円に対して、年率 で、頭金 の場合
↓ボーナス 35年間 30年間 25年間 20年間 15年間 10年間
0万円 69,568円/月 80,182円/月 95,051円/月 117,366円/月 154,573円/月 229,009円/月
5万円 60,483円/月 71,207円/月 86,184円/月 108,607円/月 145,921円/月 220,464円/月
10万円 51,397円/月 62,231円/月 77,318円/月 99,848円/月 137,270円/月 211,919円/月
15万円 42,312円/月 53,255円/月 68,451円/月 91,090円/月 128,618円/月 203,374円/月
20万円 ローン不可 44,280円/月 59,584円/月 82,331円/月 119,967円/月 194,829円/月
25万円 ローン不可 ローン不可 50,717円/月 73,572円/月 111,315円/月 186,284円/月
30万円 ローン不可 ローン不可 ローン不可 64,814円/月 102,664円/月 177,738円/月
支払い利息合計 2,429,620円~ 2,078,240円~ 1,728,200円~ 1,380,320円~ 1,032,470円~ 687,300円~
※元利均等返済方式で試算しています。 「円」の単位以下の端数金額は「切り捨て」として計算しております。
※金利は、固定金利として計算しております。
※上記の住宅ローン返済額一覧は、あくまで試算であり、将来の金利動向により、実際のご返済額とは異なります。
※ボーナス支払総額が総支払額の50%を超えている場合、上記の表では「ローン不可」となります。
※住宅ローン返済額一覧の数値は、住宅ローンのお申し込みやご融資をお約束するものではございません。
物件を見たい、物件や住環境の詳しい情報やローン相談など、
お問い合わせ先
牧主住宅開発(株)狭山店

掲載情報の著作権は提供元企業等に帰属します。
Copyright:(C) 2025 Recruit Co., Ltd.
アプリで簡単 物件探し 大手不動産サイトの情報から一括検!プッシュ通知で物件を見逃さない
App Storeからダウンロード Google Playで手に入れよう QRコード