アプリで簡単 物件探し 通知 共有 アプリならではの機能を使ってみる
中古住宅

愛知県大府市東新町5 共和駅 中古一戸建て・中古住宅

情報提供元
SUUMO
愛知県大府市東新町5 共和駅 中古一戸建て・中古住宅
価格 6500万円
交通
所在地 愛知県大府市東新町5周辺地図
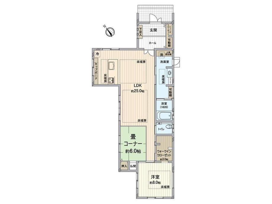
間取り 1LDK
建物面積 96.88m2(29.30坪)(登記) 土地面積 307.78m2(93.10坪)(登記)
築年月 2022年11月 築年数 築3年1ヶ月
おすすめポイント
-物件のおすすめポイント-▼立地・JR東海道本線「共和」駅 徒歩12分▼特徴・2022年11月築の平屋建住宅・約93.1坪の広々とした敷地・各居室2面以上の採光を確保・配膳がスムーズな対面式キッチン・畳コーナーは収納・仏間付・浴室はゆったりとくつろげる1620サイズ・カーポート2台分有(車種による)▼設備・床暖房(LDK・洋室・洗面脱衣所)・IHクッキングヒーター・温水洗浄便座・TVモニタ付インターホン※容積率は、前面道路幅員による制限数値です■ ご希望の住まい探しをお手伝いします ━━━━━・・・物件の詳細・ご相談はお気軽にお問い合わせください。
浴室1坪以上
お問い合わせ先
三井のリハウス春日井センター三井不動産リアルティ(株)
物件を見たい、物件や住環境の詳しい情報やローン相談など、
お問い合わせ先
三井のリハウス春日井センター三井不動産リアルティ(株)

詳細情報

価格 6500万円
所在地 愛知県大府市東新町5周辺地図
交通
間取り 1LDK 築年月(築年数) 2022年11月(築3年1ヶ月)
建物面積 96.88m2(29.30坪)(登記) 建物構造・規模 木造平屋建て
土地面積 307.78m2(93.10坪)(登記) 土地権利 所有権
私道面積 借地期間・地代
接道状況 東3.6m接面3.7m 駐車場
用途地域 1種住居 都市計画
建ぺい率/容積率 60%/200% 現況
地目 引渡可能時期 相談
情報提供元 SUUMO [050Z78402811] 情報公開日
情報更新日 次回更新予定日 随時

設備など

1種低層地域 - 即入居可 - 売主・代理 -
駐車2台以上 - 平屋 本下水
都市ガス カウンターキッチン - 床暖房
ウォークインクローゼット バリアフリー -
設備 トイレ・都市ガス・ウォークインクローゼット・温水洗浄便座・システムキッチン・モニタ付インターホン・風呂・対面K・IHクッキングヒータ・床暖房・上水道・本下水
リフォーム履歴 -
リノベーション履歴 -
備考 <物件名>東新町5(共和駅) 6500万円/<土地権利>所有権/<間取り>1LDK/<特徴>■三井のリハウス■LDKは約25帖、畳コーナー付収納力のあるWIC有、LDK20畳以上・土地50坪以上・スーパー 徒歩10分以内・システムキッチン・対面式キッチン
販売戸数:1戸
法令等制限:宅地造成工事規制区域、容積率:但し、前面道路幅員により160%に制限されます。
特記事項 浴室1坪以上

省エネ性能

エネルギー消費性能 -
断熱性能 -
目安光熱費 -

愛知県大府市東新町5 周辺地図情報

地図
※地図上に表示される物件の位置は付近住所に所在することを表すものであり、実際の物件所在地とは異なる場合がございます。
   正確な物件所在地は、取扱い不動産会社にお問い合わせください。
物件を見たい、物件や住環境の詳しい情報やローン相談など、
お問い合わせ先
三井のリハウス春日井センター三井不動産リアルティ(株)

不動産会社情報

お問い合わせ先 商号:三井のリハウス春日井センター三井不動産リアルティ(株)
免許番号:国土交通大臣(15)第000777号
所在地:愛知県春日井市六軒屋町1-3
TEL:00786-01794284
取引態様:専任媒介
管理コード:FA9ARA13
共有する
QRコード
物件を見たい、物件や住環境の詳しい情報やローン相談など、
お問い合わせ先
三井のリハウス春日井センター三井不動産リアルティ(株)

大府市の暮らしデータ

人口などの統計情報

世帯数 38274世帯
人口総数 93016人
転入者数 5036人
転入率(人口1000人当たり)
54.14人
転出者数 4798人
転出率(人口1000人当たり)
51.58人
土地平均価格
住宅地
140857円/m2
商業地
156500円/m2

結婚・育児の助成金

子育て関連の独自の取り組み 「おおぶこども輝く未来応援八策」の展開(こども・子育てのライフステージに応じた5つの「柱」と、ライフステージを通じたこども・子育ての基盤となる3つの「梁」の施策で構成、2023年8月~)。(主な取組)【柱】(1)産後ケア事業の拡充。(2)保健師による紙おむつを持参した生後8ヶ月児訪問、家庭で子育て応援クーポンの発行。(3)土曜保育の開所時間の延長。(4)中学校給食費の完全無償化、放課後クラブ(一部)で夏休み期間中の昼食提供。(5)若者の出会いの機会提供。【梁】(6)市営住宅「子育て世帯向け住宅」の創設。(7)こどもの社会参画の促進。(8)屋内遊戯施設の整備、保育園・小中学校訪問バイオリンコンサートの開催。
出産祝い あり
公立保育所数 9所(うち0歳児保育を実施している保育所:9所)
私立保育所数 10所(うち0歳児保育を実施している保育所:10所)
保育所入所待機児童数 0人
認定こども園数 5園 預かり保育実施園数 公立:- 私立:2園
学校給食 【小学校】完全給食【中学校】完全給食
公立中学校の学校選択制 未実施
子ども・学生等医療費助成<通院>対象年齢 18歳3月末まで 子ども・学生等医療費助成<入院>対象年齢 18歳3月末まで

大府市の治安・ごみ収集情報

公共料金・インフラ

ガス料金(22m3使用した場合の月額) 東邦瓦斯株式会社5307円
水道料金(口径20mmで20m3の月額) 大府市2860円
下水道料金(20m3を使用した場合の月額) 大府市1815円
下水道普及率 84.7%

安心・安全

建物火災出火件数 13件
人口10000人当たり
1.40件
刑法犯認知件数 433件
人口1000人当たり
4.65件
ハザード・防災マップ あり

医療

一般病院総数 3ヶ所
一般診療所総数 74ヶ所
小児科医師数 87人
小児人口10000人当たり
62.58人
産婦人科医師数 9人
15~49歳女性人口1万人当たり
4.66人
介護保険料基準額(月額) 6283円

ごみ

家庭ごみ収集(可燃ごみ) 無料
備考
-
家庭ごみの分別方式 3分別14種〔可燃ごみ 不燃ごみ 資源ごみ(プラスチック資源[プラスチック製容器包装と一部製品プラスチックの一括回収]、ペットボトル、アルミ、スチール、スプレー缶、生きびん、その他びん、新聞紙・チラシ、ダンボール、紙パック、その他の紙類、衣類)〕 拠点回収:使用済乾電池 使用済小型電子機器 電気・電池で動くおもちゃ(試行)
家庭ごみの戸別収集 未実施
粗大ごみ収集 あり
備考
有料。戸別収集。事前申込制。
生ごみ処理機助成金制度 なし
上限金額
-
上限比率
-

大府市の住まいの給付金

中古購入

利子補給制度 なし
補助/助成金制度 なし

増築・改築・改修

利子補給制度 なし
補助/助成金制度 あり
上限金額
(1)160万円(2)30万円(3)30万円(4)2.1万円(5)30万円
備考
(1)【耐震改修費補助】1981年以前の耐震改修補助。木造住宅は上限140万円(高齢者等上限160万円)、非木造住宅は対象経費の23%の2/3以内の額。(2)【耐震シェルター整備費補助】1981年以前の木造住宅の耐震シェルターの購入、設置に要する費用の補助。上限30万円。(3)【三世代住宅支援事業費補助】同居や近居を目的に増改築を行う場合の補助。上限10万円。耐震改修工事と同時の場合は20万円。(4)【瓦屋根診断費補助】2021年12月31日までに葺いた瓦屋根の診断費用補助。対象経費の2/3以内の額で上限2.1万円。(5)【瓦屋根改修費補助】2021年12月31日までに葺いた瓦屋根の改修費用補助。対象経費の23%の上限20万円(市内業者を利用の場合は上限30万円)。
暮らしデータ提供元:生活ガイド.com
※行政機関により公表していない地域及びデータがございます。東京23区以外の政令指定都市は、市全体のデータとして表示しています。
※提供データには細心の注意を払っておりますが、調査後に変更がある場合があります。 最新の情報につきましては各市区役所までお問い合わせいただくか、自治体HPなどをご確認ください。
OCN×ドコモ光新規お申込みで合計最大137,280円相当おトク!特典の内訳・適用条件など詳細はこちら

大府市内の各駅の住みやすさ

住宅ローンの返済額一覧

物件価格 6500万円に対して、年率 で、頭金 の場合
↓ボーナス 35年間 30年間 25年間 20年間 15年間 10年間
0万円 155,751円/月 179,513円/月 212,801円/月 262,760円/月 346,058円/月 512,708円/月
5万円 146,665円/月 170,538円/月 203,935円/月 254,001円/月 337,407円/月 504,163円/月
10万円 137,580円/月 161,562円/月 195,068円/月 245,242円/月 328,756円/月 495,618円/月
15万円 128,494円/月 152,586円/月 186,201円/月 236,484円/月 320,104円/月 487,072円/月
20万円 119,409円/月 143,610円/月 177,334円/月 227,725円/月 311,453円/月 478,527円/月
25万円 110,323円/月 134,635円/月 168,468円/月 218,966円/月 302,801円/月 469,982円/月
30万円 101,238円/月 125,659円/月 159,601円/月 210,208円/月 294,150円/月 461,437円/月
支払い利息合計 5,437,190円~ 4,643,400円~ 3,856,000円~ 3,074,880円~ 2,299,950円~ 1,531,180円~
※元利均等返済方式で試算しています。 「円」の単位以下の端数金額は「切り捨て」として計算しております。
※金利は、固定金利として計算しております。
※上記の住宅ローン返済額一覧は、あくまで試算であり、将来の金利動向により、実際のご返済額とは異なります。
※ボーナス支払総額が総支払額の50%を超えている場合、上記の表では「ローン不可」となります。
※住宅ローン返済額一覧の数値は、住宅ローンのお申し込みやご融資をお約束するものではございません。
物件を見たい、物件や住環境の詳しい情報やローン相談など、
お問い合わせ先
三井のリハウス春日井センター三井不動産リアルティ(株)

掲載情報の著作権は提供元企業等に帰属します。
Copyright:(C) 2025 Recruit Co., Ltd.
アプリで簡単 物件探し 大手不動産サイトの情報から一括検!プッシュ通知で物件を見逃さない
App Storeからダウンロード Google Playで手に入れよう QRコード