アプリで簡単 物件探し 通知 共有 アプリならではの機能を使ってみる
中古住宅

神奈川県小田原市板橋 小田原駅 中古一戸建て・中古住宅

情報提供元
SUUMO
神奈川県小田原市板橋 小田原駅 中古一戸建て・中古住宅
価格 4800万円
交通
所在地 神奈川県小田原市板橋周辺地図
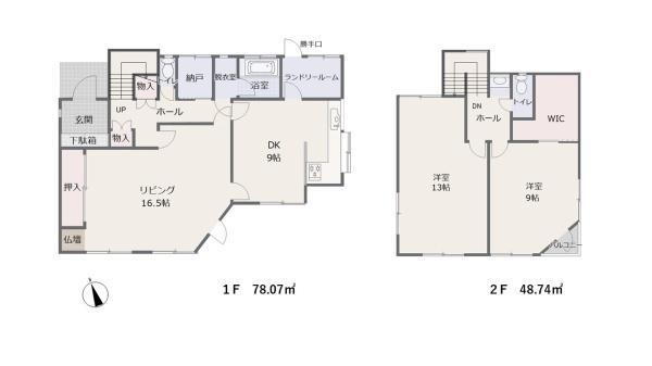
間取り 2LDK
建物面積 126.81m2 土地面積 342.67m2(登記)
築年月 1975年3月 築年数 築50年8ヶ月
おすすめポイント
▽△センチュリー21ヒューベストエステートへお問い合わせください△▽どんな物件だろう?詳細情報・物件状況を知りたい →〈資料請求する〉ちょっと見てみたい!現地・物件見学をご希望 →〈見学予約する〉お電話でのお問い合わせも大歓迎です!◆物件探し・住宅ローンのお悩みはありませんか?「どうやって物件を探したらいいのか分からない…」「住宅ローンが不安…」お客様の理想の住まいを“一緒に”お探しします!住まい探しのご不安なことは、ぜひ当社までご相談ください!◆小田原店:小田原市成田170-1、平塚店:平塚市四之宮2-9-25
日当り良好・閑静な住宅街
お問い合わせ先
センチュリー21(株)ヒューベストエステート
物件を見たい、物件や住環境の詳しい情報やローン相談など、
お問い合わせ先
センチュリー21(株)ヒューベストエステート

詳細情報

価格 4800万円
所在地 神奈川県小田原市板橋周辺地図
交通
  • JR東海道本線 小田原駅 バス6分/「城南中学校前」バス停 停歩2分乗換案内
間取り 2LDK 築年月(築年数) 1975年3月(築50年8ヶ月)
建物面積 126.81m2 建物構造・規模 木造2階建
土地面積 342.67m2(登記) 土地権利 所有権
私道面積 借地期間・地代
接道状況 北6.5m接面2m 駐車場
用途地域 無指定 都市計画 調整区域
建ぺい率/容積率 50%/100% 現況
地目 引渡可能時期 相談
情報提供元 SUUMO [030Z77273462] 情報公開日
情報更新日 次回更新予定日 随時

設備など

1種低層地域 - 即入居可 - 売主・代理 -
駐車2台以上 - 平屋 - 本下水 -
都市ガス - カウンターキッチン - 床暖房 -
ウォークインクローゼット バリアフリー -
設備 バルコニー・収納スペース・ウォークインクローゼット・システムキッチン・風呂・庭・LPガス・トイレ2ヶ所・上水道・浄化槽・フローリング
リフォーム履歴 -
リノベーション履歴 -
備考 <物件名>板橋 4800万円/<土地権利>所有権/<間取り>2LDK/<特徴>☆ヒューベストエステートと理想のすまい探し☆相模湾を見渡す天空の家、2沿線以上利用可・土地100坪以上・オーシャンビュー・山が見える・海まで2km以内
販売戸数:1戸
法令等制限:公簿売買、売主の契約不適合免責
特記事項 日当り良好・閑静な住宅街

省エネ性能

エネルギー消費性能 -
断熱性能 -
目安光熱費 -

神奈川県小田原市板橋 周辺地図情報

地図
※地図上に表示される物件の位置は付近住所に所在することを表すものであり、実際の物件所在地とは異なる場合がございます。
   正確な物件所在地は、取扱い不動産会社にお問い合わせください。
物件を見たい、物件や住環境の詳しい情報やローン相談など、
お問い合わせ先
センチュリー21(株)ヒューベストエステート

不動産会社情報

お問い合わせ先 商号:センチュリー21(株)ヒューベストエステート
免許番号:神奈川県知事(3)第028319号
所在地:神奈川県小田原市成田170-1
TEL:0465-39-3250
取引態様:一般媒介
管理コード:141203-28
共有する
QRコード
物件を見たい、物件や住環境の詳しい情報やローン相談など、
お問い合わせ先
センチュリー21(株)ヒューベストエステート

小田原市の暮らしデータ

人口などの統計情報

世帯数 81622世帯
人口総数 187040人
転入者数 7388人
転入率(人口1000人当たり)
39.50人
転出者数 6595人
転出率(人口1000人当たり)
35.26人
土地平均価格
住宅地
106278円/m2
商業地
195000円/m2

結婚・育児の助成金

子育て関連の独自の取り組み -
出産祝い あり
公立保育所数 5所(うち0歳児保育を実施している保育所:4所)
私立保育所数 26所(うち0歳児保育を実施している保育所:25所)
保育所入所待機児童数 3人
認定こども園数 5園 預かり保育実施園数 公立:2園 私立:10園
学校給食 【小学校】完全給食【中学校】完全給食
公立中学校の学校選択制 未実施
子ども・学生等医療費助成<通院>対象年齢 中学校卒業まで 子ども・学生等医療費助成<入院>対象年齢 中学校卒業まで

小田原市の治安・ごみ収集情報

公共料金・インフラ

ガス料金(22m3使用した場合の月額) 小田原瓦斯株式会社4489円
水道料金(口径20mmで20m3の月額) 小田原市2255円
神奈川県営水道2509円
下水道料金(20m3を使用した場合の月額) 小田原市2636円
下水道普及率 83.6%

安心・安全

建物火災出火件数 33件
人口10000人当たり
1.75件
刑法犯認知件数 928件
人口1000人当たり
4.91件
ハザード・防災マップ あり

医療

一般病院総数 11ヶ所
一般診療所総数 152ヶ所
小児科医師数 32人
小児人口10000人当たり
16.39人
産婦人科医師数 15人
15~49歳女性人口1万人当たり
4.44人
介護保険料基準額(月額) 5990円

ごみ

家庭ごみ収集(可燃ごみ) 無料
備考
清掃工場に持ち込みの場合は、有料(25円/kg)。
家庭ごみの分別方式 8分別17種〔燃せるごみ 紙・布類(新聞紙、雑誌、段ボール、紙パック、その他紙、布類) ペットボトル トレー類・プラマーク表示のあるもの かん類 びん類 燃せないごみ スプレー缶など(スプレー缶・カセットボンベ、蛍光灯、乾電池、ビデオテープ・カセットテープ、廃食用油)〕
家庭ごみの戸別収集 一部実施(紙・布類について高齢者世帯、障がい者世帯を対象に、紙・布類の登録制戸別収集を実施)
粗大ごみ収集 あり
備考
有料(1,000円/枚の証紙購入)。事前申込制による戸別収集。
生ごみ処理機助成金制度 なし
上限金額
-
上限比率
-

小田原市の住まいの給付金

中古購入

利子補給制度 なし
補助/助成金制度 なし

増築・改築・改修

利子補給制度 なし
補助/助成金制度 あり
上限金額
(1)(カタログギフト)5万円(2)9万円(3)100万円
備考
(1)【住宅リフォーム支援】住宅リフォームを市内施工業者で実施した際に、5万円分の地場産品等の商品を進呈(カタログギフト方式)する(金銭補助ではない)。(2)【耐震診断助成】1981年5月31日以前建築の木造2階建以下の住宅が対象。65歳以上の非課税世帯は上限9万円。それ以外の世帯は上限6万円。(3)【耐震改修助成】(2)の要件及び耐震診断の評点が1.0未満の住宅が対象。設計・工事監理費の2/3(上限15万円)。改修費の1/2(上限85万円)。
暮らしデータ提供元:生活ガイド.com
※行政機関により公表していない地域及びデータがございます。東京23区以外の政令指定都市は、市全体のデータとして表示しています。
※提供データには細心の注意を払っておりますが、調査後に変更がある場合があります。 最新の情報につきましては各市区役所までお問い合わせいただくか、自治体HPなどをご確認ください。

この物件を見た人はこんな物件も見ています

OCN×ドコモ光新規お申込みで合計最大137,280円相当おトク!特典の内訳・適用条件など詳細はこちら

小田原市内の各駅の住みやすさ

住宅ローンの返済額一覧

物件価格 4800万円に対して、年率 で、頭金 の場合
↓ボーナス 35年間 30年間 25年間 20年間 15年間 10年間
0万円 111,621円/月 128,651円/月 152,508円/月 188,311円/月 248,008円/月 367,440円/月
5万円 102,536円/月 119,675円/月 143,641円/月 179,552円/月 239,357円/月 358,895円/月
10万円 93,450円/月 110,700円/月 134,774円/月 170,794円/月 230,705円/月 350,350円/月
15万円 84,365円/月 101,724円/月 125,907円/月 162,035円/月 222,054円/月 341,805円/月
20万円 75,279円/月 92,748円/月 117,041円/月 153,276円/月 213,403円/月 333,260円/月
25万円 66,194円/月 83,773円/月 108,174円/月 144,518円/月 204,751円/月 324,715円/月
30万円 57,108円/月 74,797円/月 99,307円/月 135,759円/月 196,100円/月 316,170円/月
支払い利息合計 3,902,590円~ 3,333,080円~ 2,767,800円~ 2,207,120円~ 1,650,950円~ 1,099,140円~
※元利均等返済方式で試算しています。 「円」の単位以下の端数金額は「切り捨て」として計算しております。
※金利は、固定金利として計算しております。
※上記の住宅ローン返済額一覧は、あくまで試算であり、将来の金利動向により、実際のご返済額とは異なります。
※ボーナス支払総額が総支払額の50%を超えている場合、上記の表では「ローン不可」となります。
※住宅ローン返済額一覧の数値は、住宅ローンのお申し込みやご融資をお約束するものではございません。
物件を見たい、物件や住環境の詳しい情報やローン相談など、
お問い合わせ先
センチュリー21(株)ヒューベストエステート

掲載情報の著作権は提供元企業等に帰属します。
Copyright:(C) 2025 Recruit Co., Ltd.
アプリで簡単 物件探し 大手不動産サイトの情報から一括検!プッシュ通知で物件を見逃さない
App Storeからダウンロード Google Playで手に入れよう QRコード