

 
| 価格 | 4690万円 | ||
|---|---|---|---|
| 所在地 | 東京都西多摩郡瑞穂町大字高根周辺地図 | ||
| 交通 | 
 | ||
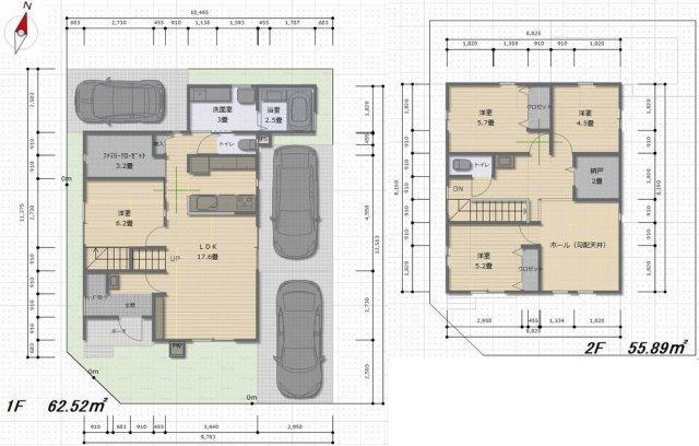
| 間取り | 4SLDK | 築年月(築年数) | 2025年3月(築1年未満) | 
| 建物面積 | 118.41m2(35.81坪)(実測) | 建物構造・規模 | 木造2階建 | 
| 土地面積 | 137.08m2(41.46坪)(登記) | 土地権利 | 所有権 | 
| 私道面積 | 借地期間・地代 | ||
| 接道状況 | 南6m接面11.3m 西6m接面11.1m 二方道路 | 駐車場 | |
| 用途地域 | 1種中高 | 都市計画 | |
| 建ぺい率/容積率 | 60%/150% | 現況 | |
| 地目 | 引渡可能時期 | 相談 | |
| 情報提供元 | SUUMO [030Z78592787] | 情報公開日 | |
| 情報更新日 | 次回更新予定日 | 随時 | |

| 1種低層地域 | - | 即入居可 | - | 売主・代理 | - | 
|---|---|---|---|---|---|
| 駐車2台以上 | ○ | 平屋 | - | 本下水 | ○ | 
| 都市ガス | - | カウンターキッチン | - | 床暖房 | - | 
| ウォークインクローゼット | ○ | バリアフリー | - | ||
| 設備 | 収納スペース・浴室乾燥機・ウォークインクローゼット・システムキッチン・風呂・庭・LPガス・対面K・床下収納・衣類乾燥機・上水道・本下水・フローリング | ||||
| リフォーム履歴 | - | ||||
| リノベーション履歴 | - | ||||
| 備考 | <物件名>大字高根 4690万円/<土地権利>所有権/<間取り>4LDK+S(納戸)/<用途地域>1種低層あり/<特徴>【※サンスタ限定物件】南西角地 注文住宅築1年未満 4SLDK+ホール、設計住宅性能評価書・建設住宅性能評価書(既存住宅)・年内引渡可・駐車3台以上可・システムキッチン 販売戸数:1戸 法令等制限:景観法、航空法 | ||||
| 特記事項 | 日当り良好・閑静な住宅街・駐車場3台分以上・設計住宅性能評価取得・角地・建設住宅性能評価取得・浴室1坪以上 | ||||
| エネルギー消費性能 | - | 
|---|---|
| 断熱性能 | - | 
| 目安光熱費 | - | 
| お問い合わせ先 | 商号:(株)サンスターホーム 免許番号:東京都知事(1)第112564号 所在地:東京都羽村市五ノ神4-7-21 第一ミハラビル1階 TEL:042-554-0851 取引態様:専属専任媒介 管理コード:107792 | 共有する | 
 | 
|---|
 
 
 
 
 
 
 
 
 
 
 
 
 
 
 
 
 
 
 
 
 
 
 
 
 
 
 
 
 
 
 
 
 
大字石畑|大字高根|大字殿ケ谷|大字二本木|大字箱根ケ崎|長岡|箱根ケ崎西松原
所沢市|飯能市|狭山市|入間市|八王子市|立川市|青梅市|昭島市|小平市|日野市|東村山市|国分寺市|国立市|福生市|東大和市|武蔵村山市|羽村市|あきる野市|西多摩郡日の出町
