アプリで簡単 物件探し 通知 共有 アプリならではの機能を使ってみる
中古住宅

東京都多摩市永山5 京王永山駅 中古一戸建て・中古住宅

情報提供元
SUUMO
東京都多摩市永山5 京王永山駅 中古一戸建て・中古住宅
価格 5280万円
交通
所在地 東京都多摩市永山5周辺地図
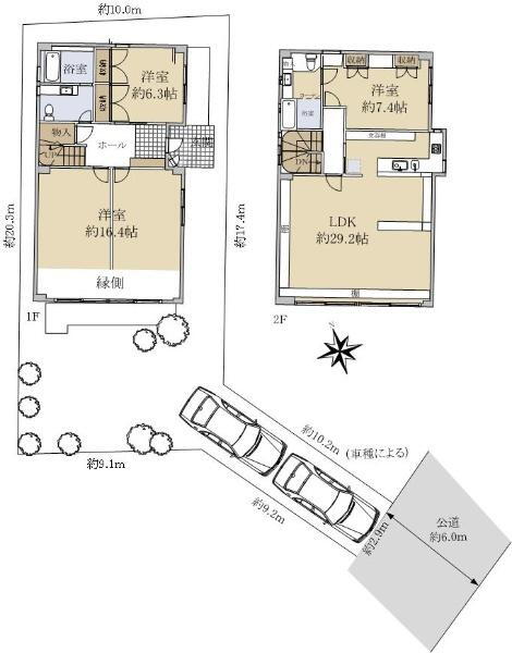
間取り 3LDK
建物面積 167.8m2(50.75坪) 土地面積 234.59m2(70.96坪)(登記)、路地状部分:28.24m2
築年月 1980年11月 築年数 築45年
おすすめポイント
◇アクセス・京王相模原線「京王永山」駅バス10分「永山五丁目」徒歩4分・小田急多摩線「小田急永山」駅バス10分「永山五丁目」徒歩4分◇おすすめポイント          ・鉄筋コンクリート造2階建て・3LDK・前面道路約6.0mに面す・敷地面積234.59㎡(70.96坪)・建物面積167.80㎡(50.75坪)・カースペースあり(車種による)・買主様負担により縁側部分に仕切りを 入れる事により4LDK変更可能◇設備・仕様・システムキッチン・温水洗浄便座(2F)・シャワー付き洗面化粧台(1F、2F)・オートバス・電動シャッター
閑静な住宅街・駐車場2台分
お問い合わせ先
住友不動産ステップ(株)武蔵小金井営業センター
物件を見たい、物件や住環境の詳しい情報やローン相談など、
お問い合わせ先
住友不動産ステップ(株)武蔵小金井営業センター

詳細情報

価格 5280万円
所在地 東京都多摩市永山5周辺地図
交通
  • 京王相模原線 京王永山駅 バス10分/「永山五丁目」バス停 停歩4分乗換案内
間取り 3LDK 築年月(築年数) 1980年11月(築45年)
建物面積 167.8m2(50.75坪) 建物構造・規模 RC2階建
土地面積 234.59m2(70.96坪)(登記)、路地状部分:28.24m2 土地権利 所有権
私道面積 借地期間・地代
接道状況 南東6m接面2.9m 駐車場
用途地域 1種低層 都市計画
建ぺい率/容積率 40%/80% 現況
地目 引渡可能時期 相談
情報提供元 SUUMO [030Z77753492] 情報公開日
情報更新日 次回更新予定日 随時

設備など

1種低層地域 即入居可 - 売主・代理 -
駐車2台以上 平屋 - 本下水 -
都市ガス カウンターキッチン - 床暖房 -
ウォークインクローゼット - バリアフリー -
設備 トイレ・洗面所・シャンプードレッサ・温水洗浄便座・システムキッチン・風呂・トイレ2ヶ所・駐車場2台分・都市ガス
リフォーム履歴 -
リノベーション履歴 -
備考 <物件名>永山5 5280万円/<土地権利>所有権/<間取り>3LDK/<その他制限事項>永山五・六丁目住宅地区地区計画/地区整備計画区域:整備計画区域内/<特徴>◇建築士によるこだわり設計◇鉄筋コンクリート造2階建て 、駐車2台可・2沿線以上利用可・スーパー 徒歩10分以内・南向き・システムキッチン
販売戸数:1戸
法令等制限:地勢:平坦/駐車場有り/カースペース:車種による/バス便調査日:2025年6月9日/新住宅市街地開発事業区域
特記事項 閑静な住宅街・駐車場2台分

省エネ性能

エネルギー消費性能 -
断熱性能 -
目安光熱費 -

東京都多摩市永山5 周辺地図情報

地図
※地図上に表示される物件の位置は付近住所に所在することを表すものであり、実際の物件所在地とは異なる場合がございます。
   正確な物件所在地は、取扱い不動産会社にお問い合わせください。
物件を見たい、物件や住環境の詳しい情報やローン相談など、
お問い合わせ先
住友不動産ステップ(株)武蔵小金井営業センター

不動産会社情報

お問い合わせ先 商号:住友不動産ステップ(株)武蔵小金井営業センター
免許番号:国土交通大臣(13)第002077号
所在地:東京都小金井市本町1-18-10 小金井本町ビル4階
TEL:0120-848183
取引態様:一般媒介
管理コード:150R2012
共有する
QRコード
物件を見たい、物件や住環境の詳しい情報やローン相談など、
お問い合わせ先
住友不動産ステップ(株)武蔵小金井営業センター

多摩市の暮らしデータ

人口などの統計情報

世帯数 68354世帯
人口総数 147776人
転入者数 7082人
転入率(人口1000人当たり)
47.92人
転出者数 6512人
転出率(人口1000人当たり)
44.07人
土地平均価格
住宅地
181714円/m2
商業地
428500円/m2

結婚・育児の助成金

子育て関連の独自の取り組み ブックスタート、多摩市絵本かたりかけ事業(市立健康センターで月2回実施する乳児[3~4ヶ月児]健康診査に、「絵本を通して親子のコミュニケーションが深まることの大切さ」を伝え、図書館から絵本、ブックリスト、図書館案内等を配付)。
出産祝い あり
公立保育所数 1所(うち0歳児保育を実施している保育所:1所)
私立保育所数 21所(うち0歳児保育を実施している保育所:21所)
保育所入所待機児童数 7人
認定こども園数 3園 預かり保育実施園数 公立:- 私立:6園
学校給食 【小学校】完全給食【中学校】完全給食
公立中学校の学校選択制 未実施
子ども・学生等医療費助成<通院>対象年齢 18歳3月末まで 子ども・学生等医療費助成<入院>対象年齢 18歳3月末まで

多摩市の治安・ごみ収集情報

公共料金・インフラ

ガス料金(22m3使用した場合の月額) 東京瓦斯株式会社(東京地区等)3926円
水道料金(口径20mmで20m3の月額) 東京都水道局2816円
下水道料金(20m3を使用した場合の月額) 多摩市2068円
下水道普及率 100.0%

安心・安全

建物火災出火件数 26件
人口10000人当たり
1.77件
刑法犯認知件数 674件
人口1000人当たり
4.59件
ハザード・防災マップ あり

医療

一般病院総数 5ヶ所
一般診療所総数 114ヶ所
小児科医師数 43人
小児人口10000人当たり
27.67人
産婦人科医師数 23人
15~49歳女性人口1万人当たり
8.24人
介護保険料基準額(月額) 5817円

ごみ

家庭ごみ収集(可燃ごみ) 有料
備考
指定ごみ袋有料。
家庭ごみの分別方式 4分別11種〔可燃ごみ 不燃ごみ 資源(びん、缶・ペットボトル、雑誌・雑紙、新聞、古布、ダンボール、プラスチック、小型家電・金属類) 有害性ごみ〕 拠点回収:白色トレイ 集団回収:新聞紙、雑誌・雑紙、ダンボール、紙パック、アルミ缶、スチール缶、びん、古繊維、ペットボトル
家庭ごみの戸別収集 実施(集合住宅は建物敷地内の専用集積所)
粗大ごみ収集 あり
備考
有料。事前申込制。シール制(オンライン決済の場合は不要)。
生ごみ処理機助成金制度 なし
上限金額
-
上限比率
-

多摩市の住まいの給付金

中古購入

利子補給制度 なし
補助/助成金制度 あり
上限金額
30万円
備考
【三世代近居・同居促進助成制度】三世代近居・同居のため、市外から転入する子世帯が、住宅を新築、購入及び改修等に30万円。要件あり。

増築・改築・改修

利子補給制度 なし
補助/助成金制度 あり
上限金額
(1)60万円(2)50万円(3)30万円
備考
(1)【木造住宅耐震改修補助】1981年5月31日以前に建築され耐震診断結果の上部構造評点が1未満で改修後評点0.7以上1未満の場合、補助対象工事費の30%、上限30万円。支援助成は工事費の50%、上限50万円。2000年5月31日以前に建築され耐震診断結果の上部構造評点が1未満で改修後評点1以上の場合、工事費の50%、上限60万円。(2)【非木造住宅耐震化促進補助金】1981年5月31日以前に建築確認を受けた住宅で、耐震診断結果、倒壊の危険があると判断された建築物が対象。戸建住宅の場合、耐震改修に要する費用の1/2、上限50万円助成。(3)【三世代近居・同居促進助成制度】三世代近居・同居のため、市外から転入する子世帯が、住宅を新築、購入及び改修等に30万円。要件あり。
暮らしデータ提供元:生活ガイド.com
※行政機関により公表していない地域及びデータがございます。東京23区以外の政令指定都市は、市全体のデータとして表示しています。
※提供データには細心の注意を払っておりますが、調査後に変更がある場合があります。 最新の情報につきましては各市区役所までお問い合わせいただくか、自治体HPなどをご確認ください。

この物件を見た人はこんな物件も見ています

OCN×ドコモ光新規お申込みで合計最大137,280円相当おトク!特典の内訳・適用条件など詳細はこちら

多摩市内の各駅の住みやすさ

住宅ローンの返済額一覧

物件価格 5280万円に対して、年率 で、頭金 の場合
↓ボーナス 35年間 30年間 25年間 20年間 15年間 10年間
0万円 124,081円/月 143,012円/月 169,532円/月 209,332円/月 275,693円/月 408,457円/月
5万円 114,996円/月 134,036円/月 160,665円/月 200,573円/月 267,042円/月 399,912円/月
10万円 105,910円/月 125,061円/月 151,798円/月 191,815円/月 258,390円/月 391,367円/月
15万円 96,825円/月 116,085円/月 142,931円/月 183,056円/月 249,739円/月 382,822円/月
20万円 87,739円/月 107,109円/月 134,065円/月 174,297円/月 241,087円/月 374,277円/月
25万円 78,654円/月 98,134円/月 125,198円/月 165,539円/月 232,436円/月 365,731円/月
30万円 69,568円/月 89,158円/月 116,331円/月 156,780円/月 223,784円/月 357,186円/月
支払い利息合計 4,335,790円~ 3,703,040円~ 3,075,000円~ 2,452,160円~ 1,834,070円~ 1,221,060円~
※元利均等返済方式で試算しています。 「円」の単位以下の端数金額は「切り捨て」として計算しております。
※金利は、固定金利として計算しております。
※上記の住宅ローン返済額一覧は、あくまで試算であり、将来の金利動向により、実際のご返済額とは異なります。
※ボーナス支払総額が総支払額の50%を超えている場合、上記の表では「ローン不可」となります。
※住宅ローン返済額一覧の数値は、住宅ローンのお申し込みやご融資をお約束するものではございません。
物件を見たい、物件や住環境の詳しい情報やローン相談など、
お問い合わせ先
住友不動産ステップ(株)武蔵小金井営業センター

掲載情報の著作権は提供元企業等に帰属します。
Copyright:(C) 2025 Recruit Co., Ltd.
アプリで簡単 物件探し 大手不動産サイトの情報から一括検!プッシュ通知で物件を見逃さない
App Storeからダウンロード Google Playで手に入れよう QRコード