アプリで簡単 物件探し 通知 共有 アプリならではの機能を使ってみる
中古住宅

千葉県千葉市美浜区稲毛海岸5 稲毛海岸駅 中古一戸建て・中古住宅

情報提供元
SUUMO
千葉県千葉市美浜区稲毛海岸5 稲毛海岸駅 中古一戸建て・中古住宅
価格 4380万円
交通
所在地 千葉県千葉市美浜区稲毛海岸5周辺地図
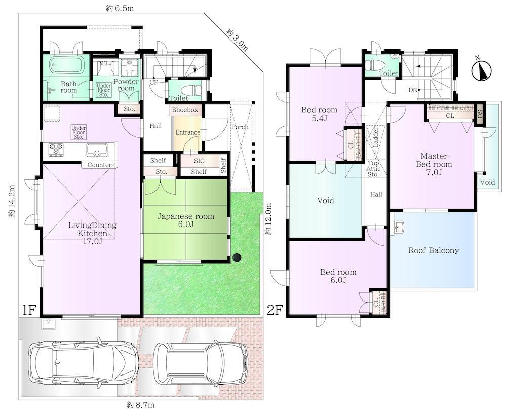
間取り 4LDK
建物面積 98.83m2(登記) 土地面積 121.58m2(登記)
築年月 2011年11月 築年数 築14年
おすすめポイント
・リビングダイニングに開放感のある吹抜・足元から温めるTES温水床暖房システム・対面式システムキッチン、食器洗浄機付き、IHコンロ・レンジフード、IHコンロは2024年に交換済・浴室1616サイズ、オートバス、浴室換気乾燥機付・トイレ、スリム手洗い器設置・防音性、断熱性、結露防止に優れたペアガラス・ホームセキュリティシステム(セコム)・大型ルーフバルコニー・駐車スペース2台分・2025年外構工事でカースペースを広げ、目隠しフェンスを設置しました。(追加で外構工事ですれば3台目スペースを確保可能)・道路幅員約6mを確保したゆとりある街区・住宅性能評価あり(設計・建設)
閑静な住宅街・駐車場2台分・角地・整形地
物件を見たい、物件や住環境の詳しい情報やローン相談など、
お問い合わせ先
エイシンエステート(株)

詳細情報

価格 4380万円
所在地 千葉県千葉市美浜区稲毛海岸5周辺地図
交通
間取り 4LDK 築年月(築年数) 2011年11月(築14年)
建物面積 98.83m2(登記) 建物構造・規模 木造2階建
土地面積 121.58m2(登記) 土地権利 所有権
私道面積 借地期間・地代
接道状況 二方道路 駐車場
用途地域 1種中高 都市計画
建ぺい率/容積率 60%/200% 現況
地目 引渡可能時期 2025年12月
情報提供元 SUUMO [030Z78315674] 情報公開日
情報更新日 次回更新予定日 随時

設備など

1種低層地域 - 即入居可 - 売主・代理 -
駐車2台以上 平屋 - 本下水
都市ガス カウンターキッチン - 床暖房
ウォークインクローゼット - バリアフリー -
設備 バルコニー・トイレ・収納スペース・都市ガス・浴室乾燥機・温水洗浄便座・システムキッチン・モニタ付インターホン・風呂・対面K・トイレ2ヶ所・床下収納・ルーフバルコニー・グルニエ・IHクッキングヒータ・床暖房・衣類乾燥機・食器洗浄乾燥機・複層ガラス・上水道・本下水・駐車場2台分・シューズインクローク
リフォーム履歴 -
リノベーション履歴 -
備考 <物件名>稲毛海岸5(稲毛海岸駅) 4380万円/<駐車場>カースペース/<土地権利>所有権/<間取り>4LDK/<特徴>プラウドシティ稲毛海岸シーズン街区 2階建て4LDK 北東角地、駐車2台可・2沿線以上利用可・スーパー 徒歩10分以内・海まで2km以内・システムキッチン
販売戸数:1戸
特記事項 閑静な住宅街・駐車場2台分・角地・整形地

省エネ性能

エネルギー消費性能 -
断熱性能 -
目安光熱費 -

千葉県千葉市美浜区稲毛海岸5 周辺地図情報

地図
※地図上に表示される物件の位置は付近住所に所在することを表すものであり、実際の物件所在地とは異なる場合がございます。
   正確な物件所在地は、取扱い不動産会社にお問い合わせください。
物件を見たい、物件や住環境の詳しい情報やローン相談など、
お問い合わせ先
エイシンエステート(株)

不動産会社情報

お問い合わせ先 商号:エイシンエステート(株)
免許番号:東京都知事(1)第111448号
所在地:東京都豊島区東池袋1-36-5 第二成澤ビル8階
TEL:03-6807-6027
取引態様:専任媒介
共有する
QRコード
物件を見たい、物件や住環境の詳しい情報やローン相談など、
お問い合わせ先
エイシンエステート(株)

千葉市美浜区の暮らしデータ

人口などの統計情報

世帯数 445814世帯
人口総数 978899人
転入者数 58210人
転入率(人口1000人当たり)
59.46人
転出者数 50072人
転出率(人口1000人当たり)
51.15人
土地平均価格
住宅地
121580円/m2
商業地
397034円/m2

結婚・育児の助成金

子育て関連の独自の取り組み (1)5年連続待機児童ゼロ。(2)政令市で2番目の産後ケア利用件数(2021年度政令指定都市主管課長会議)。(3)放課後児童クラブと放課後子ども教室を一体的に運営するアフタースクール。(4)小中学生に「ふれあいパスポート」(対象施設を無料・割引で利用可能)を配布。(5)ステップルームティーチャーの配置等6つの取組み(不登校対策パッケージ)。(6)保育園での医療的ケア児の受入。(7)3歳未満児在宅保育支援給付。(8)公立保育所における休日保育。(9)施設利用選考基準における多胎児への加点。(10)子育て支援コンシェルジュ。(11)エンゼルヘルパー。(12)男性の育児休業取得促進奨励金。(13)こども誰でも通園制度の試行。
出産祝い あり
公立保育所数 52所(うち0歳児保育を実施している保育所:51所)
私立保育所数 175所(うち0歳児保育を実施している保育所:175所)
保育所入所待機児童数 0人
認定こども園数 46園 預かり保育実施園数 公立:- 私立:53園
学校給食 【小学校】完全給食【中学校】完全給食
公立中学校の学校選択制 未実施
子ども・学生等医療費助成<通院>対象年齢 18歳3月末まで 子ども・学生等医療費助成<入院>対象年齢 18歳3月末まで

千葉市美浜区の治安・ごみ収集情報

公共料金・インフラ

ガス料金(22m3使用した場合の月額) 東京瓦斯株式会社(東京地区等)3926円
大多喜ガス株式会社(内房地区12A地区)4180円
大多喜ガス株式会社(内房地区13A地区)4105円
習志野市3432円
水道料金(口径20mmで20m3の月額) 千葉市3250円
千葉県営水道3250円
四街道市2640円
下水道料金(20m3を使用した場合の月額) 千葉市2140円
下水道普及率 97.5%

安心・安全

建物火災出火件数 145件
人口10000人当たり
1.49件
刑法犯認知件数 7010件
人口1000人当たり
7.19件
ハザード・防災マップ あり

医療

一般病院総数 42ヶ所
一般診療所総数 717ヶ所
小児科医師数 229人
小児人口10000人当たり
21.09人
産婦人科医師数 100人
15~49歳女性人口1万人当たり
5.17人
介護保険料基準額(月額) 6300円

ごみ

家庭ごみ収集(可燃ごみ) 有料
備考
指定ごみ袋有料。家庭ごみ処理手数料として1リットルあたり0.8円にて販売。
家庭ごみの分別方式 4分別20種〔可燃ごみ 不燃ごみ 資源物(びん[無色、茶色、その他]、缶、ペットボトル、木の枝、刈り草・葉、新聞、雑誌、段ボール、紙パック、雑がみ、布類) 有害ごみ(乾電池、蛍光灯、水銀入り体温計・血圧計、カセット式ガスボンベ・スプレー缶、使い捨てガスライター)〕
家庭ごみの戸別収集 未実施
粗大ごみ収集 あり
備考
有料。事前申込制。受付センターへ申込み。
生ごみ処理機助成金制度 あり
上限金額
35000円
上限比率
50.0%

千葉市美浜区の住まいの給付金

中古購入

利子補給制度 なし
補助/助成金制度 あり
上限金額
50万円
備考
【千葉市三世代同居・近居支援事業】要件は、(a)今後、親、子、孫を基本とする三世代の家族が同居または近隣(1km以内)に居住。(b)親が65歳以上で1年以上千葉市に居住。(c)孫が18歳未満。(d)同居または近隣の状態が今後3年以上継続する見込み。助成内容は、住宅購入費用+引越費用の合計額と助成限度額50万円を比較して低い額。

増築・改築・改修

利子補給制度 なし
補助/助成金制度 あり
上限金額
(1)9.6万円(2)100万円(3)20万円(4)100万円
備考
(1)【耐震診断費】1981年5月31日以前に建築された木造住宅。上限額9.6万円。(2)【耐震改修費】2000年5月31日以前に建築された木造住宅。工事、上限100万円。工事を二段階に分ける場合、1981年5月31日以前に建築された木造住宅。段階ごとに上限50万円。(3)【耐震シェルター設置費】1981年5月31日以前に建築された木造住宅。上限20万円。(4)【千葉市三世代同居・近居支援事業】今後、親、子、孫を基本とする三世代の家族が同居または近隣(1km以内)に居住する目的で、増築を行う際に助成。増築費用+引越費用の合計額と助成限度額50万円を比較して低い額(市内業者と契約して施工等を行った場合、限度額100万円)。他要件あり。
暮らしデータ提供元:生活ガイド.com
※行政機関により公表していない地域及びデータがございます。東京23区以外の政令指定都市は、市全体のデータとして表示しています。
※提供データには細心の注意を払っておりますが、調査後に変更がある場合があります。 最新の情報につきましては各市区役所までお問い合わせいただくか、自治体HPなどをご確認ください。

この物件を見た人はこんな物件も見ています

OCN×ドコモ光新規お申込みで合計最大137,280円相当おトク!特典の内訳・適用条件など詳細はこちら

千葉市美浜区内の各駅の住みやすさ

他のエリアから探す

千葉市美浜区の詳細地域から一戸建て物件を探す

磯辺稲毛海岸幸町幕張西

近辺の市区から探す

千葉市中央区千葉市花見川区千葉市稲毛区千葉市若葉区船橋市習志野市八千代市四街道市

周辺の駅から探す

京葉線
新習志野幕張豊砂|海浜幕張|検見川浜稲毛海岸千葉みなと蘇我
総武本線
新小岩市川船橋津田沼稲毛千葉東千葉都賀四街道

住宅ローンの返済額一覧

物件価格 4380万円に対して、年率 で、頭金 の場合
↓ボーナス 35年間 30年間 25年間 20年間 15年間 10年間
0万円 100,719円/月 116,085円/月 137,611円/月 169,918円/月 223,784円/月 331,551円/月
5万円 91,633円/月 107,109円/月 128,745円/月 161,159円/月 215,133円/月 323,006円/月
10万円 82,548円/月 98,134円/月 119,878円/月 152,400円/月 206,481円/月 314,461円/月
15万円 73,462円/月 89,158円/月 111,011円/月 143,642円/月 197,830円/月 305,915円/月
20万円 64,377円/月 80,182円/月 102,144円/月 134,883円/月 189,178円/月 297,370円/月
25万円 55,291円/月 71,207円/月 93,278円/月 126,124円/月 180,527円/月 288,825円/月
30万円 ローン不可 62,231円/月 84,411円/月 117,366円/月 171,875円/月 280,280円/月
支払い利息合計 3,519,900円~ 3,009,320円~ 2,499,000円~ 1,992,800円~ 1,490,450円~ 992,340円~
※元利均等返済方式で試算しています。 「円」の単位以下の端数金額は「切り捨て」として計算しております。
※金利は、固定金利として計算しております。
※上記の住宅ローン返済額一覧は、あくまで試算であり、将来の金利動向により、実際のご返済額とは異なります。
※ボーナス支払総額が総支払額の50%を超えている場合、上記の表では「ローン不可」となります。
※住宅ローン返済額一覧の数値は、住宅ローンのお申し込みやご融資をお約束するものではございません。
物件を見たい、物件や住環境の詳しい情報やローン相談など、
お問い合わせ先
エイシンエステート(株)

掲載情報の著作権は提供元企業等に帰属します。
Copyright:(C) 2025 Recruit Co., Ltd.
アプリで簡単 物件探し 大手不動産サイトの情報から一括検!プッシュ通知で物件を見逃さない
App Storeからダウンロード Google Playで手に入れよう QRコード