アプリで簡単 物件探し 通知 共有 アプリならではの機能を使ってみる
中古住宅

埼玉県狭山市大字水野 入曽駅 中古一戸建て・中古住宅

情報提供元
SUUMO
埼玉県狭山市大字水野 入曽駅 中古一戸建て・中古住宅
価格 920万円
交通
所在地 埼玉県狭山市大字水野周辺地図
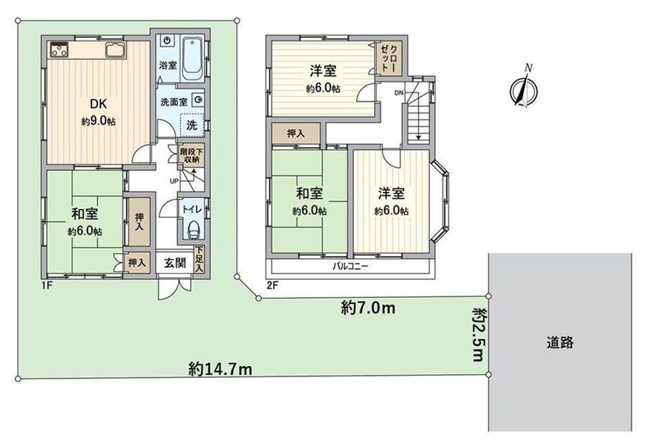
間取り 4DK
建物面積 78.79m2(23.83坪)(登記) 土地面積 100.13m2(30.28坪)(登記)
築年月 1997年6月 築年数 築28年5ヶ月
おすすめポイント
■ 立地 ━━━━━━━━━━━━━━・・・・・ ○ 西武新宿線「入曽」駅 徒歩16分 ○ 第一種低層住居専用地域■ おすすめポイント ━━━━━━━━━━・・・・・ ○ 洋室2部屋、和室2部屋の4DK ○ 全居室約6.0帖 ○ 全室二面採光の間取り ○ 階段下収納やクローゼットや収納豊富 ○ 浴室に窓がございます ○ カースペース1台あり(車種による) ○ 閑静な住宅街
閑静な住宅街
お問い合わせ先
三井のリハウス所沢センター三井不動産リアルティ(株)
物件を見たい、物件や住環境の詳しい情報やローン相談など、
お問い合わせ先
三井のリハウス所沢センター三井不動産リアルティ(株)

詳細情報

価格 920万円
所在地 埼玉県狭山市大字水野周辺地図
交通
間取り 4DK 築年月(築年数) 1997年6月(築28年5ヶ月)
建物面積 78.79m2(23.83坪)(登記) 建物構造・規模 木造2階建
土地面積 100.13m2(30.28坪)(登記) 土地権利 所有権
私道面積 借地期間・地代
接道状況 北東4.5m接面2.5m 駐車場
用途地域 1種低層 都市計画
建ぺい率/容積率 50%/80% 現況
地目 引渡可能時期 相談
情報提供元 SUUMO [030Z78615695] 情報公開日
情報更新日 次回更新予定日 随時

設備など

1種低層地域 即入居可 - 売主・代理 -
駐車2台以上 - 平屋 - 本下水
都市ガス - カウンターキッチン - 床暖房 -
ウォークインクローゼット - バリアフリー -
設備 風呂・LPガス・上水道・本下水
リフォーム履歴 -
リノベーション履歴 -
備考 <物件名>大字水野(入曽駅) 920万円/<駐車場>カースペース/<土地権利>所有権/<間取り>4DK/<特徴>■三井のリハウス■洋室・和室各2部屋の4DK、全室二面採光の間取り、閑静な住宅地・和室・2階建・浴室に窓・全居室6畳以上
販売戸数:1戸
特記事項 閑静な住宅街

省エネ性能

エネルギー消費性能 -
断熱性能 -
目安光熱費 -

埼玉県狭山市大字水野 周辺地図情報

地図
※地図上に表示される物件の位置は付近住所に所在することを表すものであり、実際の物件所在地とは異なる場合がございます。
   正確な物件所在地は、取扱い不動産会社にお問い合わせください。
物件を見たい、物件や住環境の詳しい情報やローン相談など、
お問い合わせ先
三井のリハウス所沢センター三井不動産リアルティ(株)

不動産会社情報

お問い合わせ先 商号:三井のリハウス所沢センター三井不動産リアルティ(株)
免許番号:国土交通大臣(15)第000777号
所在地:埼玉県所沢市日吉町14-3 朝日生命所沢ビル1階
TEL:00786-01794056
取引態様:専任媒介
管理コード:F45ASA06
共有する
QRコード
物件を見たい、物件や住環境の詳しい情報やローン相談など、
お問い合わせ先
三井のリハウス所沢センター三井不動産リアルティ(株)

狭山市の暮らしデータ

人口などの統計情報

世帯数 63702世帯
人口総数 148872人
転入者数 6457人
転入率(人口1000人当たり)
43.37人
転出者数 5822人
転出率(人口1000人当たり)
39.11人
土地平均価格
住宅地
117127円/m2
商業地
246000円/m2

結婚・育児の助成金

子育て関連の独自の取り組み (1)さやまし子育てガイドブックの配布。(2)子育てボランティア養成講座の実施。(3)さやま子育て支援ネットワーク事業補助金の支給。(4)狭山市地域子育て活動支援補助金の支給。
出産祝い あり
公立保育所数 8所(うち0歳児保育を実施している保育所:8所)
私立保育所数 18所(うち0歳児保育を実施している保育所:17所)
保育所入所待機児童数 16人
認定こども園数 5園 預かり保育実施園数 公立:2園 私立:7園
学校給食 【小学校】完全給食【中学校】完全給食
公立中学校の学校選択制 一部実施(一部の地域で選択制[要申請])
子ども・学生等医療費助成<通院>対象年齢 18歳3月末まで 子ども・学生等医療費助成<入院>対象年齢 18歳3月末まで

狭山市の治安・ごみ収集情報

公共料金・インフラ

ガス料金(22m3使用した場合の月額) 武州瓦斯株式会社4281円
入間ガス株式会社4384円
水道料金(口径20mmで20m3の月額) 狭山市2420円
下水道料金(20m3を使用した場合の月額) 狭山市1727円
下水道普及率 97.0%

安心・安全

建物火災出火件数 15件
人口10000人当たり
1.01件
刑法犯認知件数 724件
人口1000人当たり
4.87件
ハザード・防災マップ あり

医療

一般病院総数 9ヶ所
一般診療所総数 77ヶ所
小児科医師数 18人
小児人口10000人当たり
12.07人
産婦人科医師数 3人
15~49歳女性人口1万人当たり
1.15人
介護保険料基準額(月額) 5625円

ごみ

家庭ごみ収集(可燃ごみ) 無料
備考
-
家庭ごみの分別方式 4分別16種〔もやすごみ もやさないごみ 資源ごみ(古紙[新聞紙、ダンボール、雑誌・雑紙、牛乳パック]、古布、びん・缶、スプレー缶、プラスチック、ペットボトル、生ごみ) 有害ごみ(乾電池、ライター、水銀体温計・温度計、蛍光管等)〕
家庭ごみの戸別収集 一部実施(高齢者のみの世帯及び、身体障害者手帳1級または2級の交付を受けているひとり暮らし世帯で、自ら家庭ごみを集積所まで搬出することが困難で、身近な人などの協力も得られない世帯)
粗大ごみ収集 あり
備考
事前申込制。手数料あり。
生ごみ処理機助成金制度 あり
上限金額
10000円
上限比率
50.0%

狭山市の住まいの給付金

中古購入

利子補給制度 なし
補助/助成金制度 あり
上限金額
30万円+α万円
備考
【狭山市親元同居・近居支援補助制度】市内に住む親世帯と同居又は近居するために、市外から転入した子世帯に、住宅の新築又は購入の場合30万円、増改築の場合工事費の20%(上限20万円)を補助。18歳未満の子の3人目以降ひとりにつき10万円加算。市内業者との契約で10万円加算。上限金額なし。実施期間は2017年度~2025年度末まで。

増築・改築・改修

利子補給制度 なし
補助/助成金制度 あり
上限金額
(1)10万円(2)30万円(3)30万円(4)20万円+α万円
備考
(1)【店舗・住宅改修工事費補助金】市内業者利用でリフォームした際の費用5%(上限10万円)。(2)【木造戸建て住宅耐震診断・耐震改修工事補助金】2000年5月末以前に建築確認を受けた戸建住宅の診断、改修工事費用の一部を助成。診断費用の2/3以内(上限5万円)。改修工事費用の23%以内(上限20万円。災害時要援護者が居住している場合は30万円)。(3)【危険ブロック塀等改修事業補助金】道路に面する危険なブロック塀等の撤去や、安全なフェンス等への改修工事費用の一部を助成。費用の2/3以内(上限、撤去10万円、築造20万円)。(4)【狭山市親元同居・近居支援制度】市内に住む親世帯と同居又は近居するために、市外から転入した子世帯に、住宅の新築、購入又は増改築に係る費用の一部を補助。
暮らしデータ提供元:生活ガイド.com
※行政機関により公表していない地域及びデータがございます。東京23区以外の政令指定都市は、市全体のデータとして表示しています。
※提供データには細心の注意を払っておりますが、調査後に変更がある場合があります。 最新の情報につきましては各市区役所までお問い合わせいただくか、自治体HPなどをご確認ください。

この物件を見た人はこんな物件も見ています

OCN×ドコモ光新規お申込みで合計最大137,280円相当おトク!特典の内訳・適用条件など詳細はこちら

狭山市内の各駅の住みやすさ

住宅ローンの返済額一覧

物件価格 920万円に対して、年率 で、頭金 の場合
↓ボーナス 35年間 30年間 25年間 20年間 15年間 10年間
0万円 10,902円/月 12,565円/月 14,896円/月 18,393円/月 24,224円/月 35,889円/月
5万円 ローン不可 ローン不可 ローン不可 9,634円/月 15,572円/月 27,344円/月
10万円 ローン不可 ローン不可 ローン不可 ローン不可 ローン不可 18,799円/月
15万円 ローン不可 ローン不可 ローン不可 ローン不可 ローン不可 ローン不可
20万円 ローン不可 ローン不可 ローン不可 ローン不可 ローン不可 ローン不可
25万円 ローン不可 ローン不可 ローン不可 ローン不可 ローン不可 ローン不可
30万円 ローン不可 ローン不可 ローン不可 ローン不可 ローン不可 ローン不可
支払い利息合計 378,840円~ 323,400円~ 268,800円~ 216,320円~ 161,760円~ 108,780円~
※元利均等返済方式で試算しています。 「円」の単位以下の端数金額は「切り捨て」として計算しております。
※金利は、固定金利として計算しております。
※上記の住宅ローン返済額一覧は、あくまで試算であり、将来の金利動向により、実際のご返済額とは異なります。
※ボーナス支払総額が総支払額の50%を超えている場合、上記の表では「ローン不可」となります。
※住宅ローン返済額一覧の数値は、住宅ローンのお申し込みやご融資をお約束するものではございません。
物件を見たい、物件や住環境の詳しい情報やローン相談など、
お問い合わせ先
三井のリハウス所沢センター三井不動産リアルティ(株)

掲載情報の著作権は提供元企業等に帰属します。
Copyright:(C) 2025 Recruit Co., Ltd.
アプリで簡単 物件探し 大手不動産サイトの情報から一括検!プッシュ通知で物件を見逃さない
App Storeからダウンロード Google Playで手に入れよう QRコード