アプリで簡単 物件探し 通知 共有 アプリならではの機能を使ってみる
中古住宅

埼玉県川口市弥平1 川口元郷駅 中古一戸建て・中古住宅

情報提供元
SUUMO
埼玉県川口市弥平1 川口元郷駅 中古一戸建て・中古住宅
価格 3200万円
交通
所在地 埼玉県川口市弥平1周辺地図
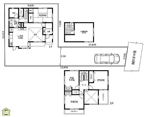
間取り 3SLDK
建物面積 100.61m2(登記) 土地面積 100.03m2(登記)
築年月 2000年7月 築年数 築25年4ヶ月
おすすめポイント
仕事が早い福屋♪お客様に満足とベストなお住まいをお届けします!
日当り良好・整形地

詳細情報

価格 3200万円
所在地 埼玉県川口市弥平1周辺地図
交通
  • 埼玉高速鉄道 川口元郷駅 徒歩24分乗換案内
  • 日暮里・舎人ライナー 舎人駅 徒歩30分乗換案内
間取り 3SLDK 築年月(築年数) 2000年7月(築25年4ヶ月)
建物面積 100.61m2(登記) 建物構造・規模 木造2階建
土地面積 100.03m2(登記) 土地権利 所有権
私道面積 借地期間・地代
接道状況 南9m接面7.2m 駐車場
用途地域 2種住居 都市計画
建ぺい率/容積率 60%/200% 現況
地目 引渡可能時期 相談
情報提供元 SUUMO [030Z77915971] 情報公開日
情報更新日 次回更新予定日 随時

設備など

1種低層地域 - 即入居可 - 売主・代理 -
駐車2台以上 - 平屋 - 本下水
都市ガス カウンターキッチン - 床暖房 -
ウォークインクローゼット - バリアフリー -
設備 バルコニー・収納スペース・都市ガス・トイレ2ヶ所・床下収納・上水道・本下水
リフォーム履歴 -
リノベーション履歴 -
備考 <物件名>弥平1(川口元郷駅) 3200万円/<駐車場>カースペース/<土地権利>所有権/<間取り>3LDK+S(納戸)/<特徴>小中学校とスーパーまで徒歩10分圏内!ファミリーでも広々お住まい可能!、スーパー 徒歩10分以内・市街地が近い・南向き・陽当り良好・南側道路面す
販売戸数:1戸
特記事項 日当り良好・整形地

省エネ性能

エネルギー消費性能 -
断熱性能 -
目安光熱費 -

埼玉県川口市弥平1 周辺地図情報

地図
※地図上に表示される物件の位置は付近住所に所在することを表すものであり、実際の物件所在地とは異なる場合がございます。
   正確な物件所在地は、取扱い不動産会社にお問い合わせください。
物件を見たい、物件や住環境の詳しい情報やローン相談など、
お問い合わせ先
(株)福屋不動産販売赤羽店

不動産会社情報

お問い合わせ先 商号:(株)福屋不動産販売赤羽店
免許番号:国土交通大臣(5)第006880号
所在地:東京都北区赤羽1-14-1
TEL:0120-298003
取引態様:一般媒介
共有する
QRコード
物件を見たい、物件や住環境の詳しい情報やローン相談など、
お問い合わせ先
(株)福屋不動産販売赤羽店

川口市の暮らしデータ

人口などの統計情報

世帯数 266756世帯
人口総数 606315人
転入者数 34070人
転入率(人口1000人当たり)
56.19人
転出者数 26834人
転出率(人口1000人当たり)
44.26人
土地平均価格
住宅地
249610円/m2
商業地
718600円/m2

結婚・育児の助成金

子育て関連の独自の取り組み -
出産祝い あり
公立保育所数 41所(うち0歳児保育を実施している保育所:17所)
私立保育所数 92所(うち0歳児保育を実施している保育所:82所)
保育所入所待機児童数 10人
認定こども園数 5園 預かり保育実施園数 公立:0園 私立:36園
学校給食 【小学校】完全給食【中学校】完全給食
公立中学校の学校選択制 未実施
子ども・学生等医療費助成<通院>対象年齢 中学校卒業まで 子ども・学生等医療費助成<入院>対象年齢 中学校卒業まで

川口市の治安・ごみ収集情報

公共料金・インフラ

ガス料金(22m3使用した場合の月額) 東京瓦斯株式会社(東京地区等)3926円
大東ガス株式会社4335円
水道料金(口径20mmで20m3の月額) 川口市3553円
下水道料金(20m3を使用した場合の月額) 川口市1998円
下水道普及率 88.8%

安心・安全

建物火災出火件数 94件
人口10000人当たり
1.58件
刑法犯認知件数 4437件
人口1000人当たり
7.47件
ハザード・防災マップ あり

医療

一般病院総数 21ヶ所
一般診療所総数 339ヶ所
小児科医師数 88人
小児人口10000人当たり
12.52人
産婦人科医師数 34人
15~49歳女性人口1万人当たり
2.68人
介護保険料基準額(月額) 6077円

ごみ

家庭ごみ収集(可燃ごみ) 無料
備考
施設への自己搬入においては100kgまで無料。100kgを超えた分につき、30円/10kgの処分手数料が必要。
家庭ごみの分別方式 3分別13種〔一般ごみ 有害ごみ 資源物(プラスチック製容器包装、びん、飲料かん、金属類、ペットボトル、繊維類、紙類[紙パック、新聞紙、雑誌・雑紙、ダンボール、紙製容器包装])〕 拠点回収:乾電池
家庭ごみの戸別収集 一部実施(ふれあい収集)
粗大ごみ収集 あり
備考
有料。戸別収集。事前申込制。
生ごみ処理機助成金制度 あり
上限金額
24000円
上限比率
50.0%

川口市の住まいの給付金

中古購入

利子補給制度 なし
補助/助成金制度 なし

増築・改築・改修

利子補給制度 なし
補助/助成金制度 あり
上限金額
(1)10万円(2)6.5万円(3)40万円
備考
(1)【川口市住宅リフォーム補助金】住宅改修工事に要する費用の5%を助成。(上限10万円)。他要件あり。(2)【川口市既存建築物耐震診断補助金】対象となる建築物の耐震診断費の2/3を助成。戸建て住宅は上限6.5万円。共同住宅等は上限150万円。他要件あり。(3)【川口市既存建築物耐震改修補助金】対象となる建築物の耐震改修費の23%を助成。戸建て住宅は上限40万円。共同住宅等は上限300万円。他要件あり。
暮らしデータ提供元:生活ガイド.com
※行政機関により公表していない地域及びデータがございます。東京23区以外の政令指定都市は、市全体のデータとして表示しています。
※提供データには細心の注意を払っておりますが、調査後に変更がある場合があります。 最新の情報につきましては各市区役所までお問い合わせいただくか、自治体HPなどをご確認ください。

この物件を見た人はこんな物件も見ています

OCN×ドコモ光新規お申込みで合計最大137,280円相当おトク!特典の内訳・適用条件など詳細はこちら

川口市内の各駅の住みやすさ

他のエリアから探す

川口市の詳細地域から一戸建て物件を探す

青木赤井朝日新井町安行出羽飯塚江戸袋大字赤井大字赤山大字新井宿大字安行大字安行北谷大字安行吉蔵大字安行小山大字安行慈林大字安行藤八大字安行原大字安行吉岡大字安行領家大字安行領根岸大字伊刈大字石神大字大竹大字木曽呂大字久左衛門新田大字行衛大字源左衛門新田大字小谷場大字神戸大字差間大字里大字芝大字辻大字新堀大字東内野大字東貝塚大字東本郷大字道合大字峯上青木上青木西川口北園町北原台幸町栄町坂下町桜町差間在家町芝下芝新町芝塚原芝中田芝西芝東町芝樋ノ爪芝富士芝宮根町末広長蔵戸塚戸塚境町戸塚鋏町戸塚東戸塚南中青木仲町並木並木元町西青木西川口榛松八幡木鳩ヶ谷本町東川口東本郷東領家本町本蓮本前川前上町前川前川町三ツ和緑町南町南鳩ヶ谷南前川宮町元郷柳崎柳根町弥平領家

近辺の市区から探す

さいたま市中央区さいたま市桜区さいたま市浦和区さいたま市南区さいたま市緑区草加市越谷市蕨市戸田市朝霞市和光市八潮市千代田区新宿区文京区台東区墨田区中野区豊島区北区荒川区板橋区練馬区足立区

周辺の駅から探す

埼玉高速鉄道
赤羽岩淵川口元郷南鳩ヶ谷鳩ヶ谷新井宿戸塚安行

住宅ローンの返済額一覧

物件価格 3200万円に対して、年率 で、頭金 の場合
↓ボーナス 35年間 30年間 25年間 20年間 15年間 10年間
0万円 70,088円/月 80,781円/月 95,760円/月 118,242円/月 155,726円/月 230,718円/月
5万円 61,002円/月 71,805円/月 86,894円/月 109,483円/月 147,075円/月 222,173円/月
10万円 51,917円/月 62,829円/月 78,027円/月 100,724円/月 138,423円/月 213,628円/月
15万円 42,831円/月 53,854円/月 69,160円/月 91,966円/月 129,772円/月 205,083円/月
20万円 ローン不可 44,878円/月 60,293円/月 83,207円/月 121,120円/月 196,538円/月
25万円 ローン不可 ローン不可 51,427円/月 74,448円/月 112,469円/月 187,993円/月
30万円 ローン不可 ローン不可 ローン不可 65,690円/月 103,817円/月 179,447円/月
支払い利息合計 2,447,600円~ 2,093,520円~ 1,741,200円~ 1,390,560円~ 1,040,010円~ 692,380円~
※元利均等返済方式で試算しています。 「円」の単位以下の端数金額は「切り捨て」として計算しております。
※金利は、固定金利として計算しております。
※上記の住宅ローン返済額一覧は、あくまで試算であり、将来の金利動向により、実際のご返済額とは異なります。
※ボーナス支払総額が総支払額の50%を超えている場合、上記の表では「ローン不可」となります。
※住宅ローン返済額一覧の数値は、住宅ローンのお申し込みやご融資をお約束するものではございません。
物件を見たい、物件や住環境の詳しい情報やローン相談など、
お問い合わせ先
(株)福屋不動産販売赤羽店

掲載情報の著作権は提供元企業等に帰属します。
Copyright:(C) 2025 Recruit Co., Ltd.
アプリで簡単 物件探し 大手不動産サイトの情報から一括検!プッシュ通知で物件を見逃さない
App Storeからダウンロード Google Playで手に入れよう QRコード