アプリで簡単 物件探し 通知 共有 アプリならではの機能を使ってみる
中古住宅

群馬県前橋市江木町 江木駅 中古一戸建て・中古住宅

情報提供元
SUUMO
群馬県前橋市江木町 江木駅 中古一戸建て・中古住宅
価格 3180万円
交通
所在地 群馬県前橋市江木町周辺地図
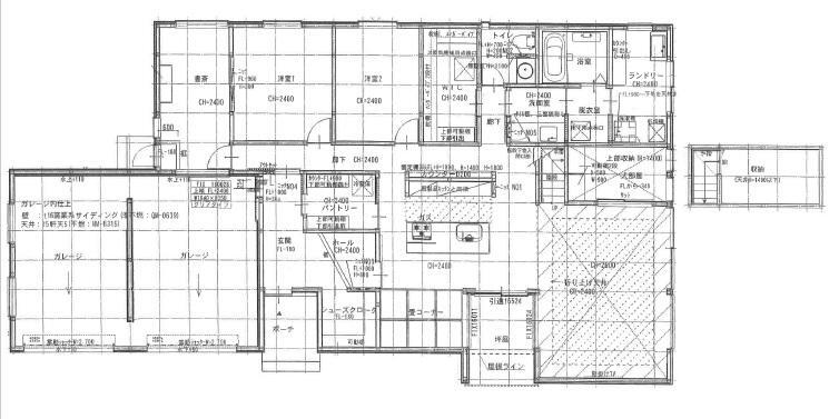
間取り 3SLDK
建物面積 180.52m2(登記) 土地面積 942.69m2(登記)
築年月 2021年4月 築年数 築4年7ヶ月
おすすめポイント
土地・約285坪・建物・令和3年4月新築・平屋建・約54.6坪!ビルトインガレージ2台分付!前橋市江木町・中古住宅!リフォーム完了後の引渡!リフォーム中ですが内覧可能です。お気軽にお問い合わせください!
日当り良好・バリアフリー・駐車場3台分以上・浴室1坪以上
物件を見たい、物件や住環境の詳しい情報やローン相談など、
お問い合わせ先
リリーフ不動産(株)

詳細情報

価格 3180万円
所在地 群馬県前橋市江木町周辺地図
交通
間取り 3SLDK 築年月(築年数) 2021年4月(築4年7ヶ月)
建物面積 180.52m2(登記) 建物構造・規模 木造平屋建て
土地面積 942.69m2(登記) 土地権利 所有権
私道面積 借地期間・地代
接道状況 東4m 駐車場
用途地域 無指定 都市計画
建ぺい率/容積率 70%/200% 現況
地目 引渡可能時期 相談
情報提供元 SUUMO [030Z78678082] 情報公開日
情報更新日 次回更新予定日 随時

設備など

1種低層地域 - 即入居可 - 売主・代理 -
駐車2台以上 平屋 本下水 -
都市ガス - カウンターキッチン - 床暖房 -
ウォークインクローゼット - バリアフリー
設備 トイレ・収納スペース・洗面所・シャンプードレッサ・温水洗浄便座・システムキッチン・モニタ付インターホン・風呂・庭・LPガス・対面K・床下収納・上水道・浄化槽・リフォーム
リフォーム履歴 2025年11月完了予定
 水回り設備交換:キッチン・トイレ
 内装リフォーム:壁
※年月は一番古いリフォーム箇所を表します
リノベーション履歴 -
備考 <物件名>江木町(江木駅) 3180万円/<駐車場>カースペース/<土地権利>所有権/<間取り>3LDK+S(納戸)/<リフォーム>●リフォーム:2025年11月完了予定(水回り設備交換:キッチン・トイレ、内装リフォーム:壁)※年月は一番古いリフォーム箇所を表します/<特徴>前橋市江木町・中古住宅!リフォーム完了後の引渡!土地・約285坪・建物・令和3、駐車3台以上可・土地100坪以上・LDK18畳以上・内装リフォーム・南向き
販売戸数:1戸
法令等制限:景観法
特記事項 日当り良好・バリアフリー・駐車場3台分以上・浴室1坪以上

省エネ性能

エネルギー消費性能 -
断熱性能 -
目安光熱費 -

群馬県前橋市江木町 周辺地図情報

地図
※地図上に表示される物件の位置は付近住所に所在することを表すものであり、実際の物件所在地とは異なる場合がございます。
   正確な物件所在地は、取扱い不動産会社にお問い合わせください。
物件を見たい、物件や住環境の詳しい情報やローン相談など、
お問い合わせ先
リリーフ不動産(株)

不動産会社情報

お問い合わせ先 商号:リリーフ不動産(株)
免許番号:群馬県知事(3)第007286号
所在地:群馬県前橋市南町3-57-7
TEL:027-289-3766
取引態様:一般媒介
共有する
QRコード
物件を見たい、物件や住環境の詳しい情報やローン相談など、
お問い合わせ先
リリーフ不動産(株)

前橋市の暮らしデータ

人口などの統計情報

世帯数 141556世帯
人口総数 329860人
転入者数 13057人
転入率(人口1000人当たり)
39.58人
転出者数 12197人
転出率(人口1000人当たり)
36.98人
土地平均価格
住宅地
46714円/m2
商業地
76300円/m2

結婚・育児の助成金

子育て関連の独自の取り組み 市内に住所を有し、同一世帯で18歳に達する日以後の最初の3月31日までの間にある子を3人以上養育し、かつ学校給食費に未納がない人を対象に、小中学校等に在籍している第3子以降の学校給食費を無料化し、子育て世帯の経済的負担を軽減し、安心して子育てできる環境整備を図り、もって少子化対策を推進するもの。
出産祝い あり
公立保育所数 16所(うち0歳児保育を実施している保育所:2所)
私立保育所数 20所(うち0歳児保育を実施している保育所:19所)
保育所入所待機児童数 0人
認定こども園数 50園 預かり保育実施園数 公立:2園 私立:1園
学校給食 【小学校】完全給食【中学校】完全給食
公立中学校の学校選択制 未実施
子ども・学生等医療費助成<通院>対象年齢 18歳3月末まで 子ども・学生等医療費助成<入院>対象年齢 18歳3月末まで

前橋市の治安・ごみ収集情報

公共料金・インフラ

ガス料金(22m3使用した場合の月額) 東京瓦斯株式会社(群馬地区)3648円
水道料金(口径20mmで20m3の月額) 前橋市2882円
下水道料金(20m3を使用した場合の月額) 前橋市2156円
下水道普及率 72.0%

安心・安全

建物火災出火件数 61件
人口10000人当たり
1.84件
刑法犯認知件数 2449件
人口1000人当たり
7.37件
ハザード・防災マップ あり

医療

一般病院総数 18ヶ所
一般診療所総数 340ヶ所
小児科医師数 113人
小児人口10000人当たり
30.18人
産婦人科医師数 65人
15~49歳女性人口1万人当たり
10.66人
介護保険料基準額(月額) 6450円

ごみ

家庭ごみ収集(可燃ごみ) 無料
備考
-
家庭ごみの分別方式 7分別17種〔可燃ごみ 不燃ごみ プラ容器 資源ごみ(びん[無色透明のびん、茶色のびん、その他の色のびん]、缶、ペットボトル) 危険ごみ 有害ごみ 紙・衣類等(紙[新聞紙、段ボール、雑誌、紙パック、雑古紙、シュレッダーした紙]、衣類等)〕
家庭ごみの戸別収集 一部実施(高齢者・障害者等のうち、家族や知人の協力を得られない人で、介護認定や障害者手帳等の一定の要件を満たしている人が対象。同居人がいる場合も同じ要件を満たすこと)
粗大ごみ収集 あり
備考
無料。戸別収集(1回につき3個まで)。事前申込制。
生ごみ処理機助成金制度 あり
上限金額
10000円
上限比率
50.0%

前橋市の住まいの給付金

中古購入

利子補給制度 なし
補助/助成金制度 あり
上限金額
70万円
備考
【空き家活用リフォーム補助】空き家を住宅として活用するために行う改修工事費用の1/3、上限70万円を補助。

増築・改築・改修

利子補給制度 なし
補助/助成金制度 あり
上限金額
8万円
備考
【住宅リフォーム補助】住宅の改修に対する工事費の1/3以内で上限8万円を補助。
暮らしデータ提供元:生活ガイド.com
※行政機関により公表していない地域及びデータがございます。東京23区以外の政令指定都市は、市全体のデータとして表示しています。
※提供データには細心の注意を払っておりますが、調査後に変更がある場合があります。 最新の情報につきましては各市区役所までお問い合わせいただくか、自治体HPなどをご確認ください。

この物件を見た人はこんな物件も見ています

OCN×ドコモ光新規お申込みで合計最大137,280円相当おトク!特典の内訳・適用条件など詳細はこちら

前橋市内の各駅の住みやすさ

他のエリアから探す

前橋市の詳細地域から一戸建て物件を探す

青梨子町青柳町朝倉町朝日町天川大島町天川原町荒子町荒牧町飯土井町池端町石倉町岩神町笂井町江木町江田町大胡町大利根町大友町大前田町表町柏倉町粕川町女渕粕川町込皆戸粕川町膳粕川町中粕川町深津上泉町上小出町上佐鳥町上新田町上細井町上増田町亀泉町亀里町川原町川端町川曲町北代田町小相木町紅雲町幸塚町国領町小坂子町小島田町駒形町小屋原町後閑町山王町下石倉町下大島町下大屋町下沖町下川町下小出町下新田町下細井町昭和町城東町関根町総社町植野総社町桜が丘総社町総社高花台滝窪町田口町堤町鶴が谷町稲荷新田町鳥取町富田町鳥羽町苗ヶ島町中内町南橘町西大室町西片貝町西善町日輪寺町ぬで島町端気町箱田町鼻毛石町東片貝町樋越町日吉町広瀬町富士見町赤城山富士見町石井富士見町小暮富士見町米野富士見町田島富士見町時沢富士見町原之郷富士見町皆沢文京町平和町堀越町堀之下町本町前箱田町三河町三俣町緑が丘町宮地町三夜沢町茂木町元総社町横手町龍蔵寺町六供町

近辺の市区から探す

高崎市渋川市北群馬郡榛東村北群馬郡吉岡町佐波郡玉村町

周辺の駅から探す

上毛電気鉄道上毛線
片貝上泉赤坂心臓血管センター江木大胡樋越北原新屋

住宅ローンの返済額一覧

物件価格 3180万円に対して、年率 で、頭金 の場合
↓ボーナス 35年間 30年間 25年間 20年間 15年間 10年間
0万円 69,568円/月 80,182円/月 95,051円/月 117,366円/月 154,573円/月 229,009円/月
5万円 60,483円/月 71,207円/月 86,184円/月 108,607円/月 145,921円/月 220,464円/月
10万円 51,397円/月 62,231円/月 77,318円/月 99,848円/月 137,270円/月 211,919円/月
15万円 42,312円/月 53,255円/月 68,451円/月 91,090円/月 128,618円/月 203,374円/月
20万円 ローン不可 44,280円/月 59,584円/月 82,331円/月 119,967円/月 194,829円/月
25万円 ローン不可 ローン不可 50,717円/月 73,572円/月 111,315円/月 186,284円/月
30万円 ローン不可 ローン不可 ローン不可 64,814円/月 102,664円/月 177,738円/月
支払い利息合計 2,429,620円~ 2,078,240円~ 1,728,200円~ 1,380,320円~ 1,032,470円~ 687,300円~
※元利均等返済方式で試算しています。 「円」の単位以下の端数金額は「切り捨て」として計算しております。
※金利は、固定金利として計算しております。
※上記の住宅ローン返済額一覧は、あくまで試算であり、将来の金利動向により、実際のご返済額とは異なります。
※ボーナス支払総額が総支払額の50%を超えている場合、上記の表では「ローン不可」となります。
※住宅ローン返済額一覧の数値は、住宅ローンのお申し込みやご融資をお約束するものではございません。
物件を見たい、物件や住環境の詳しい情報やローン相談など、
お問い合わせ先
リリーフ不動産(株)

掲載情報の著作権は提供元企業等に帰属します。
Copyright:(C) 2025 Recruit Co., Ltd.
アプリで簡単 物件探し 大手不動産サイトの情報から一括検!プッシュ通知で物件を見逃さない
App Storeからダウンロード Google Playで手に入れよう QRコード