アプリで簡単 物件探し 通知 共有 アプリならではの機能を使ってみる
中古住宅

栃木県矢板市乙畑 片岡駅 中古一戸建て・中古住宅

情報提供元
SUUMO
栃木県矢板市乙畑 片岡駅 中古一戸建て・中古住宅
価格 2080万円
交通
所在地 栃木県矢板市乙畑周辺地図
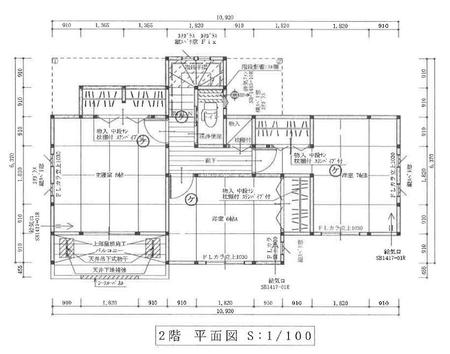
間取り 4LDK
建物面積 108.47m2(32.81坪)(登記) 土地面積 220.59m2(66.72坪)(登記)
築年月 2019年9月 築年数 築6年2ヶ月
おすすめポイント
■片岡駅・徒歩14分■つつじが丘ニュータウン内■蓄電池容量:6.5Kw■しっかり者のお眼鏡に叶う新築時フラット35S適用。閑静な住宅街の住戸、更に10坪以上の庭のある住戸では時の流れもゆったりとすすみます。
日当り良好・閑静な住宅街・駐車場3台分以上・設計住宅性能評価取得・整形地・フラット35S適合
物件を見たい、物件や住環境の詳しい情報やローン相談など、
お問い合わせ先
アルシスパートナー(株)

詳細情報

価格 2080万円
所在地 栃木県矢板市乙畑周辺地図
交通
間取り 4LDK 築年月(築年数) 2019年9月(築6年2ヶ月)
建物面積 108.47m2(32.81坪)(登記) 建物構造・規模 木造2階建
土地面積 220.59m2(66.72坪)(登記) 土地権利 所有権
私道面積 借地期間・地代
接道状況 東6m接面13.8m 駐車場
用途地域 都市計画
建ぺい率/容積率 40%/60% 現況
地目 引渡可能時期 相談
情報提供元 SUUMO [030Z77391411] 情報公開日
情報更新日 次回更新予定日 随時

設備など

1種低層地域 - 即入居可 - 売主・代理 -
駐車2台以上 平屋 - 本下水
都市ガス - カウンターキッチン - 床暖房 -
ウォークインクローゼット - バリアフリー -
設備 バルコニー・トイレ・収納スペース・洗面所・浴室乾燥機・シャンプードレッサ・温水洗浄便座・システムキッチン・風呂・庭・対面K・トイレ2ヶ所・衣類乾燥機・上水道・本下水
リフォーム履歴 -
リノベーション履歴 -
備考 <物件名>乙畑(片岡駅) 2080万円/<駐車場>カースペース/<土地権利>所有権/<間取り>4LDK/<特徴>■太陽光発電・蓄電池の設置あり■築5年・駐車スペース3台、設計住宅性能評価書・フラット35・S適合証明書・新築時・増改築時の設計図・駐車3台以上可・土地50坪以上
販売戸数:1戸
特記事項 日当り良好・閑静な住宅街・駐車場3台分以上・設計住宅性能評価取得・整形地・フラット35S適合

省エネ性能

エネルギー消費性能 -
断熱性能 -
目安光熱費 -

栃木県矢板市乙畑 周辺地図情報

地図
※地図上に表示される物件の位置は付近住所に所在することを表すものであり、実際の物件所在地とは異なる場合がございます。
   正確な物件所在地は、取扱い不動産会社にお問い合わせください。
物件を見たい、物件や住環境の詳しい情報やローン相談など、
お問い合わせ先
アルシスパートナー(株)

不動産会社情報

お問い合わせ先 商号:アルシスパートナー(株)
免許番号:栃木県知事(2)第005062号
所在地:栃木県那須塩原市前弥六228-19
TEL:0287-74-2708
取引態様:専任媒介
共有する
QRコード
物件を見たい、物件や住環境の詳しい情報やローン相談など、
お問い合わせ先
アルシスパートナー(株)

矢板市の暮らしデータ

人口などの統計情報

世帯数 11978世帯
人口総数 30577人
転入者数 897人
転入率(人口1000人当たり)
29.34人
転出者数 930人
転出率(人口1000人当たり)
30.42人
土地平均価格
住宅地
19825円/m2
商業地
30250円/m2

結婚・育児の助成金

子育て関連の独自の取り組み (1)やいたみらいっこ誕生祝金として第2子以降に3万円を支給。(2)おたふくかぜ予防接種費用助成。 (3)インフルエンザ予防接種費用の一部助成。(4)産前産後の体操教室(ママの輪教室)(産前・産後の体力づくり、妊娠中の生活、出産に向けた不安の相談、仲間づくりを行う)(5)母乳相談(経験豊富な助産師による母乳相談を実施)。(6)親子ふれあい教室(親子のふれあいと、親同士が交流できる場を設け、情報交換の機会をつくる)。
出産祝い あり
公立保育所数 1所(うち0歳児保育を実施している保育所:1所)
私立保育所数 7所(うち0歳児保育を実施している保育所:7所)
保育所入所待機児童数 0人
認定こども園数 3園 預かり保育実施園数 公立:- 私立:-
学校給食 【小学校】完全給食【中学校】完全給食
公立中学校の学校選択制 一部実施(学校統合に伴う一部自由選択制)
子ども・学生等医療費助成<通院>対象年齢 18歳3月末まで 子ども・学生等医療費助成<入院>対象年齢 18歳3月末まで

矢板市の治安・ごみ収集情報

公共料金・インフラ

ガス料金(22m3使用した場合の月額) -
水道料金(口径20mmで20m3の月額) 矢板市4895円
下水道料金(20m3を使用した場合の月額) 矢板市3300円
下水道普及率 39.4%

安心・安全

建物火災出火件数 4件
人口10000人当たり
1.28件
刑法犯認知件数 125件
人口1000人当たり
4.01件
ハザード・防災マップ あり

医療

一般病院総数 2ヶ所
一般診療所総数 18ヶ所
小児科医師数 5人
小児人口10000人当たり
17.25人
産婦人科医師数 2人
15~49歳女性人口1万人当たり
3.95人
介護保険料基準額(月額) 5500円

ごみ

家庭ごみ収集(可燃ごみ) 有料
備考
可燃ごみのみ有料。ステーション収集方式。
家庭ごみの分別方式 6分別10種〔可燃ごみ 不燃ごみ 有害ごみ 資源ビン 古紙類(新聞、ダンボール、雑誌、牛乳パック、雑紙) ペットボトル〕
家庭ごみの戸別収集 未実施
粗大ごみ収集 あり
備考
有料。戸別収集。
生ごみ処理機助成金制度 あり
上限金額
30000円
上限比率
50.0%

矢板市の住まいの給付金

中古購入

利子補給制度 なし
補助/助成金制度 あり
上限金額
(1)150万円+α万円(2)50万円
備考
(1)【矢板市「暮らし」のびのび定住促進補助金】市内に住宅を取得し、5年以上住むことを誓約した者。ただし、申請者は引き渡しを受けた時点で45歳以下であり、入居する者は2人以上であること。中古住宅と土地購入は25万円、中古住宅のみは20万円、そのほか同一世帯に18歳以下の子がいる場合は1人あたり10万円加算、取得した住宅が特定の地域にある場合は20万円加算。(2)【空家等活用支援補助事業】改修を伴う空家を取得した後、市外から転入して概ね10年以上定住することを誓約した者。ただし、空き家バンクを利用して取得した空家が対象であり、2人以上で定住すること。定住促進補助金、木造住宅耐震改修費補助金との併用不可。補助金額は改修費用の1/2。上限は用途地域内50万円、その他地域30万円。

増築・改築・改修

利子補給制度 なし
補助/助成金制度 あり
上限金額
100万円
備考
【矢板市木造住宅耐震改修費補助金】1981年5月31日以前の旧耐震基準で建築され、耐震改修が必要と診断された木造住宅の耐震改修に要する費用の一部を補助。耐震改修又は耐震建替えに要した費用の4/5の額とし、その額が125万円を超えるときは100万円を限度とする。その他、耐震診断士派遣制度あり。費用は無料。
暮らしデータ提供元:生活ガイド.com
※行政機関により公表していない地域及びデータがございます。東京23区以外の政令指定都市は、市全体のデータとして表示しています。
※提供データには細心の注意を払っておりますが、調査後に変更がある場合があります。 最新の情報につきましては各市区役所までお問い合わせいただくか、自治体HPなどをご確認ください。

この物件を見た人はこんな物件も見ています

OCN×ドコモ光新規お申込みで合計最大137,280円相当おトク!特典の内訳・適用条件など詳細はこちら

矢板市内の各駅の住みやすさ

他のエリアから探す

矢板市の詳細地域から一戸建て物件を探す

東町荒井大槻乙畑鹿島町片岡上町木幡越畑塩田玉田成田平野矢板

近辺の市区から探す

大田原市塩谷郡塩谷町

周辺の駅から探す

東北本線
岡本宝積寺氏家蒲須坂片岡矢板野崎西那須野那須塩原

住宅ローンの返済額一覧

物件価格 2080万円に対して、年率 で、頭金 の場合
↓ボーナス 35年間 30年間 25年間 20年間 15年間 10年間
0万円 41,014円/月 47,271円/月 56,037円/月 69,193円/月 91,128円/月 135,013円/月
5万円 31,929円/月 38,296円/月 47,171円/月 60,434円/月 82,477円/月 126,468円/月
10万円 22,843円/月 29,320円/月 38,304円/月 51,676円/月 73,825円/月 117,922円/月
15万円 ローン不可 ローン不可 29,437円/月 42,917円/月 65,174円/月 109,377円/月
20万円 ローン不可 ローン不可 ローン不可 ローン不可 56,522円/月 100,832円/月
25万円 ローン不可 ローン不可 ローン不可 ローン不可 47,871円/月 92,287円/月
30万円 ローン不可 ローン不可 ローン不可 ローン不可 ローン不可 83,742円/月
支払い利息合計 1,433,090円~ 1,223,920円~ 1,018,950円~ 812,560円~ 610,900円~ 407,780円~
※元利均等返済方式で試算しています。 「円」の単位以下の端数金額は「切り捨て」として計算しております。
※金利は、固定金利として計算しております。
※上記の住宅ローン返済額一覧は、あくまで試算であり、将来の金利動向により、実際のご返済額とは異なります。
※ボーナス支払総額が総支払額の50%を超えている場合、上記の表では「ローン不可」となります。
※住宅ローン返済額一覧の数値は、住宅ローンのお申し込みやご融資をお約束するものではございません。
物件を見たい、物件や住環境の詳しい情報やローン相談など、
お問い合わせ先
アルシスパートナー(株)

掲載情報の著作権は提供元企業等に帰属します。
Copyright:(C) 2025 Recruit Co., Ltd.
アプリで簡単 物件探し 大手不動産サイトの情報から一括検!プッシュ通知で物件を見逃さない
App Storeからダウンロード Google Playで手に入れよう QRコード