アプリで簡単 物件探し 通知 共有 アプリならではの機能を使ってみる
中古住宅

北海道札幌市北区あいの里三条7 あいの里公園駅 中古一戸建て・中古住宅

情報提供元
SUUMO
北海道札幌市北区あいの里三条7 あいの里公園駅 中古一戸建て・中古住宅
価格 3280万円
交通
所在地 北海道札幌市北区あいの里三条7周辺地図
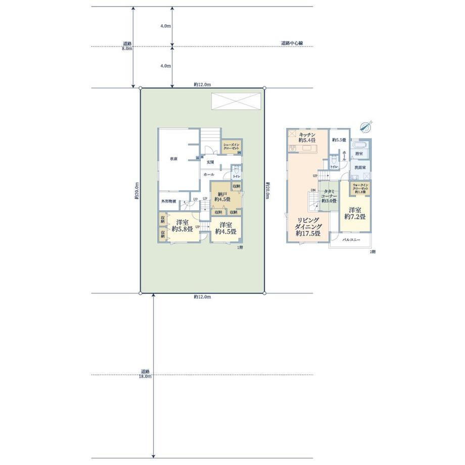
間取り 4SLDK
建物面積 162m2(49.00坪)(登記) 土地面積 240.6m2(72.78坪)(登記)
築年月 2008年5月 築年数 築17年7ヶ月
おすすめポイント
・愛車を守るインナーガレージあります。 玄関横のガレージ窓から愛車を見ることが可能でディスプ レイとしの機能も果たしております・高効率で省エネ性の高いエコキュートへ交換(R6年12月)・建材にヒバ材を使用しております。木材の密度が高く耐久 性も抜群 ・対面システムキッチン キッチン背面背にはカップボードあり・1階、2階トイレあり・裏庭スペースあり・リビングダイニングは吹き抜けスペースとなっており、明 るく開放感のある空間です・玄関には大容量のシューズクローゼットがあり、収納力が 豊富です・書斎スペース約5.5畳あり・窓付きユニットバス・洗面所タオルウォーマーあり
日当り良好・瑕疵保証(不動産会社独自)
お問い合わせ先
東急リバブル(株)円山センター
物件を見たい、物件や住環境の詳しい情報やローン相談など、
お問い合わせ先
東急リバブル(株)円山センター

詳細情報

価格 3280万円
所在地 北海道札幌市北区あいの里三条7周辺地図
交通
  • JR札沼線 あいの里公園駅 徒歩6分乗換案内
  • JR札沼線 あいの里教育大駅 徒歩19分乗換案内
間取り 4SLDK 築年月(築年数) 2008年5月(築17年7ヶ月)
建物面積 162m2(49.00坪)(登記) 建物構造・規模 木造2階建
土地面積 240.6m2(72.78坪)(登記) 土地権利 所有権
私道面積 借地期間・地代
接道状況 北西8m 南東16m 駐車場
用途地域 1種低層 都市計画
建ぺい率/容積率 40%/80% 現況
地目 引渡可能時期 相談
情報提供元 SUUMO [010Z78777768] 情報公開日
情報更新日 次回更新予定日 随時

設備など

1種低層地域 即入居可 - 売主・代理 -
駐車2台以上 - 平屋 - 本下水
都市ガス カウンターキッチン - 床暖房 -
ウォークインクローゼット バリアフリー -
設備 トイレ・収納スペース・洗面所・都市ガス・ウォークインクローゼット・シャンプードレッサ・温水洗浄便座・システムキッチン・モニタ付インターホン・対面K・車庫・トイレ2ヶ所・上水道・本下水・省エネ給湯器・シューズインクローク
リフォーム履歴 -
リノベーション履歴 -
備考 <物件名>あいの里三条7(あいの里公園駅) 3280万円/<土地権利>所有権/<間取り>4LDK+S(納戸)/<用途地域>無指定あり/<特徴>東日本ハウス旧施工住宅雨、風から愛車を守るインナーガレージあり、瑕疵保証付(不動産会社独自)・LDK20畳以上・土地50坪以上・省エネ給湯器・システムキッチン
販売戸数:1戸
特記事項 日当り良好・瑕疵保証(不動産会社独自)

省エネ性能

エネルギー消費性能 -
断熱性能 -
目安光熱費 -

北海道札幌市北区あいの里三条7 周辺地図情報

地図
※地図上に表示される物件の位置は付近住所に所在することを表すものであり、実際の物件所在地とは異なる場合がございます。
   正確な物件所在地は、取扱い不動産会社にお問い合わせください。
物件を見たい、物件や住環境の詳しい情報やローン相談など、
お問い合わせ先
東急リバブル(株)円山センター

不動産会社情報

お問い合わせ先 商号:東急リバブル(株)円山センター
免許番号:国土交通大臣(12)第002611号
所在地:北海道札幌市中央区南一条西25-1-17 マルヤマエスワンビル1階
TEL:0120-109606
取引態様:専属専任媒介
管理コード:C0125X158
共有する
QRコード
物件を見たい、物件や住環境の詳しい情報やローン相談など、
お問い合わせ先
東急リバブル(株)円山センター

札幌市北区の暮らしデータ

人口などの統計情報

世帯数 967372世帯
人口総数 1956928人
転入者数 121035人
転入率(人口1000人当たり)
61.85人
転出者数 109861人
転出率(人口1000人当たり)
56.14人
土地平均価格
住宅地
107466円/m2
商業地
594868円/m2

結婚・育児の助成金

子育て関連の独自の取り組み (1)交通事故・労働災害およびその他不慮の災害により、父、または母等を失った(重度障がいとなった場合を含む)義務教育終了前の遺児を扶養する方に遺児1人につき月額4,000円を支給するとともに、手当の対象となる遺児が小・中学校および高等学校等に入学する際または中学校卒業後、就職する際に遺児1人につき2万円を支給。(2)認可保育所等における第2子以降の保育料について、世帯年収や兄弟姉妹の年齢差に関わらず無償化。
出産祝い なし
公立保育所数 20所(うち0歳児保育を実施している保育所:14所)
私立保育所数 182所(うち0歳児保育を実施している保育所:182所)
保育所入所待機児童数 0人
認定こども園数 238園 預かり保育実施園数 公立:9園 私立:49園
学校給食 【小学校】完全給食【中学校】完全給食
公立中学校の学校選択制 一部実施(小規模特認校)
子ども・学生等医療費助成<通院>対象年齢 中学校卒業まで 子ども・学生等医療費助成<入院>対象年齢 中学校卒業まで

札幌市北区の治安・ごみ収集情報

公共料金・インフラ

ガス料金(22m3使用した場合の月額) 北海道瓦斯株式会社5118円
水道料金(口径20mmで20m3の月額) 札幌市3652円
下水道料金(20m3を使用した場合の月額) 札幌市1397円
下水道普及率 99.9%

安心・安全

建物火災出火件数 286件
人口10000人当たり
1.45件
刑法犯認知件数 11263件
人口1000人当たり
5.71件
ハザード・防災マップ あり

医療

一般病院総数 172ヶ所
一般診療所総数 1433ヶ所
小児科医師数 371人
小児人口10000人当たり
17.99人
産婦人科医師数 203人
15~49歳女性人口1万人当たり
5.12人
介護保険料基準額(月額) 5773円

ごみ

家庭ごみ収集(可燃ごみ) 有料
備考
燃やせるごみ・燃やせないごみは有料収集。
家庭ごみの分別方式 9分別〔燃やせるごみ 燃やせないごみ スプレー缶・カセットボンベ 筒型乾電池 加熱式たばこ・電子たばこ・ライター 容器包装プラスチック びん・缶・ペットボトル 枝・葉・草 雑がみ〕 拠点回収:新聞 雑誌 ダンボール 紙パック 雑がみ びん・缶・ペットボトル 一升びん・ビールびん 容器包装プラスチック 古着 古布 毛布 小物金属類 小型家電 蛍光管 水銀体温計・水銀血圧計・水銀温度計 筒型乾電池 小型充電式電池 廃食油 生ごみ堆肥 枝・葉・草 使用済みインクカートリッジ スプレー缶・カセットボンベ ライター
家庭ごみの戸別収集 一部実施(【さわやか収集】一定の要件に該当する要介護者や障がい者に対し、玄関先からのごみの収集や大型ごみの家屋内からの運び出しの支援を実施)
粗大ごみ収集 あり
備考
有料。戸別収集。事前申込制(大型ごみ収集センター)。
生ごみ処理機助成金制度 あり
上限金額
10000円
上限比率
50.0%

札幌市北区の住まいの給付金

中古購入

利子補給制度 なし
補助/助成金制度 なし

増築・改築・改修

利子補給制度 なし
補助/助成金制度 あり
上限金額
(1)50万円(2)120万円
備考
(1)【住宅エコリフォーム補助制度】市内事業者が施工する一定の省エネ改修やバリアフリー改修を対象。総工事費(税抜)の10%(1,000円未満切捨)又は一申請者あたり50万円のいずれか少ない額を限度とし、補助対象工事毎に市が定める補助金額の合計を補助。(2)【木造住宅耐震化補助制度】1981年5月31日以前に在来軸組工法で建てられ、耐震診断の結果、耐震性が低いと診断された木造住宅について、耐震改修工事(設計を含む)に要する費用の8/10又は1棟につき120万円のいずれか少ない額を限度として補助。
暮らしデータ提供元:生活ガイド.com
※行政機関により公表していない地域及びデータがございます。東京23区以外の政令指定都市は、市全体のデータとして表示しています。
※提供データには細心の注意を払っておりますが、調査後に変更がある場合があります。 最新の情報につきましては各市区役所までお問い合わせいただくか、自治体HPなどをご確認ください。
OCN×ドコモ光新規お申込みで合計最大137,280円相当おトク!特典の内訳・適用条件など詳細はこちら

札幌市北区内の各駅の住みやすさ

他のエリアから探す

札幌市北区の詳細地域から一戸建て物件を探す

あいの里一条あいの里二条あいの里三条あいの里四条麻生町北二十四条西北二十五条西北二十六条西北二十七条西北二十八条西北三十条西北三十三条西北三十五条西篠路十条篠路二条篠路四条篠路五条篠路六条篠路七条篠路八条篠路九条篠路町上篠路篠路町篠路新川二条新川三条新川四条新川五条新川六条新川七条新川西一条新川西二条新川西三条新川西四条新川西五条新琴似十条新琴似十一条新琴似十二条新琴似一条新琴似二条新琴似四条新琴似五条新琴似六条新琴似七条新琴似八条新琴似九条太平十条太平十一条太平十二条太平二条太平三条太平四条太平五条太平七条太平九条拓北一条拓北二条拓北三条拓北五条拓北六条拓北七条拓北八条屯田十条屯田十一条屯田二条屯田三条屯田四条屯田五条屯田六条屯田七条屯田八条屯田九条西茨戸西茨戸一条西茨戸二条西茨戸三条西茨戸四条西茨戸七条東茨戸一条東茨戸二条東茨戸三条東茨戸四条南あいの里百合が原

近辺の市区から探す

札幌市中央区札幌市東区札幌市白石区札幌市豊平区札幌市南区札幌市西区札幌市厚別区札幌市手稲区石狩市

周辺の駅から探す

札沼線
百合が原篠路拓北あいの里教育大あいの里公園ロイズタウン太美当別北海道医療大学

住宅ローンの返済額一覧

物件価格 3280万円に対して、年率 で、頭金 の場合
↓ボーナス 35年間 30年間 25年間 20年間 15年間 10年間
0万円 72,164円/月 83,174円/月 98,598円/月 121,745円/月 160,340円/月 237,554円/月
5万円 63,079円/月 74,198円/月 89,731円/月 112,986円/月 151,689円/月 229,009円/月
10万円 53,993円/月 65,223円/月 80,864円/月 104,228円/月 143,037円/月 220,464円/月
15万円 44,908円/月 56,247円/月 71,997円/月 95,469円/月 134,386円/月 211,919円/月
20万円 ローン不可 47,271円/月 63,131円/月 86,710円/月 125,734円/月 203,374円/月
25万円 ローン不可 ローン不可 54,264円/月 77,952円/月 117,083円/月 194,829円/月
30万円 ローン不可 ローン不可 ローン不可 69,193円/月 108,431円/月 186,284円/月
支払い利息合計 2,519,940円~ 2,155,000円~ 1,792,300円~ 1,431,280円~ 1,070,530円~ 712,820円~
※元利均等返済方式で試算しています。 「円」の単位以下の端数金額は「切り捨て」として計算しております。
※金利は、固定金利として計算しております。
※上記の住宅ローン返済額一覧は、あくまで試算であり、将来の金利動向により、実際のご返済額とは異なります。
※ボーナス支払総額が総支払額の50%を超えている場合、上記の表では「ローン不可」となります。
※住宅ローン返済額一覧の数値は、住宅ローンのお申し込みやご融資をお約束するものではございません。
物件を見たい、物件や住環境の詳しい情報やローン相談など、
お問い合わせ先
東急リバブル(株)円山センター

掲載情報の著作権は提供元企業等に帰属します。
Copyright:(C) 2025 Recruit Co., Ltd.
アプリで簡単 物件探し 大手不動産サイトの情報から一括検!プッシュ通知で物件を見逃さない
App Storeからダウンロード Google Playで手に入れよう QRコード