アプリで簡単 物件探し 通知 共有 アプリならではの機能を使ってみる
RSS

千里中央駅(大阪府)の中古マンション 物件一覧

千里中央駅(大阪府)の中古売マンション、中古分譲マンションなどの中古マンション物件をご紹介します。中古マンション物件情報を探すならgoo住宅・不動産。価格・広さ・間取り・写真・人気のこだわり条件から物件を簡単検索。理想の物件探しをgoo住宅・不動産がサポートします。

探したい物件の路線・検索条件を変更して再検索

路線
検索条件
396 並び替え
チェックした物件を一括で

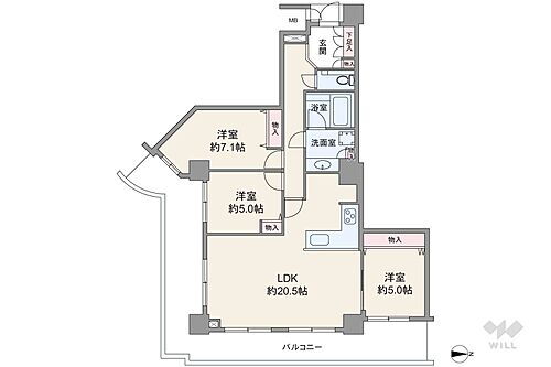
新千里桜ヶ丘メゾンシティ七番館

新千里桜ヶ丘メゾンシティ七番館
大阪府豊中市新千里東町2丁目
北大阪急行南北線 千里中央駅 徒歩10分
大阪モノレール本線 千里中央駅 徒歩13分
築20年10ヶ月
9階建
間取り図
価格
6,680万円
間取り
3LDK
広さ
71.36m2
階数
3階
方位
南東
  • オートロック
  • モニタ付インターホン
  • 浴室乾燥機
  • 即入居可
  • 床暖房
  • 所有権
  • リフォームリノベーション
  • ペット相談可
おすすめポイント
【お得な購入特典あり!下記「備考欄」を必ずご確認ください♪】2026年2月リフォーム完了/ペット相談可(制限有り)/食洗機・浴室暖房乾燥機・床暖房付き/3階部分/「千里中央」駅より徒歩10分♪
間取り図
価格
7,280万円
間取り
3LDK
広さ
80.36m2
階数
7階
方位
南東
  • 駐車場あり
  • モニタ付インターホン
  • 浴室乾燥機
  • 所有権
  • リフォームリノベーション
  • ペット相談可
  • システムキッチン
  • エレベーター
おすすめポイント
ペット飼育可(規約有)!希少なワイドスパン住戸!南東向き・通風・採光良好!令和8年4月 室内リフォーム工事完了!・水廻り設備一新!食洗器、浴室乾燥機、シャワートイレ付!・全室壁紙、フロアタイル、CF交換!・畳表替え・障子新調、エコカラット!・ハウスクリーニング等!家具・照明器具付き!

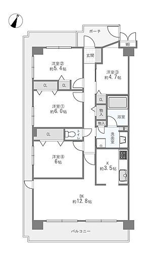
セントラルパレス東豊中

セントラルパレス東豊中
大阪府豊中市東豊中町2
大阪モノレール本線 少路駅 徒歩10分
大阪モノレール本線 千里中央駅 徒歩17分
北大阪急行 千里中央駅 徒歩17分
築26年4ヶ月
4階建
間取り図
価格
3,580万円
間取り
3LDK
広さ
77.04m2
階数
1階
方位
  • 駐車場あり
  • 専用庭
  • 角部屋
  • オートロック
  • モニタ付インターホン
  • 浴室乾燥機
  • 所有権
  • リフォームリノベーション
おすすめポイント
2025年4月リフォーム済物件!角住戸!全居室専用庭に面しています!
間取り図
価格
4,580万円
間取り
4LDK
広さ
102.7m2
階数
3階
方位
  • 南向き
  • 駐車場あり
  • 角部屋
  • モニタ付インターホン
  • 浴室乾燥機
  • 所有権
  • リフォームリノベーション
  • システムキッチン
おすすめポイント
◆南北東3面バルコニー、4部屋すべて約6帖以上の洋室で収納と窓あり、うち1部屋にはWICがあります!◆床暖房・エアコン・食洗器・追い焚き・浴室乾燥機などの設備つき♪◆オートロック・宅配ボックスもあります◎◆大阪モノレール線『少路』駅徒歩約10分、北大阪急行線『千里中央』駅徒歩約18分と2沿線利用可能◎◆大阪中央環状線がすぐで便利です♪~2022年9月リフォーム内容~・キッチン、浴室、洗面台、トイレ、建具新調・フローリング、全室クロス張替~周辺環境~・業務スーパー少路店 徒歩10分・ローソン東豊中町二丁目店 徒歩2分・東豊台小学校 徒歩8分・第十一中学校 徒歩10分
間取り図
価格
4,580万円
間取り
4LDK
広さ
102.7m2
階数
2階
方位
  • 南向き
  • 角部屋
  • モニタ付インターホン
  • 浴室乾燥機
  • 所有権
  • システムキッチン
  • エレベーター
  • 2階以上
おすすめポイント
~緑豊かで閑静な住宅街にある低層マンション~■大阪モノレール線「少路」駅より徒歩10分■外壁タイル張り■4階建て低層マンション■総戸数22戸■平面分譲駐車場権利付き■オートロック・宅配ボックス付き■南向き角部屋で陽当り通風良好■全居室6帖以上あり2022年9月リフォーム履歴あり●システムキッチン●ユニットバス●洗面化粧台●トイレ●建具●フローリング●クロス 等~LIFE information~・東豊台小学校(徒歩8分)・豊中市立第十一中学校(徒歩10分)・阪急オアシス 豊中少路店(徒歩15分)・ローソン 東豊中町二丁目店(徒歩5分)

千里中央パーク・ヒルズB棟

千里中央パーク・ヒルズB棟
大阪府豊中市上新田1
大阪モノレール本線 千里中央駅 徒歩12分
北大阪急行 千里中央駅 徒歩13分
北大阪急行 桃山台駅 徒歩17分
築43年4ヶ月
12階建
間取り図
価格
3,480万円
間取り
3LDK
広さ
80.19m2
階数
3階
方位
南西
  • 防犯カメラ
  • モニタ付インターホン
  • 浴室乾燥機
  • 所有権
  • リフォームリノベーション
  • システムキッチン
  • カウンターキッチン
  • エレベーター
おすすめポイント
■リフォーム済み■南西向き■日当たり良好■通風良好
間取り図
価格
3,590万円
間取り
2SLDK
広さ
80.19m2
階数
4階
方位
南西
  • 駐車場あり
  • 所有権
  • リフォームリノベーション
  • ペット相談可
  • システムキッチン
  • エレベーター
  • 2階以上
  • 24時間ゴミ出し可
おすすめポイント
■全面リフォーム済(2026年3月完成済)・キッチン新規交換・ユニットバス新規交換・トイレ新規交換・洗面化粧台新規交換・給湯器新規交換・全室フローリング張・クッションフロア張替え・全室天井、壁、クロス張替え・ドア新規交換(LDK、全洋室、トイレ、洗面室)・収納扉、収納棚全洋室新規交換・玄関収納新規交換■北大阪急行南北線「千里中央駅」徒歩15分!■カウンターキッチン!■バルコニーは南西向きです!■LDK約18帖!■全室フローリング!■マンション内のゴミドラムに24時間ゴミ出し可能!■敷地内に公園有り!

千里緑丘住宅第14号棟

千里緑丘住宅第14号棟
大阪府豊中市北緑丘3
北大阪急行 箕面船場阪大前駅 徒歩17分
北大阪急行 千里中央駅 徒歩20分
大阪モノレール本線 千里中央駅 徒歩25分
築40年4ヶ月
5階建
間取り図
価格
3,290万円
間取り
4LDK
広さ
97.2m2
階数
3階
方位
南東
  • 駐車場あり
  • 角部屋
  • モニタ付インターホン
  • 浴室乾燥機
  • 即入居可
  • 所有権
  • システムキッチン
  • カウンターキッチン
おすすめポイント
≪リノベ物件×南東角住戸・陽当たり◎×4LDK≫ 明るさと開放感が魅力の住まい

千里第2泉ヶ丘スカイハイツ

千里第2泉ヶ丘スカイハイツ
大阪府豊中市熊野町3
北大阪急行 桃山台駅 徒歩17分
大阪モノレール本線 少路駅 徒歩31分
大阪モノレール本線 千里中央駅 徒歩32分
築49年3ヶ月
7階建
間取り図
価格
2,190万円
間取り
2LDK
広さ
61.6m2
階数
4階
方位
北西
  • 即入居可
  • 所有権
  • システムキッチン
  • エレベーター
  • 2階以上
  • 間取り図有り
おすすめポイント
≪リノベ済×眺望良好×徒歩圏に生活施設≫暮らしやすさと快適さが整う住まい

プレステージ新千里西町 3号棟

プレステージ新千里西町 3号棟
大阪府豊中市新千里西町2
北大阪急行 千里中央駅 徒歩8分
大阪モノレール本線 千里中央駅 徒歩12分
北大阪急行 箕面船場阪大前駅 徒歩18分
築41年1ヶ月
5階建
間取り図
価格
4,780万円
間取り
3LDK
広さ
82.46m2
階数
3階
方位
南東
  • 駐車場あり
  • モニタ付インターホン
  • 浴室乾燥機
  • 所有権
  • システムキッチン
  • カウンターキッチン
  • エレベーター
  • 2階以上
おすすめポイント
【2025年11月リノベーション済み】全室6帖以上、広々ワイドバルコニー付きのお住まい!!

コンドミニアム千里中央

コンドミニアム千里中央
大阪府箕面市船場西2
北大阪急行 箕面船場阪大前駅 徒歩9分
大阪モノレール本線 千里中央駅 徒歩29分
阪急箕面線 牧落駅 徒歩38分
築46年6ヶ月
11階建
間取り図
価格
3,590万円
間取り
3LDK
広さ
73.29m2
階数
2階
方位
南西
  • 駐車場あり
  • モニタ付インターホン
  • 浴室乾燥機
  • 即入居可
  • 所有権
  • リフォームリノベーション
  • システムキッチン
  • エレベーター
おすすめポイント
【2026年4月リフォーム完成】南西向きで日当り良好な3LDK!
間取り図
価格
3,590万円
間取り
3LDK
広さ
73.29m2
階数
8階
方位
  • 南向き
  • 駐車場あり
  • モニタ付インターホン
  • 浴室乾燥機
  • 即入居可
  • 所有権
  • リフォームリノベーション
  • システムキッチン
おすすめポイント
・北大阪急行電鉄「箕面船場阪大前」駅徒歩8分 ・南向きで陽当り良好 ・収納豊富!WIC完備

ステイツ千里中央

ステイツ千里中央
大阪府豊中市上新田1
大阪モノレール本線 千里中央駅 徒歩10分
北大阪急行 千里中央駅 徒歩14分
北大阪急行 桃山台駅 徒歩14分
築32年6ヶ月
8階建
間取り図
価格
4,380万円
間取り
3LDK
広さ
70.19m2
階数
3階
方位
  • 角部屋
  • オートロック
  • 浴室乾燥機
  • 即入居可
  • 所有権
  • リフォームリノベーション
  • ペット相談可
  • システムキッチン
おすすめポイント
【三方角部屋・上階住戸なし】2026年1月に室内リフォーム済みの即入居可能物件!
間取り図
価格
4,380万円
間取り
3LDK
広さ
75.27m2
階数
5階
方位
  • 南向き
  • 駐車場あり
  • モニタ付インターホン
  • 浴室乾燥機
  • 所有権
  • リフォームリノベーション
  • ペット相談可
  • システムキッチン
おすすめポイント
■見学のご希望や、物件についてのご質問は【0120-934-053】までお気軽にお電話くださいませ(当日も見学可)■当社は、スター・マイカ・ホールディングス(東証プライム上場)のグループ会社です。○令和8年2月16日 リフォーム済み『アフターサービス保証付』 * 特典 *給排水設備・水廻りなどのアフターサービス期間を“2年→最長10年”に延長いたします。詳細はお問い合わせください。※本特典は、予告なく変更または終了する場合がございます。・クロス・CF・フローリング張替・建具交換・キッチン交換・ユニットバス交換・トイレ交換・洗面台交換・給湯器交換・照明取付など

千里緑丘住宅14号棟

千里緑丘住宅14号棟
大阪府豊中市北緑丘3
北大阪急行 箕面船場阪大前駅 徒歩19分
大阪モノレール本線 少路駅 徒歩25分
大阪モノレール本線 千里中央駅 徒歩24分
築40年4ヶ月
5階建
間取り図
価格
3,290万円
間取り
4LDK
広さ
97.2m2
階数
3階
方位
南東
  • 駐車場あり
  • 角部屋
  • 所有権
  • リフォームリノベーション
  • システムキッチン
  • カウンターキッチン
  • 2階以上
  • 食器洗浄乾燥機
おすすめポイント
◇南東向き×角部屋×専用駐車場権利付き ◇97平米超の4LDKリフォーム物件 ◇緑豊かな住宅街。スーパーが近くお買物便利 ◇スッキリ片付く豊富な収納スペース ◇三面バルコニー&全居室に窓有り

OTC第1ハイツ

OTC第1ハイツ
大阪府箕面市船場西2
北大阪急行 箕面船場阪大前駅 徒歩4分
大阪モノレール本線 千里中央駅 徒歩22分
北大阪急行 箕面萱野駅 徒歩18分
築48年7ヶ月
7階建
間取り図
価格
3,690万円
間取り
4LDK
広さ
85.3m2
階数
7階
方位
  • 南向き
  • 駐車場あり
  • 最上階
  • 角部屋
  • オートロック
  • モニタ付インターホン
  • 浴室乾燥機
  • 即入居可
おすすめポイント
・北大阪急行線「箕面船場阪大前」駅徒歩4分 ・最上階・角部屋で陽当たり眺望良好

千里中央パークヒルズB棟

千里中央パークヒルズB棟
大阪府豊中市上新田1
大阪モノレール本線 千里中央駅 徒歩12分
北大阪急行 千里中央駅 徒歩13分
阪急千里線 南千里駅 徒歩28分
築43年4ヶ月
12階建
間取り図
価格
3,650万円
間取り
3LDK
広さ
80.19m2
階数
3階
方位
南西
  • 所有権
  • ペット相談可
  • エレベーター
  • 2階以上
  • 食器洗浄乾燥機
  • 間取り図有り
おすすめポイント
◇◆やっぱり北摂で住みたい♪♪そんな暮らしが叶っちゃうかも♪♪◇

イトーピア豊中緑丘ロジュマン

イトーピア豊中緑丘ロジュマン
大阪府豊中市緑丘4
大阪モノレール本線 少路駅 徒歩16分
北大阪急行 千里中央駅 徒歩32分
阪急箕面線 牧落駅 徒歩32分
築18年5ヶ月
12階建
間取り図
価格
5,280万円
間取り
3LDK
広さ
80.89m2
階数
4階
方位
  • 駐車場あり
  • オートロック
  • 防犯カメラ
  • モニタ付インターホン
  • 浴室乾燥機
  • 即入居可
  • 床暖房
  • 所有権
おすすめポイント
★2026年6月上旬改装工事完了予定★食洗機、浴室乾燥機、床暖房付★ペット2匹まで飼育可★

北千里セントポリア

北千里セントポリア
大阪府吹田市古江台5
阪急千里線 北千里駅 徒歩17分
北大阪急行 千里中央駅 徒歩26分
大阪モノレール本線 千里中央駅 徒歩27分
築44年4ヶ月
4階建
間取り図
価格
3,480万円
間取り
3LDK
広さ
116.7m2
階数
3階
方位
  • 南向き
  • 駐車場あり
  • 角部屋
  • 防犯カメラ
  • モニタ付インターホン
  • 浴室乾燥機
  • 即入居可
  • 所有権
おすすめポイント
~只今家電プレゼント・詳細は弊社HPへ~ ■リフォーム済 ■角部屋 開放的&陽当り通風良好 ■風通しの良い3面バルコニー ■116.70平米の3LDK 3階部分

千里緑丘第17号棟

千里緑丘第17号棟
大阪府豊中市北緑丘3丁目
北大阪急行南北線 箕面船場阪大前駅 徒歩22分
北大阪急行南北線 千里中央駅 徒歩34分
築40年10ヶ月
地上5階地下1階建
間取り図
価格
2,890万円
間取り
3LDK
広さ
78.24m2
階数
3階
方位
  • 南向き
  • 駐車場あり
  • モニタ付インターホン
  • 浴室乾燥機
  • 即入居可
  • 所有権
  • リフォームリノベーション
  • システムキッチン
おすすめポイント
---イチ押しポイント---■2026年2月リノベーション完成!■無償の専用駐車権利付き!■ホームステイジング中ですので、お部屋に合った家具選びや入居後の生活もイメージしていただけます♪…

パレス桃山台

パレス桃山台
大阪府豊中市上新田4
北大阪急行 桃山台駅 徒歩13分
大阪モノレール本線 千里中央駅 徒歩17分
阪急千里線 南千里駅 徒歩19分
築29年10ヶ月
地上10階地下1階建
間取り図
価格
3,999万円
間取り
3LDK
広さ
67.86m2
階数
10階
方位
  • 駐車場あり
  • 最上階
  • 角部屋
  • オートロック
  • 防犯カメラ
  • モニタ付インターホン
  • 浴室乾燥機
  • 即入居可
おすすめポイント
★5月末リフォーム完成予定★最上階★南東角部屋★食器洗乾燥機、浴室乾燥機付★

プレステージ新千里西町3号棟

プレステージ新千里西町3号棟
大阪府豊中市新千里西町2
北大阪急行 千里中央駅 徒歩8分
大阪モノレール本線 千里中央駅 徒歩14分
阪急千里線 北千里駅 徒歩30分
築41年
5階建
間取り図
価格
4,780万円
間取り
3LDK
広さ
82.46m2
階数
3階
方位
  • 南向き
  • 駐車場あり
  • モニタ付インターホン
  • 浴室乾燥機
  • 即入居可
  • 所有権
  • ペット相談可
  • システムキッチン
おすすめポイント
【お得な購入特典あり!下記「備考欄」を必ずご確認ください♪】令和7年11月リフォーム完了/水廻り設備一新/3階部分/広々インナーバルコニー/ペット飼育可/地下平面駐車場権利付き/※エレベーター非停止階

レーベン千里青山台GRAN HIGH

レーベン千里青山台GRAN HIGH
大阪府吹田市青山台2
阪急千里線 北千里駅 徒歩10分
北大阪急行 千里中央駅 徒歩20分
北大阪急行 箕面船場阪大前駅 徒歩27分
築4年5ヶ月
地上8階地下1階建
間取り図
価格
6,980万円
間取り
3SLDK
広さ
90.41m2
階数
7階
方位
  • 南向き
  • 駐車場あり
  • 防犯カメラ
  • モニタ付インターホン
  • 浴室乾燥機
  • 所有権
  • ペット相談可
  • システムキッチン
おすすめポイント
■2022年築■ペット飼育2匹可■駐車場空有■角部屋■床暖房あり

千里緑丘住宅壱七号棟

千里緑丘住宅壱七号棟
大阪府豊中市北緑丘3
北大阪急行 箕面船場阪大前駅 徒歩18分
大阪モノレール本線 千里中央駅 徒歩24分
北大阪急行 千里中央駅 徒歩21分
築40年10ヶ月
地上5階地下1階建
間取り図
価格
2,890万円
間取り
3LDK
広さ
78.24m2
階数
3階
方位
南東
  • 駐車場あり
  • モニタ付インターホン
  • 浴室乾燥機
  • 即入居可
  • 所有権
  • リフォームリノベーション
  • システムキッチン
  • カウンターキッチン
おすすめポイント
・駐車場権利付 ・両面バルコニーで陽当り良好 ・収納豊富!WIC完備

桃山台レックスマンション

桃山台レックスマンション
大阪府豊中市新千里南町2
北大阪急行 桃山台駅 徒歩10分
大阪モノレール本線 千里中央駅 徒歩19分
北大阪急行 千里中央駅 徒歩20分
築53年8ヶ月
9階建
間取り図
価格
1,650万円
間取り
2LDK
広さ
60m2
階数
2階
方位
南西
  • 駐車場あり
  • 角部屋
  • モニタ付インターホン
  • 浴室乾燥機
  • 即入居可
  • 所有権
  • リフォームリノベーション
  • システムキッチン
おすすめポイント
・角部屋につき陽当り・通風良好 ・北大阪急行「桃山台」駅徒歩10分 ・全居室6帖以上・収納付き ・南丘小学校/第九中学校
間取り図
価格
2,790万円
間取り
2SLDK
広さ
78.4m2
階数
6階
方位
  • 南向き
  • 駐車場あり
  • 角部屋
  • 所有権
  • 2階以上
  • 間取り図有り
おすすめポイント
平成25年浴室交換済平成27年北側納戸及び廊下改装物置(トランクルーム)2箇所あります。(専有部分に該当)2LDK+納戸の専有面積約78㎡の間取りになりますバルコニー南向きにつき日当たり・通風良好です北大阪急行「桃山台」駅徒歩10分です
間取り図
価格
2,180万円
間取り
1SLDK
広さ
64.85m2
階数
2階
方位
北西
  • 駐車場あり
  • 角部屋
  • モニタ付インターホン
  • 所有権
  • システムキッチン
  • エレベーター
  • 2階以上
  • 間取り図有り
おすすめポイント
LDKは約17.5帖で広々とした空間です♪収納豊富な間取り♪納戸は収納の他に書斎などにも使えます♪駐輪場:1台300円/月~ Life Information ~Maxvalu千里南町プラザ店:徒歩7分(539m)セブンイレブン豊中新千里南町2丁目店:徒歩6分(443m)エディオン千里桃山台店:徒歩8分(591m)豊中市立南丘小学校:徒歩6分(470m)豊中市立第九中学校:徒歩12分(911m)

千里ロイヤルマンション

千里ロイヤルマンション
大阪府豊中市上新田2
大阪モノレール本線 千里中央駅 徒歩8分
北大阪急行 千里中央駅 徒歩10分
阪急千里線 山田駅 徒歩20分
築48年
地上13階地下1階建
間取り図
価格
2,180万円
間取り
2LDK
広さ
72.45m2
階数
12階
方位
  • 南向き
  • 駐車場あり
  • 即入居可
  • 所有権
  • システムキッチン
  • エレベーター
  • 2階以上
  • 食器洗浄乾燥機
おすすめポイント
・南向きバルコニーで陽当たり良好 ・北大阪急行線「千里中央駅」徒歩10分 ・新田小学校6分/第九中学校15分
間取り図
価格
2,180万円
間取り
3LDK
広さ
66.78m2
階数
12階
方位
  • 南向き
  • モニタ付インターホン
  • 所有権
  • リフォームリノベーション
  • システムキッチン
  • エレベーター
  • 2階以上
  • 食器洗浄乾燥機
おすすめポイント
~マンション概要~◆大阪モノレール本線「千里中央」駅 徒歩8分◆北大阪急行電鉄南北線「千里中央」駅 徒歩8分◆淀川の花火大会鑑賞可能~専有部分~●専有面積:66.78㎡●3LDKタイプ●13階建て12階部分につき、眺望・通風・陽当たり良好~リフォーム履歴~◆令和4年リフォーム内容・水まわり交換(浴室、システムキッチン、トイレ、洗面台)・床、クロス全面張替・インターホン新品交換・畳表張替・和室2室のうち1室を洋室に変更◆令和7年8月下旬リフォーム完成・畳張替・キッチン天板交換(人工大理石)・障子一部張替
間取り図
価格
2,280万円
間取り
3LDK
広さ
72.45m2
階数
11階
方位
  • 南向き
  • 駐車場あり
  • 浴室乾燥機
  • 所有権
  • リフォームリノベーション
  • システムキッチン
  • エレベーター
  • 2階以上
おすすめポイント
○大阪市内アクセス便利な御堂筋線に連絡する北大阪急行と、大阪モノレールの2路線が利用可能○11階部分、バルコニーからは「なにわ淀川花火大会」の花火も鑑賞できる眺望も魅力的♪○小学校徒歩4分!お子様の通学も安心の立地○ショッピング施設「せんちゅうぱる」「SENRITO よみうり」が駅前に!スーパー、ドラッグストア、飲食店、アパレル、クリニックetc...普段のお買い物にも便利!休日のショッピングも楽しめます【リフォーム履歴(2022年3月)】・キッチン、ユニットバス、洗面台、トイレ交換・全室クロス張替 等!~室内も丁寧に使用されています~
間取り図
価格
2,880万円
間取り
3LDK
広さ
66.78m2
階数
4階
方位
  • 南向き
  • モニタ付インターホン
  • 浴室乾燥機
  • 即入居可
  • 所有権
  • リフォームリノベーション
  • ペット相談可
  • システムキッチン
おすすめポイント
□■即日内覧可能■□現地お待ち合わせ、最寄り駅待ち合わせ等、柔軟に対応致します!●新田小学校まで徒歩約4分●タッチレス水栓、食洗器付のシステムキッチン●お洒落なカフェ風内装のお部屋●ペット飼育可能(制限あり)▽▼リフォーム内容▼▽令和8年2月リノベーション済み水廻り新調、建具新調、クロス全面貼替、フローリング全面張替室内窓・折り下げ天井・見せ梁・室内タイル等、最新トレンドが満載----住宅ローン支払例----借入額2880万円 期間35年 参考金利0.75% 月々返済額77986円・現在のお家賃と比較してください・金利についは融資実行時適用金利となります

千里緑丘住宅17号棟

千里緑丘住宅17号棟
大阪府豊中市北緑丘3丁目
北大阪急行南北線 箕面船場阪大前駅 徒歩18分
北大阪急行南北線 千里中央駅 徒歩21分
築40年10ヶ月
地上5階地下1階建
間取り図
価格
2,890万円
間取り
3LDK
広さ
78.24m2
階数
3階
方位
  • 南向き
  • 駐車場あり
  • モニタ付インターホン
  • 浴室乾燥機
  • 即入居可
  • 所有権
  • リフォームリノベーション
  • システムキッチン
おすすめポイント
【お得な購入特典あり!下記「備考欄」を必ずご確認ください♪】2026年2月中旬リノベーション工事完了/専用駐車場権利付き(無償)/南東向き住戸/3階部分/全棟総戸数456戸のビックコミュニティ!

レジオン豊中・千里中央

レジオン豊中・千里中央
大阪府豊中市上新田2丁目
大阪モノレール本線 千里中央駅 徒歩12分
北大阪急行南北線 千里中央駅 徒歩13分
築28年11ヶ月
地上8階地下1階建
間取り図
価格
3,980万円
間取り
2LDK
広さ
64.03m2
階数
8階
方位
南東
  • 駐車場あり
  • 最上階
  • オートロック
  • モニタ付インターホン
  • 即入居可
  • 所有権
  • ペット相談可
  • エレベーター
おすすめポイント
最上階につき眺望良好!南東向きの明るいお部屋!心地良い風を感じる趣のある暮らしが実現できるお部屋!

豊中スカイハイツ

豊中スカイハイツ
大阪府豊中市東豊中町2
大阪モノレール本線 少路駅 徒歩6分
大阪モノレール本線 千里中央駅 徒歩23分
北大阪急行 千里中央駅 徒歩23分
築54年4ヶ月
地上10階地下1階建
間取り図
価格
1,680万円
間取り
2LDK
広さ
60.16m2
階数
3階
方位
西
  • 駐車場あり
  • 防犯カメラ
  • モニタ付インターホン
  • 即入居可
  • 所有権
  • システムキッチン
  • エレベーター
  • 2階以上
おすすめポイント
室内リフォーム済みできれいな状態です♪2沿線利用可能で交通利便性も良好です!
間取り図
価格
1,080万円
間取り
2LDK
広さ
70.9m2
階数
4階
方位
  • 南向き
  • 駐車場あり
  • 角部屋
  • モニタ付インターホン
  • 浴室乾燥機
  • 即入居可
  • 所有権
  • リフォームリノベーション
おすすめポイント
■リフォーム内容■ユニットバス新調、洗面台新調、トイレ新調、トイレCF貼替☆LDKは約18帖ございます。南向きのバルコニーに面したリビングですので日当たり、風通し良好☆約5帖の洋室には畳コーナーがございますので、ちょっとしたお昼寝スペースも◎☆玄関は広々としておりますので、収納場所の確保も安心ですね☆お風呂はうれしい浴室乾燥機付き。雨の日のお洗濯も困りませんね☆洗面台は2か所ございますので、混み合う朝も◎☆2沿線利用可能です(大阪モノレール・北大阪急行線)※附属建物の表示〈種類:物置/構造:鉄骨鉄筋コンクリート造1階建/床面積:地下1階部分2.24㎡〉※告知事項有り

ザ・千里タワー

ザ・千里タワー
大阪府豊中市新千里東町1
北大阪急行 千里中央駅 徒歩1分
大阪モノレール本線 千里中央駅 徒歩5分
阪急千里線 北千里駅 徒歩25分
築17年2ヶ月
50階建
new間取り図
価格
7,180万円
間取り
1LDK
広さ
61.47m2
階数
37階
方位
西
  • 駐車場あり
  • モニタ付インターホン
  • 浴室乾燥機
  • 所有権
  • タワーマンション(階建20階以上)
  • エレベーター
  • 2階以上
  • 宅配ボックス
おすすめポイント
●北大阪急行線「千里中央」駅:徒歩1分 ~通勤・通学に便利な立地です~●専有面積:61.47㎡●バルコニー面積:12.92㎡●間取り1LDK LDK:約19.0帖 ●50階建37階部分~眺望・通風良好です~●コンシェルジュサービス●充実した共有施設(ゲストルーム、カフェ、ライブラリー、ミニショップ、キッズルーム等)(一部有料)●ペット飼育可(規約による制限有)
間取り図
価格
7,580万円
間取り
1LDK
広さ
61.47m2
階数
45階
方位
西
  • 駐車場あり
  • 所有権
  • タワーマンション(階建20階以上)
  • 2階以上
  • 間取り図有り
おすすめポイント
●北大阪急行線「千里中央」駅:徒歩1分 ~通勤・通学に便利な立地です~●専有面積:61.47㎡●バルコニー面積:12.92㎡●間取り1LDK LDK:約19.0帖 ●50階建45階部分~眺望・通風良好です~●コンシェルジュサービス●充実した共有施設(ゲストルーム、カフェ、ライブラリー、ミニショップ、キッズルーム等)(一部有料)●ペット飼育可(規約による制限有)
間取り図
価格
8,280万円
間取り
3LDK
広さ
73.69m2
階数
36階
方位
西
  • モニタ付インターホン
  • 浴室乾燥機
  • 即入居可
  • 床暖房
  • 所有権
  • ペット相談可
  • タワーマンション(階建20階以上)
  • システムキッチン
おすすめポイント
ザ・千里タワーのご紹介です!北大阪急行線「千里中央」駅徒歩1分コンシェルジュカウンター、カフェ、ゲストルーム等共用施設充実24時間有人管理及び24時間ゴミ出し可能ペット飼育可能(規約順守ください)36階 3LDK 専有面積73.69㎡2025年7月クリーニング等リフレッシュ完了につき室内美麗です2037年全体修繕積立一時金26400円、2039年住宅修繕積立一時金395700円が予定されています。
間取り図
価格
8,980万円
間取り
2LDK
広さ
67.19m2
階数
16階
方位
西
  • 駐車場あり
  • モニタ付インターホン
  • 浴室乾燥機
  • 床暖房
  • 所有権
  • リフォームリノベーション
  • ペット相談可
  • タワーマンション(階建20階以上)
おすすめポイント
■北大阪急行線「千里中央」駅徒歩約1分  大阪モノレール本線「千里中央」駅徒歩約3分■ペット飼育可能(規約による制限あり)■~充実の共用施設~・コンシェルズカウンター・キッズルーム・アンダンテサロン・カフェ・ブリーズガーデン(6階)・ゲストルーム(32階・33階)■2026年4月室内リフォーム済・システムキッチン交換/トイレ交換/給湯器交換/洗濯パン交換/浴室暖房乾燥機交換/全天井・壁クロス張替/全居室フローリング張替/ハウスクリーニング等

OTC北橋グランドコーポ

OTC北橋グランドコーポ
大阪府箕面市船場西2
北大阪急行 箕面船場阪大前駅 徒歩5分
北大阪急行 箕面萱野駅 徒歩17分
北大阪急行 千里中央駅 徒歩24分
築46年
8階建
new間取り図
価格
4,280万円
間取り
3LDK
広さ
107.06m2
階数
1階
方位
  • 南向き
  • 駐車場あり
  • 専用庭
  • モニタ付インターホン
  • 所有権
  • リフォームリノベーション
  • システムキッチン
  • エレベーター
おすすめポイント
\\5/23(土)~5/31(日)ご内覧可能//◆赤い見学予約ボタンからご予約下さい!!◆直接お電話でのお問い合わせも可能です♪≫≫Tel:06-6842-7837≪専用庭と専用駐車場付きで平屋感覚のお住まい≫・室内リフォーム済みで清潔感あり◎今ドキの内装になっております♪・玄関に大容量の収納棚、洋室①にWICあり!・何かと物が増えがちな洗面室は広々!収納棚もあり!・約21.7帖の家族みんなでくつろいでいただけるLDKが魅力!・お庭の一角に専用駐車場があり、車からの移動が戸建の距離!・周辺は戸建やマンションが建つ閑静な住宅地
間取り図
価格
4,280万円
間取り
4LDK
広さ
105.85m2
階数
2階
方位
南西
  • 駐車場あり
  • 角部屋
  • モニタ付インターホン
  • 浴室乾燥機
  • 即入居可
  • 所有権
  • リフォームリノベーション
  • システムキッチン
おすすめポイント
□■即日内覧可能■□現地お待ち合わせ、最寄り駅待ち合わせ等、柔軟に対応致します!●全窓、断熱・省エネに優れた二重サッシに変更●浴室は1616(1坪)サイズ●タッチレス水栓、食洗器付のシステムキッチン●お洒落なカフェ風内装のお部屋●洗面台は便利なツーボウルタイプ▽▼リフォーム内容▼▽水廻り新調、建具新調、クロス全面貼替、フローリング全面張替折り下げ天井・間接照明・室内タイル・エコカラット等、最新トレンドが満載----住宅ローン支払例----借入額42800万円 期間35年 参考金利0.85% 月々返済額117849円・現在のお家賃と比較してください

ジオ千里中央ザ・レジデンス

ジオ千里中央ザ・レジデンス
大阪府豊中市上新田1
大阪モノレール本線 千里中央駅 徒歩5分
北大阪急行 千里中央駅 徒歩7分
築9年3ヶ月
13階建
new間取り図
価格
8,980万円
間取り
3LDK
広さ
81.88m2
階数
1階
方位
  • 駐車場あり
  • 専用庭
  • 所有権
  • エレベーター
  • 間取り図有り
おすすめポイント
-物件のおすすめポイント-▼立地・大阪モノレール本線「千里中央」徒歩5分 他▼特徴・阪急不動産(株)旧分譲・階下への生活音を気にせず暮らせる1階・約11.7平米のテラス・約10.08平米の専用庭付・家具配置のしやすいアウトポール設計・会話が弾む対面式キッチン・全居室、室内随所に収納を確保・24時間遠隔監視によるセキュリティシステム・ペット飼育可能(規約有)▼周辺環境・せんちゅうパル 徒歩6分(約410m)・新田小学校 徒歩4分(約270m)■ ご希望の住まい探しをお手伝いします ━━━━━・・・物件の詳細・ご相談はお気軽にお問い合わせください。

ニューセンバハイツ

ニューセンバハイツ
大阪府箕面市船場西1
北大阪急行 箕面船場阪大前駅 徒歩6分
北大阪急行 箕面萱野駅 徒歩17分
北大阪急行 千里中央駅 徒歩25分
築47年10ヶ月
7階建
new間取り図
価格
3,890万円
間取り
3LDK
広さ
84.3m2
階数
6階
方位
南東
  • 浴室乾燥機
  • 即入居可
  • 所有権
  • リフォームリノベーション
  • ペット相談可
  • システムキッチン
  • エレベーター
  • 2階以上
おすすめポイント
\\5/23(土)~5/31(日)内覧可能//◆赤い見学予約ボタンからご予約下さい!◆直接お電話でのお問い合わせも可能です♪≫≫Tel:06-6842-7837▼オススメポイント▼・2026年4月リノベーション完成物件♪・南東向きにつき日当り良好♪・2ヶ所にWICあり!収納が豊富なのでお部屋を広くお使いいただけます♪・うれしいエレベーター停止階♪・大切なペットとお過ごしいただけます♪(細則有)
間取り図
価格
3,580万円
間取り
1LDK
広さ
84.3m2
階数
5階
方位
  • 南向き
  • 駐車場あり
  • モニタ付インターホン
  • 所有権
  • リフォームリノベーション
  • ペット相談可
  • システムキッチン
  • エレベーター
おすすめポイント
〇5階部分の南向きで採光・通風・眺望良好!〇ウィル空間デザインによるフルリフォーム履歴あり! キッチン・トイレ・浴室・洗面台新調、SIC・WIC新設、 インナーテラス設置、造作ダイニングテーブル、リビングしっくい塗装仕上げ、無垢フローリング張替、 名古屋モザイクタイル貼り、二重窓設置、室内窓新調、間取り変更〇インナーテラス付き!〇北大阪急行線『箕面船場阪大前駅』徒歩4分!〇『稲保育所』徒歩2分!〇『萱野小学校』徒歩14分!〇『第五中学校』徒歩12分!〇『阪急オアシス 箕面船場店』徒歩8分!〇『杉谷公園』徒歩4分!〇『箕面市立文化芸能劇場』徒歩7分!
間取り図
価格
4,098万円
間取り
4SLDK
広さ
92.59m2
階数
3階
方位
南東
  • 浴室乾燥機
  • 所有権
  • リフォームリノベーション
  • ペット相談可
  • システムキッチン
  • エレベーター
  • 2階以上
  • 間取り図有り
おすすめポイント
■4LDK+納戸付タイプ■7階建ての3階部分【エレベーター停止階です】■ペット飼育可(規約による制限有)■2026年5月リフォーム完成予定◇システムキッチン交換◇可動棚取付け(キッチン)◇ユニットバス交換◇トイレ器具一式交換◇洗面化粧台交換◇洗濯パン・洗濯水栓交換◇全室クロス貼替◇全室フローリング張替◇和室を洋室に変更◇玄関土間タイル貼替◇玄関下足入交換◇全室建具交換◇分電盤交換◇インターホン交換◇火災報知器交換◇網戸張替◇ハウスクリーニング■リフォーム履歴≪2022年6月≫◇電気温水器交換※非居住の場合:組合活動協力金(月額2500円)
間取り図
価格
3,980万円
間取り
4LDK
広さ
92.59m2
階数
2階
方位
南東
  • 駐車場あり
  • 浴室乾燥機
  • 即入居可
  • 所有権
  • リフォームリノベーション
  • ペット相談可
  • システムキッチン
  • エレベーター
おすすめポイント
◆南東向きと洋室2室は陽当り・通風良好です♪◆キッチンは食洗器付き!時短ができて家族の会話も弾みます◎◆浴室乾燥機付きなので、雨の日や花粉のシーズンもお洗濯物干しは心配ありませんね♪◆4居室すべて洋室で窓と収納付き、うち1つは廊下からも出入りできるWICです◎◆LDKにもWICがあり、家族の荷物をスッキリ収納できます♪~2026年6月リフォーム内容~・キッチン、浴室、洗面化粧台、トイレ、 新規交換・床材、クロス 貼替~周辺環境~・サンディ箕面船場西店 徒歩6分・ローソン箕面船場西2丁目店 徒歩3分・第五中学校 徒歩13分・萱野小学校 徒歩17分・杉谷公園 徒歩5分

千里ロイヤルマンシヨン

千里ロイヤルマンシヨン
大阪府豊中市上新田2
大阪モノレール本線 千里中央駅 徒歩8分
北大阪急行 千里中央駅 徒歩9分
築48年
地上13階地下1階建
new間取り図
価格
2,880万円
間取り
2SLDK
広さ
72.45m2
階数
7階
方位
  • 南向き
  • 駐車場あり
  • 即入居可
  • 所有権
  • 管理人常駐
  • リフォームリノベーション
  • システムキッチン
  • エレベーター
おすすめポイント
-物件のおすすめポイント-▼立地・大阪モノレール本線「千里中央」徒歩8分 他▼特徴・LDK約18.0帖、キッチンは対面式・全居室収納付・フリースペース約4.5帖は多用途に活用可能▼2026年3月室内リフォーム内容【新調】キッチン、UB、洗面台、エコカラット 等【張替】全室クロス・フローリング【その他】和室を洋室に間取り変更、ハウスクリーニング▼周辺環境・業務スーパー津雲台店 徒歩7分(約500m)・千里中央公園 徒歩5分(約400m)■ ご希望の住まい探しをお手伝いします ━━━━━・・・物件の詳細・ご相談はお気軽にお問い合わせください。

豊中メゾン桃山台二号棟

豊中メゾン桃山台二号棟
大阪府豊中市上新田4
北大阪急行 桃山台駅 徒歩12分
大阪モノレール本線 千里中央駅 徒歩20分
北大阪急行 千里中央駅 徒歩22分
築52年5ヶ月
8階建
new間取り図
価格
2,390万円
間取り
3LDK
広さ
72m2
階数
2階
方位
南東
  • 所有権
  • システムキッチン
  • エレベーター
  • 2階以上
  • 間取り図有り
おすすめポイント
■3路線利用可  北大阪急行南北線「桃山台」駅徒歩12分 大阪モノレール本線「千里中央」駅徒歩20分 北大阪急行南北線「千里中央」駅徒歩22分■専有面積72㎡の3LDKタイプ■8階建ての2階部分■南東向きバルコニーにつき日照良好■物件の内覧及び詳細のお問い合わせは担当浅野までお願いいたします。(フリーコール0120-109-369)《特徴》・専用使用権の駐車場有(管理費約700円)      ・リフォーム歴 リビングと廊下防火構造およびクッションフロアに変更 キッチン・浴槽交換  和室 畳替え、押入新調・エレベーター有

レーベン千里青山台 GRAN HIGH山台

レーベン千里青山台 GRAN HIGH山台
大阪府吹田市青山台2
阪急千里線 北千里駅 徒歩12分
北大阪急行 箕面船場阪大前駅 徒歩27分
大阪モノレール本線 千里中央駅 徒歩27分
築4年5ヶ月
地上8階地下1階建
new間取り図
価格
6,698万円
間取り
3LDK
広さ
90.41m2
階数
7階
方位
  • 駐車場あり
  • 角部屋
  • モニタ付インターホン
  • 浴室乾燥機
  • 即入居可
  • 床暖房
  • 所有権
  • ペット相談可
おすすめポイント
【1】90平米超のゆとりと、南東角部屋ならではの陽光に包まれる暮らし。北千里駅徒歩12分の落ち着いた住環境で、のびのびと子育てができる築浅レジデンスです。【2】約22.1帖の広々LDKは、大型テレビボード付きで家族団らんの場にぴったり。南と東を囲む引き廻しバルコニーからは明るい朝日が差し込み、爽やかな朝食タイムを演出します。大容量のシューズインクロークやカップボードも完備され、スッキリとした空間を保てます。休日はペットと近隣の公園へお散歩に出かける、そんな穏やかな日常が待っています。【3】ゆとりある広さを求める子育てファミリーに特におすすめです。ぜひ一度、現地でご体感ください。

プレステージ新千里西町

プレステージ新千里西町
大阪府豊中市新千里西町2
北大阪急行 千里中央駅 徒歩14分
大阪モノレール本線 千里中央駅 徒歩14分
北大阪急行 箕面船場阪大前駅 徒歩19分
築41年
5階建
new間取り図
価格
4,780万円
間取り
3LDK
広さ
82.46m2
階数
3階
方位
  • 南向き
  • 駐車場あり
  • 角部屋
  • モニタ付インターホン
  • 浴室乾燥機
  • 即入居可
  • 所有権
  • リフォームリノベーション
おすすめポイント
※エレベーターは1.4階に停止、3階へは4階で降りて階段をご利用ください※駅までは坂道になります■設備内容【駐車場権利付き】月額2000円、高さ2.3m、幅2.04m【給湯器(ノーリツ)】2025年10月製造、16号【トランクルーム】【玄関】専用ポーチ、プッシュプルハンドル【浴室(TOTO)】浴室暖房乾燥機、追い焚き、サイズ1416【洗面化粧台(TOTO)】ビルトイン水栓【ウォシュレット(TOTO)】パワー脱臭、オート洗浄【エアコン先行配線工事】【TVモニター付きインターホン(パナソニック)】あんしん応答【システムキッチン(クリナップ)】食器洗浄乾燥機、水栓一体型浄水器

クレアヒルズ千里津雲台

クレアヒルズ千里津雲台
大阪府吹田市津雲台7
大阪モノレール本線 山田駅 徒歩15分
阪急千里線 山田駅 徒歩15分
北大阪急行 千里中央駅 徒歩18分
築18年3ヶ月
9階建
new間取り図
価格
4,680万円
間取り
2SLDK
広さ
75.05m2
階数
7階
方位
  • 南向き
  • 駐車場あり
  • 角部屋
  • モニタ付インターホン
  • 浴室乾燥機
  • 床暖房
  • 所有権
  • リフォームリノベーション
おすすめポイント
北摂の穏やかな住宅街、千里津雲台で送る心地よい暮らし!■2019年にリノベーション済・ガスコンロ取替・食洗器取付・クロス、フローリング張替室内大変綺麗にお使いです!■陽だまりのリビング・3LDK→2SLDKに変更、リビングは約19.3帖!・南西角部屋×2面バルコニー×床暖房 明るく暖かな快適空間!冬でも素足で過ごせます・南側は住宅街で眺望◎■暮らしを整える充実設備・各戸収納付・換気に嬉しい『浴室窓』・ペット飼育可※規約有・宅配ボックス・平面駐車場 etc.■利便性と緑が共存する環境・スーパーや公園など周辺環境充実・幼稚園、小学校が徒歩10分以内
間取り図
価格
5,680万円
間取り
3LDK
広さ
70.29m2
階数
9階
方位
  • 南向き
  • 駐車場あり
  • 最上階
  • 所有権
  • エレベーター
  • 2階以上
  • 間取り図有り
おすすめポイント
-物件のおすすめポイント-▼立地・閑静な住宅地▼特徴・家族が集まるLDKは約15.1帖、和室約5.0帖が隣接・リビングを見渡せる対面式カウンターキッチン、勝手口有・キッチン隣接の洗面室は2WAY仕様、家事動線良好・全居室に収納スペースを確保・南面バルコニー有、スロップシンク付・ペット飼育可能(規約有)▼周辺環境・業務スーパー津雲台店 徒歩6分(約450m)・吹田千里郵便局 徒歩5分(約390m)・吹田市立津雲台小学校 徒歩8分(約630m)■ ご希望の住まい探しをお手伝いします ━━━━━・・・物件の詳細・ご相談はお気軽にお問い合わせください。
間取り図
価格
6,180万円
間取り
4LDK
広さ
82.67m2
階数
9階
方位
  • 南向き
  • 駐車場あり
  • 最上階
  • 角部屋
  • モニタ付インターホン
  • 浴室乾燥機
  • 床暖房
  • 所有権
おすすめポイント
-物件のおすすめポイント-▼特徴・引き回しバルコニー29.65平米・LDKは約15.3帖、和室が隣接・各洋室・和室に収納有・ペット飼育可能(規約制限有)▼設備・床暖房・食洗機・浴室は窓・乾燥機付▼内装リフォーム履歴【2017年5月】<交換>キッチン、浴室、トイレ<その他>クロス張替 他【2019年】<その他>ダウンライトLED化(洗面所・玄関・キッチン)※駐車場満車時、1住戸2台以上駐車の場合は3か月猶予期間後に明け渡し可能(管理規約による)■ ご希望の住まい探しをお手伝いします ━━━━━・・・物件の詳細・ご相談はお気軽にお問い合わせください。

シエリアタワー千里中央

シエリアタワー千里中央
大阪府豊中市新千里東町1
北大阪急行 千里中央駅 徒歩1分
大阪モノレール本線 千里中央駅 徒歩3分
北大阪急行 箕面船場阪大前駅 徒歩18分
築7年5ヶ月
地上52階地下1階建
間取り図
価格
5,680万円
間取り
1LDK
広さ
52.65m2
階数
36階
方位
西
  • 駐車場あり
  • モニタ付インターホン
  • 浴室乾燥機
  • 即入居可
  • 管理人常駐
  • リフォームリノベーション
  • ペット相談可
  • タワーマンション(階建20階以上)
おすすめポイント
-物件のおすすめポイント-▼立地・北大阪急行南北線「千里中央」徒歩1分 他▼特徴・清水建設(株)・(株)大林組施工・LDKは約14.9帖、壁付けキッチン採用・洋室約6.8帖にWICを設置・浴室はジェットバス・暖房乾燥機有・24時間有人管理▼2023年10月室内リフォーム履歴【交換】トイレ、浴室【その他】エコカラット採用(LD・玄関の壁)※解体準備金4300円/月※借地期間満了時に更地返還要。建物の買取り請求・契約更新及び改築等による期間延長不可。■ ご希望の住まい探しをお手伝いします ━━━━━・・・物件の詳細・ご相談はお気軽にお問い合わせください。
間取り図
価格
7,490万円
間取り
3SLDK
広さ
77.71m2
階数
13階
方位
  • モニタ付インターホン
  • 浴室乾燥機
  • ペット相談可
  • タワーマンション(階建20階以上)
  • システムキッチン
  • オール電化
  • エレベーター
  • 2階以上
おすすめポイント
≪バルコニーより万博記念公園の花火大会をご観賞いただけます!≫◆関西不動産開発(株) 旧分譲マンション「シエリア」シリーズ◇千里中央駅直結のタワーマンション◆24時間ゴミ出し可能なゴミステーション◇セキュリティ充実◆スカイガーデン・スカイテラス・ゲストルーム(パーティルーム)有り◇ホテルライクな内装◆築年月:2019年1月◇ペット飼育可◆13階部分東向き住戸×専有面積77.71m2×3LDK+N+WIC+SIC◇エコカラットを玄関・トイレに設置(調湿機能・脱臭効果など)◆ディスポーザー◇オール電化◆豊富な収納スペース◇当社の設備保証が暮らしをサポート
間取り図
価格
1億9,000万円
間取り
2LDK
広さ
107.67m2
階数
47階
方位
南西
  • 角部屋
  • モニタ付インターホン
  • 浴室乾燥機
  • 管理人常駐
  • ペット相談可
  • タワーマンション(階建20階以上)
  • システムキッチン
  • オール電化
おすすめポイント
・北大阪急行電鉄「千里中央」駅から徒歩1分・大阪モノレール本線「千里中央」駅から徒歩3分【専有部分】・地上52階建の47階部分・南西角住戸・2LDK、107.67㎡・LDK20帖以上・浴室換気乾燥機・ディスポーザー・食器洗い乾燥機・ペット飼育可(規約による)【共用施設など】・エントランスラウンジ・サロン・多目的ホール・24時間ゴミ出し可
間取り図
価格
7,780万円
間取り
3LDK
広さ
81.28m2
階数
4階
方位
西
  • 駐車場あり
  • モニタ付インターホン
  • 浴室乾燥機
  • タワーマンション(階建20階以上)
  • 2階以上
  • 宅配ボックス
  • 間取り図有り
おすすめポイント
●2WAYアクセス●大阪モノレール本線「千里中央」駅:徒歩●北大阪急行線「千里中央」駅:徒歩●専有面積:81.28㎡●バルコニー面積:4.94㎡●3LDK LDK約18.9帖●ペット飼育可能(規約制限有)●24時間ゴミ捨て可能なゴミステーション。 可燃ごみを出せるゴミ置き場を各フロアに設置。
間取り図
価格
8,180万円
間取り
3LDK
広さ
77.71m2
階数
14階
方位
  • 駐車場あり
  • モニタ付インターホン
  • 浴室乾燥機
  • ペット相談可
  • タワーマンション(階建20階以上)
  • システムキッチン
  • オール電化
  • 2階以上
おすすめポイント
●交通アクセス・北大阪急行南北線「千里中央」駅まで徒歩2分・大阪モノレール本線「千里中央」駅まで徒歩3分●2019年1月築!地下1階付き地上52階建タワーマンションです●14階部分、洋室3部屋が配置された「3LDK」住戸●全居室フローリング仕様●クローズドタイプのキッチンが採用されています●浴室は、オートバス機能+浴室暖房乾燥機搭載●各洋室にWICを含む収納スペース、玄関にSIC有●ペット飼育可能です●共用部に、宅配ボックスが備わっています●買い物施設・KOHYO SENRITO店:徒歩3分(約170m)・イオンSENRITO専門館:徒歩1分(約40m)
間取り図
価格
7,680万円
間取り
3LDK
広さ
78.31m2
階数
21階
方位
西
  • 駐車場あり
  • モニタ付インターホン
  • 浴室乾燥機
  • 管理人常駐
  • ペット相談可
  • タワーマンション(階建20階以上)
  • システムキッチン
  • オール電化
おすすめポイント
◆専有面積78.31㎡の3LDK+WIC◆バルコニー面積12.65㎡、サービスバルコニー面積2.26㎡◆アルコーブ面積2.27㎡◆2駅2路線利用可能 北大阪急行「千里中央」駅 徒歩1分 大阪モノレール「千里中央」駅 徒歩3分◆SENRITOよみうり隣接でお買い物に便利な立地◆42階に2層吹抜のパーティールーム・スカイガーデンあり◆43階にメゾネットタイプのゲストルームあり◆コンシェルジュサービスあり◆24時間ゴミ出し可能なゴミステーションあり 可燃ごみを捨てられるゴミ置き場が各フロアにあり◆ペット飼育可(規約による制限あり)◆オール電化◆24時間管理人常駐の管理体制

シティゲートタワー千里中央

シティゲートタワー千里中央
大阪府箕面市船場東3
北大阪急行 箕面船場阪大前駅 徒歩1分
北大阪急行 箕面萱野駅 徒歩17分
北大阪急行 千里中央駅 徒歩18分
築21年5ヶ月
地上26階地下1階建
間取り図
価格
6,180万円
間取り
3LDK
広さ
70.99m2
階数
9階
方位
北西
  • 駐車場あり
  • 角部屋
  • モニタ付インターホン
  • 浴室乾燥機
  • 床暖房
  • 所有権
  • ペット相談可
  • タワーマンション(階建20階以上)
おすすめポイント
北大阪急行延伸で注目が集まる「箕面船場阪大前」駅から徒歩1分。移動のストレスを解放し、ゆとりある暮らしを叶える好立地マンションです。■暮らしを彩るポイント・9階部分の北西角住戸につき、陽当り・通風・眺望ともに良好・LDKは約15.2畳の広々空間。足元から温まる床暖房完備・プライバシーに配慮されたアルコーブ付きの玄関・全居室収納&廊下収納など、生活動線を考えた豊富な収納力■充実の周辺環境・スーパー「阪急オアシス」まで徒歩2分。お買い物も快適・図書館やカフェが点在する、再開発で美しく整備された街並み・大切な家族であるペットとの飼育も相談可能です
間取り図
価格
6,280万円
間取り
3LDK
広さ
70.99m2
階数
8階
方位
西
  • 角部屋
  • 所有権
  • ペット相談可
  • タワーマンション(階建20階以上)
  • エレベーター
  • 2階以上
  • 間取り図有り
おすすめポイント
■北大阪急行南北線「箕面船場阪大前」駅徒歩1分■26階建て8階北西向き角部屋■ペット可(規約による制限有)【2026年4月末リフォーム完了予定】■クロス全面張替■床全面張替■キッチン入替(パナソニック)■浴室入替(パナソニック)■洗面台入替(パナソニック)■トイレ入替(TOTO)■フロアタイル張替(トイレ・洗面室)■建具交換(パナソニック)■ダウンライト新設■スイッチパネル交換【リビングメッセージ】■阪急オアシス箕面船場店・・・50m■箕面市立萱野東小学校・・・2320m■ローソンS箕面船場阪大前駅店・・・170m
間取り図
価格
6,280万円
間取り
3SLDK
広さ
82.44m2
階数
3階
方位
  • 南向き
  • 角部屋
  • モニタ付インターホン
  • 浴室乾燥機
  • 所有権
  • リフォームリノベーション
  • ペット相談可
  • タワーマンション(階建20階以上)
おすすめポイント
【リフォーム2025年10月完了!】リフォーム内容■キッチンパネル交換(キッチンはレンジフード、棚、水栓、照明、手元灯交換)■浴室交換■洗面化粧台パネル交換■全室建具交換■リビングにシーリングライト新設(ラインライト)■畳表替え■玄関フロアタイル交換■全室クロス、フローリング張替え■ピクトレール新設物件の特徴■内廊下■南東の角部屋のため、日当たり風通し良好■南東向きバルコニー(25.10㎡)■浴室暖房乾燥機「カワック24」標準設備
間取り図
価格
6,680万円
間取り
3LDK
広さ
87.26m2
階数
12階
方位
  • 南向き
  • 駐車場あり
  • 浴室乾燥機
  • 即入居可
  • 所有権
  • リフォームリノベーション
  • ペット相談可
  • タワーマンション(階建20階以上)
おすすめポイント
■リフォーム内容■≪新調≫システムキッチン、浴室、トイレ≪その他≫クロス全室張替、フローロング全室張替、建具一部交換、給湯器交換、ハウスクリーニング☆大切なペットと暮らせるマンションです(規約制限有)☆LDKは約17.5帖ございます。ダイニングテーブルやソファを置いても充分な広さがございますね☆各居室に収納スペース有り。約7.9帖の洋室にはWICがある為、収納場所に困りません☆各室バルコニーに面している為、風通し、日当たり良好。うれしい南向きバルコニーです☆玄関にはSICがございます。おうちの顔でもある玄関がすっきり片付きますね☆宅配ボックスのあるマンションです

ザ・千里レジデンス

ザ・千里レジデンス
大阪府豊中市新千里東町1
北大阪急行 千里中央駅 徒歩1分
大阪モノレール本線 千里中央駅 徒歩6分
阪急千里線 北千里駅 徒歩30分
築15年4ヶ月
17階建
間取り図
価格
6,780万円
間取り
1LDK
広さ
53.24m2
階数
6階
方位
  • モニタ付インターホン
  • 浴室乾燥機
  • 床暖房
  • 所有権
  • ペット相談可
  • システムキッチン
  • エレベーター
  • 2階以上
おすすめポイント
◇竹中工務店施工、総戸数132戸の免振レジデンス!◇千里中央地区再開発計画もあり、今後のエリア期待大◎☆お部屋POINT―――〇リビングダイニング約16.9帖のLDK☆床暖房付きで冬も暖かくお過ごしいただけます!〇キッチンディスポーザー付きで家事軽減に役立ちます☆〇浴室うれしい浴室暖房乾燥機付き!ご年齢の方やお子様でも使いやすい低床式浴槽!〇収納SIC、リネン庫等収納充実◎☆共用施設―――〇ラウンジ(2階)〇サロン(3階)〇多目的ルーム(3階)☆特徴・詳細―――〇スーパーや公園、コンビニなど周辺施設も充実!

ブランズ桃山台

ブランズ桃山台
大阪府吹田市桃山台2
北大阪急行 桃山台駅 徒歩2分
阪急千里線 南千里駅 徒歩13分
大阪モノレール本線 千里中央駅 徒歩28分
築5年4ヶ月
13階建
間取り図
価格
8,380万円
間取り
2LDK
広さ
64.71m2
階数
7階
方位
  • 南向き
  • 駐車場あり
  • モニタ付インターホン
  • 浴室乾燥機
  • 床暖房
  • 所有権
  • ペット相談可
  • エレベーター
おすすめポイント
■北大阪急行南北線「桃山台」駅徒歩2分■2021年2月建築■専有面積64.71m2の2LD・Kタイプ■南向きバルコニーにつき日照良好■玄関にアルコーブあり(面積6.76m2)■カウンター付システムキッチン■ペット飼育(管理規約による制限あり)■宅配ボックスあり■物件の内覧及び詳細のお問い合わせは担当小松までお願いいたします。(フリーコール0120-109-369)住戸数:80戸

千里竹見台団地

千里竹見台団地
大阪府吹田市竹見台4
北大阪急行 桃山台駅 徒歩3分
阪急千里線 南千里駅 徒歩13分
大阪モノレール本線 千里中央駅 徒歩29分
築54年8ヶ月
5階建
間取り図
価格
2,180万円
間取り
2LDK
広さ
67.56m2
階数
5階
方位
  • 南向き
  • 駐車場あり
  • 最上階
  • 即入居可
  • 所有権
  • 2階以上
  • 間取り図有り
おすすめポイント
通勤・通学便利!お好みでリフォームできます。土地持分約19.49坪

ジオ千里竹見台~専用庭・駐車場付き~

ジオ千里竹見台~専用庭・駐車場付き~
大阪府吹田市竹見台4
北大阪急行 桃山台駅 徒歩3分
阪急千里線 南千里駅 徒歩15分
大阪モノレール本線 千里中央駅 徒歩26分
築15年
10階建
間取り図
価格
5,280万円
間取り
2LDK
広さ
61.58m2
階数
1階
方位
西
  • 駐車場あり
  • 専用庭
  • モニタ付インターホン
  • 浴室乾燥機
  • 所有権
  • リフォームリノベーション
  • ペット相談可
  • システムキッチン
おすすめポイント
======================\現地見学会実施中!!/お電話・メール・見学予約からお気軽にお問い合わせください♪竹見台駅徒歩3分!駅チカマンションです♪1階のお部屋ですが、お庭にはテラスと駐車場が付いています!シャッター付きなので人目を気にせず過ごせます◎段差のない室内は、ご高齢のご家族や小さなお子様、ワンちゃんにも安心の設計です。高級感のある共用部は、まるでホテルのような空間です。令和8年4月リフォーム完成予定♪キッチンを新調し、クロスを貼替予定です。

Brillia Tower箕面船場 TOP OF THE HILL

Brillia Tower箕面船場 TOP OF THE HILL
大阪府箕面市船場東3
北大阪急行 箕面船場阪大前駅 徒歩3分
北大阪急行 箕面萱野駅 徒歩18分
北大阪急行 千里中央駅 徒歩21分
築1年8ヶ月
30階建
間取り図
価格
9,730万円
間取り
3LDK
広さ
72.6m2
階数
28階
方位
西
  • 駐車場あり
  • モニタ付インターホン
  • 浴室乾燥機
  • 所有権
  • タワーマンション(階建20階以上)
  • システムキッチン
  • エレベーター
  • 2階以上
おすすめポイント
◆◆今なら内見予約をされたお客様限定で、もれなくQUOカード1000円分をプレゼント◆◆※数に限りがございますので、無くなり次第終了となります。ご了承ください。◆弊社の特徴◆住宅ローンに強いスタッフが在籍!自己資金ゼロの方や、審査に不安がある方も、お客様に合った解決策を一緒に考えます。ぜひお気軽にご予約ください。● 2024年築・新築未入居につき室内コンディション良好● 30階建ての28階部分、高層階ならではの開放感● ゲストルームはスイート仕様2室を完備● 15~28階の各階にワーキングキャビン設置● アウトリウムラウンジ・シミュレーションゴルフレンジあり

千里竹見台団地A3棟

千里竹見台団地A3棟
大阪府吹田市竹見台4
北大阪急行 桃山台駅 徒歩4分
阪急千里線 南千里駅 徒歩14分
大阪モノレール本線 千里中央駅 徒歩26分
築54年8ヶ月
5階建
間取り図
価格
2,000万円
間取り
2LDK
広さ
67.56m2
階数
5階
方位
  • 南向き
  • 駐車場あり
  • 最上階
  • 所有権
  • システムキッチン
  • 2階以上
  • 間取り図有り
おすすめポイント
■阪急千里線「南千里駅」との2WAYアクセス■南向きバルコニーにつき陽当たり・通風良好■専有面積:67.56㎡の2LDK■大阪府住宅供給公社分譲 団地型マンション5階建て5階部分
チェックした物件を一括で
  • チェックした物件をまとめて
396
表示建物数 1234 次へ

条件を選択

価格
間取り
広さ
築年数
駅からの時間
人気のこだわり条件

さらに詳しくこだわり条件を選択

位置
  • new
部屋環境
建物設備
収納
セキュリティ
駐車場・駐輪場
条件
特徴
性能・評価
瑕疵保険
お得な条件
画像・動画
情報の新しさ
フリーワード
千里中央駅のおすすめ新築マンション

千里中央駅の新築マンション情報をもっと見る

豊中市の暮らしデータ

人口などの統計情報

世帯数 176759世帯
人口総数 405955人
転入者数 20231人
転入率(人口1000人当たり)
49.84人
転出者数 19215人
転出率(人口1000人当たり)
47.33人
土地平均価格
住宅地
252500円/m2
商業地
379000円/m2

結婚・育児の助成金

子育て関連の独自の取り組み (1)子育て情報をまとめた「子育て応援BOOK『みんなで』」を配布。(2)こんにちは赤ちゃん事業(乳児家庭全戸訪問事業)。(3)保護者支援プログラムの実施(「安心感の輪」子育てプログラム)。(4)多胎児家庭育児支援事業の実施。(5)とよなか子育て応援団(子育て家庭に配慮した取組みをする事業者を登録・周知)。(6)子育ち・子育て応援アプリ「とよふぁみ」(成長記録や予防接種のスケジュール管理と、行政サービスやイベント等の情報発信)。(7)午前7時から登校時間(午前8時)まで、通学する小学校及び義務教育学校の体育館等での児童の見守り。(8)第二子以降の保育料無料。(9)豊中市立学校における学校教育活動徴収金無償化。
出産祝い あり
公立保育所数 0所(うち0歳児保育を実施している保育所:-)
私立保育所数 51所(うち0歳児保育を実施している保育所:46所)
保育所入所待機児童数 19人
認定こども園数 60園 預かり保育実施園数 公立:- 私立:14園
学校給食 【小学校】完全給食【中学校】デリバリー形式[運搬:ランチボックス及び食缶、内容:完全給食]
公立中学校の学校選択制 未実施
子ども・学生等医療費助成<通院>対象年齢 18歳3月末まで 子ども・学生等医療費助成<入院>対象年齢 18歳3月末まで

豊中市の治安・ごみ収集情報

公共料金・インフラ

ガス料金(22m3使用した場合の月額) 大阪瓦斯株式会社4544円
水道料金(口径20mmで20m3の月額) 豊中市2838円
下水道料金(20m3を使用した場合の月額) 豊中市1739円
下水道普及率 100.0%

安心・安全

建物火災出火件数 63件
人口10000人当たり
1.57件
刑法犯認知件数 2040件
人口1000人当たり
5.08件
ハザード・防災マップ あり

医療

一般病院総数 16ヶ所
一般診療所総数 433ヶ所
小児科医師数 63人
小児人口10000人当たり
11.80人
産婦人科医師数 24人
15~49歳女性人口1万人当たり
2.95人
介護保険料基準額(月額) 6998円

ごみ

家庭ごみ収集(可燃ごみ) 無料
備考
引越し等で、臨時に大量のごみを排出する場合は収集時に現金徴収。
家庭ごみの分別方式 8分別〔可燃ごみ 不燃ごみ 空き缶・危険ごみ 充電式電池内蔵の小型家電・電池類 プラスチック製容器包装 ペットボトル ビン 紙・布〕 拠点回収:使用済小型家電 水銀使用廃製品
家庭ごみの戸別収集 一部実施(【ふれあい収集】対象要件を満たした高齢者及び障害者に実施)
粗大ごみ収集 あり
備考
有料。事前申込制。
生ごみ処理機助成金制度 なし
上限金額
-
上限比率
-

豊中市の住まいの給付金

中古購入

利子補給制度 なし
補助/助成金制度 なし

増築・改築・改修

利子補給制度 なし
補助/助成金制度 あり
上限金額
(1)5万円(2)10万円(3)107.5万円(4)20万円
備考
(1)【耐震診断補助】木造住宅5万円、非木造2.5万円、1981年5月31日以前建築の住宅。(2)【耐震設計補助】1981年5月31日以前建築の階数2以下の木造住宅。(3)【耐震改修補助】1981年5月31日以前建築の階数2以下の木造住宅。(4)【スマートハウス支援補助】市内の既築住宅の断熱リフォーム経費(必要な建築材料の購入経費)の1/3を補助(上限20万円)。(4)以外他要件あり。
暮らしデータ提供元:生活ガイド.com
※行政機関により公表していない地域及びデータがございます。東京23区以外の政令指定都市は、市全体のデータとして表示しています。
※提供データには細心の注意を払っておりますが、調査後に変更がある場合があります。 最新の情報につきましては各市区役所までお問い合わせいただくか、自治体HPなどをご確認ください。

価格相場

千里中央駅の価格相場

  ワンルーム 1K・1DK 1LDK・2K・2DK 2LDK・3K・3DK 3LDK・4K・4DK
中古マンション - - 3,852万円 4,143万円 4,738万円

周辺駅の価格相場

  江坂 緑地公園 桃山台 箕面船場阪大前 箕面萱野
中古マンション 2,564万円 2,066万円 1,793万円 7,330万円 -
※このデータはgoo住宅・不動産に掲載されている中古マンションの平均価格(管理費・駐車場代などを除く)を算出したものです。ただし5戸以上の掲載があるものについてのみ対象とします。
※周辺駅の価格相場は1LDK・2K・2DKの平均価格(管理費・駐車場代などを除く)を算出したものです。
アプリで簡単 物件探し 大手不動産サイトの情報から一括検!プッシュ通知で物件を見逃さない
App Storeからダウンロード Google Playで手に入れよう QRコード