アプリで簡単 物件探し 通知 共有 アプリならではの機能を使ってみる
RSS

楽々園駅(広島県)の中古マンション 物件一覧

楽々園駅(広島県)の中古売マンション、中古分譲マンションなどの中古マンション物件をご紹介します。中古マンション物件情報を探すならgoo住宅・不動産。価格・広さ・間取り・写真・人気のこだわり条件から物件を簡単検索。理想の物件探しをgoo住宅・不動産がサポートします。

105 並び替え
チェックした物件を一括で

グランドメゾン五日市美の里弐番館

グランドメゾン五日市美の里弐番館
広島県広島市佐伯区美の里1丁目
広島電鉄宮島線 楽々園駅 徒歩14分
広島電鉄宮島線 山陽女学園前駅 徒歩15分
築30年8ヶ月
10階建
間取り図
価格
2,599万円
間取り
4LDK
広さ
87.1m2
階数
6階
方位
  • 南向き
  • 駐車場あり
  • 浴室乾燥機
  • 所有権
  • リフォームリノベーション
  • システムキッチン
  • 2階以上
  • 間取り図有り
おすすめポイント
東南の角部屋で、さわやかな暮らしができそうですね。2025年5月リフォーム完了しています。住宅ローンフラット35適合物件です。あんしん既存住宅売買瑕疵保険に加入済です。

ジェイシティ五日市アベニュー 【担当:岩井まで】

ジェイシティ五日市アベニュー 【担当:岩井まで】
広島県広島市佐伯区千同1
広島電鉄宮島線 楽々園駅 徒歩25分
広島電鉄宮島線 佐伯区役所前駅 徒歩28分
JR山陽本線 五日市駅 徒歩27分
築29年
10階建
new間取り図
価格
2,490万円
間取り
3LDK
広さ
69.24m2
階数
3階
方位
南東
  • 駐車場あり
  • モニタ付インターホン
  • 浴室乾燥機
  • 即入居可
  • 所有権
  • リフォームリノベーション
  • システムキッチン
  • エレベーター
おすすめポイント
□■□■□■□■□■□■□■□■□■□■□■□■□「近鉄の仲介」は広島エリア6営業所体制で他社に負けないネットワークを駆使して地域のみなさまのお役に立ちます!売却・住替・賃貸・購入・買取・相続などお問合せはお気軽に、フリーダイヤル「0120-135-728」へご連絡ください!すべてのお客様に「ありがとう」と言っていただけることを目標に、安心・安全な不動産取引を通して、お客様のお役に立てるように活動してまいります。不動産のことなら、「近鉄不動産株式会社 五日市営業所」へお任せください。不動産に関すること、何でもご相談ください!■□■□■□■□■□■□■□■□■□■□■□■□■

楽々園マンション

楽々園マンション
広島県広島市佐伯区楽々園1
広島電鉄宮島線 楽々園駅 徒歩1分
広島電鉄宮島線 佐伯区役所前駅 徒歩13分
広島電鉄宮島線 山陽女学園前駅 徒歩18分
築51年4ヶ月
8階建
間取り図
価格
1,690万円
間取り
2SLDK
広さ
75.6m2
階数
3階
方位
  • 南向き
  • 駐車場あり
  • 所有権
  • リフォームリノベーション
  • システムキッチン
  • エレベーター
  • 2階以上
  • 間取り図有り
おすすめポイント
-物件のおすすめポイント-▼立地・広島電鉄宮島線「楽々園」駅 徒歩1分▼特徴・3階部分、南向き住戸・南向きバルコニーに面するLDK・会話の弾む対面式キッチン採用・主寝室は約8.5帖の広さ・各洋室・廊下に収納を設置▼2017年2月室内リフォーム履歴【張替】フローリング、クロス、CF【交換】キッチン、浴室、洗面化粧台、トイレ 等▼周辺環境・スーパー「マックスバリュ楽々園店」徒歩6分(約450m)・セブンイレブン広島楽々園店 徒歩3分(約170m)■ ご希望の住まい探しをお手伝いします ━━━━━・・・物件の詳細・ご相談はお気軽にお問い合わせください。
間取り図
価格
1,280万円
間取り
3LDK
広さ
73.29m2
階数
2階
方位
  • 南向き
  • 角部屋
  • モニタ付インターホン
  • 即入居可
  • 所有権
  • リフォームリノベーション
  • エレベーター
  • 2階以上
おすすめポイント
◆専有面積72㎡、快適性とゆとりにこだわった間取りです♪◆南バルコニーで毎日のお洗濯も快適♪◆公園が近く、子育て家族に嬉しい緑豊かな環境です♪◆車通りも少なく、お子様とのお散歩も安心してできる閑静な住宅地♪◆幹線道路から1本入った現地は想像以上に静か♪◆駅までは明るい街灯が立ち並び、お子様のお出かけも安心♪◆広いリビングは家族が自然と集まる居心地の良い空間♪◆リビング横の和室は、思い切りお子様が遊べるキッズスペースにぴったり♪◆青果ストア、鮮魚ストア、惣菜ストア、地元ストアなど活気ある街♪

ライオンズマンション楽々園第二 202号室

ライオンズマンション楽々園第二 202号室
広島県広島市佐伯区楽々園1
広島電鉄宮島線 楽々園駅 徒歩2分
築33年3ヶ月
6階建
間取り図
価格
1,980万円
間取り
3LDK
広さ
54.74m2
階数
2階
方位
  • 南向き
  • 駐車場あり
  • 所有権
  • リフォームリノベーション
  • システムキッチン
  • 2階以上
  • 間取り図有り
おすすめポイント
■キッチン・浴室・洗面・トイレ交換■クロス・床貼替■広島電鉄「楽々園」駅すぐの利便性の良いマンション■南向きのバルコニーで日当たり良好

ライオンズマンション楽々園第2

ライオンズマンション楽々園第2
広島県広島市佐伯区楽々園1
広島電鉄宮島線 楽々園駅 徒歩2分
広島電鉄宮島線 佐伯区役所前駅 徒歩12分
広島電鉄宮島線 山陽女学園前駅 徒歩17分
築33年3ヶ月
6階建
間取り図
価格
2,680万円
間取り
3LDK
広さ
69.9m2
階数
3階
方位
  • 南向き
  • 駐車場あり
  • 角部屋
  • モニタ付インターホン
  • 所有権
  • リフォームリノベーション
  • システムキッチン
  • 2階以上
おすすめポイント
:キッチン・ユニットバス・洗面化粧台新設ウォシュレット付トイレ新設 建具新規交換 フローリング張替クロス張替 ハウスクリーニング 角部屋 2面採光 温水洗浄便座システムキッチン カウンターキッチン 全居室収納 オートロックモニタ付インターホン 宅配ボックス ダウンライト
間取り図
価格
2,380万円
間取り
3LDK
広さ
59.74m2
階数
2階
方位
  • 南向き
  • 駐車場あり
  • オートロック
  • モニタ付インターホン
  • 所有権
  • システムキッチン
  • エレベーター
  • 2階以上
おすすめポイント
【ご見学可能】リフォーム令和8年5月完了予定☆6階建て2階部分、専有面積59.74平米の3LDK♪南向きのため陽当り良好♪
間取り図
価格
2,380万円
間取り
3LDK
広さ
59.74m2
階数
6階
方位
  • 最上階
  • 所有権
  • リフォームリノベーション
  • システムキッチン
  • 2階以上
  • 間取り図有り
おすすめポイント
楽々園電停・楽々園バス停ともに徒歩2分の好立地!キッチン・浴室・トイレ交換、壁・床・洗面などリフォーム済◎洋室と和室の両方が楽しめる間取り☆スーパー・コンビニ徒歩5分圏内で生活利便性良好♪

サンヴェール海老園

サンヴェール海老園
広島県広島市佐伯区海老園1
広島電鉄宮島線 佐伯区役所前駅 徒歩2分
広島電鉄宮島線 楽々園駅 徒歩9分
JR山陽本線 五日市駅 徒歩12分
築29年1ヶ月
7階建
間取り図
価格
2,699万円
間取り
2LDK
広さ
72.76m2
階数
2階
方位
  • 南向き
  • 駐車場あり
  • モニタ付インターホン
  • 即入居可
  • 所有権
  • リフォームリノベーション
  • システムキッチン
  • エレベーター
おすすめポイント
●2025年10月リフォーム完了●LDK広々20帖以上●駐車場確保済み●南向き・陽当たり良好・トランクルーム付き■□■□■□■□■□■□■□■□■□■□■□■□■□「近鉄の仲介」は広島エリア6営業所ネットワークにより不動産の売買はお任せください!お問合せはお気軽に五日市営業所フリーダイヤル「0120-135-728」へご連絡ください!すべてのお客様に「ありがとう」と言っていただけることを目標に安心・安全な不動産取引を通して、お客様のお役に立てるように活動してまいります!■□■□■□■□■□■□■□■□■□■□■□■□■□

サーパス楽々園

サーパス楽々園
広島県広島市佐伯区五日市中央1
広島電鉄宮島線 楽々園駅 徒歩4分
築37年3ヶ月
6階建
間取り図
価格
2,398万円
間取り
3LDK
広さ
75.24m2
階数
2階
方位
  • 南向き
  • モニタ付インターホン
  • 浴室乾燥機
  • 所有権
  • リフォームリノベーション
  • ペット相談可
  • システムキッチン
  • エレベーター
おすすめポイント
●室内全面リフォーム!(2026年5月中旬完成予定)●南向きバルコニー、陽当り・風通し良好です●大切なペットと暮らせます(細則有り)●LDKは広々16.9帖!ゆとりの広さです●オールフローリングです●リビング横には南向きのサンルーム付きです●広電「楽々園駅」徒歩4分、通勤通学に便利な立地です●五日市中央小学校 徒歩5分、お子様の通学も安心です●キッチンには食器洗浄機、浴室には暖房換気乾燥機付きです●ダイニングの掃き出し窓にニ重サッシを施工、防音性・断熱性に優れ結露も防止できます●洋室(1)(2)にもエアコン設置可能です●モニター付きインターホンで来訪者を確認できて安心です

ダイアパレスステーションプラザ楽々園

ダイアパレスステーションプラザ楽々園
広島県広島市佐伯区楽々園1
広島電鉄宮島線 楽々園駅 徒歩4分
築29年4ヶ月
11階建
間取り図
価格
2,880万円
間取り
3LDK
広さ
67.89m2
階数
6階
方位
  • 南向き
  • 駐車場あり
  • 浴室乾燥機
  • 所有権
  • リフォームリノベーション
  • システムキッチン
  • エレベーター
  • 2階以上
おすすめポイント
-物件のおすすめポイント-▼立地・広島電鉄宮島線「楽々園」徒歩4分▼特徴・お料理に集中しやすい独立型キッチン、食洗機付・各洋室に収納有・LDを含む3部屋から出入り可能なバルコニー▼設備・浴室乾燥機・オートロック▼2026年4月室内リフォーム済【交換】キッチン、UB、洗面化粧台、温水洗浄便座付トイレ 等【その他】クロス・フローリング張替 他▼周辺環境・スパーク五日市店 徒歩7分(約530m)・楽々園3丁目ちびっこひろば 徒歩5分(約380m)■ ご希望の住まい探しをお手伝いします ━━━━━・・・物件の詳細・ご相談はお気軽にお問い合わせください。

サーパス楽々園第2 2680万円【担当:所長】

サーパス楽々園第2 2680万円【担当:所長】
広島県広島市佐伯区五日市中央1
広島電鉄宮島線 楽々園駅 徒歩5分
JR山陽本線 五日市駅 徒歩20分
築30年9ヶ月
7階建
間取り図
価格
2,680万円
間取り
3LDK
広さ
82.18m2
階数
6階
方位
  • 南向き
  • 駐車場あり
  • 角部屋
  • 浴室乾燥機
  • 床暖房
  • 所有権
  • リフォームリノベーション
  • システムキッチン
おすすめポイント
リフォーム歴【2025年6月】・間取り変更(LDK拡張)・キッチン移設(対面式)・クロス、床張替、幅木取替、ダウンライト新設(一部センサー付)(LDK、LDK拡張部、廊下、洗面、トイレ)・LDK床暖房設置(3か所)・LDK防音工事・ドア交換(西側洋室、LDK拡張部、トイレ、洗面)・防水パン取替・浴室暖房乾燥機設置・ブレーカー取替・給湯器取替【2025年1月】【2024年10月】・LDKドア取替(ステンドグラス付)・洋室クロス、床張替、クローゼット新設、ドア取替【2018年2月】・全サッシ内窓設置(リクシル・インプラス)・キッチン、浴室、洗面台、トイレ取替他(トイレ自動開閉・自動洗浄・手洗い器付)

楽々園豊栄ハイツ

楽々園豊栄ハイツ
広島県広島市佐伯区楽々園5
広島電鉄宮島線 楽々園駅 徒歩7分
JR山陽本線 五日市駅 徒歩20分
築51年6ヶ月
7階建
間取り図
価格
1,140万円
間取り
3LDK
広さ
54.9m2
階数
2階
方位
  • 駐車場あり
  • モニタ付インターホン
  • 浴室乾燥機
  • 所有権
  • リフォームリノベーション
  • エレベーター
  • 2階以上
  • 間取り図有り
おすすめポイント
☆ 【2023年8月リフォーム内容】  間取り変更:和室→洋室(バルコニー側の部屋)  造作変更:押入→クローゼット   水回り設備交換:キッチン、洗面、浴室、トイレ  その他:インターホン新設、給水管・給湯管取り替え☆ イオンタウン楽々園まで徒歩6分(約425m)日々のお買い物に便利です☆ 楽々園小学校まで徒歩7分(約490m)小さなお子様のいらっしゃるご家庭にも安心の環境☆ 広電「楽々園」電停・「海老園一丁目」バス停まで徒歩7分(約500m)通勤・通学に便利です☆ 平坦地で徒歩や自転車でのおでかけもラクラク!駐輪場あり☆ JR「五日市」駅(約1600m)も利用可能です♪
NO PHOTO
価格
633万円
間取り
3LDK
広さ
57.33m2
階数
6階
方位
  • 所有権
  • 2階以上
おすすめポイント
●フレスタ海老園まで徒歩8分●楽々園小学校まで徒歩9分●五日市中学校まで徒歩9分※改装要◆◇自分だけの“一点モノ”の住まい探しをお手伝いします!◇◆  お客様とのご縁を大切にし、一人ひとりに最適なお住まい探しのご提案  お客様のこだわりを追求し、住み続けるほどに満足感が増していく  そんなどこにもない、唯一の住まいをご提供できるよう真心を込めて応対致します  ご案内・詳細な資料のご請求はお気軽にどうぞ♪  【フリーダイヤル:0120-920-681】  お住まい探しはクリエイタス(株)にお任せください!
間取り図
価格
1,198万円
間取り
2LDK
広さ
54.9m2
階数
4階
方位
  • 浴室乾燥機
  • 所有権
  • リフォームリノベーション
  • システムキッチン
  • 2階以上
  • 間取り図有り
おすすめポイント
R5年11月:内装フルリノベーション済♪ 周辺は生活施設の充実した暮らしやすい街です!!

ヴェルディ五日市中央ウエストタワー リフォーム済

ヴェルディ五日市中央ウエストタワー リフォーム済
広島県広島市佐伯区五日市中央3
広島電鉄宮島線 楽々園駅 徒歩7分
JR山陽本線 五日市駅 徒歩22分
築25年3ヶ月
14階建
間取り図
価格
2,890万円
間取り
2LDK
広さ
66m2
階数
8階
方位
  • 南向き
  • 駐車場あり
  • 角部屋
  • モニタ付インターホン
  • 浴室乾燥機
  • 即入居可
  • 所有権
  • リフォームリノベーション
おすすめポイント
高層階♪角住戸♪日当り・眺望良好♪全居室バルコニーに面しています♪約21.5帖の広々LDK!開放的な空間♪生活利便施設は徒歩圏内♪小学校も近くお子様の通学も安心☆≪ご見学できます♪お気軽にお問い合わせください♪≫○住まいのことなら≪住むりえ≫に何でもお気軽にご相談ください♪♪○お客様のニーズに最適な一戸建て、マンション、土地などの不動産情報をご提供致します!!○住宅ローンについて、わかりやすくご説明いたします。○住み替え、売却をお考えの方もお気軽にご相談ください♪♪

ヴェルディ五日市中央ウエストタワー

ヴェルディ五日市中央ウエストタワー
広島県広島市佐伯区五日市中央3
広島電鉄宮島線 楽々園駅 徒歩7分
JR山陽本線 五日市駅 徒歩22分
築25年3ヶ月
14階建
間取り図
価格
2,890万円
間取り
2LDK
広さ
66m2
階数
8階
方位
  • 南向き
  • 駐車場あり
  • 角部屋
  • 浴室乾燥機
  • 所有権
  • リフォームリノベーション
  • システムキッチン
  • エレベーター
おすすめポイント
●角部屋で日当り良好●生活利便の良いマンション●令和8年1月リフォーム済:キッチン・浴室・トイレ・洗面所・給湯器、壁・天井(クロス・塗装等)、玄関収納●温水洗浄便座●システムキッチン●ガスコンロ3口●浴室暖房乾燥機●2面バルコニー当日の急なご見学や、平日でのご見学もぜひご相談ください!ご見学の予約は → 右上の【見学する(無料)】をクリック!お急ぎの方は右上のフリーダイヤルまで! お待ちしています♪トータテのホームページもぜひご参照ください。

藤和ハイタウン美の里

藤和ハイタウン美の里
広島県広島市佐伯区美の里2
広島電鉄宮島線 山陽女学園前駅 徒歩9分
広島電鉄宮島線 楽々園駅 徒歩11分
JR山陽本線 廿日市駅 徒歩16分
築31年2ヶ月
11階建
間取り図
価格
2,580万円
間取り
3LDK
広さ
72.9m2
階数
7階
方位
南西
  • 所有権
  • リフォームリノベーション
  • システムキッチン
  • エレベーター
  • 2階以上
  • 食器洗浄乾燥機
  • 間取り図有り
おすすめポイント
●令和7年12月フルリノベーション完了●ペット飼育不可●町内会費負担金:200円/月●バイク置場:使用料500円/月●自転車置場:使用料100円/年 屋根付500円/月●駐車場:8 000~10 000円/月 希望者募集後、複数時抽選●内法:67.88㎡当日の急なご見学や、平日でのご見学もぜひご相談ください!ご見学の予約は → 右上の【見学する(無料)】をクリック!お急ぎの方は右上のフリーダイヤルまで! お待ちしています♪トータテのホームページもぜひご参照ください。

☆藤和ハイタウン美の里☆空家となりました!いつでも内覧可能です!

☆藤和ハイタウン美の里☆空家となりました!いつでも内覧可能です!
広島県広島市佐伯区美の里2
広島電鉄宮島線 山陽女学園前駅 徒歩10分
JR山陽本線 廿日市駅 徒歩19分
広島電鉄宮島線 楽々園駅 徒歩13分
築31年2ヶ月
11階建
間取り図
価格
1,990万円
間取り
3LDK
広さ
68.3m2
階数
7階
方位
南西
  • 駐車場あり
  • モニタ付インターホン
  • 即入居可
  • 所有権
  • システムキッチン
  • エレベーター
  • 2階以上
  • 間取り図有り
おすすめポイント
■平成25年5月室内改装済♪■生活利便施設が近くに揃った暮らしやすい住環境☆■全居室収納有り◎収納充実◎■子育て世代に人気の【リビング隣接 和室☆】【低金利で一つにまとめる住宅ローン】引越しを機に家電費用も住宅ローンに組入可能☆頭金・諸費用のない方でもまずはご相談ください♪車等の個人ローンも一本化して月々支払いを減額☆◇◆西洋トラスト株式会社◆◇住宅ローンに不安がある方、一度断られた方、お気軽にご相談くださいご自宅までの送迎いたします☆他社で掲載されている物件情報もまとめて資料をお送りします是非一度条件をお聞かせください♪

グランビュー隅の浜

グランビュー隅の浜
広島県広島市佐伯区隅の浜2
広島電鉄宮島線 山陽女学園前駅 徒歩13分
広島電鉄宮島線 楽々園駅 徒歩12分
JR山陽本線 廿日市駅 徒歩22分
築30年11ヶ月
10階建
間取り図
価格
990万円
間取り
2LDK
広さ
66.38m2
階数
8階
方位
南東
  • 駐車場あり
  • 所有権
  • 2階以上
  • 間取り図有り
おすすめポイント
●2023年に全面改装済:設備、フローリング、建具など(3ヶ月程度使用)●2LDKの間取りですが、建具を開くと1LDKになります●高台の高層階のため眺望が良好です●バリアフリー仕様●敷地外近隣に駐車場があります当日の急なご見学や、平日でのご見学もぜひご相談ください!ご見学の予約は → 右上の【見学する(無料)】をクリック!お急ぎの方は右上のフリーダイヤルまで! お待ちしています♪トータテのホームページもぜひご参照ください。
間取り図
価格
1,180万円
間取り
2LDK
広さ
63.12m2
階数
2階
方位
南東
  • 駐車場あり
  • 専用庭
  • モニタ付インターホン
  • 浴室乾燥機
  • 即入居可
  • 所有権
  • システムキッチン
  • エレベーター
おすすめポイント
☆生活に便利な施設が近隣に充実♪☆広電楽々園電停徒歩13分♪☆イオンタウン楽々園まで徒歩15分♪【ご見学予約受付中♪ お気軽にお問い合わせください。】☆平成29年4月 率内一部リフォーム済み♪・間取り変更 ⇒ 和室をLDKと一体に、3LDKから2LDKへ・LDKのクロス、フローリング張替・洗面台、ユニットバス交換・テレビボード、ワークカウンター新設・ウッドタイル新設(専用庭部分)○住まいのことなら≪住むりえ≫に何でもお気軽にご相談ください♪♪○住宅ローンについて、わかりやすくご説明いたします。○住み替え、売却をお考えの方もお気軽にご相談ください♪♪
間取り図
価格
650万円
間取り
2SLDK
広さ
62.95m2
階数
2階
方位
南東
  • 所有権
  • システムキッチン
  • 2階以上
  • 間取り図有り
おすすめポイント
システムキッチン、対面式キッチン、陽当り良好、オーシャンビュー、通風良好、眺望良好、山が見える、シャワー付洗面化粧台、東南向き、温水洗浄便座、納戸

コープ野村五日市グリーンスクエア隅の浜 リノベ物件

コープ野村五日市グリーンスクエア隅の浜 リノベ物件
広島県広島市佐伯区隅の浜2
広島電鉄宮島線 楽々園駅 徒歩11分
広島電鉄宮島線 山陽女学園前駅 徒歩12分
JR山陽本線 廿日市駅 徒歩22分
築36年3ヶ月
7階建
間取り図
価格
2,490万円
間取り
3LDK
広さ
71.06m2
階数
4階
方位
  • モニタ付インターホン
  • 浴室乾燥機
  • 即入居可
  • 所有権
  • リフォームリノベーション
  • システムキッチン
  • エレベーター
  • 2階以上
おすすめポイント
利便と静寂が同居する平坦な地♪バルコニーに面した明るいLDK♪各居室収納付き♪オートロック機能・宅配Box完備♪公園が近く子育て世代にも最適☆「イオンタウン楽々園」まで徒歩15分♪≪ご見学できます♪お気軽にお問い合わせください♪≫○住まいのことなら≪住むりえ≫に何でもお気軽にご相談ください♪♪○お客様のニーズに最適な一戸建て、マンション、土地などの不動産情報をご提供致します!!○住宅ローンについて、わかりやすくご説明いたします。○住み替え、売却をお考えの方もお気軽にご相談ください♪♪

コープ野村五日市グリーンスクエア隅の浜【リフォーム済】

コープ野村五日市グリーンスクエア隅の浜【リフォーム済】
広島県広島市佐伯区隅の浜2
広島電鉄宮島線 楽々園駅 徒歩11分
広島電鉄宮島線 山陽女学園前駅 徒歩12分
築36年3ヶ月
7階建
間取り図
価格
2,490万円
間取り
3LDK
広さ
71.06m2
階数
4階
方位
  • 駐車場あり
  • 浴室乾燥機
  • 所有権
  • リフォームリノベーション
  • システムキッチン
  • エレベーター
  • 2階以上
  • 宅配ボックス
おすすめポイント
■2026年3月リフォーム完了■即日ご案内もできます■自己資金0円でも低金利でご購入いただけます!■敷地内平面駐車場あり新生活応援フェア実施中♪マンションをお探しの方は当社にお任せください♪住宅ローンもお任せください♪頭金0円からでもOK!住宅ローンが不安!月々の返済を抑えたい!資金計画のお悩みもお気軽にご相談ください。☆まずはその目で現地をご覧ください!平日も見学可能です(要予約)お電話またはメールにて事前にご連絡ください。

コープ野村五日市グリーンスクエア隅の浜 【担当:岩井まで】

コープ野村五日市グリーンスクエア隅の浜 【担当:岩井まで】
広島県広島市佐伯区隅の浜2
広島電鉄宮島線 山陽女学園前駅 徒歩13分
広島電鉄宮島線 楽々園駅 徒歩11分
JR山陽本線 廿日市駅 徒歩22分
築36年3ヶ月
7階建
間取り図
価格
2,490万円
間取り
3LDK
広さ
71.06m2
階数
4階
方位
  • 駐車場あり
  • 浴室乾燥機
  • 所有権
  • リフォームリノベーション
  • システムキッチン
  • エレベーター
  • 2階以上
  • 食器洗浄乾燥機
おすすめポイント
□■□■□■□■□■□■□■□■□■□■□■□■□「近鉄の仲介」は広島エリア6営業所体制で他社に負けないネットワークを駆使して地域のみなさまのお役に立ちます!売却・住替・賃貸・購入・買取・相続などお問合せはお気軽に、フリーダイヤル「0120-135-728」へご連絡ください!すべてのお客様に「ありがとう」と言っていただけることを目標に、安心・安全な不動産取引を通して、お客様のお役に立てるように活動してまいります。不動産のことなら、「近鉄不動産株式会社 五日市営業所」へお任せください。不動産に関すること、何でもご相談ください!■□■□■□■□■□■□■□■□■□■□■□■□■

五日市シーサイドハイツ

五日市シーサイドハイツ
広島県広島市佐伯区海老園4
広島電鉄宮島線 佐伯区役所前駅 徒歩14分
広島電鉄宮島線 楽々園駅 徒歩22分
築51年4ヶ月
12階建
間取り図
価格
890万円
間取り
3LDK
広さ
72.41m2
階数
10階
方位
南東
  • 駐車場あり
  • 所有権
  • エレベーター
  • 2階以上
  • 間取り図有り
おすすめポイント
-物件のおすすめポイント-▼特徴・朝日が差し込む南東向き住戸・LDKは約11.6帖、隣接和室と一体利用も可能・空間を広く使える壁付キッチン・各和室や廊下に収納スペースを確保・南東向きバルコニーから海が望めます(天候による)・敷地内にお子様の遊び場有▼周辺環境・スーパー「フレスタ海老園店」徒歩4分(約300m)・海老園第一公園 徒歩4分(約280m)・広島市立五日市南小学校 徒歩9分(約700m)・広島市立五日市南中学校 徒歩7分(約490m)■ ご希望の住まい探しをお手伝いします ━━━━━・・・物件の詳細・ご相談はお気軽にお問い合わせください。
間取り図
価格
1,349万円
間取り
2LDK
広さ
68.97m2
階数
6階
方位
南西
  • 即入居可
  • 所有権
  • リフォームリノベーション
  • エレベーター
  • 2階以上
  • 間取り図有り
おすすめポイント
5/29(金)~6/1(月)予約制見学会開催※当日予約OK。ご希望日をお知らせください。【リフォーム内容】●内装工事間取変更、フローリング上張り、クッションフロア張替え、システムキッチン新品交換、ユニットバス新品交換、温水洗浄便座トイレ新品交換、シャワー付き洗面化粧台新品交換、建具新品交換、クロス張替え、クローゼット新品交換、シューズボックス新品交換、給湯器新品交換、照明LED新品交換【周辺施設】・五日市南小学校まで1400m(徒歩18分)・五日市南中学校まで180m(徒歩3分)・広島電鉄宮島線【楽々園駅】まで650m(徒歩8分)【おすすめポイント】・新品の照明器具

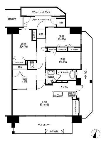
グランドメゾン五日市美の里弐番館 フルリフォーム済

グランドメゾン五日市美の里弐番館 フルリフォーム済
広島県広島市佐伯区美の里1
広島電鉄宮島線 楽々園駅 徒歩14分
広島電鉄宮島線 山陽女学園前駅 徒歩16分
築30年8ヶ月
10階建
間取り図
価格
2,599万円
間取り
4LDK
広さ
87.1m2
階数
6階
方位
  • 南向き
  • 駐車場あり
  • 角部屋
  • モニタ付インターホン
  • 浴室乾燥機
  • 即入居可
  • 所有権
  • リフォームリノベーション
おすすめポイント
はつかいち大橋~宮島まで海風景を堪能できます♪♪2面バルコニー♪採光・通風・眺望良好♪使い勝手の良いL型キッチン☆各居室収納完備♪平坦地で徒歩や自転車でのお出かけも楽々♪家族みんなが暮らしやすい住環境♪便利な立地でゆとりと笑顔が自然にあふれます☆≪ご見学できます♪お気軽にお問い合わせください♪≫○住まいのことなら≪住むりえ≫に何でもお気軽にご相談ください♪♪○お客様のニーズに最適な一戸建て、マンション、土地などの不動産情報をご提供致します!!○住宅ローンについて、わかりやすくご説明いたします。○住み替え、売却をお考えの方もお気軽にご相談ください♪♪

パラッシオ楽々園シービスタ フルリフォーム物件

パラッシオ楽々園シービスタ フルリフォーム物件
広島県広島市佐伯区楽々園6
広島電鉄宮島線 楽々園駅 徒歩14分
広島電鉄宮島線 佐伯区役所前駅 徒歩17分
築24年4ヶ月
14階建
間取り図
価格
3,499万円
間取り
3LDK
広さ
77.07m2
階数
9階
方位
  • 南向き
  • 駐車場あり
  • モニタ付インターホン
  • 浴室乾燥機
  • 即入居可
  • 所有権
  • リフォームリノベーション
  • ペット相談可
おすすめポイント
ペット飼育可(細則有)☆南面ワイドバルコニーから眺望良好♪ファミリータイプの3LDK☆高層階!陽当り・通風・眺望良好♪オール電化で快適エコ生活♪LDKは約17.9帖と広々♪開放感あふれる対面式キッチン♪オートロック機能・宅配Box完備♪スーパー・スポーツセンター・小中学校徒歩圏内♪全世代におススメの生活しやすい住環境です☆≪ご見学できます♪お気軽にお問い合わせください≫○お客様のニーズに最適な一戸建て、マンション、土地などの不動産情報をご提供致します!○住宅ローンについて、わかりやすくご説明いたします。○住み替え、売却をお考えの方もお気軽にご相談ください♪♪

パラッシオ楽々園シービスタ

パラッシオ楽々園シービスタ
広島県広島市佐伯区楽々園6
広島電鉄宮島線 楽々園駅 徒歩14分
広島電鉄宮島線 佐伯区役所前駅 徒歩18分
築24年4ヶ月
14階建
間取り図
価格
3,499万円
間取り
3LDK
広さ
77.07m2
階数
9階
方位
  • 南向き
  • 駐車場あり
  • 角部屋
  • モニタ付インターホン
  • 浴室乾燥機
  • 即入居可
  • 所有権
  • リフォームリノベーション
おすすめポイント
◇「海が見える」以上の贅沢を。バルコニーから広がるパノラマビューが日常に。◇2026年3月リフォーム完了!キッチン・浴室・トイレ等、気になる水回りは全て新品!◇ゆとりのLDK×モダンな和室。家族の笑顔が自然と集まる、光あふれる住空間◇ペット相談可◇駐車場7500円/月 確保済■住宅ローン相談会も好評実施中 お客様それぞれに最適な資金プランをご提案致します■ご縁を大切に!全力でサポート致します■株式会社富士不動産販売■フリーダイヤル0120-32-2882(通話料無料)■電話(082)292-6633■ご質問やご相談等、何なりとお申し付け下さい♪

グランソシエ五日市 3LDK

グランソシエ五日市 3LDK
広島県広島市佐伯区三宅2
広島電鉄宮島線 山陽女学園前駅 徒歩18分
広島電鉄宮島線 楽々園駅 徒歩21分
築26年10ヶ月
14階建
間取り図
価格
1,480万円
間取り
3LDK
広さ
69.53m2
階数
9階
方位
南西
  • 駐車場あり
  • モニタ付インターホン
  • 即入居可
  • 所有権
  • リフォームリノベーション
  • システムキッチン
  • エレベーター
  • 2階以上
おすすめポイント
・閑静な住宅街に佇む大規模マンション!!・高層階につき日当り、通風、眺望良好♪・バルコニーに面した明るいLDK♪・家族の会話が弾む対面式キッチン♪・オートロック機能、宅配Box完備♪・買物施設は徒歩圏内♪*照明・カーテン・55インチTV付*≪ご見学できます♪お気軽にお問い合わせください♪≫○住まいのことなら≪住むりえ≫に何でもお気軽にご相談ください♪♪○お客様のニーズに最適な一戸建て、マンション、土地などの不動産情報をご提供致します!!○住宅ローンについて、わかりやすくご説明いたします。○住み替え、売却をお考えの方もお気軽にご相談ください♪

Jcity五日市アベニュー リノベーション物件

Jcity五日市アベニュー リノベーション物件
広島県広島市佐伯区千同1
広島電鉄宮島線 楽々園駅 徒歩23分
JR山陽本線 五日市駅 徒歩27分
築29年
10階建
間取り図
価格
2,490万円
間取り
2SLDK
広さ
69.24m2
階数
3階
方位
南東
  • 駐車場あり
  • モニタ付インターホン
  • 浴室乾燥機
  • 即入居可
  • 所有権
  • リフォームリノベーション
  • システムキッチン
  • エレベーター
おすすめポイント
南東向き♪日当り・通風良好♪平面駐車場1台継承可能♪開放感あふれる対面式キッチン♪各居室収納完備♪セキュリティ配慮されたオートロック仕様♪お出掛けラクラク!最寄りのバス停まで徒歩2分!西広島バイパス近郊に立地♪≪ご見学できます♪お気軽にお問い合わせください♪≫○住まいのことなら≪住むりえ≫に何でもお気軽にご相談ください♪♪○お客様のニーズに最適な一戸建て、マンション、土地などの不動産情報をご提供致します!!○住宅ローンについて、わかりやすくご説明いたします。○住み替え、売却をお考えの方もお気軽にご相談ください♪♪

Jcity五日市アベニュー【リフォーム済】

Jcity五日市アベニュー【リフォーム済】
広島県広島市佐伯区千同1
広島電鉄宮島線 楽々園駅 徒歩23分
JR山陽本線 五日市駅 徒歩27分
築29年
10階建
間取り図
価格
2,490万円
間取り
2SLDK
広さ
69.24m2
階数
3階
方位
南東
  • 駐車場あり
  • 浴室乾燥機
  • 所有権
  • リフォームリノベーション
  • システムキッチン
  • エレベーター
  • 2階以上
  • 間取り図有り
おすすめポイント
■2026年2月リフォーム完了■即日ご案内もできます■自己資金0円でも低金利でご購入いただけます!■平面駐車場1台継承可能新生活応援フェア実施中♪マンションをお探しの方は当社にお任せください♪住宅ローンもお任せください♪頭金0円からでもOK!住宅ローンが不安!月々の返済を抑えたい!資金計画のお悩みもお気軽にご相談ください。☆まずはその目で現地をご覧ください!平日も見学可能です(要予約)お電話またはメールにて事前にご連絡ください。

Jcity五日市アベニュー

Jcity五日市アベニュー
広島県広島市佐伯区千同1
広島電鉄宮島線 楽々園駅 徒歩23分
広島電鉄宮島線 佐伯区役所前駅 徒歩27分
JR山陽本線 五日市駅 徒歩27分
築29年
10階建
間取り図
価格
2,490万円
間取り
2SLDK
広さ
69.24m2
階数
3階
方位
南東
  • 浴室乾燥機
  • 所有権
  • リフォームリノベーション
  • システムキッチン
  • エレベーター
  • 2階以上
  • 食器洗浄乾燥機
  • 間取り図有り
おすすめポイント
●新規リノベーション物件(令和8年2月完了済):システムキッチン・ユニットバス(浴室換気乾燥暖房機付)・洗面化粧台・建具・トイレ・防水パン新規交換、フローリング・クロス全室張替、フロアタイル新規張替、ハウスクリーニング等●エレベーター●オートロック●アフターサービス保証付(最長10年)●水まわりトラブル365日対応●平面駐車場継承可能 月額8400円当日の急なご見学や、平日でのご見学もぜひご相談ください!ご見学の予約は → 右上の【見学する(無料)】をクリック!お急ぎの方は右上のフリーダイヤルまで! お待ちしています♪トータテのホームページもぜひご参照ください。

J’シティ五日市アベニュー

J’シティ五日市アベニュー
広島県広島市佐伯区千同1
広島電鉄宮島線 楽々園駅 徒歩23分
築29年
10階建
間取り図
価格
2,690万円
間取り
2SLDK
広さ
69.24m2
階数
3階
方位
南東
  • モニタ付インターホン
  • 所有権
  • リフォームリノベーション
  • システムキッチン
  • エレベーター
  • 2階以上
  • 食器洗浄乾燥機
  • 間取り図有り
おすすめポイント
~リフォーム内容(2026年2月完成)~キッチン・浴室・洗面台・トイレ・食洗機・建具新規交換、壁クロス・床材貼替え、ハウスクリーニングなど~マンション~・敷地内平面駐車場1台継承可 (月額使用料8,400円、駐車場区画には車のサイズ等に制限があり、2026年2月28日時点)・玄関エントランスはカメラ付きオートロックを採用~周辺環境~・広電宮島線「楽々園」駅 徒歩23分・広島電鉄バス「千同橋」バス停 徒歩3分・フレスタ波出石店 徒歩9分・ユアーズ三筋店 徒歩10分・セブン-イレブン 広島五日市千同店 徒歩2分

ダイアパレス五日市弐番館

ダイアパレス五日市弐番館
広島県広島市佐伯区千同2
広島電鉄宮島線 楽々園駅 徒歩25分
築30年10ヶ月
5階建
間取り図
価格
1,980万円
間取り
3LDK
広さ
67.8m2
階数
1階
方位
南西
  • 専用庭
  • 所有権
  • 間取り図有り
おすすめポイント
■3LDKファミリータイプのお部屋■対面キッチンで家族との会話が弾みます♪■戸建感覚でお住まいいただける「テラス」・「専用庭」■西広島バイパスへのアクセス良好♪

佐伯区千同1 2490万円  JCity五日市アベニュー

佐伯区千同1 2490万円  JCity五日市アベニュー
広島県広島市佐伯区千同1
広島電鉄宮島線 楽々園駅 徒歩25分
JR山陽本線 五日市駅 徒歩27分
築29年
10階建
間取り図
価格
2,490万円
間取り
2SLDK
広さ
69.24m2
階数
3階
方位
  • 駐車場あり
  • モニタ付インターホン
  • 浴室乾燥機
  • 即入居可
  • 所有権
  • リフォームリノベーション
  • システムキッチン
  • エレベーター
おすすめポイント
☆LDKはアウトフレーム工法により柱の出っ張りが少なく、家具配置もしやすいすっきりとした空間。☆デザイン・設備・立地のバランスが整った、完成度の高いリノベーション住戸です。【建物特徴】☆瑕疵保証付(不動産会社独自)☆適合リノベーション☆省エネ給湯器☆システムキッチン☆浴室乾燥機☆陽当り良好☆全居室収納☆LDK15畳以上☆シャワー付洗面化粧台☆対面式キッチン☆フローリング張替☆温水洗浄便座☆節水型トイレ☆全居室フローリング☆眺望良好☆ウォークインクローゼット☆小学校 徒歩10分以内☆平坦地☆エレベーター☆駐輪場☆納戸☆食器洗乾燥機

グランソシエ五日市

グランソシエ五日市
広島県広島市佐伯区三宅2
広島電鉄宮島線 楽々園駅 徒歩29分
広島電鉄宮島線 山陽女学園前駅 徒歩33分
広島電鉄宮島線 佐伯区役所前駅 徒歩37分
築26年10ヶ月
14階建
間取り図
価格
1,480万円
間取り
3LDK
広さ
69.53m2
階数
9階
方位
南西
  • 駐車場あり
  • モニタ付インターホン
  • 所有権
  • リフォームリノベーション
  • システムキッチン
  • 2階以上
  • 宅配ボックス
  • 間取り図有り
おすすめポイント
照明、カーテン、55インチテレビ付きです。閑静な住宅地 バス停まで徒歩6分の立地です。【取り扱い物件7087件 その内未公開物件3094件ご用意しています】日東リバティのホームページもぜひご覧ください。https://www.nitto-f.com/〇広島市立五日市観音小学校まで 徒歩7分〇広島市立五日市観音中学校まで 徒歩15分〇あい保育園三宅まで 徒歩16分〇ユアーズ三筋店まで 徒歩19分〇緑ケ丘バス停まで 徒歩6分

【上質感リフォーム】サンヴェール海老園

【上質感リフォーム】サンヴェール海老園
広島県広島市佐伯区海老園1
広島電鉄宮島線 佐伯区役所前駅 徒歩4分
広島電鉄宮島線 楽々園駅 徒歩10分
JR山陽本線 五日市駅 徒歩12分
築29年1ヶ月
7階建
間取り図
価格
2,649万円
間取り
2LDK
広さ
72.76m2
階数
2階
方位
  • 南向き
  • 駐車場あり
  • モニタ付インターホン
  • 浴室乾燥機
  • 即入居可
  • 所有権
  • リフォームリノベーション
  • システムキッチン
おすすめポイント
◆ご見学希望やご質問等、下の青い電話ボタンをタップ!又は、お気軽に公式LINEまで!ID:@791yviha◆YouTube・インスタは関連リンクへ【スタッフいち推しポイント】◎R7年10月リフォーム済◎アフターサービス保証付◎住宅ローン減税利用OK◎回遊動線キッチン&勝手口◎2重サッシ&無垢の建具◎床下収納庫◎全室壁掛エアコン設置可◎敷地内平面駐車場確保◎キッズスペース&トランクルーム◆こんなこともできます!・様々な住宅ローンプランニング(おまとめローン等)・住宅ローン事前審査一括申込・税理士・司法書士個別相談・ファイナンシャルプランナー個別相談

佐伯区五日市中央3 2890万円  ヴェルディ五日市中央ウエストタワー

佐伯区五日市中央3 2890万円  ヴェルディ五日市中央ウエストタワー
広島県広島市佐伯区五日市中央3
広島電鉄宮島線 楽々園駅 徒歩9分
JR山陽本線 五日市駅 徒歩22分
築25年3ヶ月
14階建
間取り図
価格
2,890万円
間取り
2LDK
広さ
66m2
階数
8階
方位
  • 南向き
  • 角部屋
  • モニタ付インターホン
  • 浴室乾燥機
  • 即入居可
  • 所有権
  • リフォームリノベーション
  • システムキッチン
おすすめポイント
☆2001年築・66㎡のゆとりある2LDK。☆角部屋で日当り良好♪令和8年1月リフォーム済で気持ちよく新生活を始められます。☆角住戸×2面バルコニーで開放感のある住まいです。【建物特徴】☆2沿線以上利用可☆スーパー 徒歩10分以内☆内装リフォーム☆南向き☆システムキッチン☆浴室乾燥機☆角住戸☆陽当り良好☆全居室収納☆駅まで平坦☆閑静な住宅地☆シャワー付洗面化粧台☆2面以上バルコニー☆南面バルコニー☆温水洗浄便座☆TVモニタ付インターホン☆前面棟無☆通風良好☆全居室フローリング☆眺望良好☆小学校 徒歩10分以内☆平坦地☆エレベーター☆宅配ボックス☆駐輪場

【上質リノベ】コープ野村五日市グリーンスクエア隅の浜

【上質リノベ】コープ野村五日市グリーンスクエア隅の浜
広島県広島市佐伯区隅の浜2
広島電鉄宮島線 楽々園駅 徒歩10分
広島電鉄宮島線 山陽女学園前駅 徒歩12分
広島電鉄宮島線 広電廿日市駅 徒歩19分
築36年3ヶ月
7階建
間取り図
価格
2,490万円
間取り
3LDK
広さ
71.06m2
階数
4階
方位
  • 駐車場あり
  • 浴室乾燥機
  • 即入居可
  • 所有権
  • リフォームリノベーション
  • システムキッチン
  • エレベーター
  • 2階以上
おすすめポイント
◆ご見学希望やご質問等、下の青い電話ボタンをタップ!又は、お気軽に公式LINEまで!ID:@791yviha◆YouTube・インスタは関連リンクへ【スタッフいち推しポイント】◎R8年3月リノベ済◎アフターサービス保証付◎水回りトラブル365日対応◎デュアリス・キッチン◎ライトコート◎全室壁掛エアコン設置可能◎浴室壁全周プレミアムパネル◎勝手口のある家事ラク動線◎平面駐車場複数台空有り◆こんなこともできます!・様々な住宅ローンプランニング (おまとめローン等)・住宅ローン事前審査一括申込・税理士・司法書士個別相談・ファイナンシャルプランナー個別相談

コープ野村五日市グリーンスクエア隅の浜

コープ野村五日市グリーンスクエア隅の浜
広島県広島市佐伯区隅の浜2
広島電鉄宮島線 楽々園駅 徒歩11分
広島電鉄宮島線 山陽女学園前駅 徒歩13分
JR山陽本線 廿日市駅 徒歩22分
築36年3ヶ月
7階建
間取り図
価格
2,490万円
間取り
3LDK
広さ
71.06m2
階数
4階
方位
  • 駐車場あり
  • モニタ付インターホン
  • 浴室乾燥機
  • 所有権
  • リフォームリノベーション
  • システムキッチン
  • エレベーター
  • 2階以上
おすすめポイント
☆ 【2026年3月リフォーム内容】 ・水回り設備交換:キッチン・浴室・トイレ・洗面台 ・内装:壁・床・全室 ・その他:建具・防水パン・ハウスクリーニング など☆ 爽やかな陽光がふり注ぐ東向きの3LDK☆ 敷地内平面駐車場に空きあり(8000~10000円/月)2025年11月現在☆ 不在時の荷物の受け取りも安心な宅配ボックス付☆ 閑静な住宅地で子育て世代におすすめ♪☆ 広電・JR・バスの3路線利用可!通勤通学に便利です☆ 広電「楽々園」電停まで徒歩10分(約750m)・JR「廿日市」駅まで徒歩18分(約1400m)・「隅の浜」バス停まで徒歩5分(約400m)
間取り図
価格
1,650万円
間取り
3LDK
広さ
64.77m2
階数
2階
方位
  • 即入居可
  • 所有権
  • 2階以上
  • 間取り図有り

410万円ダウン!大幅値下げ!6/7リフォーム相談会開催!ヴェルパーク

410万円ダウン!大幅値下げ!6/7リフォーム相談会開催!ヴェルパーク
広島県広島市佐伯区三宅1
広島電鉄宮島線 楽々園駅 徒歩12分
JR山陽本線 五日市駅 徒歩26分
築29年7ヶ月
9階建
間取り図
価格
1,980万円
間取り
4LDK
広さ
80.11m2
階数
8階
方位
  • 南向き
  • 駐車場あり
  • 角部屋
  • 浴室乾燥機
  • 即入居可
  • 所有権
  • システムキッチン
  • エレベーター
おすすめポイント
大幅価格改定!2390万円→1980万円 410万円ダウン!(旧価格公示日R7/4/7 新価格R8/5/16~)■6月7日(日)オープンハウス リフォーム相談会開催■※完全予約制※ 事前に必ずご予約ください。このチャンスぜひ一度ご覧ください。■商業施設が徒歩圏内の【生活完結型】の抜群の立地■◆宮島まで一望できる開放的な眺望◆希少性の高い3面バルコニーの4LDK角住戸◆所在階ワンフロアー2邸のプライバシー重視の階◆南向きLDK+和室の自然光が満ちる贅沢なワイドスパン設計。◆平面駐車場◆スーパー、コンビニ徒歩5分以内

ファミール五日市中央

ファミール五日市中央
広島県広島市佐伯区五日市中央4
広島電鉄宮島線 楽々園駅 徒歩14分
広島電鉄宮島線 佐伯区役所前駅 徒歩17分
JR山陽本線 五日市駅 徒歩22分
築31年9ヶ月
7階建
間取り図
価格
2,100万円
間取り
3LDK
広さ
71.1m2
階数
5階
方位
  • 南向き
  • 角部屋
  • モニタ付インターホン
  • 即入居可
  • 所有権
  • システムキッチン
  • エレベーター
  • 2階以上
おすすめポイント
◆◇◆◇◆◇◆◇◆◇◆◇◆◇◆◇◆◇◆◇◆◇◆〇陽当たり、通風良好な2面バルコニー!〇LDKは14帖、家族みんなでくつろげる開放的な空間♪〇お好きな改装も可能な現状渡し物件!好みのリノベーションや家具新調可能♪◆◇◆◇◆◇◆◇◆◇◆◇◆◇◆◇◆◇◆◇◆◇◆ご内覧ご希望の方は「SUUMOを見た」で082-532-5533のJDCまでお電話ください。その他、資料などご質問等もご遠慮なくお問い合わせください。皆様のお問い合わせJDC一同、心よりお待ちしております。

【上質リノベ】Jcity五日市アベニュー

【上質リノベ】Jcity五日市アベニュー
広島県広島市佐伯区千同1
広島電鉄宮島線 楽々園駅 徒歩25分
広島電鉄宮島線 佐伯区役所前駅 徒歩27分
JR山陽本線 五日市駅 徒歩29分
築29年
10階建
間取り図
価格
2,490万円
間取り
2SLDK
広さ
69.24m2
階数
3階
方位
南東
  • 駐車場あり
  • モニタ付インターホン
  • 浴室乾燥機
  • 即入居可
  • 所有権
  • リフォームリノベーション
  • システムキッチン
  • エレベーター
おすすめポイント
◆ご見学希望やご質問等、 下の青い電話ボタンをタップ! 又は、お気軽に公式LINEまで! ID:@791yviha◆YouTube・インスタは関連リンクへ【スタッフいち推しポイント】◎R8年2月ハイブランドリノベ済◎アフターサービス保証付◎水回りトラブル365日対応◎アクシスキッチン◎サーキュレーション動線◎LDKアウトフレーム工法◎全室壁掛エアコン設置可能◎平面駐車場確保2台目も可◆こんなこともできます!・様々な住宅ローンプランニング (おまとめローン等)・住宅ローン事前審査一括申込・税理士・司法書士個別相談・ファイナンシャルプランナー個別相談

☆好立地のフルリフォームマンション限定販売☆

☆好立地のフルリフォームマンション限定販売☆
広島県広島市佐伯区隅の浜2
広島電鉄宮島線 山陽女学園前駅 徒歩12分
広島電鉄宮島線 楽々園駅 徒歩11分
JR山陽本線 廿日市駅 徒歩20分
築36年3ヶ月
7階建
間取り図
価格
2,490万円
間取り
3LDK
広さ
71.06m2
階数
4階
方位
  • 駐車場あり
  • モニタ付インターホン
  • 浴室乾燥機
  • 即入居可
  • 所有権
  • リフォームリノベーション
  • システムキッチン
  • エレベーター
おすすめポイント
【好立地のフルリフォームマンション】限定1部屋のみ登場!平面駐車場2台OK♪駅、小中学校、スーパー、薬局などそばの好立地♪浴室暖房乾燥機など設備充実♪ご案内の際は、スタッフは外でお待ちしておりますので、お客様だけで内覧頂けます。平日・休日・祝日、朝・夜!いつでもご内覧いただけます♪お仕事帰りの夜間や早朝等でも、お受け致しますのでお気軽にご相談下さい♪お急ぎの方は、お電話でお問い合わせ下さい。☆当社独自の大応援キャンペーン中☆ご契約のお客様は商品券10万円分をプレゼント!!他物件のご案内も一緒にお受け致します♪気になる方は、まずはお問い合わせください(^^)

☆人気マンションがフルリフォームで限定販売☆

☆人気マンションがフルリフォームで限定販売☆
広島県広島市佐伯区千同1
広島電鉄宮島線 楽々園駅 徒歩23分
JR山陽本線 五日市駅 徒歩27分
築29年
10階建
間取り図
価格
2,490万円
間取り
3LDK
広さ
69.24m2
階数
3階
方位
南東
  • 駐車場あり
  • モニタ付インターホン
  • 浴室乾燥機
  • 即入居可
  • 所有権
  • リフォームリノベーション
  • システムキッチン
  • エレベーター
おすすめポイント
【好立地のフルリフォームマンション】限定1部屋のみ登場♪小中学校、スーパーなどそばの好立地♪食洗器、浴室暖房乾燥機など設備充実♪ご案内の際は、スタッフは外でお待ちしておりますので、お客様だけで内覧頂けます。平日・休日・祝日、朝・夜!いつでもご内覧いただけます♪お仕事帰りの夜間や早朝等でも、お受け致しますのでお気軽にご相談下さい♪お急ぎの方は、お電話でお問い合わせ下さい。☆当社独自の大応援キャンペーン中☆ご契約のお客様は商品券10万円分をプレゼント!!他物件のご案内も一緒にお受け致します♪気になる方は、まずはお問い合わせください(^^)

エンゼルハイム五日市中央

エンゼルハイム五日市中央
広島県広島市佐伯区五日市中央4
広島電鉄宮島線 楽々園駅 徒歩19分
JR山陽本線 五日市駅 徒歩23分
築36年5ヶ月
5階建
間取り図
価格
1,480万円
間取り
3LDK
広さ
77.76m2
階数
4階
方位
南東
  • 所有権
  • リフォームリノベーション
  • システムキッチン
  • エレベーター
  • 2階以上
  • 間取り図有り
おすすめポイント
2026年1月上旬 フルリノベーション工事完成♪77.76㎡の3LDKと間取りも広々♪エレベーター・オートロック完備♪
チェックした物件を一括で
  • チェックした物件をまとめて
105
表示建物数 12 次へ

条件を選択

価格
間取り
広さ
築年数
駅からの時間
人気のこだわり条件

さらに詳しくこだわり条件を選択

位置
  • new
部屋環境
建物設備
収納
セキュリティ
駐車場・駐輪場
条件
特徴
性能・評価
瑕疵保険
お得な条件
画像・動画
情報の新しさ
フリーワード
楽々園駅のおすすめ新築マンション

楽々園駅の新築マンション情報をもっと見る

広島市佐伯区の暮らしデータ

人口などの統計情報

世帯数 554462世帯
人口総数 1173543人
転入者数 60562人
転入率(人口1000人当たり)
51.61人
転出者数 60819人
転出率(人口1000人当たり)
51.83人
土地平均価格
住宅地
119825円/m2
商業地
589937円/m2

結婚・育児の助成金

子育て関連の独自の取り組み 【赤ちゃん安心おでかけ事業】地域の身近な場所でおむつ替え・授乳等ができる施設「にこにこベビールーム」を提供。
出産祝い なし
公立保育所数 87所(うち0歳児保育を実施している保育所:69所)
私立保育所数 86所(うち0歳児保育を実施している保育所:85所)
保育所入所待機児童数 0人
認定こども園数 80園 預かり保育実施園数 公立:0園 私立:49園
学校給食 【小学校】完全給食【中学校】完全給食 家庭弁当等との選択制/デリバリー形式[運搬:ランチボックス、内容:完全給食]
公立中学校の学校選択制 一部実施
子ども・学生等医療費助成<通院>対象年齢 中学校卒業まで 子ども・学生等医療費助成<入院>対象年齢 中学校卒業まで

広島市佐伯区の治安・ごみ収集情報

公共料金・インフラ

ガス料金(22m3使用した場合の月額) 広島ガス株式会社5505円
水道料金(口径20mmで20m3の月額) 広島市2453円
下水道料金(20m3を使用した場合の月額) 広島市2260円
下水道普及率 96.5%

安心・安全

建物火災出火件数 147件
人口10000人当たり
1.22件
刑法犯認知件数 7080件
人口1000人当たり
5.90件
ハザード・防災マップ あり

医療

一般病院総数 73ヶ所
一般診療所総数 1216ヶ所
小児科医師数 250人
小児人口10000人当たり
17.14人
産婦人科医師数 129人
15~49歳女性人口1万人当たり
5.56人
介護保険料基準額(月額) 6400円

ごみ

家庭ごみ収集(可燃ごみ) 無料
備考
-
家庭ごみの分別方式 7分別12種〔可燃ごみ ペットボトル リサイクルプラ その他プラ 不燃ごみ(ライター、陶磁器・その他不燃ごみ) 資源ごみ(紙類[新聞紙、ダンボール、雑誌・チラシ・菓子箱等]、ガラス類、金属類、布類) 有害ごみ〕
家庭ごみの戸別収集 未実施
粗大ごみ収集 あり
備考
有料。事前申込制。大型ごみ受付センターへの予約が必要。納付券を貼り付けたものを収集。大型ごみあんしんサポート(住宅内からの搬出を支援)あり。
生ごみ処理機助成金制度 なし
上限金額
-
上限比率
-

広島市佐伯区の住まいの給付金

中古購入

利子補給制度 なし
補助/助成金制度 あり
上限金額
(1)10万円(2)50万円
備考
(1)【三世代同居・近居支援事業】子育て世帯が親世帯と同居・近居をするために住宅を取得する際の不動産登記費用等の1/2、上限10万円を助成。(2)【子育て世帯住替え促進リフォーム費補助】小学生以下の子がいる子育て世帯が空き家を改修する費用の1/2、上限50万円を助成。

増築・改築・改修

利子補給制度 なし
補助/助成金制度 あり
上限金額
(1)4万円(2)115万円(3)12.5万円
備考
(1)【住宅耐震診断補助事業】1981年5月31日以前に着工された木造住宅の耐震診断費用の2/3、上限4万円を助成。(2)【住事業宅耐震改修等補助】耐震改修費用の80%を助成。上限115万円。(3)【耐震シェルター等設置補助】耐震シェルターもしくは防災ベッドの設置費用の1/2、12.5万円を助成。感震ブレーカーを設置する場合は費用の1/2、上限4万円を助成。
暮らしデータ提供元:生活ガイド.com
※行政機関により公表していない地域及びデータがございます。東京23区以外の政令指定都市は、市全体のデータとして表示しています。
※提供データには細心の注意を払っておりますが、調査後に変更がある場合があります。 最新の情報につきましては各市区役所までお問い合わせいただくか、自治体HPなどをご確認ください。

価格相場

楽々園駅の価格相場

  ワンルーム 1K・1DK 1LDK・2K・2DK 2LDK・3K・3DK 3LDK・4K・4DK
中古マンション - - - 2,190万円 2,461万円

周辺駅の価格相場

  佐伯区役所前 山陽女学園前 広電五日市 広電廿日市 修大協創中高前
中古マンション - - - - -
※このデータはgoo住宅・不動産に掲載されている中古マンションの平均価格(管理費・駐車場代などを除く)を算出したものです。ただし5戸以上の掲載があるものについてのみ対象とします。
※周辺駅の価格相場は1LDK・2K・2DKの平均価格(管理費・駐車場代などを除く)を算出したものです。

他のエリアから探す

特集から探す

間取り図ありタワーマンション大規模マンションペット可・ペット相談可即入居可能駐車場空き有り専有面積100平米以上売主・代理2LDK3LDK4LDK以上リフォーム・リノベーション済

アプリで簡単 物件探し 大手不動産サイトの情報から一括検!プッシュ通知で物件を見逃さない
App Storeからダウンロード Google Playで手に入れよう QRコード