貸事務所
ピアシティ芝浦ビル 芝浦ふ頭駅 貸事務所
| 賃料 |
93.73万円 (管理費等:-) |
| 礼金・敷金 |
なし / なし |
保証金/敷引・償却 |
12ヶ月 / - |
| 交通 |
|
| 所在地 |
東京都港区海岸3丁目周辺地図
|
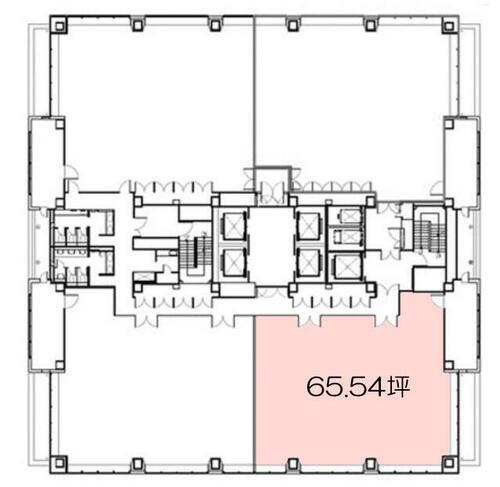
| 使用部分面積 |
216.66m2 |
土地面積 |
- |
| 築年月 |
1994年7月 |
築年数 |
築31年6ヶ月 |
- おすすめポイント
- 角部屋・24時間セキュリティ・駐車場3台分以上・OAフロア・耐震構造(新耐震基準)
| 賃料 |
93.73万円 |
管理費等 |
- |
| 敷金 |
なし |
礼金 |
なし |
| 保証金 |
12ヶ月 |
敷引・償却 |
- |
| 所在地 |
東京都港区海岸3丁目周辺地図
|
| 交通 |
- ゆりかもめ 芝浦ふ頭駅 徒歩5分乗換案内
- ゆりかもめ 日の出駅 徒歩8分乗換案内
- JR山手線 田町駅 徒歩14分乗換案内
|
| 使用部分面積 |
216.66m2 |
土地面積 |
|
| 坪単価 |
1.44万円 |
その他一時金 |
|
| 権利金 |
- |
その他費用 |
|
| 維持費等 |
|
都市計画 |
|
| 用途地域 |
|
接道状況 |
|
| 地目 |
|
建物構造・所在階/階数 |
SRC 6階/地上16階地下3階建 |
| 建物名 |
ピアシティ芝浦ビル |
築年月(築年数) |
1994年7月(築31年6ヶ月) |
| 条件等 |
|
契約期間 |
2年 |
| 現況 |
居住中 |
引渡可能時期 |
2026年2月1日 |
| 情報提供元 |
アットホーム [6988258149] |
情報公開日 |
|
| 情報更新日 |
- |
次回更新予定日 |
随時 |
設備など
| 24時間セキュリティ |
○ |
1階 |
- |
2階以上 |
○ |
| 即引渡し可 |
- |
飲食店可 |
- |
エレベーター |
○ |
| 駐車場(近隣含) |
- |
|
|
|
|
| 設備 |
冷房・暖房・エアコン・給湯・トイレ・エレベーター・光ファイバー(ブロードバンド)・インターネット対応・人荷用エレベーター・男女別トイレ |
| 備考 |
■天高2700mm■貨物用EV有・■天高2700mm■貨物用EV有 築年月:1994/07築 |
| 特記事項 |
角部屋・24時間セキュリティ・駐車場3台分以上・OAフロア・耐震構造(新耐震基準) |
東京都港区海岸3丁目 周辺地図情報
※地図上に表示される物件の位置は付近住所に所在することを表すものであり、実際の物件所在地とは異なる場合がございます。
正確な物件所在地は、取扱い不動産会社にお問い合わせください。
アピールポイント
■天高2700mm■貨物用EV有
不動産会社情報
| お問い合わせ先 |
商号:プロトラス(株) 免許番号:東京都知事免許(1)第111735号 所在地:千代田区神田美倉町10番地喜助新神田ビル2階21号室 TEL:03-3526-2424 取引態様:仲介 管理コード: 所属協会など:(公社)全日本不動産協会会員、(公社)首都圏不動産公正取引協議会加盟 |
共有する |
|
人口などの統計情報
| 世帯数 |
146084世帯 |
| 人口総数 |
266306人 |
| 転入者数 |
29747人
- 転入率(人口1000人当たり)
- 111.70人
|
| 転出者数 |
25086人
- 転出率(人口1000人当たり)
- 94.20人
|
| 土地平均価格 |
- 住宅地
- 2313000円/m2
- 商業地
- 6411852円/m2
|
港区の治安・ごみ収集情報
公共料金・インフラ
| ガス料金(22m3使用した場合の月額) |
東京瓦斯株式会社(東京地区等)3926円 |
| 水道料金(口径20mmで20m3の月額) |
東京都水道局2816円 |
| 下水道料金(20m3を使用した場合の月額) |
東京都下水道局2068円 |
| 下水道普及率 |
100.0% |
安心・安全
| 建物火災出火件数 |
225件
- 人口10000人当たり
- 8.64件
|
| 刑法犯認知件数 |
2980件
- 人口1000人当たり
- 11.44件
|
| ハザード・防災マップ |
あり |
医療
| 一般病院総数 |
13ヶ所 |
| 一般診療所総数 |
953ヶ所 |
| 小児科医師数 |
144人
- 小児人口10000人当たり
- 39.84人
|
| 産婦人科医師数 |
191人
- 15~49歳女性人口1万人当たり
- 28.68人
|
| 介護保険料基準額(月額) |
6400円 |
ごみ
| 家庭ごみ収集(可燃ごみ) |
無料
|
| 家庭ごみの分別方式 |
4分別7種〔可燃ごみ 不燃ごみ 資源プラスチック 資源(ペットボトル、びん、かん、古紙[新聞、ダンボール、紙パック、雑誌、その他再生可能紙])〕 |
| 家庭ごみの戸別収集 |
一部実施(65歳以上の高齢者、介護保険法[1997年法律第123号]に規定する要介護認定を受けている方、身体障害者手帳、愛の手帳又は精神障害者保健福祉手帳の交付を受けている方、難病の患者に対する医療等に関する法律[2014年法律第50号]第5条第1項に規定する指定難病又は東京都難病患者等に係る医療費等の助成に関する規則[2000年東京都規則第94号]別表第1の第2類に定める特殊疾病に罹患している方、母子健康手帳の交付を受けた妊婦の方、産後1年を経過する月の前月末日までの子どもを養育する者ひとり親世帯の方) |
| 粗大ごみ収集 |
あり
|
| 生ごみ処理機助成金制度 |
あり
- 上限金額
- 20000円
- 上限比率
- 50.0%
|
※行政機関により公表していない地域及びデータがございます。東京23区以外の政令指定都市は、市全体のデータとして表示しています。
※提供データには細心の注意を払っておりますが、調査後に変更がある場合があります。 最新の情報につきましては各市区役所までお問い合わせいただくか、自治体HPなどをご確認ください。
港区の暮らしデータをもっと見る
-
- 貸店舗・事務所
-
- 賃料
- 766.92万円
- 住所
- 東京都渋谷区神宮前6丁目
-
- 貸事務所
-
- 賃料
- 471.22万円
- 住所
- 東京都港区麻布台1丁目
-
- 貸事務所
-
- 賃料
- 429.12万円
- 住所
- 東京都千代田区三番町
-
- 貸店舗・事務所
-
- 賃料
- 426.82万円
- 住所
- 東京都港区東新橋1丁目
-
- 貸店舗・事務所
-
- 賃料
- 373.85万円
- 住所
- 東京都中央区銀座1丁目
-
- 貸事務所
-
- 賃料
- 323.04万円
- 住所
- 東京都渋谷区東3丁目
-
- 貸店舗・事務所
-
- 賃料
- 299.91万円
- 住所
- 東京都渋谷区渋谷4丁目
-
- 貸事務所
-
- 賃料
- 283.12万円
- 住所
- 東京都中央区日本橋小伝馬町
-
- 貸事務所
-
- 賃料
- 270.13万円
- 住所
- 東京都千代田区麹町1丁目
-
- 貸店舗・事務所
-
- 賃料
- 258.5万円
- 住所
- 東京都渋谷区神宮前6丁目
-
- 貸事務所
-
- 賃料
- 9.9万円
- 住所
- 東京都新宿区西新宿3丁目