アプリで簡単 物件探し 通知 共有 アプリならではの機能を使ってみる
賃貸マンション

ビレッジハウス旭ヶ丘2号棟 笠岡駅 3DK 賃貸(賃貸マンション・アパート)

情報提供元
LIFULL HOME'S
ビレッジハウス旭ヶ丘2号棟
賃料 3.31万円  (管理費等:-)
礼金・敷金 なし / なし 保証金/敷引・償却 なし / -
交通
所在地 岡山県笠岡市旭が丘138-3周辺地図
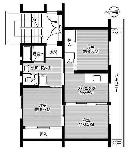
間取り 3DK 専有面積 53.96m2
築年月 1982年3月 築年数 築43年10ヶ月
お問い合わせ先
エイブルネットワーク福山駅前店 株式会社アークス
お問い合わせ先
エイブルネットワーク福山駅前店 株式会社アークス

詳細情報

賃料 3.31万円 管理費等 -
敷金 なし 礼金 なし
保証金 なし 敷引・償却 -
更新料 - 契約期間 2年
カード決済 -
所在地 岡山県笠岡市旭が丘138-3周辺地図
交通
建物名 ビレッジハウス旭ヶ丘2号棟 
間取り 3DK 築年月(築年数) 1982年3月(築43年10ヶ月)
専有面積 53.96㎡ 所在階/階数 3階/5階建
建物構造 RC  方位 南 
現況 空  駐車場 有 3,300円
入居可能時期 即時 住宅保険
情報提供元 LIFULL HOME'S[1550410008231] 情報公開日
情報更新日 次回更新予定日 2025年12月27日

設備など

2階以上 最上階 - 角部屋 -
駐車場(近隣含) エアコン付き - バス・トイレ別
室内洗濯機置き場 追焚機能 オートロック付き -
モニタ付インターホン - フローリング - バルコニー
ガスコンロ可 - 浴室乾燥機 - 24時間セキュリティ -
宅配ボックス - ペット相談可 - 二人入居可
設備 プロパンガス・本下水・バス・トイレ別・給湯・追焚機能・室内洗濯機置き場・バルコニー・インターネット対応 
リフォーム履歴 -
リノベーション履歴 -
備考 室内設備は追い焚き・バストイレ別など大変充実しております。ここは入居日指定になってまして2024年7月ですのでお急ぎください。敷地内に駐車スペースの空きがありますので、車がある方にも安心していただけます。こちらはマンションタイプになります。3DKで充実したキッチン付きの物件です。インターネットの回線が繋がっているので快適なお住まい。/退去時クリーニング費用 65291円/賃貸戸数:40戸 
特記事項 見学予約可・二人入居可

省エネ性能

エネルギー消費性能 -
断熱性能 -
目安光熱費 -

岡山県笠岡市旭が丘138-3 周辺地図情報

地図
※地図上に表示される物件の位置は付近住所に所在することを表すものであり、実際の物件所在地とは異なる場合がございます。
   正確な物件所在地は、取扱い不動産会社にお問い合わせください。
お問い合わせ先
エイブルネットワーク福山駅前店 株式会社アークス

不動産会社情報

お問い合わせ先 商号:エイブルネットワーク福山駅前店 株式会社アークス
免許番号:国土交通大臣(01)第009898号
所在地:広島県福山市三之丸町4-15 1F
TEL:084-999-1012
取引態様:仲介
管理コード:8231
所属協会など:中国地区不動産公正取引協議会、(公社)全日本不動産協会広島県本部
共有する
QRコード

お電話でのお問い合わせ

電話をかける(携帯・PHS可)
お問い合わせダイヤル
通話無料0037-619-51422
営業時間 10:00~18:00 (定休日:年末年始(12/28〜1/3))
音声案内に従って数字を入力
お問い合わせ番号
70849-2970
不動産会社につながります
不動産会社のスタッフと
直接電話で話せます。
※不動産会社がお電話に出られなかった場合、株式会社LIFULLは電話会社が提供するサービスを介してお客様の発信者番号を受領後、折り返し専用の電話番号を発番してお問合せの不動産会社に通知します(お客様の発信者番号がお問合せの不動産会社に通知されることはございません)
※光IP電話、及びIP電話からはご利用になれません
※0037で始まる電話番号に携帯電話からお問合せいただいた方には、ショートメッセージ(SMS)によるお問合せ完了通知をお届けする場合があります
お問い合わせ先
エイブルネットワーク福山駅前店 株式会社アークス

    笠岡市の暮らしデータ

    人口などの統計情報

    世帯数 18406世帯
    人口総数 44773人
    転入者数 1317人
    転入率(人口1000人当たり)
    29.42人
    転出者数 1446人
    転出率(人口1000人当たり)
    32.30人
    土地平均価格
    住宅地
    34067円/m2
    商業地
    57000円/m2

    結婚・育児の助成金

    子育て関連の独自の取り組み (1)弱視等治療用眼鏡給付事業。(2)島しょ部妊婦等交通費助成。(3)おたふくかぜワクチン費用の一部助成。(4)妊産婦医療費助成事業。(5)不育治療支援事業。(6)小学校制服等購入費用助成事業。(7)子どもの食と居場所づくり支援事業。(8)放課後児童クラブ利用者負担金補助。(9)保育所保育料減免事業(市の独自減免を上乗せ)。(10)ファミリーサポートセンター利用料補助。(11)離島地域協働型保育支援事業補助金。
    出産祝い あり
    公立保育所数 0所(うち0歳児保育を実施している保育所:-)
    私立保育所数 2所(うち0歳児保育を実施している保育所:-)
    保育所入所待機児童数 0人
    認定こども園数 14園 預かり保育実施園数 公立:1園 私立:-
    学校給食 【小学校】完全給食【中学校】完全給食
    公立中学校の学校選択制 一部実施(特定地域選択制・特認校制)
    子ども・学生等医療費助成<通院>対象年齢 中学校卒業まで 子ども・学生等医療費助成<入院>対象年齢 18歳3月末まで

    笠岡市の治安・ごみ収集情報

    公共料金・インフラ

    ガス料金(22m3使用した場合の月額) 福山瓦斯株式会社5279円
    水道料金(口径20mmで20m3の月額) 笠岡市4708円
    下水道料金(20m3を使用した場合の月額) 笠岡市2596円
    下水道普及率 59.9%

    安心・安全

    建物火災出火件数 8件
    人口10000人当たり
    1.74件
    刑法犯認知件数 168件
    人口1000人当たり
    3.65件
    ハザード・防災マップ あり

    医療

    一般病院総数 3ヶ所
    一般診療所総数 40ヶ所
    小児科医師数 15人
    小児人口10000人当たり
    35.72人
    産婦人科医師数 3人
    15~49歳女性人口1万人当たり
    4.46人
    介護保険料基準額(月額) 6250円

    ごみ

    家庭ごみ収集(可燃ごみ) 一部有料
    備考
    超過従量制。1年分の無料配付のごみ袋がなくなった場合は有料で購入。
    家庭ごみの分別方式 11分別17種〔燃えるごみ 燃えないごみ 缶 古紙類(新聞紙、ダンボール、雑紙、紙パック) びん(無色びん、緑色びん、茶色ビン、その他色びん) 布類 スプレー缶・ガスボンベ缶 金属類 ペットボトル 白色トレイ 容器包装プラスチック(その他)〕 拠点回収:使用済小型家電 水銀使用廃製品 インクカートリッジ
    家庭ごみの戸別収集 一部実施(ふれあい収集)
    粗大ごみ収集 あり
    備考
    有料。戸別収集。事前申込制。
    生ごみ処理機助成金制度 あり
    上限金額
    20000円
    上限比率
    50.0%
    暮らしデータ提供元:生活ガイド.com
    ※行政機関により公表していない地域及びデータがございます。東京23区以外の政令指定都市は、市全体のデータとして表示しています。
    ※提供データには細心の注意を払っておりますが、調査後に変更がある場合があります。 最新の情報につきましては各市区役所までお問い合わせいただくか、自治体HPなどをご確認ください。

    笠岡市内の各駅の住みやすさ

    他のエリアから探す

    笠岡市の詳細地域から賃貸物件を探す

    旭が丘入江絵師生江浜大井南小平井笠岡春日台金浦神島五番町三番町城見台十一番町中央町富岡西大島西大島新田西茂平東大戸緑町美の浜用之江茂平横島吉田吉浜

    近辺の市区から探す

    井原市浅口市浅口郡里庄町

    周辺の駅から探す

    山陽本線
    新倉敷金光鴨方里庄笠岡大門東福山福山備後赤坂

    岡山県笠岡市で他のジャンルから探す


    掲載情報の著作権は提供元企業等に帰属します。
    Copyright:(C) 2025 LIFULL Co.,Ltd.
    アプリで簡単 物件探し 大手不動産サイトの情報から一括検!プッシュ通知で物件を見逃さない
    App Storeからダウンロード Google Playで手に入れよう QRコード