アプリで簡単 物件探し 通知 共有 アプリならではの機能を使ってみる
テラスハウス

南垣内貸家 東向日駅 4DK 賃貸(賃貸マンション・アパート)

情報提供元
LIFULL HOME'S
南垣内貸家
賃料 6.8万円  (管理費等:-)
礼金・敷金 なし / なし 保証金/敷引・償却 10万円 / 解約時10万円償却
交通
所在地 京都府向日市寺戸町南垣内周辺地図
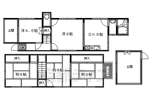
間取り 4DK 専有面積 82.5m2
築年月 1981年7月 築年数 築44年5ヶ月
おすすめポイント
一戸建て、貸家、都市ガス、ペット相談可能 ペットと住める一戸建て。ピアノOKですよ。

詳細情報

賃料 6.8万円 管理費等 -
敷金 なし 礼金 なし
保証金 10万円 敷引・償却 解約時10万円償却
更新料 更新料なし 契約期間 2年
カード決済 -
所在地 京都府向日市寺戸町南垣内周辺地図
交通
建物名 南垣内貸家 
間取り 4DK 築年月(築年数) 1981年7月(築44年5ヶ月)
専有面積 82.5㎡ 所在階/階数 2階建
建物構造 木造  方位 東 
現況 空  駐車場 近有 7,000円 物件からの距離80m
入居可能時期 即時 住宅保険
情報提供元 LIFULL HOME'S[1508280074730] 情報公開日
情報更新日 次回更新予定日 2025年12月8日

設備など

2階以上 - 最上階 - 角部屋 -
駐車場(近隣含) エアコン付き - バス・トイレ別
室内洗濯機置き場 - 追焚機能 - オートロック付き -
モニタ付インターホン - フローリング - バルコニー
ガスコンロ可 - 浴室乾燥機 - 24時間セキュリティ -
宅配ボックス - ペット相談可 二人入居可
設備 上水道・都市ガス・本下水・バス・トイレ別・シャワー・給湯・バルコニー・駐輪場・洗面所独立 
リフォーム履歴 -
リノベーション履歴 -
備考 お気軽にお問い合わせ下さい。京都の賃貸は京都ライフにお任せ 物件情報はもちろん京都のエリア情報まで幅広く対応させていただきます! 【設備・特記事項備考】専用バス・専用トイレ/書類代 11000円/賃貸戸数:3戸/保証会社の利用:加入要/保証会社名:日本セーフティー/保証会社費用:初回:月額賃料等の80%、更新時:1万円/1年 
特記事項 見学予約可・楽器相談・二人入居可・ペット相談可

省エネ性能

エネルギー消費性能 -
断熱性能 -
目安光熱費 -

京都府向日市寺戸町南垣内 周辺地図情報

地図
※地図上に表示される物件の位置は付近住所に所在することを表すものであり、実際の物件所在地とは異なる場合がございます。
   正確な物件所在地は、取扱い不動産会社にお問い合わせください。

不動産会社情報

お問い合わせ先 商号:株式会社京都ライフ 京都ライフ西大路店
免許番号:京都府知事(11)第006353号
所在地:京都府京都市南区唐橋西平垣町38-1 ルミエール唐橋1階
TEL:075-585-6501
取引態様:仲介
管理コード:74730
所属協会など:所属団体未加入
共有する
QRコード

お電話でのお問い合わせ

電話をかける(携帯・PHS可)
お問い合わせダイヤル
通話無料0037-634-63994
営業時間 09:30~19:00
音声案内に従って数字を入力
お問い合わせ番号
21020-2973
不動産会社につながります
不動産会社のスタッフと
直接電話で話せます。
※不動産会社がお電話に出られなかった場合、株式会社LIFULLは電話会社が提供するサービスを介してお客様の発信者番号を受領後、折り返し専用の電話番号を発番してお問合せの不動産会社に通知します(お客様の発信者番号がお問合せの不動産会社に通知されることはございません)
※光IP電話、及びIP電話からはご利用になれません
※0037で始まる電話番号に携帯電話からお問合せいただいた方には、ショートメッセージ(SMS)によるお問合せ完了通知をお届けする場合があります

向日市の暮らしデータ

人口などの統計情報

世帯数 23510世帯
人口総数 56571人
転入者数 2163人
転入率(人口1000人当たり)
38.24人
転出者数 2204人
転出率(人口1000人当たり)
38.96人
土地平均価格
住宅地
207000円/m2
商業地
427000円/m2

結婚・育児の助成金

子育て関連の独自の取り組み 向日市児童福祉手当支給制度。
出産祝い なし
公立保育所数 3所(うち0歳児保育を実施している保育所:3所)
私立保育所数 5所(うち0歳児保育を実施している保育所:5所)
保育所入所待機児童数 0人
認定こども園数 2園 預かり保育実施園数 公立:- 私立:3園
学校給食 【小学校】完全給食【中学校】完全給食
公立中学校の学校選択制 実施(希望校制度。新入学時又は他市区町村からの転入時のみ)
子ども・学生等医療費助成<通院>対象年齢 中学校卒業まで 子ども・学生等医療費助成<入院>対象年齢 18歳3月末まで

向日市の治安・ごみ収集情報

公共料金・インフラ

ガス料金(22m3使用した場合の月額) 大阪瓦斯株式会社4544円
水道料金(口径20mmで20m3の月額) 向日市3096円
下水道料金(20m3を使用した場合の月額) 向日市2266円
下水道普及率 100.0%

安心・安全

建物火災出火件数 4件
人口10000人当たり
0.70件
刑法犯認知件数 242件
人口1000人当たり
4.26件
ハザード・防災マップ あり

医療

一般病院総数 1ヶ所
一般診療所総数 48ヶ所
小児科医師数 8人
小児人口10000人当たり
10.62人
産婦人科医師数 6人
15~49歳女性人口1万人当たり
5.42人
介護保険料基準額(月額) 6125円

ごみ

家庭ごみ収集(可燃ごみ) 無料
備考
指定ごみ袋は有料だが、袋代にごみ収集・処理料金等を含まず。
家庭ごみの分別方式 2分別11種〔もやすごみ 資源ごみ(空缶、スプレー缶、空ビン、ペットボトル、その他不燃物、その他プラスチック、有害ごみ)〕拠点回収:資源ごみ(空缶、空ビン、ペットボトル、紙類[新聞、雑紙、段ボール、布類])
家庭ごみの戸別収集 実施(基本的に戸別回収を行っているが、塵芥車が入れない一部地域で集団回収を実施)
粗大ごみ収集 あり
備考
有料。事前申込制。手数料処理券が必要(500円~3,000円/点)。
生ごみ処理機助成金制度 あり
上限金額
10000円
上限比率
50.0%
暮らしデータ提供元:生活ガイド.com
※行政機関により公表していない地域及びデータがございます。東京23区以外の政令指定都市は、市全体のデータとして表示しています。
※提供データには細心の注意を払っておりますが、調査後に変更がある場合があります。 最新の情報につきましては各市区役所までお問い合わせいただくか、自治体HPなどをご確認ください。
OCN×ドコモ光新規お申込みで合計最大137,280円相当おトク!特典の内訳・適用条件など詳細はこちら

向日市内の各駅の住みやすさ


掲載情報の著作権は提供元企業等に帰属します。
Copyright:(C) 2025 LIFULL Co.,Ltd.
アプリで簡単 物件探し 大手不動産サイトの情報から一括検!プッシュ通知で物件を見逃さない
App Storeからダウンロード Google Playで手に入れよう QRコード