アプリで簡単 物件探し 通知 共有 アプリならではの機能を使ってみる
賃貸アパート

Coco Cat 岩塚 岩塚駅 1LDK 賃貸(賃貸マンション・アパート)

情報提供元
LIFULL HOME'S
Coco Cat 岩塚
賃料 7.3万円  (管理費等:4000円)
礼金・敷金 なし / なし 保証金/敷引・償却 なし / -
交通
所在地 愛知県名古屋市中村区沖田町周辺地図
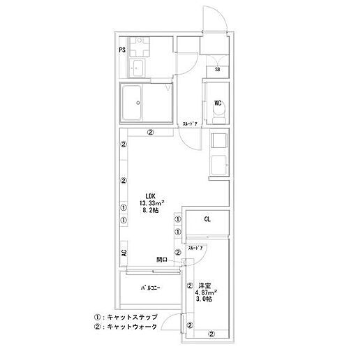
間取り 1LDK 専有面積 30.03m2
築年月 2025年12月 築年数 新築
おすすめポイント
♪ネコちゃんのみ飼育OK♪ペットスルードアやキャットウォークなど専用設備たくさん♪
お問い合わせ先
株式会社エムホームエステート スタイルエステート中央支店
お問い合わせ先
株式会社エムホームエステート スタイルエステート中央支店

詳細情報

賃料 7.3万円 管理費等 4000円
敷金 なし 礼金 なし
保証金 なし 敷引・償却 -
更新料 - 契約期間 2年
カード決済 -
所在地 愛知県名古屋市中村区沖田町周辺地図
交通
建物名 Coco Cat 岩塚 
間取り 1LDK 築年月(築年数) 2025年12月 新築
専有面積 30.03㎡ 所在階/階数 3階/3階建
建物構造 木造  方位 北 
現況   駐車場 近有 12,000円 物件からの距離100m
入居可能時期 2026年1月下旬 住宅保険
情報提供元 LIFULL HOME'S[1436770040009] 情報公開日
情報更新日 次回更新予定日 2025年12月10日

設備など

2階以上 最上階 角部屋
駐車場(近隣含) エアコン付き バス・トイレ別
室内洗濯機置き場 追焚機能 - オートロック付き
モニタ付インターホン フローリング バルコニー
ガスコンロ可 浴室乾燥機 24時間セキュリティ -
宅配ボックス ペット相談可 二人入居可
設備 プロパンガス・本下水・バス・トイレ別・シャワー・ガスコンロ可・コンロ2口以上・システムキッチン・給湯・シャンプードレッサ・エアコン・室内洗濯機置き場・オートロック・バルコニー・フローリング・宅配BOX・光ファイバー(ブロードバンド)・モニタ付インターホン・温水洗浄便座・浴室乾燥機・洗面所独立・インターネット無料・クローゼット・シューズボックス 
リフォーム履歴 -
リノベーション履歴 -
備考 2口コンロ,3点給湯,TVインターホン,エアコン,ガスキッチン,ガス給湯,クローゼット,システムキッチン,シャワー,シャワー付洗面台,シューズボックス,トイレ有,ネット使用料不要,バス・トイレ別,バス有,フローリング,温水洗浄便座,給湯,光ファイバー,高速ネット対応,室内洗濯機置場,収納有,洗面化粧台,洗面所にドア,洗面所独立,洗面台,全居室フローリング,脱衣所,暖房,暖房便座,浴室乾燥,浴室暖房,冷房,ペット専用設備,宅配BOX,敷地内ゴミ置き場 【設備・特記事項備考】専用バス・専用トイレ/町費 250円/安心サポート 880円/賃貸戸数:9戸/保証会社の利用:加入要/保証会社費用:【初回保証料】月額総賃料の40% 【月額保証料】月額総賃料の1.2%(引落し手数料込)/管理人勤務形態:巡回 
特記事項 二人入居可・ペット相談可・保証人不要/代行 ・角部屋・デザイナーズ物件・最上階

省エネ性能

エネルギー消費性能 -
断熱性能 -
目安光熱費 -

愛知県名古屋市中村区沖田町 周辺地図情報

地図
※地図上に表示される物件の位置は付近住所に所在することを表すものであり、実際の物件所在地とは異なる場合がございます。
   正確な物件所在地は、取扱い不動産会社にお問い合わせください。
お問い合わせ先
株式会社エムホームエステート スタイルエステート中央支店

不動産会社情報

お問い合わせ先 商号:株式会社エムホームエステート スタイルエステート中央支店
免許番号:愛知県知事(03)第022094号
所在地:愛知県名古屋市中区栄3丁目32-33 トクサンビル1F
TEL:052-262-2200
取引態様:仲介
管理コード:40009
所属協会など:東海不動産公正取引協議会、(公社)愛知県宅地建物取引業協会
共有する
QRコード

お電話でのお問い合わせ

電話をかける(携帯・PHS可)
お問い合わせダイヤル
通話無料0037-634-04224
営業時間 10:00~19:00 (定休日:年末年始)
音声案内に従って数字を入力
お問い合わせ番号
76043-2970
不動産会社につながります
不動産会社のスタッフと
直接電話で話せます。
※不動産会社がお電話に出られなかった場合、株式会社LIFULLは電話会社が提供するサービスを介してお客様の発信者番号を受領後、折り返し専用の電話番号を発番してお問合せの不動産会社に通知します(お客様の発信者番号がお問合せの不動産会社に通知されることはございません)
※光IP電話、及びIP電話からはご利用になれません
※0037で始まる電話番号に携帯電話からお問合せいただいた方には、ショートメッセージ(SMS)によるお問合せ完了通知をお届けする場合があります
お問い合わせ先
株式会社エムホームエステート スタイルエステート中央支店

    名古屋市中村区の暮らしデータ

    人口などの統計情報

    世帯数 1119847世帯
    人口総数 2297745人
    転入者数 168667人
    転入率(人口1000人当たり)
    73.41人
    転出者数 154544人
    転出率(人口1000人当たり)
    67.26人
    土地平均価格
    住宅地
    223115円/m2
    商業地
    1106619円/m2

    結婚・育児の助成金

    子育て関連の独自の取り組み (1)なごや子育てアプリ「NAGOMii(なごみー)」による子育て支援情報の提供。(2)子育て家庭優待カード「ぴよか」の交付。(3)子どもを出産、育児する家庭に5万ポイント(5万円相当)分のカタログギフトを進呈する、ナゴヤわくわくプレゼント事業の実施。
    出産祝い あり
    公立保育所数 84所(うち0歳児保育を実施している保育所:84所)
    私立保育所数 367所(うち0歳児保育を実施している保育所:365所)
    保育所入所待機児童数 0人
    認定こども園数 107園 預かり保育実施園数 公立:20園 私立:-
    学校給食 【小学校】完全給食【中学校】家庭弁当等との選択制/デリバリー形式[運搬:食缶等、内容:完全給食(献立選択制)]
    公立中学校の学校選択制 未実施
    子ども・学生等医療費助成<通院>対象年齢 18歳3月末まで 子ども・学生等医療費助成<入院>対象年齢 18歳3月末まで

    名古屋市中村区の治安・ごみ収集情報

    公共料金・インフラ

    ガス料金(22m3使用した場合の月額) 東邦瓦斯株式会社5307円
    水道料金(口径20mmで20m3の月額) 名古屋市2915円
    下水道料金(20m3を使用した場合の月額) 名古屋市1804円
    下水道普及率 99.4%

    安心・安全

    建物火災出火件数 355件
    人口10000人当たり
    1.52件
    刑法犯認知件数 19857件
    人口1000人当たり
    8.51件
    ハザード・防災マップ あり

    医療

    一般病院総数 110ヶ所
    一般診療所総数 2272ヶ所
    小児科医師数 770人
    小児人口10000人当たり
    28.40人
    産婦人科医師数 319人
    15~49歳女性人口1万人当たり
    6.72人
    介護保険料基準額(月額) 6951円

    ごみ

    家庭ごみ収集(可燃ごみ) 無料
    備考
    指定ごみ袋制だが、袋代にごみ収集・処理料金等を含まず。
    家庭ごみの分別方式 5分別9種〔可燃ごみ 不燃ごみ 発火性危険物 電池類 資源(プラスチック資源、紙製容器包装・雑がみ、ペットボトル、空きびん、空き缶)〕 拠点回収:資源(ペットボトル 紙パック 食用油 小型家電 充電式家電 蛍光管・水銀体温計・水銀温度計)
    家庭ごみの戸別収集 実施(可燃ごみ、不燃ごみ、発火性危険物、電池類、プラスチック資源のみ。紙製容器包装・雑がみ、ペットボトル、空きびん、空き缶はステーション収集)
    粗大ごみ収集 あり
    備考
    有料。各戸収集。事前申込制。月1回収集で手数料(品目ごとに250円、500円、1,000円、1,500円)が必要。粗大ごみ受付センターにインターネットもしくは電話にて申し込み。
    生ごみ処理機助成金制度 なし
    上限金額
    -
    上限比率
    -
    暮らしデータ提供元:生活ガイド.com
    ※行政機関により公表していない地域及びデータがございます。東京23区以外の政令指定都市は、市全体のデータとして表示しています。
    ※提供データには細心の注意を払っておりますが、調査後に変更がある場合があります。 最新の情報につきましては各市区役所までお問い合わせいただくか、自治体HPなどをご確認ください。
    OCN×ドコモ光新規お申込みで合計最大137,280円相当おトク!特典の内訳・適用条件など詳細はこちら

    名古屋市中村区内の各駅の住みやすさ

    他のエリアから探す

    名古屋市中村区の詳細地域から賃貸物件を探す

    稲上町稲西町稲葉地町稲葉地本通乾出町猪之越町井深町岩上町岩塚町岩塚本通牛田通大秋町大宮町沖田町押木田町角割町烏森町香取町上石川町上米野町上ノ宮町亀島鴨付町川前町菊水町北浦町北畑町京田町草薙町熊野町小鴨町黄金通寿町郷前町五反城町権現通栄生町佐古前町塩池町下米野町下中村町宿跡町白子町城屋敷町新富町十王町城主町砂田町諏訪町千成通太閤太閤通大正町高須賀町高道町竹橋町大日町大門町千原町椿町剣町豊国通鳥居通鳥居西通中島町中村町中村中町中村本町長筬町長草町長戸井町那古野並木賑町西米野町西栄町鈍池町野上町野田町則武則武本通羽衣町橋下町畑江通八社八田町東宿町日ノ宮町日比津町日吉町平池町深川町藤江町二瀬町二ツ橋町本陣通松重町松原町道下町宮塚町向島町名駅名駅南名西通名楽町元中村町森末町森田町靖国町横井横井町横前町若宮町

    近辺の市区から探す

    名古屋市千種区名古屋市東区名古屋市北区名古屋市西区名古屋市中区名古屋市昭和区名古屋市瑞穂区名古屋市熱田区名古屋市中川区名古屋市港区名古屋市南区名古屋市守山区名古屋市名東区名古屋市天白区春日井市津島市稲沢市岩倉市清須市北名古屋市あま市西春日井郡豊山町海部郡大治町海部郡蟹江町海部郡飛島村

    周辺の駅から探す

    名古屋市東山線
    高畑八田岩塚中村公園中村日赤本陣亀島

    愛知県名古屋市中村区で他のジャンルから探す


    掲載情報の著作権は提供元企業等に帰属します。
    Copyright:(C) 2025 LIFULL Co.,Ltd.
    アプリで簡単 物件探し 大手不動産サイトの情報から一括検!プッシュ通知で物件を見逃さない
    App Storeからダウンロード Google Playで手に入れよう QRコード