アプリで簡単 物件探し 通知 共有 アプリならではの機能を使ってみる
賃貸マンション

プラウド阪急塚口駅前 塚口駅 3SLDK 賃貸(賃貸マンション・アパート)

情報提供元
アパマンショップ
プラウド阪急塚口駅前
賃料 30万円  (管理費等:なし)
礼金・敷金 0.5ヶ月 / 1ヶ月 保証金/敷引・償却 なし / 実費
交通
所在地 兵庫県尼崎市南塚口町2丁目周辺地図
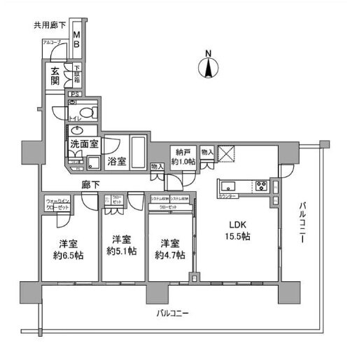
間取り 3SLDK 専有面積 82.34m2
築年月 2022年7月 築年数 築3年6ヶ月
おすすめポイント
角部屋
お問い合わせ先
アパマンショップ阪急園田店 株式会社連都
お問い合わせ先
アパマンショップ阪急園田店 株式会社連都

詳細情報

賃料 30万円 管理費等 なし
敷金 1ヶ月 礼金 0.5ヶ月
保証金 なし 敷引・償却 実費
更新料 - 契約期間 定期借家 3年0ヶ月
カード決済 -
所在地 兵庫県尼崎市南塚口町2丁目周辺地図
交通
建物名 プラウド阪急塚口駅前 
間取り 3SLDK(LDK15.5 洋4.7 洋5.1 洋6.5) 築年月(築年数) 2022年7月(築3年6ヶ月)
専有面積 82.34㎡ 所在階/階数 9階/16階建
建物構造 RC  方位 南 
現況   駐車場 無    近くの駐車場を探す
入居可能時期 相談 住宅保険 あり住宅保険 2年 25500円
情報提供元 アパマンショップ[20221215020265] 情報公開日
情報更新日 - 次回更新予定日 随時

設備など

2階以上 最上階 - 角部屋
駐車場(近隣含) - エアコン付き - バス・トイレ別
室内洗濯機置き場 - 追焚機能 オートロック付き
モニタ付インターホン フローリング バルコニー
ガスコンロ可 - 浴室乾燥機 24時間セキュリティ -
宅配ボックス ペット相談可 - 二人入居可 -
設備 エレベーター・宅配BOX・オートロック・シャワー・追焚機能・シャンプードレッサ・CATV・システムキッチン・フローリング・バルコニー・バス・トイレ別・モニタ付インターホン・カウンターキッチン・ディスポーザー・浴室乾燥機・洗面所独立・温水洗浄便座・床暖房・ウォークインクローゼット 
リフォーム履歴 -
リノベーション履歴 -
備考 [退去時費用 退去費用実費精算※故意・過失等別途実費]リロサポ加入必須1500円(月額) 2022120028/退去時は、借主負担にてハウスクリーニング実施(当社手配)/リロサポ加入必須(月額1500円) ※6ヶ月未満で解約した場合、賃料の0.5ヶ月分を申受けます。【全ての特約が記載できない為、必ず最新の物件 保証会社利用必須  保証会社 要:初回 賃料総額100%+月額 賃料総額2%(最低1,000円) 上坂部小学校・629m 大成中学校・1648m コンビニ・349m スーパー・681m 病院・106m /加盟団体名:(一社)兵庫県宅地建物取引業協会 公取協名:(公社) 近畿地区不動産公正取引協議会加盟/駐車場登録料 1台( 11000円 
特記事項 角部屋

兵庫県尼崎市南塚口町2丁目 周辺地図情報

地図
※地図上に表示される物件の位置は付近住所に所在することを表すものであり、実際の物件所在地とは異なる場合がございます。
   正確な物件所在地は、取扱い不動産会社にお問い合わせください。
お問い合わせ先
アパマンショップ阪急園田店 株式会社連都

不動産会社情報

お問い合わせ先 商号:アパマンショップ阪急園田店 株式会社連都
免許番号:兵庫県知事免許(8)202743
所在地:尼崎市東園田町5丁目119-5
TEL:06-6494-0555
取引態様:仲介
管理コード:95079996
共有する
QRコード
お問い合わせ先
アパマンショップ阪急園田店 株式会社連都

    尼崎市の暮らしデータ

    人口などの統計情報

    世帯数 221148世帯
    人口総数 458046人
    転入者数 19347人
    転入率(人口1000人当たり)
    42.24人
    転出者数 17462人
    転出率(人口1000人当たり)
    38.12人
    土地平均価格
    住宅地
    203421円/m2
    商業地
    402167円/m2

    結婚・育児の助成金

    子育て関連の独自の取り組み 尼崎市子どもの育ち支援条例(わいわいキッズプランあまがさき、地域社会の子育て機能向上支援事業、ティーンズミーティング開催事業 等)。
    出産祝い なし
    公立保育所数 15所(うち0歳児保育を実施している保育所:8所)
    私立保育所数 69所(うち0歳児保育を実施している保育所:69所)
    保育所入所待機児童数 11人
    認定こども園数 25園 預かり保育実施園数 公立:9園 私立:10園
    学校給食 【小学校】完全給食【中学校】完全給食
    公立中学校の学校選択制 一部実施
    子ども・学生等医療費助成<通院>対象年齢 中学校卒業まで 子ども・学生等医療費助成<入院>対象年齢 18歳3月末まで

    尼崎市の治安・ごみ収集情報

    公共料金・インフラ

    ガス料金(22m3使用した場合の月額) 大阪瓦斯株式会社4544円
    水道料金(口径20mmで20m3の月額) 尼崎市2552円
    下水道料金(20m3を使用した場合の月額) 尼崎市1714円
    下水道普及率 100.0%

    安心・安全

    建物火災出火件数 60件
    人口10000人当たり
    1.31件
    刑法犯認知件数 5053件
    人口1000人当たり
    10.99件
    ハザード・防災マップ あり

    医療

    一般病院総数 23ヶ所
    一般診療所総数 490ヶ所
    小児科医師数 124人
    小児人口10000人当たり
    24.31人
    産婦人科医師数 44人
    15~49歳女性人口1万人当たり
    4.84人
    介護保険料基準額(月額) 7493円

    ごみ

    家庭ごみ収集(可燃ごみ) 無料
    備考
    指定ごみ袋は有料だが、袋代にごみ収集・処理料金等を含まず。
    家庭ごみの分別方式 6分別8種〔燃やすごみ びん・缶・ペットボトル 紙類(新聞、ダンボール、その他紙類) 衣類 金属製小型ごみ 危険なもの〕
    家庭ごみの戸別収集 未実施
    粗大ごみ収集 あり
    備考
    有料。戸別収集。事前申込制。大型ごみ処理券を収集料金分貼付。
    生ごみ処理機助成金制度 あり
    上限金額
    5000円
    上限比率
    -
    暮らしデータ提供元:生活ガイド.com
    ※行政機関により公表していない地域及びデータがございます。東京23区以外の政令指定都市は、市全体のデータとして表示しています。
    ※提供データには細心の注意を払っておりますが、調査後に変更がある場合があります。 最新の情報につきましては各市区役所までお問い合わせいただくか、自治体HPなどをご確認ください。
    OCN×ドコモ光新規お申込みで合計最大137,280円相当おトク!特典の内訳・適用条件など詳細はこちら

    尼崎市内の各駅の住みやすさ

    他のエリアから探す

    尼崎市の詳細地域から賃貸物件を探す

    猪名寺稲葉荘稲葉元町今福大島大庄川田町大庄北大庄中通大庄西町大西町尾浜町開明町梶ケ島上坂部上ノ島町瓦宮神崎町神田北通神田中通神田南通北城内北竹谷町北大物町金楽寺金楽寺町杭瀬杭瀬北新町杭瀬寺島杭瀬本町杭瀬南新町久々知久々知西町口田中栗山町食満玄番北之町琴浦町小中島三反田町潮江汐町椎堂下坂部昭和通昭和南通常光寺水明町崇徳院善法寺善法寺町高田町竹谷町立花町建家町田能大物町塚口塚口町塚口本町築地次屋常松常吉戸ノ内町富松町道意町中在家町長洲中通長洲西通長洲東通長洲本通若王寺七松町西西川西昆陽西桜木町西立花町西大物町西長洲西長洲町西難波町西本町西御園町額田額田町浜田町東桜木町東園田町東大物町東塚口町東七松町東難波町東本町丸島町水堂町御園御園町南清水南城内南竹谷町南塚口町南七松町南初島町南武庫之荘宮内町武庫川町武庫町武庫の里武庫之荘武庫之荘西武庫之荘東武庫之荘本町武庫元町武庫豊町名神町元浜町蓬川荘園蓬川町

    近辺の市区から探す

    大阪市都島区大阪市福島区大阪市此花区大阪市西区大阪市港区大阪市大正区大阪市浪速区大阪市西淀川区大阪市東淀川区大阪市旭区大阪市淀川区大阪市北区大阪市中央区豊中市池田市吹田市箕面市神戸市東灘区西宮市芦屋市伊丹市宝塚市川西市

    周辺の駅から探す

    福知山線
    大阪尼崎塚口猪名寺伊丹北伊丹川西池田
    阪急電鉄神戸線
    中津十三神崎川園田塚口武庫之荘西宮北口夙川芦屋川
    阪急電鉄伊丹線
    塚口稲野新伊丹伊丹

    マンションライブラリーを見る

    プラウド阪急塚口駅前

    兵庫県尼崎市で他のジャンルから探す


    掲載情報の著作権は提供元企業等に帰属します。
    Copyright:(C) 2025 APAMAN Co., Ltd.
    アプリで簡単 物件探し 大手不動産サイトの情報から一括検!プッシュ通知で物件を見逃さない
    App Storeからダウンロード Google Playで手に入れよう QRコード