アプリで簡単 物件探し 通知 共有 アプリならではの機能を使ってみる
賃貸アパート

レオパレスK&YOUII 博多駅 1K 賃貸(賃貸マンション・アパート)

情報提供元
SUUMO
レオパレスK&YOUII
賃料 5.1万円  (管理費等:4500円)
礼金・敷金 1ヶ月 / なし 保証金/敷引・償却 なし / -
交通
所在地 福岡県糟屋郡志免町志免東3周辺地図
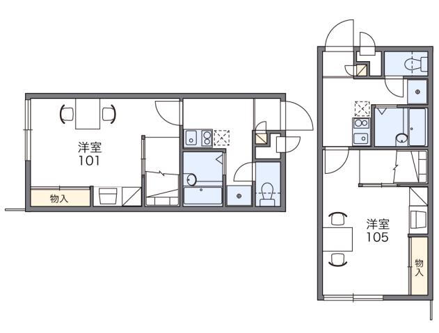
間取り 1K 専有面積 23.18m2
築年月 2003年5月 築年数 築22年7ヶ月
おすすめポイント
福岡市の賃貸・売買・管理は当社にお任せください☆ 初期費用の分割支払いOK!他サイトなどで気になる物件がございましたら、スタッフまで。ご希望のご条件に沿った物件探しを、精一杯サポート致します。まずはご相談ください。よろしくお願い致します。
お問い合わせ先
アパマンショップ博多駅東店(株)ハウスサポート
お問い合わせ先
アパマンショップ博多駅東店(株)ハウスサポート

詳細情報

賃料 5.1万円 管理費等 4500円
敷金 なし 礼金 1ヶ月
保証金 なし 敷引・償却 -
更新料 - 契約期間
カード決済 初期費用カード決済可
所在地 福岡県糟屋郡志免町志免東3周辺地図
交通
  • JR鹿児島本線 博多駅 バス38分/「東志免」バス停 停歩4分乗換案内
建物名 レオパレスK&YOUII 
間取り 1K(K) 築年月(築年数) 2003年5月(築22年7ヶ月)
専有面積 23.18㎡ 所在階/階数 2階/2階建
建物構造 軽量鉄骨  方位  
現況   駐車場 有 4,950円
入居可能時期 2025年12月中旬 住宅保険 あり
情報提供元 SUUMO[090H100469395083] 情報公開日
情報更新日 次回更新予定日 随時

設備など

2階以上 最上階 角部屋
駐車場(近隣含) エアコン付き バス・トイレ別
室内洗濯機置き場 追焚機能 - オートロック付き -
モニタ付インターホン - フローリング バルコニー -
ガスコンロ可 - 浴室乾燥機 24時間セキュリティ -
宅配ボックス ペット相談可 - 二人入居可
設備 冷房・暖房・エアコン・バス・トイレ別・トイレ・収納スペース・洗濯機置場・フローリング・浴室乾燥機・温水洗浄便座・システムキッチン・宅配BOX・駐輪場・クローゼット・衣類乾燥機・プロパンガス・浴トイレ別・家具付き・コンロ2口以上・シューズボックス・室内洗濯機置き場 
リフォーム履歴 -
リノベーション履歴 -
備考 損保要/西鉄天神大牟田線西鉄福岡(天神)駅バス35分東志免停歩4分/保証会社利用必:家賃等の100%または120%/二人入居可/子供可/駐2台可/[退去時費用 退去費用実費精算※故意・過失等別途実費]環境維持費:1ヶ月550円(税込)、鍵交換費:ご契約時16500円(税込)、退去時清掃費:41800円(税込)、インターネット利用料:有料、更新手数料:16500円(税込)、保証委託料:必要 保証会社:プラザ賃貸保証/バストイレ別/エアコン/クロゼット/フローリング/浴室乾燥機/室内洗濯置/シューズボックス/システムキッチン/角住戸/温水洗浄便座/2口コンロ/駐輪場/宅配ボックス/閑静な住宅地/最上階/敷金不要/保証人不要/仲介手数料不要/二人入居相談/全居室フローリング/2沿線利用可/緑豊かな住宅地/24時間換気システム/電子キー/ルームシェア相談/一部フローリング/家具付/2駅利用可/上階無し/敷地内ごみ置き場/平面駐車場/自走式駐車場/プロパンガス/玄関収納/礼金1ヶ月/保証会社利用可/IT重説 対応物件/初期費用カード決済可/セブン-イレブン須恵中央駅前店(コンビニ)まで1781m/須恵中央駅(その他)まで1762m/須恵駅(その他)まで2309m/須恵町役場(その他)まで1903m/イオンモール福岡ルクル(スーパー)まで1943m/新原駅(その他)まで2485m/賃貸戸数:14戸 
特記事項 二人入居可・角部屋・最上階・閑静な住宅街・保証人不要/代行 ・ルームシェア可・初期費用カード決済可

省エネ性能

エネルギー消費性能 -
断熱性能 -
目安光熱費 -

福岡県糟屋郡志免町志免東3 周辺地図情報

地図
※地図上に表示される物件の位置は付近住所に所在することを表すものであり、実際の物件所在地とは異なる場合がございます。
   正確な物件所在地は、取扱い不動産会社にお問い合わせください。
お問い合わせ先
アパマンショップ博多駅東店(株)ハウスサポート

不動産会社情報

お問い合わせ先 商号:アパマンショップ博多駅東店(株)ハウスサポート
免許番号:国土交通大臣(3)第8462号
所在地:福岡県福岡市博多区博多駅東1-1-25 宝ビル1階
TEL:092-710-5838
取引態様:仲介
管理コード:71706923
所属協会など:(一社)九州不動産公正取引協議会加盟、(公社)全日本不動産協会福岡県本部会員
共有する
QRコード
お問い合わせ先
アパマンショップ博多駅東店(株)ハウスサポート
OCN×ドコモ光新規お申込みで合計最大137,280円相当おトク!特典の内訳・適用条件など詳細はこちら

掲載情報の著作権は提供元企業等に帰属します。
Copyright:(C) 2025 Recruit Co., Ltd.
アプリで簡単 物件探し 大手不動産サイトの情報から一括検!プッシュ通知で物件を見逃さない
App Storeからダウンロード Google Playで手に入れよう QRコード