賃貸マンション
ビレッジハウス船木II1号棟 厚東駅 3DK 賃貸(賃貸マンション・アパート)
 
  
    
      | 賃料 | 3.61万円  (管理費等:なし) | 
    
      | 礼金・敷金 | なし / なし | 保証金/敷引・償却 | なし / - | 
    
      | 交通 |  | 
    
      | 所在地 | 山口県宇部市大字船木周辺地図 | 
    
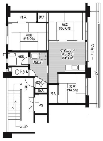
      | 間取り | 3DK | 専有面積 | 53.08m2 | 
    
      | 築年月 | 1992年4月 | 築年数 | 築33年8ヶ月 | 
  
 
 
- おすすめポイント
- フリーレント1ヶ月+最大3万円引越サポートあり! ペット飼育の場合、敷金1ヶ月(規約有、登録必要) 新規入居者対象!最大3万円の引っ越しサポート実施中!!
    
    
  
    - お問い合わせ先
- ビレッジハウス 住まい相談センター(中国エリア)ビレッジハウス・マネジメント(株)
 
  
  
  
    - お問い合わせ先
- ビレッジハウス 住まい相談センター(中国エリア)ビレッジハウス・マネジメント(株)
 
| 賃料 | 3.61万円 | 管理費等 | なし | 
| 敷金 | なし | 礼金 | なし | 
| 保証金 | なし | 敷引・償却 | - | 
| 更新料 | - | 契約期間 |  | 
| カード決済 | - | 
| 所在地 | 山口県宇部市大字船木周辺地図 | 
| 交通 | 
  JR山陽本線 厚東駅 徒歩4.6km乗換案内JR山陽本線 厚狭駅 徒歩6.9km乗換案内JR山陽本線 宇部駅 徒歩7.2km乗換案内 | 
| 建物名 | ビレッジハウス船木II1号棟 | 
| 間取り | 3DK | 築年月(築年数) | 1992年4月(築33年8ヶ月) | 
| 専有面積 | 53.08㎡ | 所在階/階数 | 1階/5階建 | 
| 建物構造 | RC | 方位 | 南東 | 
| 現況 |  | 駐車場 | 有 無料 | 
| 入居可能時期 | 即時 | 住宅保険 | あり 2年 10000円 | 
| 情報提供元 | SUUMO[080H100467463012] | 情報公開日 |  | 
| 情報更新日 |  | 次回更新予定日 | 随時 | 
設備など
| 2階以上 | - | 最上階 | - | 角部屋 | ○ | 
| 駐車場(近隣含) | ○ | エアコン付き | ○ | バス・トイレ別 | ○ | 
| 室内洗濯機置き場 | ○ | 追焚機能 | ○ | オートロック付き | - | 
| モニタ付インターホン | - | フローリング | - | バルコニー | ○ | 
| ガスコンロ可 | ○ | 浴室乾燥機 | - | 24時間セキュリティ | - | 
| 宅配ボックス | - | ペット相談可 | ○ | 二人入居可 | - | 
| 設備 | 冷房・暖房・エアコン・バルコニー・バス・トイレ別・トイレ・収納スペース・洗濯機置場・洗面所・追焚機能・ガスコンロ可・風呂・プロパンガス・浴トイレ別・洗面所独立・コンロ2口以上・インターネット対応・室内洗濯機置き場 | 
| リフォーム履歴 | - | 
| リノベーション履歴 | - | 
| 備考 | 保険料: 10,000円 2年/退去時クリーニング費用: 64,226円(税込)/ペット相談/新規入居者対象!賃料3ヵ月目フリーレント!!フリーレント1ヶ月/●ペット飼育の場合、敷金1ヶ月 ●短期解約違約金あり ⇒1年未満解約は賃料等の3ヵ月分、2年未満は2ヵ月分 ●法人契約の場合、賃料等の契約条件が異なる場合あり ●審査結果により敷金や連帯保証人を必要とする場合あり ●賃料に+1,000円でオプション設備追加可能 ※お部屋の仕様により設置できない場合あり 審査時必要書類:【個人】身分証・収入証明・通帳の写し【法人】会社概要(謄本等)・決算書(直近分)/バストイレ別/バルコニー/エアコン/ガスコンロ対応/室内洗濯置/追焚機能浴室/角住戸/洗面所独立/2口コンロ/押入/礼金不要/仲介手数料不要/二人入居相談/エアコン2台/フリーレント/ルームシェア相談/学生相談/全室東南向き/プロパンガス/高速ネット対応/高齢者歓迎/ウェスタまるき 楠店(スーパー)まで1000m/セブン-イレブン 山口船木店(コンビニ)まで220m/楠中学校(中学校)まで1200m/船木小学校(小学校)まで1200m/船木幼稚園(幼稚園・保育園)まで1200m/賃貸戸数:30戸 | 
| 特記事項 | ペット相談可・角部屋・フリーレント・ルームシェア可・高齢者相談 | 
山口県宇部市大字船木 周辺地図情報
※地図上に表示される物件の位置は付近住所に所在することを表すものであり、実際の物件所在地とは異なる場合がございます。
   正確な物件所在地は、取扱い不動産会社にお問い合わせください。
 
 
  
  
  
    - お問い合わせ先
- ビレッジハウス 住まい相談センター(中国エリア)ビレッジハウス・マネジメント(株)
 
不動産会社情報
| お問い合わせ先 | 商号:ビレッジハウス 住まい相談センター(中国エリア)ビレッジハウス・マネジメント(株) 免許番号:東京都知事(2)第100758号
 所在地:東京都港区虎ノ門4-3-13 ヒューリック神谷町ビル4階
 TEL:0120-266249
 取引態様:貸主
 管理コード:BKK-221716
 所属協会など:(公社)首都圏不動産公正取引協議会加盟、(公社)東京都宅地建物取引業協会会員
 | 共有する |  | 
  
  
  
    - お問い合わせ先
- ビレッジハウス 住まい相談センター(中国エリア)ビレッジハウス・マネジメント(株)
 
  
  
    人口などの統計情報
    
      
        
          | 世帯数 | 72415世帯 | 
        
          | 人口総数 | 158497人 | 
        
          | 転入者数 | 4556人 
 
              転入率(人口1000人当たり)28.75人 | 
        
          | 転出者数 | 4843人 
 
              転出率(人口1000人当たり)30.56人 | 
        
          | 土地平均価格 | 
              住宅地23591円/m2商業地44833円/m2 | 
      
    
   
    
    結婚・育児の助成金
    
      
        
          | 子育て関連の独自の取り組み | (1)うべこども家庭センターUbeハピの設置~妊娠期から子育て世帯、こども(18歳未満)に関する全般の相談。(2)産後ケア個別事業(ショートステイ、デイサービス)、訪問型事業の実施。(3)産婦健康診査(産後2週間・1ヶ月)・生後2週間新生児相談。(4)1歳児健康診査の実施(5)多胎妊婦健康診査助成及び育児支援事業の実施。(6)妊産婦や子育て世代を大切にする意識を醸成するために妊婦応援都市の推進。(7)うべ子育てパートナーの養成・認定。(8)養育費確保のための補助事業 等。 | 
        
          | 出産祝い | なし | 
        
          | 公立保育所数 | 5所(うち0歳児保育を実施している保育所:5所) | 
        
          | 私立保育所数 | 23所(うち0歳児保育を実施している保育所:23所) | 
        
          | 保育所入所待機児童数 | 0人 | 
        
          | 認定こども園数 | 3園 | 預かり保育実施園数 | 公立:- 私立:13園 | 
        
          | 学校給食 | 【小学校】完全給食【中学校】完全給食 | 
        
          | 公立中学校の学校選択制 | 一部実施(特認校就学制度[就学希望時。中学校3年生を除く。受け入れ可能人数に達していない場合]、就学学校選択制度[一部中学校入学時及び選択区域への転入。市内転居を含む]) | 
        
          | 子ども・学生等医療費助成<通院>対象年齢 | 18歳3月末まで | 子ども・学生等医療費助成<入院>対象年齢 | 18歳3月末まで | 
      
    
   
    
    宇部市の治安・ごみ収集情報
    公共料金・インフラ
    
      
        
          | ガス料金(22m3使用した場合の月額) | 山口合同ガス株式会社6827円 山口合同ガス株式会社6532円
 | 
        
          | 水道料金(口径20mmで20m3の月額) | 宇部市3344円 | 
        
          | 下水道料金(20m3を使用した場合の月額) | 宇部市3135円 | 
        
          | 下水道普及率 | 79.4% | 
      
    
    安心・安全
    
      
        
          | 建物火災出火件数 | 22件 
              人口10000人当たり1.35件 | 
        
          | 刑法犯認知件数 | 633件 
              人口1000人当たり3.89件 | 
        
          | ハザード・防災マップ | あり | 
      
    
    医療
    
      
        
          | 一般病院総数 | 14ヶ所 | 
        
          | 一般診療所総数 | 153ヶ所 | 
        
          | 小児科医師数 | 15人 
              小児人口10000人当たり8.32人 | 
        
          | 産婦人科医師数 | 22人 
              15~49歳女性人口1万人当たり8.02人 | 
        
          | 介護保険料基準額(月額) | 6200円 | 
      
    
    ごみ
    
      
        
          | 家庭ごみ収集(可燃ごみ) | 無料 | 
        
          | 家庭ごみの分別方式 | 9分別14種〔可燃ごみ(月・水・金) プラスチック製容器包装 可燃ごみ(月1回:衣類等) ビン・缶 ペットボトル 不燃ごみ 危険ごみ(乾電池、ライター、蛍光灯、水銀使用の体温計) 古紙(新聞紙、雑誌、段ボール) 紙製容器包装〕 | 
        
          | 家庭ごみの戸別収集 | 一部実施(宇部市ひとり暮らし高齢者等ふれあい戸別収集) | 
        
          | 粗大ごみ収集 | あり | 
        
          | 生ごみ処理機助成金制度 | あり 
              上限金額25000円上限比率50.0% | 
      
    
   
  
      
    
      ※行政機関により公表していない地域及びデータがございます。東京23区以外の政令指定都市は、市全体のデータとして表示しています。
      
※提供データには細心の注意を払っておりますが、調査後に変更がある場合があります。 最新の情報につきましては各市区役所までお問い合わせいただくか、自治体HPなどをご確認ください。
    
      宇部市の暮らしデータをもっと見る