アプリで簡単 物件探し 通知 共有 アプリならではの機能を使ってみる
賃貸アパート

サンメゾン寺家駅北口 寺家駅 2LDK 賃貸(賃貸マンション・アパート)

情報提供元
SUUMO
サンメゾン寺家駅北口
賃料 7.7万円  (管理費等:2000円)
礼金・敷金 1ヶ月 / 1ヶ月 保証金/敷引・償却 なし / -
交通
所在地 広島県東広島市西条町寺家周辺地図
間取り 2LDK 専有面積 66.6m2
築年月 2022年3月 築年数 築3年10ヶ月
おすすめポイント
★築浅物件に空きが出ました★ JR寺家駅まで徒歩6分!!メゾネットタイプの2LDKアパート☆浴室は1坪以上ありゆったりくつろげます♪
お問い合わせ先
レオパレスパートナーズ東広島店(株)ハウスネット
お問い合わせ先
レオパレスパートナーズ東広島店(株)ハウスネット

詳細情報

賃料 7.7万円 管理費等 2000円
敷金 1ヶ月 礼金 1ヶ月
保証金 なし 敷引・償却 -
更新料 - 契約期間
カード決済 初期費用カード決済可
所在地 広島県東広島市西条町寺家周辺地図
交通
建物名 サンメゾン寺家駅北口 
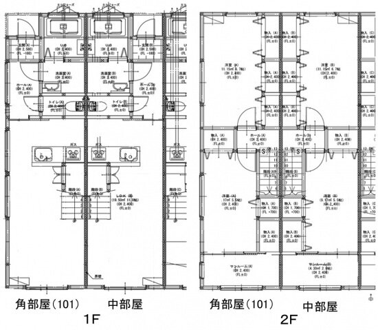
間取り 2LDK(洋6.2 洋5.5 LDK11.5) 築年月(築年数) 2022年3月(築3年10ヶ月)
専有面積 66.6㎡ 所在階/階数 1階/2階建
建物構造 木造  方位  
現況   駐車場 有 5,500円
入居可能時期 即時 住宅保険 あり 2年 20000円
情報提供元 SUUMO[080H100478723195] 情報公開日
情報更新日 次回更新予定日 随時

設備など

2階以上 - 最上階 - 角部屋 -
駐車場(近隣含) エアコン付き バス・トイレ別
室内洗濯機置き場 追焚機能 オートロック付き -
モニタ付インターホン フローリング - バルコニー -
ガスコンロ可 浴室乾燥機 24時間セキュリティ -
宅配ボックス - ペット相談可 - 二人入居可
設備 冷房・暖房・エアコン・バス・トイレ別・トイレ・収納スペース・洗濯機置場・洗面所・追焚機能・浴室乾燥機・照明器具・ガスコンロ可・シャンプードレッサ・温水洗浄便座・カウンターキッチン・モニタ付インターホン・駐輪場・風呂・対面K・クローゼット・衣類乾燥機・プロパンガス・浴トイレ別・洗面所独立・コンロ2口以上・シューズボックス・室内洗濯機置き場 
リフォーム履歴 -
リノベーション履歴 -
備考 鍵交換費用(税込)1.76万円/浄水器設置(任意・月額)(税込)0.143万円/選べる抗菌施工(任意)(税込)1.65万円/保証会社利用必:初回保証委託料:総額家賃50%(最低保証料20000円) 月額1.5%(最低保証料600円)+手数料330円 /●契約者が外国籍の場合はGTN:総額家賃50%(最低保証料20000円)月額1000円+手数料330円/仲介手数料1.1ヶ月/二人入居可/子供可/事務所利用不可/ルームシェア不可/バストイレ別/エアコン/ガスコンロ対応/クロゼット/シャワー付洗面台/TVインターホン/浴室乾燥機/室内洗濯置/シューズボックス/追焚機能浴室/温水洗浄便座/洗面所独立/2口コンロ/駐輪場/閑静な住宅地/対面式キッチン/照明付/全居室洋室/保証人不要/メゾネット/クロゼット2ヶ所/浴室1坪以上/駅徒歩10分以内/敷地内ごみ置き場/築5年以内/平面駐車場/LDK12畳以上/プロパンガス/初期費用カード決済可/巡回管理/Partner shojiショージ寺家駅前店(スーパー)まで428m/業務スーパーエブリイ西条寺家店(スーパー)まで1296m/マックスバリュ西条西店(スーパー)まで1093m/ローソン東広島寺家駅前店(コンビニ)まで328m/東広島市立平岩小学校(小学校)まで1011m/独立行政法人国立病院機構東広島医療センター(病院)まで1630m/賃貸戸数:6戸 
特記事項 二人入居可・メゾネット・管理人巡回・浴室1坪以上・閑静な住宅街・保証人不要/代行 ・初期費用カード決済可

省エネ性能

エネルギー消費性能 -
断熱性能 -
目安光熱費 -

広島県東広島市西条町寺家 周辺地図情報

地図
※地図上に表示される物件の位置は付近住所に所在することを表すものであり、実際の物件所在地とは異なる場合がございます。
   正確な物件所在地は、取扱い不動産会社にお問い合わせください。
お問い合わせ先
レオパレスパートナーズ東広島店(株)ハウスネット

不動産会社情報

お問い合わせ先 商号:レオパレスパートナーズ東広島店(株)ハウスネット
免許番号:広島県知事(3)第9894号
所在地:広島県東広島市西条栄町 9-26
TEL:082-493-6212
取引態様:仲介
管理コード:
所属協会など: 中国地区不動産公正取引協議会加盟、(公社)広島県宅地建物取引業協会会員
共有する
QRコード
お問い合わせ先
レオパレスパートナーズ東広島店(株)ハウスネット

    東広島市の暮らしデータ

    人口などの統計情報

    世帯数 89988世帯
    人口総数 190516人
    転入者数 10568人
    転入率(人口1000人当たり)
    55.47人
    転出者数 9579人
    転出率(人口1000人当たり)
    50.28人
    土地平均価格
    住宅地
    36670円/m2
    商業地
    106429円/m2

    結婚・育児の助成金

    子育て関連の独自の取り組み (1)保育士確保施策として、7年間で最大200万円の給付制度。さらに保育士の児童は、市内保育施設の保育料が無料。(2)市内13ヶ所に子育て世代地域包括支援センターを設置。子ども家庭総合支援拠点と連携し、妊娠期から子育て期までの切れ目ない支援~東広島版ネウボラ~を構築している。(3)2023年度から、妊娠8ヶ月・生後3ヶ月・生後7ヶ月のタイミングで定期面談を行い、育児支援用品等を手渡す伴走型相談支援事業をスタートした。(4)市内歯科医療機関と連携し、妊婦歯科検診(妊娠中1回)や、乳幼児健診(市の集団健診)で親子歯科健診を実施。
    出産祝い なし
    公立保育所数 21所(うち0歳児保育を実施している保育所:21所)
    私立保育所数 19所(うち0歳児保育を実施している保育所:19所)
    保育所入所待機児童数 0人
    認定こども園数 19園 預かり保育実施園数 公立:0園 私立:5園
    学校給食 【小学校】完全給食【中学校】完全給食
    公立中学校の学校選択制 一部実施(小中一貫特認校制度)
    子ども・学生等医療費助成<通院>対象年齢 18歳3月末まで 子ども・学生等医療費助成<入院>対象年齢 18歳3月末まで

    東広島市の治安・ごみ収集情報

    公共料金・インフラ

    ガス料金(22m3使用した場合の月額) 広島ガス株式会社5505円
    水道料金(口径20mmで20m3の月額) 広島県水道広域連合企業団(東広島事務所)3840円
    下水道料金(20m3を使用した場合の月額) 東広島市(入野・福富・豊栄)3350円
    東広島市(東広島・黒瀬・安芸津・白市・白市高屋台・河内)2820円
    下水道普及率 47.1%

    安心・安全

    建物火災出火件数 31件
    人口10000人当たり
    1.58件
    刑法犯認知件数 840件
    人口1000人当たり
    4.27件
    ハザード・防災マップ あり

    医療

    一般病院総数 14ヶ所
    一般診療所総数 133ヶ所
    小児科医師数 39人
    小児人口10000人当たり
    14.93人
    産婦人科医師数 14人
    15~49歳女性人口1万人当たり
    3.68人
    介護保険料基準額(月額) 5400円

    ごみ

    家庭ごみ収集(可燃ごみ) 有料
    備考
    従量制。指定袋及び処理券の代金に処理手数料を含んで販売。
    家庭ごみの分別方式 9分別〔燃やせるごみ 危険ごみ 有害ごみ リサイクルプラ その他プラ ペットボトル ビン・缶 新聞 雑誌・雑がみ・ダンボール〕 拠点回収:使用済小型家電 古布・古着 電池 ライター
    家庭ごみの戸別収集 一部実施(【東広島市ふれあい収集事業[ふれあい収集]】高齢者・障がい等がある方のうち、家庭ごみを所定の収集場所まで持ち出すことができない方を対象に週に1回、戸別回収を実施)
    粗大ごみ収集 あり
    備考
    無料。地域により、収集方法は異なる。
    生ごみ処理機助成金制度 あり
    上限金額
    30000円
    上限比率
    50.0%
    暮らしデータ提供元:生活ガイド.com
    ※行政機関により公表していない地域及びデータがございます。東京23区以外の政令指定都市は、市全体のデータとして表示しています。
    ※提供データには細心の注意を払っておりますが、調査後に変更がある場合があります。 最新の情報につきましては各市区役所までお問い合わせいただくか、自治体HPなどをご確認ください。
    OCN×ドコモ光新規お申込みで合計最大137,280円相当おトク!特典の内訳・適用条件など詳細はこちら

    東広島市内の各駅の住みやすさ

    他のエリアから探す

    東広島市の詳細地域から賃貸物件を探す

    安芸津町風早安芸津町三津黒瀬切田が丘黒瀬町市飯田黒瀬町大多田黒瀬町兼沢黒瀬町川角黒瀬町切田黒瀬町菅田黒瀬町津江黒瀬町楢原黒瀬町乃美尾黒瀬町丸山黒瀬町南方黒瀬町宗近柳国黒瀬楢原北黒瀬楢原西黒瀬楢原東黒瀬松ケ丘河内町下河内河内町中河内河内町入野西条朝日町西条大坪町西条岡町西条上市町西条御条町西条栄町西条下見西条昭和町西条末広町西条中央西条町大沢西条町郷曽西条町西条西条町西条東西条町下見西条町下三永西条町寺家西条町助実西条町田口西条町土与丸西条町福本西条町御薗宇西条町吉行西条土与丸西条西本町西条東北町西条本町志和町冠志和町志和東寺家駅前高屋高美が丘高屋町稲木高屋町杵原高屋町郷高屋町白市高屋町高屋堀高屋町中島高屋町桧山高屋町宮領豊栄町清武西大沢八本松飯田八本松町飯田八本松町正力八本松町原八本松町宗吉八本松町米満八本松西八本松東八本松南三永

    周辺の駅から探す

    山陽本線
    入野白市西高屋西条寺家八本松瀬野中野東安芸中野

    広島県東広島市で他のジャンルから探す


    掲載情報の著作権は提供元企業等に帰属します。
    Copyright:(C) 2025 Recruit Co., Ltd.
    アプリで簡単 物件探し 大手不動産サイトの情報から一括検!プッシュ通知で物件を見逃さない
    App Storeからダウンロード Google Playで手に入れよう QRコード